Duizeldonksestraat 18 5705 CA Helmond
€ 495,000 k.k.
Description
TE KOOP - Bedrijfsruimte
Op de hoek van een lommerrijke laan bevindt zich deze bedrijfsruimte met kantoorruimte aan het einde van de Engelseweg. Deze locatie ligt aan de rand van het perifeer detailhandels-gebied nabij Gamma, Praxis en JYSK.
De bungalow, gelegen op Duizeldonksestraat 16 wordt tevens voor verkoop aangeboden. Zodat wonen én werken op één locatie mogelijk is.
Naast de bedrijfsruimte is een kantoor gelegen dat kan worden ingericht met slaapkamer, badkamer en een woonkamer met eethoek.
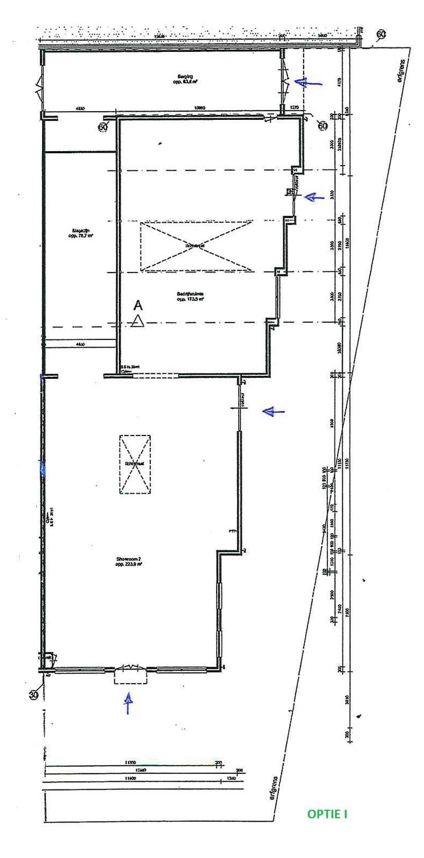
OPTIE I:
Magazijn: circa 64m².
Magazijn: circa 77m²
Bedrijfsruimte: circa 173m² (hoogte 6m), inclusief entresolvloer circa 170m².
Winkel/atelier: circa 224m².
Terrein: circa 1.030m²
KENMERKEN OPTIE I:
Vraagprijs: € 495.000,= kosten koper.
Overdrachtsbelasting: van toepassing.
Omzetbelasting: niet van toepassing.
Aanvaarding: in overleg, op korte termijn.
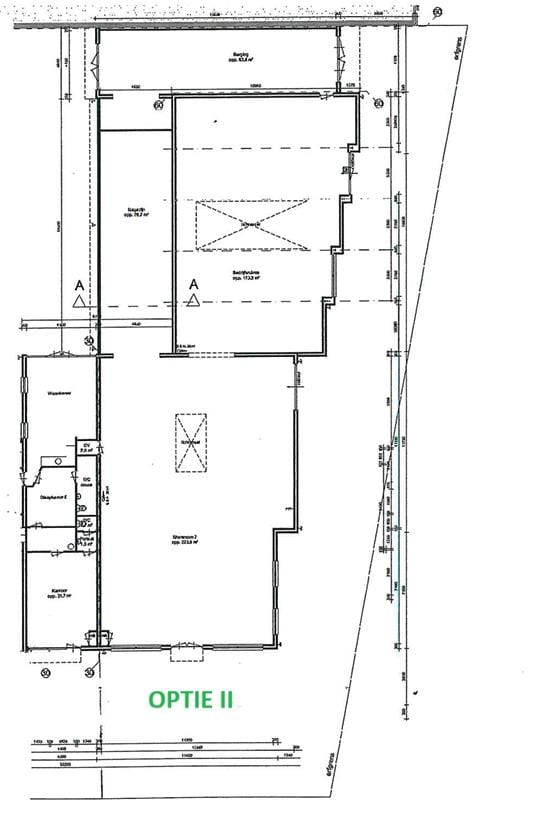
OPTIE II:
Optie I + circa 225m² terrein extra en circa 85m² kantoor met sanitair.
KENMERKEN OPTIE II:
Vraagprijs: € 625.000,= kosten koper.
Overdrachtsbelasting: van toepassing.
Omzetbelasting: niet van toepassing.
Aanvaarding: in overleg, op korte termijn.
Daarbij zijn er mogelijkheden om het geheel te kopen:
Bungalow circa 135m², inhoud circa 450m³.
Bestaande bouw: één bouwlaag, bestaande uit entree, gang, 4 slaapkamers, een toilet en badkamer, een open eethoek met keukeninrichting en een grote open zithoek.
Bouwjaar: 1988
Soort dak: platdak.
Prachtige tuin met oude bomen, geheel ommuurd, prettig voor jonge kinderen;
Perceel: circa 800m².
Indien u interesse heeft in de woning kunt u contact opnemen met ons kantoor.
Eigendom situatie:
Volledig eigendom.
Buitenruimte:
Circa 10 parkeerplaatsen.
Voorbehoud:
Een en ander onder voorbehoud goedkeuring opdrachtgever.
Op de hoek van een lommerrijke laan bevindt zich deze bedrijfsruimte met kantoorruimte aan het einde van de Engelseweg. Deze locatie ligt aan de rand van het perifeer detailhandels-gebied nabij Gamma, Praxis en JYSK.
De bungalow, gelegen op Duizeldonksestraat 16 wordt tevens voor verkoop aangeboden. Zodat wonen én werken op één locatie mogelijk is.
Naast de bedrijfsruimte is een kantoor gelegen dat kan worden ingericht met slaapkamer, badkamer en een woonkamer met eethoek.
OPTIE I:
Magazijn: circa 64m².
Magazijn: circa 77m²
Bedrijfsruimte: circa 173m² (hoogte 6m), inclusief entresolvloer circa 170m².
Winkel/atelier: circa 224m².
Terrein: circa 1.030m²
KENMERKEN OPTIE I:
Vraagprijs: € 495.000,= kosten koper.
Overdrachtsbelasting: van toepassing.
Omzetbelasting: niet van toepassing.
Aanvaarding: in overleg, op korte termijn.
OPTIE II:
Optie I + circa 225m² terrein extra en circa 85m² kantoor met sanitair.
KENMERKEN OPTIE II:
Vraagprijs: € 625.000,= kosten koper.
Overdrachtsbelasting: van toepassing.
Omzetbelasting: niet van toepassing.
Aanvaarding: in overleg, op korte termijn.
Daarbij zijn er mogelijkheden om het geheel te kopen:
Bungalow circa 135m², inhoud circa 450m³.
Bestaande bouw: één bouwlaag, bestaande uit entree, gang, 4 slaapkamers, een toilet en badkamer, een open eethoek met keukeninrichting en een grote open zithoek.
Bouwjaar: 1988
Soort dak: platdak.
Prachtige tuin met oude bomen, geheel ommuurd, prettig voor jonge kinderen;
Perceel: circa 800m².
Indien u interesse heeft in de woning kunt u contact opnemen met ons kantoor.
Eigendom situatie:
Volledig eigendom.
Buitenruimte:
Circa 10 parkeerplaatsen.
Voorbehoud:
Een en ander onder voorbehoud goedkeuring opdrachtgever.
Features
Transfer of ownership
- Asking price
- € 495,000 kosten koper
- Original asking price
- € 725,000 kosten koper
- Listed since
-
- Status
- Available
- Acceptance
- Available in consultation
Construction
- Main use
- Industrial unit
- Building type
- Resale property
- Year of construction
- 1988
Surface areas
- Area
- 545 m²
- Industrial unit area
- 545 m²
- Plot size
- 1,253 m²
Energy
- Energy label
- A++
Real estate agent
Photos