Oosterveldsingel 5-E 7558 PJ Hengelo (OV)
€ 1,350 p/mo.
Description
Te huur! Bedrijfsruimte van totaal ca. 160 m2 aan de Oosterveldsingel te Hengelo.
Algemeen
Op bedrijventerrein Oosterveld in Hengelo bieden wij een representatieve, zelfstandige bedrijfsruimte te huur aan, gelegen in een modern bedrijfsverzamelgebouw. Op de eerste verdieping is een kantoorruimte van ca. 80 m², voorzien van voldoende daglicht, een moderne toiletvoorziening en luxe keuken. De ruimte beschikt nagenoeg over een turn-key opleveringsniveau en beschikt over 3 parkeerplaats aan de voorzijde.
Locatie en bereikbaarheid
Het bedrijfsverzamelgebouw ligt op het industrieterrein Oosterveld te Hengelo en is goed te bereiken door de goede aanrijroutes en infrastructuur. De A1 is binnen enkele minuten te bereiken met eigen vervoer.
Parkeervoorzieningen
Het object beschikt over 3 eigen parkeerplaatsen aan de voorzijde, voorzien van laadpaal.
Indeling / oppervlaktes
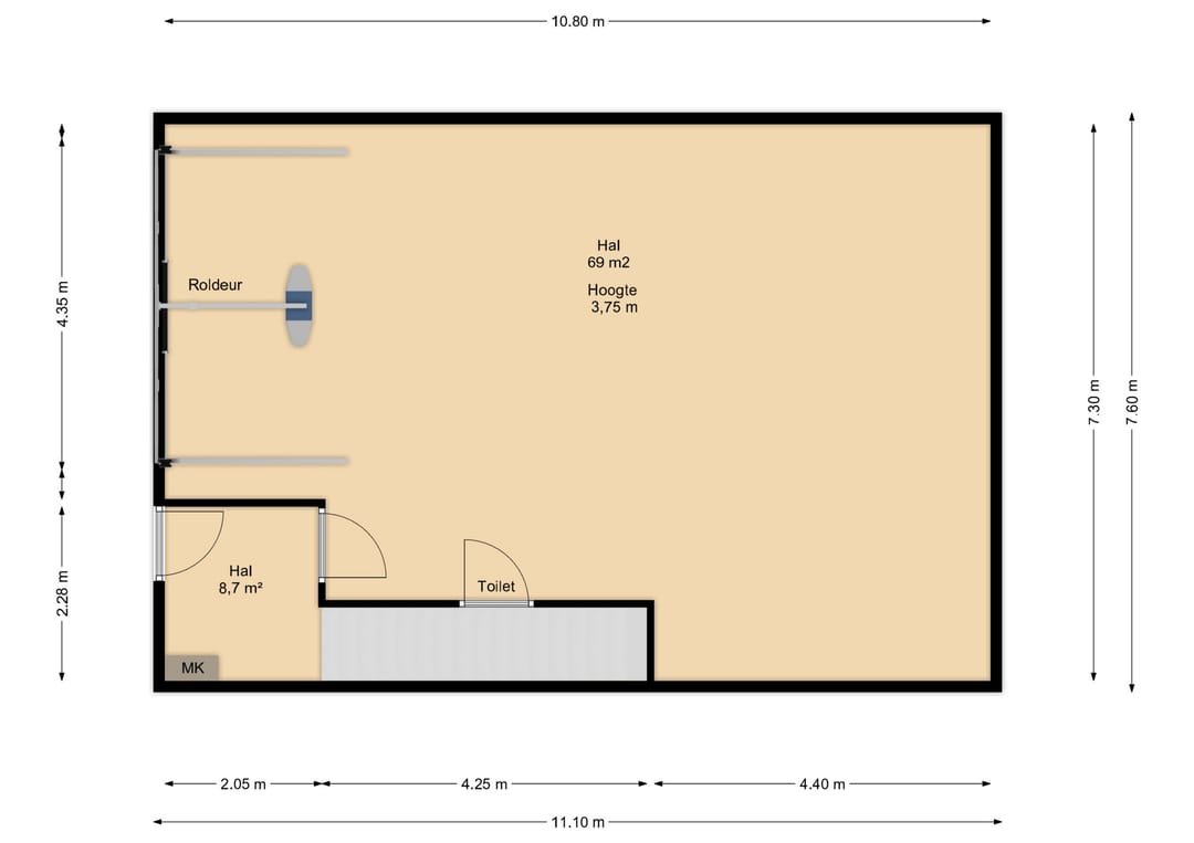
Het object heeft een totale oppervlakte van ca. 160 m² welke als volgt is onderverdeeld:
Begane grond:
- Bedrijfsruimte van ca. 69 m2
- Hal van ca. 11 m2
Eerste verdieping:
- Kantoorruimte van ca. 80 m2
Huurprijs
De huurprijs voor het object betreft € 1.350,- per maand excl. Btw G/W/E.
Servicekosten
Niet van toepassing, de nutsvoorzieningen dienen op eigen naam aangesloten te worden.
Voorzieningen/Bijzonderheden
- Eigen entree;
- Moderne en volwaardige toiletvoorziening (ook op eerste verdieping);
- Elektrische overheaddeur;
- Voldoende daglicht;
- Camerasysteem;
- Eigen meterkast;
- Systeemplafond voorzien van led verlichtingsarmaturen;
- Airco split unit voor warme en koude lucht;
- Volledig en luxe keuken;
- Te openen ramen met raambekleding;
Opleveringsniveau
In huidige staat, schoon, leeg en ontruimd.
Bestemmingsplan
Het object valt onder het bestemmingsplan "A1-Zone 2019" met als enkelbestemming "Bedrijf" en functieaanduiding "bedrijf tot en met categorie 3.1".
Kadastrale gegevens
Gemeente Hengelo Overijssel
Sectie T
Nummer(s) 9570
Index A11
Bouwjaar
2021 (volgens BAG)
Huurtermijn
Minimale huurperiode 2 (twee) jaar, thans in overleg met opdrachtgever.
Opzegtermijn
12 (twaalf) maanden, thans in overleg met opdrachtgever.
Huurprijsaanpassing
Jaarlijks op basis van de consumentenprijsindex gepubliceerd door het Centraal Bureau voor de Statistiek (CBS), reeks alle huishoudens (2015=100).
Zekerheidsstelling
Een waarborgsom ter grootte van 3 (drie) maanden huur.
Omzetbelasting
De huurprijs is belast met 21% BTW. Bent u niet BTW plichtig? Ook geen probleem, vraag naar de voorwaarden.
Huurovereenkomst
Huurovereenkomst zal worden opgemaakt conform de ROZ model huurovereenkomst kantoorruimte en andere bedrijfsruimte in de zin van art. 7:230a BW.
Aanvaarding
In overleg.
Voorbehoud
Definitieve goedkeuring opdrachtgever en/of verhuurder.
Heeft u interesse en/of vragen over het object? Wij nodigen u graag uit contact met ons op te nemen om samen te kijken wat de mogelijkheden zijn!
Contact
JB Vastgoed Advies
Contactpersoon: De heer T. Senkeldam
Tel. nummer: 074-2051018 / 06 43 20 39 00
Deze informatie is van algemene aard. Hier kunnen geen rechten aan ontleend worden.
Algemeen
Op bedrijventerrein Oosterveld in Hengelo bieden wij een representatieve, zelfstandige bedrijfsruimte te huur aan, gelegen in een modern bedrijfsverzamelgebouw. Op de eerste verdieping is een kantoorruimte van ca. 80 m², voorzien van voldoende daglicht, een moderne toiletvoorziening en luxe keuken. De ruimte beschikt nagenoeg over een turn-key opleveringsniveau en beschikt over 3 parkeerplaats aan de voorzijde.
Locatie en bereikbaarheid
Het bedrijfsverzamelgebouw ligt op het industrieterrein Oosterveld te Hengelo en is goed te bereiken door de goede aanrijroutes en infrastructuur. De A1 is binnen enkele minuten te bereiken met eigen vervoer.
Parkeervoorzieningen
Het object beschikt over 3 eigen parkeerplaatsen aan de voorzijde, voorzien van laadpaal.
Indeling / oppervlaktes
Het object heeft een totale oppervlakte van ca. 160 m² welke als volgt is onderverdeeld:
Begane grond:
- Bedrijfsruimte van ca. 69 m2
- Hal van ca. 11 m2
Eerste verdieping:
- Kantoorruimte van ca. 80 m2
Huurprijs
De huurprijs voor het object betreft € 1.350,- per maand excl. Btw G/W/E.
Servicekosten
Niet van toepassing, de nutsvoorzieningen dienen op eigen naam aangesloten te worden.
Voorzieningen/Bijzonderheden
- Eigen entree;
- Moderne en volwaardige toiletvoorziening (ook op eerste verdieping);
- Elektrische overheaddeur;
- Voldoende daglicht;
- Camerasysteem;
- Eigen meterkast;
- Systeemplafond voorzien van led verlichtingsarmaturen;
- Airco split unit voor warme en koude lucht;
- Volledig en luxe keuken;
- Te openen ramen met raambekleding;
Opleveringsniveau
In huidige staat, schoon, leeg en ontruimd.
Bestemmingsplan
Het object valt onder het bestemmingsplan "A1-Zone 2019" met als enkelbestemming "Bedrijf" en functieaanduiding "bedrijf tot en met categorie 3.1".
Kadastrale gegevens
Gemeente Hengelo Overijssel
Sectie T
Nummer(s) 9570
Index A11
Bouwjaar
2021 (volgens BAG)
Huurtermijn
Minimale huurperiode 2 (twee) jaar, thans in overleg met opdrachtgever.
Opzegtermijn
12 (twaalf) maanden, thans in overleg met opdrachtgever.
Huurprijsaanpassing
Jaarlijks op basis van de consumentenprijsindex gepubliceerd door het Centraal Bureau voor de Statistiek (CBS), reeks alle huishoudens (2015=100).
Zekerheidsstelling
Een waarborgsom ter grootte van 3 (drie) maanden huur.
Omzetbelasting
De huurprijs is belast met 21% BTW. Bent u niet BTW plichtig? Ook geen probleem, vraag naar de voorwaarden.
Huurovereenkomst
Huurovereenkomst zal worden opgemaakt conform de ROZ model huurovereenkomst kantoorruimte en andere bedrijfsruimte in de zin van art. 7:230a BW.
Aanvaarding
In overleg.
Voorbehoud
Definitieve goedkeuring opdrachtgever en/of verhuurder.
Heeft u interesse en/of vragen over het object? Wij nodigen u graag uit contact met ons op te nemen om samen te kijken wat de mogelijkheden zijn!
Contact
JB Vastgoed Advies
Contactpersoon: De heer T. Senkeldam
Tel. nummer: 074-2051018 / 06 43 20 39 00
Deze informatie is van algemene aard. Hier kunnen geen rechten aan ontleend worden.
Features
Transfer of ownership
- Rental price
- € 1,350 per month
- Service charges
- € 100 per month (21% VAT applies)
- Listed since
-
- Status
- Available
- Acceptance
- Available in consultation
Construction
- Main use
- Industrial unit
- Building type
- Resale property
- Year of construction
- 2021
Surface areas
- Area
- 160 m²
- Industrial unit area
- 80 m²
- Office area
- 80 m²
Layout
- Number of floors
- 2 floors
- Facilities
- Overhead doors, three-phase electric power, concrete floor, toilet, pantry and windows can be opened
Energy
- Energy label
- Not required
Surroundings
- Location
- Business park and office park
- Accessibility
- Dutch Railways Intercity station in 5000 m or more and motorway exit in 500 m to 1000 m
Parking
- Parking spaces
- 3 uncovered parking spaces
NVM real estate agent
Photos
Floorplan
Begane grond
Verdieping