Lageweg 25 2222 AG Katwijk (ZH)
- New
€ 2,595,000 k.k.

Description
TE KOOP
Lageweg 25 / Steenbakkerstraat 4/a te Katwijk (2222 AG)
ALGEMEEN
Zeer courante bedrijfsruimte van in totaal ca. 1.570 m² (inclusief ca. 370 m² kantoorruimte met kantine) gelegen op bedrijventerrein ’t Heen te Katwijk op een zichtlocatie! Het onroerend goed beschikt verder over een zeer ruim verhard afsluitbaar buitenterrein -/ bouwkavel (met bouwvergunning) van ca. 1.525 m², welke ontsloten is via zowel de Lageweg als de Steenbakkerstraat. Het geheel is gesitueerd op een perceel grond van ca. 3.434 m².
De bedrijfsruimte beschikt onder andere over een zwaar belastbaar asfalt betonnen vloer (vloerbelasting 2.000 kg/m²), vrije hoogte van 7,5 meter, heaters, elektrisch bedienbare overheaddeuren en kraanbanen (5.000 kg). De kantoorruimte beschikt met name op begane grond en eerste verdieping over een ‘turn key’ opleveringsniveau. Het buitenterrein is afsluitbaar middels een hekwerk en is verhard middels stelconplaten.
In de directe omgeving zijn onder andere Supermarkt Albert Heijn, Boels, Toolstation en Gamma gevestigd.
Bouwjaar: omstreeks 1977.
BEREIKBAARHEID
Het geheel is per eigen vervoer goed bereikbaar via de Rijksweg A44 alsmede de Provinciale weg N206.
Bereikbaarheid per openbaar vervoer is als goed te kenmerken. Diverse bushalten bevinden zich in de directe omgeving van het object, waarvan één aan de overkant van de straat.
LOCATIE / LIGGING
Bedrijventerrein
LOCATIE / VOORZIENINGEN
Snelwegafrit
Op 4000 m tot 5000 m
Afstand tot NS Station
Op 5000 m of meer
Winkel voorziening
Op minder dan 500 m
OPPERVLAKTE / INDELING
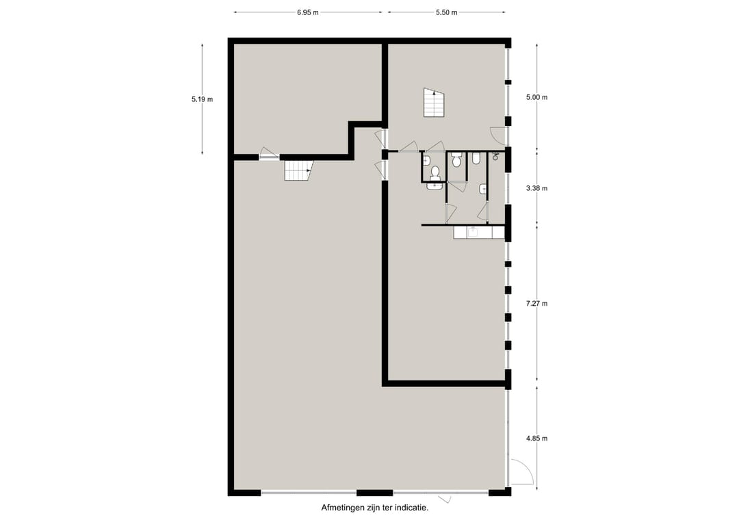
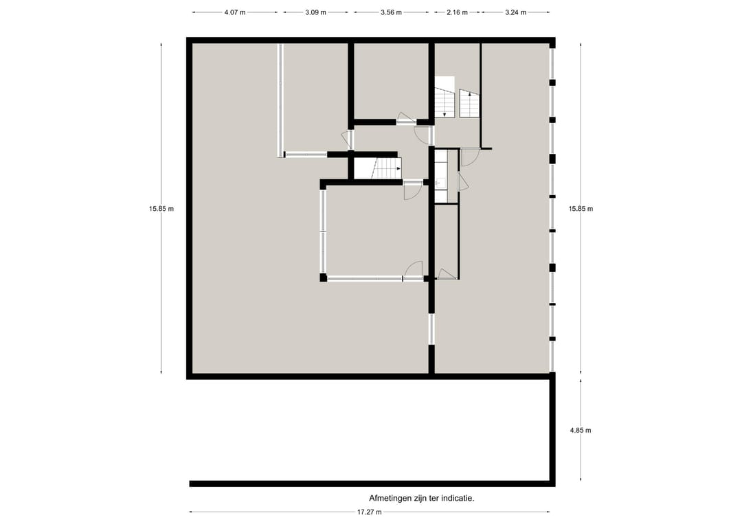
De bedrijfsruimte heeft in totaal een oppervlakte van ca. 1.570 m² en is als volgt ingedeeld:
Begane grond:
Bedrijfsruimte: ca. 1.200 m²
Kantoorruimte: ca. 90 m²
Eerste verdieping:
Kantoorruimte: ca. 135 m²
Tweede verdieping:
Kantoorruimte: ca. 145 m²
Verder beschikt het onroerend goed over een zeer ruim verhard afsluitbaar buitenterrein -/ bouwkavel (met
bouwvergunning) van ca. 1.525 m²,
PARKEERMOGELIJKHEDEN
Het object beschikt over vijf parkeerplaatsen aan de voorzijde alsmede over een zeer ruim (parkeer) terrein aan de achterzijde.
OPLEVERINGSNIVEAU
Het onroerend goed wordt opgeleverd in de huidige staat en beschikt onder andere over:
Bedrijfsruimte
- vloerbelasting 2.000 kg/m²
- elektrisch bedienbare overheaddeuren
- zwaar belastbaar asfalt betonnen vloer
- vrije hoogte 7,5 meter
- heaters
- krachtstroom
- verlichtingsarmaturen
- kraanbanen (5.000 kg)
- toiletten
Kantoor
- systeemplafond met verlichtingsarmaturen
- afgewerkte vloeren
- scheidingswanden
- cv-verwarming
- kabelgoten
- toiletten
- kantine met pantry
KOOPSOM
€ 2.595.000,00 k.k.
OMZETBELASTING
Het betreft hier een niet met BTW belaste verkoop.
AANVAARDING
In overleg.
COURTAGE
Mocht door bemiddeling van Basis Bedrijfshuisvesting B.V. een transactie tot stand komen, zult u hiervoor geen kosten of courtage verschuldigd zijn.
KADASTRALE GEGEVENS
Gemeente: Katwijk
Sectie: C
Nummer: 1312 & 2347
Grootte: 3.434 m²
BIJZONDERHEDEN
Elke transactie behoeft de nadrukkelijke goedkeuring van eigenaar.
OVERIG
Bezichtigingen uitsluitend op een daartoe afgesproken tijdstip met Basis Bedrijfshuisvesting B.V.
Lageweg 25 / Steenbakkerstraat 4/a te Katwijk (2222 AG)
ALGEMEEN
Zeer courante bedrijfsruimte van in totaal ca. 1.570 m² (inclusief ca. 370 m² kantoorruimte met kantine) gelegen op bedrijventerrein ’t Heen te Katwijk op een zichtlocatie! Het onroerend goed beschikt verder over een zeer ruim verhard afsluitbaar buitenterrein -/ bouwkavel (met bouwvergunning) van ca. 1.525 m², welke ontsloten is via zowel de Lageweg als de Steenbakkerstraat. Het geheel is gesitueerd op een perceel grond van ca. 3.434 m².
De bedrijfsruimte beschikt onder andere over een zwaar belastbaar asfalt betonnen vloer (vloerbelasting 2.000 kg/m²), vrije hoogte van 7,5 meter, heaters, elektrisch bedienbare overheaddeuren en kraanbanen (5.000 kg). De kantoorruimte beschikt met name op begane grond en eerste verdieping over een ‘turn key’ opleveringsniveau. Het buitenterrein is afsluitbaar middels een hekwerk en is verhard middels stelconplaten.
In de directe omgeving zijn onder andere Supermarkt Albert Heijn, Boels, Toolstation en Gamma gevestigd.
Bouwjaar: omstreeks 1977.
BEREIKBAARHEID
Het geheel is per eigen vervoer goed bereikbaar via de Rijksweg A44 alsmede de Provinciale weg N206.
Bereikbaarheid per openbaar vervoer is als goed te kenmerken. Diverse bushalten bevinden zich in de directe omgeving van het object, waarvan één aan de overkant van de straat.
LOCATIE / LIGGING
Bedrijventerrein
LOCATIE / VOORZIENINGEN
Snelwegafrit
Op 4000 m tot 5000 m
Afstand tot NS Station
Op 5000 m of meer
Winkel voorziening
Op minder dan 500 m
OPPERVLAKTE / INDELING
De bedrijfsruimte heeft in totaal een oppervlakte van ca. 1.570 m² en is als volgt ingedeeld:
Begane grond:
Bedrijfsruimte: ca. 1.200 m²
Kantoorruimte: ca. 90 m²
Eerste verdieping:
Kantoorruimte: ca. 135 m²
Tweede verdieping:
Kantoorruimte: ca. 145 m²
Verder beschikt het onroerend goed over een zeer ruim verhard afsluitbaar buitenterrein -/ bouwkavel (met
bouwvergunning) van ca. 1.525 m²,
PARKEERMOGELIJKHEDEN
Het object beschikt over vijf parkeerplaatsen aan de voorzijde alsmede over een zeer ruim (parkeer) terrein aan de achterzijde.
OPLEVERINGSNIVEAU
Het onroerend goed wordt opgeleverd in de huidige staat en beschikt onder andere over:
Bedrijfsruimte
- vloerbelasting 2.000 kg/m²
- elektrisch bedienbare overheaddeuren
- zwaar belastbaar asfalt betonnen vloer
- vrije hoogte 7,5 meter
- heaters
- krachtstroom
- verlichtingsarmaturen
- kraanbanen (5.000 kg)
- toiletten
Kantoor
- systeemplafond met verlichtingsarmaturen
- afgewerkte vloeren
- scheidingswanden
- cv-verwarming
- kabelgoten
- toiletten
- kantine met pantry
KOOPSOM
€ 2.595.000,00 k.k.
OMZETBELASTING
Het betreft hier een niet met BTW belaste verkoop.
AANVAARDING
In overleg.
COURTAGE
Mocht door bemiddeling van Basis Bedrijfshuisvesting B.V. een transactie tot stand komen, zult u hiervoor geen kosten of courtage verschuldigd zijn.
KADASTRALE GEGEVENS
Gemeente: Katwijk
Sectie: C
Nummer: 1312 & 2347
Grootte: 3.434 m²
BIJZONDERHEDEN
Elke transactie behoeft de nadrukkelijke goedkeuring van eigenaar.
OVERIG
Bezichtigingen uitsluitend op een daartoe afgesproken tijdstip met Basis Bedrijfshuisvesting B.V.
Features
Transfer of ownership
- Asking price
- € 2,595,000 kosten koper
- Listed since
-
- Status
- Available
- Acceptance
- Available in consultation
Construction
- Main use
- Industrial unit
- Building type
- Resale property
- Year of construction
- 1977
Surface areas
- Area
- 1,570 m²
- Industrial unit area
- 1,570 m²
- Clearance
- 7.5 m
- Maximum load
- 2,000 kg/m²
- Plot size
- 3,434 m²
Layout
- Facilities
- Overhead doors, three-phase electric power, heater, toilet and pantry
Energy
- Energy label
- Not available
Surroundings
- Location
- Business park
- Accessibility
- Dutch Railways Intercity station in 5000 m or more and motorway exit in 4000 m to 5000 m
Parking
- Parking spaces
- 5 uncovered parking spaces
NVM real estate agent
Photos

















































Floorplan
Begane grond HAL

Begane grond

Verdieping 1

Verdieping 2
