Braamweg 3 4371 EN Koudekerke
€ 750 p/mo.
Description
NIEUWE REPRESENTATIEVE BEDRIJFSUNITS Braamweg te Koudekerke
Aerssens & Partners makelaars biedt namens onze opdrachtgever aan 4 nieuwe bedrijfsunits gelegen aan de Braamweg te Koudekerke.
Deze nieuwe units worden einde van dit jaar opgeleverd
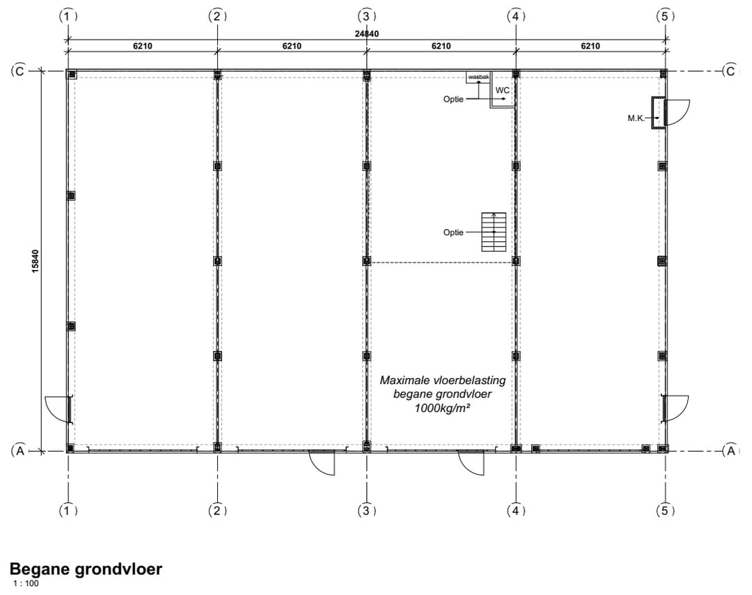
De begane grond heeft een BVO van ca. 100 m². Optioneel kan een verdiepingsvloer gerealiseerd kan worden.
Voor alle units geldt:
- Betonnen begane grondvloer 1000 kg/m2.
- alle units worden voorzien van geïsoleerde funderingsbalen
- Daken geschikt voor zonnepanelen.
- Geïsoleerde wanden en daken.
- Alle units voorzien van elektra met een hoofdmeterkast en met nutsvoorzieningen via tussenmeters voor
elektrisch en water (incl). 3 x 25 Ampère
- Overheaddeur.
- Mogelijkheid tot inbouw van toilet
- Parkeren kan op het terrein voor de unit. Zie plattegrond.
- Kunststof kozijnen optioneel na toekenning vergunning gemeente Veere
Buitenterrein:
Het terrein voor en naast de unit is verhard met bestrating.
Het voor- en zijterrein (indien van toepassing) behoort bij de te verhuren bedrijfsruimtes. De rijbaan in het midden van het totale perceel is voor algemeen gebruik en dient te allen tijde vrij van auto’s te zijn. In de bestrating zullen de nodige straatkolken worden aangebracht.
Aanvang en oplevering:
De units worden nu gebouwd.
De huurprijzen per unit zijn € 750,- excl. btw (basis voor unit zonder verdiepingsvloer)
Braamweg 3a (hoekunit) VERHUURD
Braamweg 3b (middenunit)
Braamweg 3c (middenunit)
Braamweg 3d (hoekunit) VERHUURD
daarnaast nog ca 170 m² buitenterrein voor opslag te huur.
Tekening:
Zie bijgevoegde tekeningen met gevels en plattegronden.
Het bestemmingsplan laat een diversiteit aan bedrijven toe. De bedrijfsunits zijn ideaal voor diverse sectoren, waaronder productie, logistiek, handel, dienstverlening en nog veel meer. Met deze vloeroppervlaktes en flexibele indelings-mogelijkheden bieden de units voldoende ruimte voor jouw bedrijfsactiviteiten, al dan niet in combinatie met een kantoor wat in ondergeschikte mate aanwezig mag zijn.
Ben je op zoek naar een moderne en functionele bedrijfsruimte van eerste klas kwaliteit voor jouw onderneming? Aan de Braamweg in Koudekerke zijn gloednieuwe bedrijfsunits die de ideale uitvalsbasis vormen voor jouw succesvolle bedrijf in aanbouw.
Deze bedrijfsunits zijn van hoge kwaliteit.
Standaard hebben de begane grondvloeren een draagkracht van 1.000 kg/m², hebben geïsoleerde wanden en daken en zijn voorzien van sectionaaldeuren. Alle units worden aangesloten op elektra en beschikken over een meterkast met nutsvoorzieningen en met elektra voorzien van een tussenmeter naar de units krachtstroom (3 x 25 Ampère) en mogelijkheid voor water en sanitair.
De huurprijs is exclusief kosten voor onder meer gas, water en elektra, alsmede eventuele gebruikers gerelateerde belastingen als baatbelasting, precario e.d.
Gebruik: Het gehuurde mag uitsluitend gebruikt worden voor bedrijfsdoeleinden. De vestiging van detailhandelsbedrijven, horecabedrijven en zelfstandige kantoorvestigingen en autobedrijven is niet toegestaan.
In de huurovereenkomst zal het gebruik nader worden gespecificeerd en voor partijen bindend worden vastgelegd.
Prijspeil huurprijs: 01-11-2025
Servicekosten: Servicekosten zijn niet van toepassing.
Energiekosten: Energiekosten zullen door de toeleverende bedrijven rechtstreeks bij huurder in rekening worden gebracht.
Huurcontract: Alle tussen partijen overeengekomen afspraken worden vastgelegd in een huurovereenkomst volgens het laatste model van de Raad Onroerende Zaken betrekking hebbende op kantoorruimte en andere bedrijfsruimte in de zin van art. 7:230a BW. De bijbehorende algemene bepalingen maken hiervan onlosmakelijk deel uit.
Huuringangsdatum: In overleg
Duur contract: 5 jaar, andere termijnen in nader overleg.
Verlenging: Indien de huurovereenkomst niet of niet tijdig is opgezegd wordt de huurovereenkomst automatisch verlengd voor een periode van 5 jaar.
Beëindiging: Beëindiging van de huurovereenkomst is mogelijk tegen het einde van een huurtermijn, met inachtneming van een opzegtermijn van 12 maanden. Opzegging dient schriftelijk per aangetekend schrijven te geschieden.
Huurprijsbetaling: De betalingsverplichting van huurder bestaat uit de huurprijs en de hierover verschuldigde omzetbelasting. De betaling dient per kwartaal voorafgaand aan de betreffende huurperiode te worden voldaan.
Huurprijsindexering: De huurprijs zal jaarlijks voor het eerst 1 jaar na ingangsdatum van de huurovereenkomst worden geïndexeerd op basis van het consumenten prijsindex-cijfer (CPI) reeks Alle Huishoudens. Deze gegevens worden gepubliceerd door het Centraal Bureau voor de Statistiek.
Omzetbelasting: Conform het gehanteerde model van huurovereenkomst, opteren partijen voor een met BTW belaste verhuur, waarbij huurder verklaart dat huurder het gehuurde voor tenminste 90% blijvend zal gebruiken of laten gebruiken voor prestaties die recht geven op aftrek van BTW.
Indien terzake van de BTW een volmacht moet worden afgegeven door huurder, zal hij deze binnen 2 maanden na ingangsdatum van de huurovereenkomst in het bezit stellen van verhuurder/beheerder.
Indien, door een te late indiening ervan, de belastingdienst sancties oplegt, zijn de consequenties voor rekening van huurder.
Zekerheidsstelling: Door huurder dient een bankgarantie te worden verstrekt ter grootte van een kwartaalverplichting, dat wil zeggen huur inclusief servicekosten, promotiekosten en BTW als waarborg voor het nakomen van haar verplichtingen. In plaats van een bankgarantie kan ook een waarborgsom worden gestort bij verhuurder.
Opleveringsniveau: Het gehuurde wordt opgeleverd in die staat waarin het gehuurde zich per de ingangsdatum van het huurcontract bevindt.
Verhuurd wordt uitsluitend indien hier niet expliciet van is afgeweken het casco, te weten: kale bouwvloer, bouwplafond, bouwmuren, aansluitpunten voor natte groep, energiemeters en pui. Alle andere aanwezige zaken (door huurder of vorige huurders aangebracht) behoren uitdrukkelijk niet tot het gehuurde. Huurder heeft hiervoor een zelfstandige onderhouds- en/of vervangingsplicht.
Voorbehoud: Aan schrijffouten kan Aerssens & Partners makelaars niet worden gehouden. Alle gegevens zijn met zorg samengesteld. Ten aanzien van eventuele onjuistheden en/of wijzigingen kan auteur en verhuurder geen enkele aansprakelijkheid aanvaarden. Ieder voorstel is geheel vrijblijvend en onder voorbehoud van finale goedkeuring door de verhuurder/eigenaar.
Aerssens & Partners makelaars biedt namens onze opdrachtgever aan 4 nieuwe bedrijfsunits gelegen aan de Braamweg te Koudekerke.
Deze nieuwe units worden einde van dit jaar opgeleverd
De begane grond heeft een BVO van ca. 100 m². Optioneel kan een verdiepingsvloer gerealiseerd kan worden.
Voor alle units geldt:
- Betonnen begane grondvloer 1000 kg/m2.
- alle units worden voorzien van geïsoleerde funderingsbalen
- Daken geschikt voor zonnepanelen.
- Geïsoleerde wanden en daken.
- Alle units voorzien van elektra met een hoofdmeterkast en met nutsvoorzieningen via tussenmeters voor
elektrisch en water (incl). 3 x 25 Ampère
- Overheaddeur.
- Mogelijkheid tot inbouw van toilet
- Parkeren kan op het terrein voor de unit. Zie plattegrond.
- Kunststof kozijnen optioneel na toekenning vergunning gemeente Veere
Buitenterrein:
Het terrein voor en naast de unit is verhard met bestrating.
Het voor- en zijterrein (indien van toepassing) behoort bij de te verhuren bedrijfsruimtes. De rijbaan in het midden van het totale perceel is voor algemeen gebruik en dient te allen tijde vrij van auto’s te zijn. In de bestrating zullen de nodige straatkolken worden aangebracht.
Aanvang en oplevering:
De units worden nu gebouwd.
De huurprijzen per unit zijn € 750,- excl. btw (basis voor unit zonder verdiepingsvloer)
Braamweg 3a (hoekunit) VERHUURD
Braamweg 3b (middenunit)
Braamweg 3c (middenunit)
Braamweg 3d (hoekunit) VERHUURD
daarnaast nog ca 170 m² buitenterrein voor opslag te huur.
Tekening:
Zie bijgevoegde tekeningen met gevels en plattegronden.
Het bestemmingsplan laat een diversiteit aan bedrijven toe. De bedrijfsunits zijn ideaal voor diverse sectoren, waaronder productie, logistiek, handel, dienstverlening en nog veel meer. Met deze vloeroppervlaktes en flexibele indelings-mogelijkheden bieden de units voldoende ruimte voor jouw bedrijfsactiviteiten, al dan niet in combinatie met een kantoor wat in ondergeschikte mate aanwezig mag zijn.
Ben je op zoek naar een moderne en functionele bedrijfsruimte van eerste klas kwaliteit voor jouw onderneming? Aan de Braamweg in Koudekerke zijn gloednieuwe bedrijfsunits die de ideale uitvalsbasis vormen voor jouw succesvolle bedrijf in aanbouw.
Deze bedrijfsunits zijn van hoge kwaliteit.
Standaard hebben de begane grondvloeren een draagkracht van 1.000 kg/m², hebben geïsoleerde wanden en daken en zijn voorzien van sectionaaldeuren. Alle units worden aangesloten op elektra en beschikken over een meterkast met nutsvoorzieningen en met elektra voorzien van een tussenmeter naar de units krachtstroom (3 x 25 Ampère) en mogelijkheid voor water en sanitair.
De huurprijs is exclusief kosten voor onder meer gas, water en elektra, alsmede eventuele gebruikers gerelateerde belastingen als baatbelasting, precario e.d.
Gebruik: Het gehuurde mag uitsluitend gebruikt worden voor bedrijfsdoeleinden. De vestiging van detailhandelsbedrijven, horecabedrijven en zelfstandige kantoorvestigingen en autobedrijven is niet toegestaan.
In de huurovereenkomst zal het gebruik nader worden gespecificeerd en voor partijen bindend worden vastgelegd.
Prijspeil huurprijs: 01-11-2025
Servicekosten: Servicekosten zijn niet van toepassing.
Energiekosten: Energiekosten zullen door de toeleverende bedrijven rechtstreeks bij huurder in rekening worden gebracht.
Huurcontract: Alle tussen partijen overeengekomen afspraken worden vastgelegd in een huurovereenkomst volgens het laatste model van de Raad Onroerende Zaken betrekking hebbende op kantoorruimte en andere bedrijfsruimte in de zin van art. 7:230a BW. De bijbehorende algemene bepalingen maken hiervan onlosmakelijk deel uit.
Huuringangsdatum: In overleg
Duur contract: 5 jaar, andere termijnen in nader overleg.
Verlenging: Indien de huurovereenkomst niet of niet tijdig is opgezegd wordt de huurovereenkomst automatisch verlengd voor een periode van 5 jaar.
Beëindiging: Beëindiging van de huurovereenkomst is mogelijk tegen het einde van een huurtermijn, met inachtneming van een opzegtermijn van 12 maanden. Opzegging dient schriftelijk per aangetekend schrijven te geschieden.
Huurprijsbetaling: De betalingsverplichting van huurder bestaat uit de huurprijs en de hierover verschuldigde omzetbelasting. De betaling dient per kwartaal voorafgaand aan de betreffende huurperiode te worden voldaan.
Huurprijsindexering: De huurprijs zal jaarlijks voor het eerst 1 jaar na ingangsdatum van de huurovereenkomst worden geïndexeerd op basis van het consumenten prijsindex-cijfer (CPI) reeks Alle Huishoudens. Deze gegevens worden gepubliceerd door het Centraal Bureau voor de Statistiek.
Omzetbelasting: Conform het gehanteerde model van huurovereenkomst, opteren partijen voor een met BTW belaste verhuur, waarbij huurder verklaart dat huurder het gehuurde voor tenminste 90% blijvend zal gebruiken of laten gebruiken voor prestaties die recht geven op aftrek van BTW.
Indien terzake van de BTW een volmacht moet worden afgegeven door huurder, zal hij deze binnen 2 maanden na ingangsdatum van de huurovereenkomst in het bezit stellen van verhuurder/beheerder.
Indien, door een te late indiening ervan, de belastingdienst sancties oplegt, zijn de consequenties voor rekening van huurder.
Zekerheidsstelling: Door huurder dient een bankgarantie te worden verstrekt ter grootte van een kwartaalverplichting, dat wil zeggen huur inclusief servicekosten, promotiekosten en BTW als waarborg voor het nakomen van haar verplichtingen. In plaats van een bankgarantie kan ook een waarborgsom worden gestort bij verhuurder.
Opleveringsniveau: Het gehuurde wordt opgeleverd in die staat waarin het gehuurde zich per de ingangsdatum van het huurcontract bevindt.
Verhuurd wordt uitsluitend indien hier niet expliciet van is afgeweken het casco, te weten: kale bouwvloer, bouwplafond, bouwmuren, aansluitpunten voor natte groep, energiemeters en pui. Alle andere aanwezige zaken (door huurder of vorige huurders aangebracht) behoren uitdrukkelijk niet tot het gehuurde. Huurder heeft hiervoor een zelfstandige onderhouds- en/of vervangingsplicht.
Voorbehoud: Aan schrijffouten kan Aerssens & Partners makelaars niet worden gehouden. Alle gegevens zijn met zorg samengesteld. Ten aanzien van eventuele onjuistheden en/of wijzigingen kan auteur en verhuurder geen enkele aansprakelijkheid aanvaarden. Ieder voorstel is geheel vrijblijvend en onder voorbehoud van finale goedkeuring door de verhuurder/eigenaar.
Features
Transfer of ownership
- Rental price
- € 750 per month
- Listed since
-
- Status
- Available
- Acceptance
- Available in consultation
Construction
- Main use
- Industrial unit
- Building type
- Resale property
- Year of construction
- 2025
Surface areas
- Area
- 98 m²
- Industrial unit area
- 98 m²
- Clearance
- 5.5 m
- Clear span
- 6 m
- Maximum load
- 1,000 kg/m²
Layout
- Facilities
- Overhead doors and concrete floor
Energy
- Energy label
- Not required
Surroundings
- Location
- Business park and rural area
NVM real estate agent
Photos