Poseidonweg 17 8239 DK Lelystad
- New
€ 52,000 p/mo.

Description
Dit bedrijfspand biedt een unieke combinatie van zichtbaarheid, bereikbaarheid en hoogwaardige faciliteiten. Perfect voor bedrijven die een centrale en representatieve locatie zoeken in Flevoland.
Fantastische mogelijkheid om reclame te maken voor uw bedrijf omdat het pand direct gelegen is langs de A6!
Ligging:
Bedrijventerrein Flevopoort is een van de jongste en meest moderne bedrijventerreinen aan de zuidkant van Lelystad, direct gelegen aan de rijksweg A6. Dankzij de nabijheid van deze belangrijke snelweg is het terrein uitstekend bereikbaar.
Belangrijke pluspunten:
- Goed gelegen en zichtbaar gebouw
- Representatieve zakelijke uitstraling
- Zichtlocatie langs de snelweg A6, ideaal voor naamsbekendheid
- Afrit aan de A6 waardoor eenvoudig bereikbaar
- Zeer ruime parkeergelegenheid op eigen terrein voor personeel en bezoekers
- 5 Loadingdocks voor efficiënte logistieke processen
- 2 toegangspoorten voor terrein waardoor efficiënte routing mogelijk is voor vrachtwagens
- Uitstekend onderhouden pand
- Schitterende patio met veel licht binnen de kantoorruimtes
- Volledig functionerende bedrijfskeuken met extra pantry’s op kantooretages en in bedrijfshal
- Lift aanwezig
- Vrije hoogte in bedrijfshal ca 8 meter
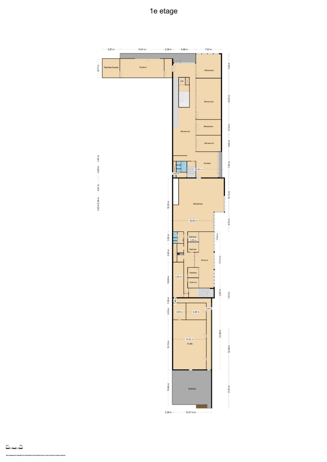
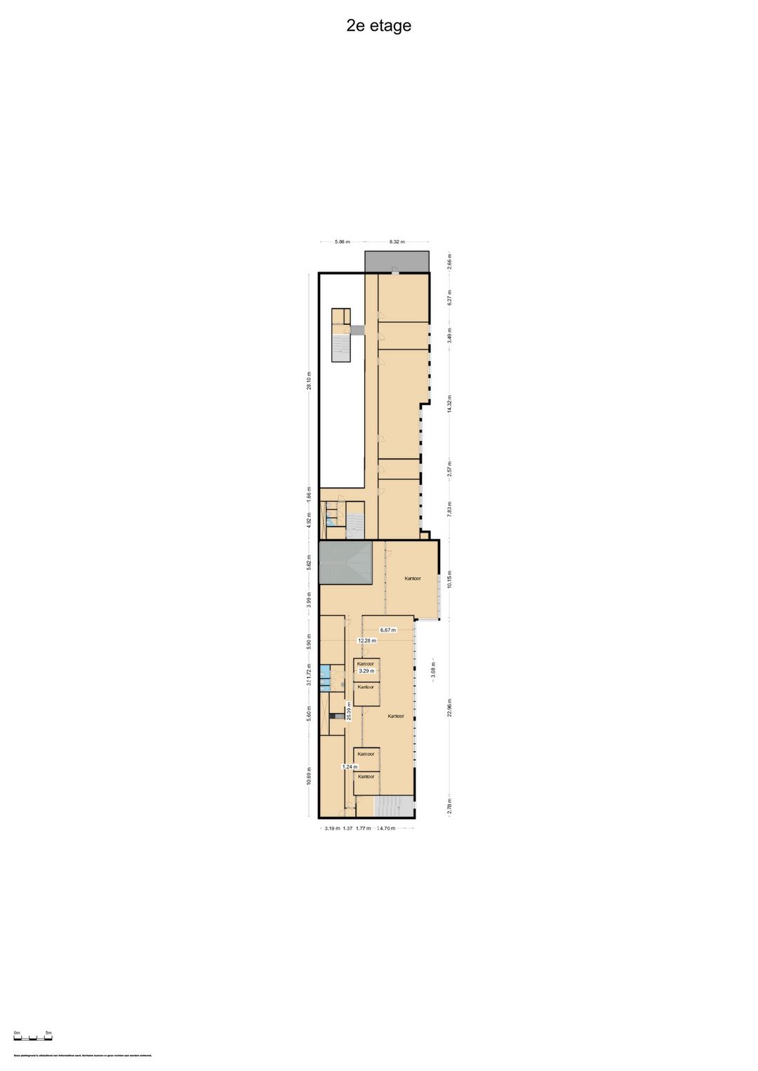
De beschikbare oppervlakte bedraagt totaal 8.884 m2 VVO bestaat uit:
Begane grond:
Bedrijfsruimte bestaande uit 3 aaneengesloten bedrijfshallen van totaal ca. 5.696 m2 VVO met 5 loading docks
Entresol in bedrijfshal ca. 120 m2 VVO
Studio ca 58 m2 VVO
Kantoorruimtes met bedrijfskantine ca. 986 m2 VVO
Eerste verdieping:
Kantoorruimtes ca 1.066 VVO
Studio's ca. 252 m2 VVO
Tweede verdieping:
Kantoorruimtes ca. 706 m2 VVO
Buitenterrein / Parkeerplaatsen
Het pand is gelegen op een kavel ter grootte van 15.215 m2 waardoor het voorzien is van een groot buitenterrein rondom het pand.
Het terrein is omheind en afsluitbaar met 2 schuifpoorten.
Op dit moment zijn er ca 50 parkeerplaatsen op eigen terrein.
Er is nog ruim voldoende terrein aanwezig om dit aantal parkeerplaatsen flink uit te breiden.
Vloerbelasting
Bedrijfshal max 3.000 kg/m2
Kantoren max 400 kg/m2
Energielabel
Het pand heeft een energielabel C
Huurprijs
€ 52.000,- per maand exclusief BTW
Servicekosten
Huurder dient zelf zorg te dragen voor de onderhouds-, herstel- en vernieuwingszaken etc welke voor rekening van huurder conform artikel 11 van de bij de huurovereenkomst behorende Algemene Bepalingen
Voor rekening van huurder komen alle kosten verbonden aan de levering, het gebruik, het vastrecht en de meteropname / aansluiting in het gehuurde van gas, water en elektra.
BTW
Uitgangspunt is een met BTW belaste huur. Indien een huurder niet voldoet aan de voor belaste verhuur gestelde criteria zal de huur zodanig worden verhoogd dat het voor verhuurder ontstane financiële nadeel volledig wordt gecompenseerd.
Indexering
De huurprijs zal jaarlijks worden verhoogd op basis van de consumentenprijsindex (CPI), reeks CPI Alle huishoudens (2015 = 100), zoals wordt gepubliceerd door het Centraal Bureau voor de Statistiek (CBS).
Betaling
Per maand vooruit te voldoen.
Huurtermijn
5 jaar met opvolgende optieperioden
Opzegtermijn
12 maanden voor einde lopende huurperiode.
Zekerheidstelling
Een waarborgsom ter grootte van minimaal drie maanden huur te vermeerderen met BTW.
Over de waarborgsom wordt geen rente vergoed.
Huurovereenkomst
De huurovereenkomst zal zijn gebaseerd op het model zoals is vastgesteld door de Raad voor Onroerende Zaken (ROZ) inclusief de daarbij behorende algemene bepalingen.
Aanvaarding
In overleg
Gunning
De eigenaar en hoofdverhuurder behouden zich het recht van gunning voor.
Deze informatie is met de nodige zorgvuldigheid samengesteld door Arcuris Bedrijfsmakelaars. Er wordt onzerzijds geen enkele aansprakelijkheid aanvaard voor enige onvolledigheid, onjuistheid of anderszins, dan wel de gevolgen daarvan.
Alle opgegeven maten en oppervlakten zijn indicatief.
Fantastische mogelijkheid om reclame te maken voor uw bedrijf omdat het pand direct gelegen is langs de A6!
Ligging:
Bedrijventerrein Flevopoort is een van de jongste en meest moderne bedrijventerreinen aan de zuidkant van Lelystad, direct gelegen aan de rijksweg A6. Dankzij de nabijheid van deze belangrijke snelweg is het terrein uitstekend bereikbaar.
Belangrijke pluspunten:
- Goed gelegen en zichtbaar gebouw
- Representatieve zakelijke uitstraling
- Zichtlocatie langs de snelweg A6, ideaal voor naamsbekendheid
- Afrit aan de A6 waardoor eenvoudig bereikbaar
- Zeer ruime parkeergelegenheid op eigen terrein voor personeel en bezoekers
- 5 Loadingdocks voor efficiënte logistieke processen
- 2 toegangspoorten voor terrein waardoor efficiënte routing mogelijk is voor vrachtwagens
- Uitstekend onderhouden pand
- Schitterende patio met veel licht binnen de kantoorruimtes
- Volledig functionerende bedrijfskeuken met extra pantry’s op kantooretages en in bedrijfshal
- Lift aanwezig
- Vrije hoogte in bedrijfshal ca 8 meter
De beschikbare oppervlakte bedraagt totaal 8.884 m2 VVO bestaat uit:
Begane grond:
Bedrijfsruimte bestaande uit 3 aaneengesloten bedrijfshallen van totaal ca. 5.696 m2 VVO met 5 loading docks
Entresol in bedrijfshal ca. 120 m2 VVO
Studio ca 58 m2 VVO
Kantoorruimtes met bedrijfskantine ca. 986 m2 VVO
Eerste verdieping:
Kantoorruimtes ca 1.066 VVO
Studio's ca. 252 m2 VVO
Tweede verdieping:
Kantoorruimtes ca. 706 m2 VVO
Buitenterrein / Parkeerplaatsen
Het pand is gelegen op een kavel ter grootte van 15.215 m2 waardoor het voorzien is van een groot buitenterrein rondom het pand.
Het terrein is omheind en afsluitbaar met 2 schuifpoorten.
Op dit moment zijn er ca 50 parkeerplaatsen op eigen terrein.
Er is nog ruim voldoende terrein aanwezig om dit aantal parkeerplaatsen flink uit te breiden.
Vloerbelasting
Bedrijfshal max 3.000 kg/m2
Kantoren max 400 kg/m2
Energielabel
Het pand heeft een energielabel C
Huurprijs
€ 52.000,- per maand exclusief BTW
Servicekosten
Huurder dient zelf zorg te dragen voor de onderhouds-, herstel- en vernieuwingszaken etc welke voor rekening van huurder conform artikel 11 van de bij de huurovereenkomst behorende Algemene Bepalingen
Voor rekening van huurder komen alle kosten verbonden aan de levering, het gebruik, het vastrecht en de meteropname / aansluiting in het gehuurde van gas, water en elektra.
BTW
Uitgangspunt is een met BTW belaste huur. Indien een huurder niet voldoet aan de voor belaste verhuur gestelde criteria zal de huur zodanig worden verhoogd dat het voor verhuurder ontstane financiële nadeel volledig wordt gecompenseerd.
Indexering
De huurprijs zal jaarlijks worden verhoogd op basis van de consumentenprijsindex (CPI), reeks CPI Alle huishoudens (2015 = 100), zoals wordt gepubliceerd door het Centraal Bureau voor de Statistiek (CBS).
Betaling
Per maand vooruit te voldoen.
Huurtermijn
5 jaar met opvolgende optieperioden
Opzegtermijn
12 maanden voor einde lopende huurperiode.
Zekerheidstelling
Een waarborgsom ter grootte van minimaal drie maanden huur te vermeerderen met BTW.
Over de waarborgsom wordt geen rente vergoed.
Huurovereenkomst
De huurovereenkomst zal zijn gebaseerd op het model zoals is vastgesteld door de Raad voor Onroerende Zaken (ROZ) inclusief de daarbij behorende algemene bepalingen.
Aanvaarding
In overleg
Gunning
De eigenaar en hoofdverhuurder behouden zich het recht van gunning voor.
Deze informatie is met de nodige zorgvuldigheid samengesteld door Arcuris Bedrijfsmakelaars. Er wordt onzerzijds geen enkele aansprakelijkheid aanvaard voor enige onvolledigheid, onjuistheid of anderszins, dan wel de gevolgen daarvan.
Alle opgegeven maten en oppervlakten zijn indicatief.
Features
Transfer of ownership
- Rental price
- € 52,000 per month
- Listed since
-
- Status
- Available
- Acceptance
- Available in consultation
Construction
- Main use
- Industrial unit
- Building type
- Resale property
- Year of construction
- 2004
Surface areas
- Area
- 8,884 m² (units from 5,696 m²)
- Industrial unit area
- 5,696 m²
- Office area
- 3,188 m²
- Clearance
- 8 m
- Clear span
- 22 m
- Maximum load
- 3,000 kg/m²
- Plot size
- 15,215 m²
Layout
- Number of floors
- 3 floors
- Facilities
- Peak cooling, rooflights, loading bays, overhead doors, three-phase electric power, concrete floor, heater, toilet, pantry, built-in fittings, elevators and windows can be opened
Energy
- Energy label
- C 1.26
Surroundings
- Location
- Business park and office park
Parking
- Parking spaces
- 50 uncovered parking spaces
Real estate agent
Photos



















































Floorplan
2e etage

1e etage

begane grond
