Edisonstraat 16-05 4004 JL Tiel
€ 1,250 p/mo.

Description
BEDRIJFSRUIMTE HELEMAAL KANT EN KLAAR VOOR EEN GARAGEBEDRIJF.
Op een goed bereikbare locatie op bedrijventerrein Kellen in Tiel bieden wij deze representatieve hoekunit aan, bestaande uit een bedrijfsruimte met kantoor en eigen voorzieningen. De unit is uitstekend geschikt voor ondernemers die op zoek zijn naar een praktische en nette bedrijfsruimte met goede uitstraling en parkeergelegenheid. Het terrein kent diverse productiebedrijven, handelsbedrijven en autobedrijven.
INDELING:
Begane grond: entree middels loopdeur of elektrisch bedienbare overheaddeur, meterkast met een aansluiting van 3*25A en een aansluiting voor glasvezel. Onder de trap is een toilet aanwezig. De begane grond beschikt over een sparing in het plafond, geschikt voor de plaatsing van een autobrug. Trap naar de verdieping
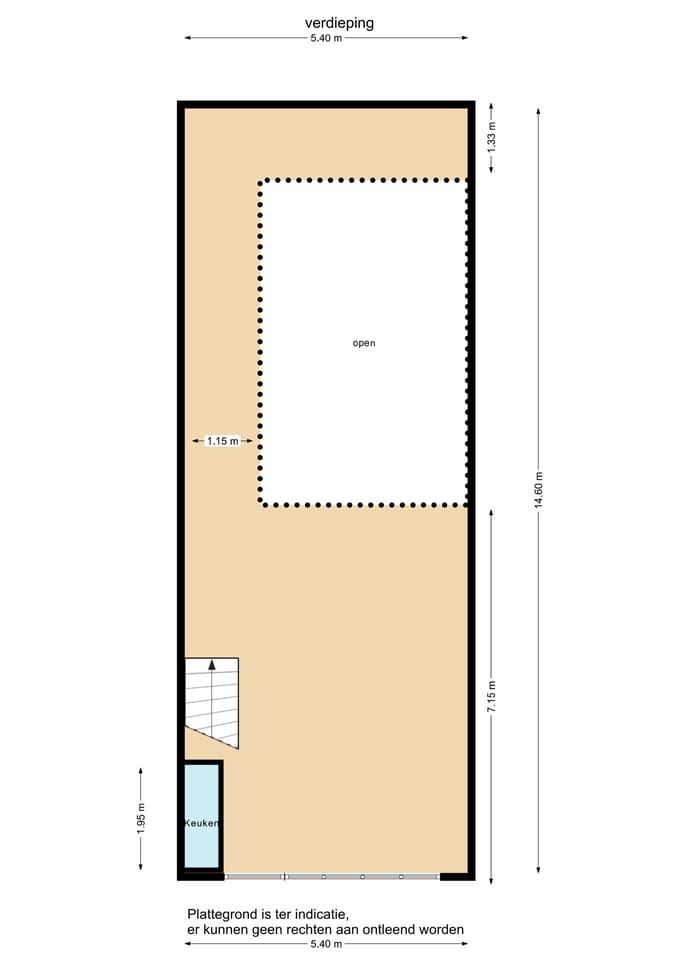
Verdieping: kantoorruimte met grote raampartij en voorzien van een keuken.
ALGEMENE INFORMATIE:
- bouwjaar circa 2020
- bedrijfsruimte circa 81 m² v.v.o.
- sparing voor autobrug circa 4 x 6 m
- kantoorruimte circa 56 m² v.v.o.
- vrije hoogte bedrijfsruimte circa 2,9 m
- vloerbelasting circa 1.500 kg/m²
- doorrijhoogte circa 2,7 m
- stroom 3 x 25A
BESTEMMING:
Voor deze bedrijfsruimte geldt een bestemming 'Bedrijventerrein' t/m categorie 5.1 en voor perifere detailhandel. Deze bestemming is bestemd voor:
- handel en bedrijf in de categorieën 1 tot en met 5.1 deel uitmakende van de Staat van bedrijfsactiviteiten. Deze Staat van bedrijfsactiviteiten is te raadplegen via o.a.
Twijfelt u of de bestemming voldoet bij uw ondernemingsplannen? Neemt u dan contact op met het omgevingsloket van de gemeente Tiel.
PARKEREN:
Er zijn twee eigen parkeerplaatsen beschikbaar.
BEREIKBAARHEID:
Het pand ligt op bedrijventerrein Kellen, een dynamisch en goed verzorgd bedrijventerrein met een mix van productie-, handels- en dienstverlenende bedrijven.
De bereikbaarheid is uitstekend – de op- en afritten van de A15 (Rotterdam – Nijmegen) liggen op slechts enkele minuten rijden, en ook het centrum van Tiel is eenvoudig bereikbaar.
HUURPRIJS & PERIODE:
- huurprijs € 1.250,- per maand
- huurtermijn: 5 & 5 jaar
- jaarlijkse indexatie volgens de CPI index alle huishoudens (2015 = 100)
- beschikbaar per direct
- opzegtermijn: 1 jaar voor het einde van een huurperiode
Huurovereenkomst conform ROZ model
Zekerheidstelling: Waarborgsom ter grootte van 3 maanden huurbetalingsverplichting vermeerderd met omzetbelasting.
BIJZONDERHEDEN:
- goed bereikbaar
- zeer geschikt voor auto onderhoud/garagebedrijven
- de begane grond beschikt over een sparing in het plafond, geschikt voor de plaatsing van een autobrug
Op een goed bereikbare locatie op bedrijventerrein Kellen in Tiel bieden wij deze representatieve hoekunit aan, bestaande uit een bedrijfsruimte met kantoor en eigen voorzieningen. De unit is uitstekend geschikt voor ondernemers die op zoek zijn naar een praktische en nette bedrijfsruimte met goede uitstraling en parkeergelegenheid. Het terrein kent diverse productiebedrijven, handelsbedrijven en autobedrijven.
INDELING:
Begane grond: entree middels loopdeur of elektrisch bedienbare overheaddeur, meterkast met een aansluiting van 3*25A en een aansluiting voor glasvezel. Onder de trap is een toilet aanwezig. De begane grond beschikt over een sparing in het plafond, geschikt voor de plaatsing van een autobrug. Trap naar de verdieping
Verdieping: kantoorruimte met grote raampartij en voorzien van een keuken.
ALGEMENE INFORMATIE:
- bouwjaar circa 2020
- bedrijfsruimte circa 81 m² v.v.o.
- sparing voor autobrug circa 4 x 6 m
- kantoorruimte circa 56 m² v.v.o.
- vrije hoogte bedrijfsruimte circa 2,9 m
- vloerbelasting circa 1.500 kg/m²
- doorrijhoogte circa 2,7 m
- stroom 3 x 25A
BESTEMMING:
Voor deze bedrijfsruimte geldt een bestemming 'Bedrijventerrein' t/m categorie 5.1 en voor perifere detailhandel. Deze bestemming is bestemd voor:
- handel en bedrijf in de categorieën 1 tot en met 5.1 deel uitmakende van de Staat van bedrijfsactiviteiten. Deze Staat van bedrijfsactiviteiten is te raadplegen via o.a.
Twijfelt u of de bestemming voldoet bij uw ondernemingsplannen? Neemt u dan contact op met het omgevingsloket van de gemeente Tiel.
PARKEREN:
Er zijn twee eigen parkeerplaatsen beschikbaar.
BEREIKBAARHEID:
Het pand ligt op bedrijventerrein Kellen, een dynamisch en goed verzorgd bedrijventerrein met een mix van productie-, handels- en dienstverlenende bedrijven.
De bereikbaarheid is uitstekend – de op- en afritten van de A15 (Rotterdam – Nijmegen) liggen op slechts enkele minuten rijden, en ook het centrum van Tiel is eenvoudig bereikbaar.
HUURPRIJS & PERIODE:
- huurprijs € 1.250,- per maand
- huurtermijn: 5 & 5 jaar
- jaarlijkse indexatie volgens de CPI index alle huishoudens (2015 = 100)
- beschikbaar per direct
- opzegtermijn: 1 jaar voor het einde van een huurperiode
Huurovereenkomst conform ROZ model
Zekerheidstelling: Waarborgsom ter grootte van 3 maanden huurbetalingsverplichting vermeerderd met omzetbelasting.
BIJZONDERHEDEN:
- goed bereikbaar
- zeer geschikt voor auto onderhoud/garagebedrijven
- de begane grond beschikt over een sparing in het plafond, geschikt voor de plaatsing van een autobrug
Features
Transfer of ownership
- Rental price
- € 1,250 per month
- Listed since
-
- Status
- Available
- Acceptance
- Available immediately
Construction
- Main use
- Industrial unit
- Building type
- Resale property
- Year of construction
- After 2020
Surface areas
- Area
- 137 m²
- Industrial unit area
- 81 m²
- Office area
- 56 m²
- Clearance
- 2.9 m
- Clear span
- 5 m
- Maximum load
- 1,500 kg/m²
Layout
- Number of floors
- 1 floor
- Facilities
- Overhead doors, three-phase electric power, concrete floor, toilet and pantry
Energy
- Energy label
- Not available
Surroundings
- Location
- Business park
- Accessibility
- Bus stop in 500 m to 1000 m, Dutch Railways Intercity station in 4000 m to 5000 m and motorway exit in 500 m to 1000 m
Parking
- Parking spaces
- 2 uncovered parking spaces
NVM real estate agent
Photos



















