De Run 4225 5503 LM Veldhoven
€ 435,000 /yr
Description
Locatie:
Het bedrijfsobject is gelegen op een uitstekend bereikbare locatie op bedrijventerrein De Run in Veldhoven en het bedrijfspand bevindt zich aan De Run 4225. De locatie biedt directe aansluiting op de N2/A2 en ligt op korte afstand van Eindhoven Airport en het centrum van Eindhoven. In de nabije omgeving zijn diverse toonaangevende bedrijven gevestigd, waaronder ASML, Fedex, Promese en Enexis.
Bereikbaarheid:
Het bedrijfsobject aan de Run 4225 is gunstig gelegen op bedrijventerrein De Run in Veldhoven, midden in de Brainportregio Eindhoven. De locatie bevindt zich nabij ASML, het Máxima Medisch Centrum en diverse andere toonaangevende bedrijven en voorzieningen. Dankzij de directe aansluiting op de A2 en A67 is het pand uitstekend bereikbaar met de auto, terwijl bushaltes op loopafstand zorgen voor een goede verbinding met Eindhoven Centraal Station en omliggende plaatsen. Daarnaast is er ruime parkeergelegenheid op eigen terrein.
OBJECTGEGEVENS
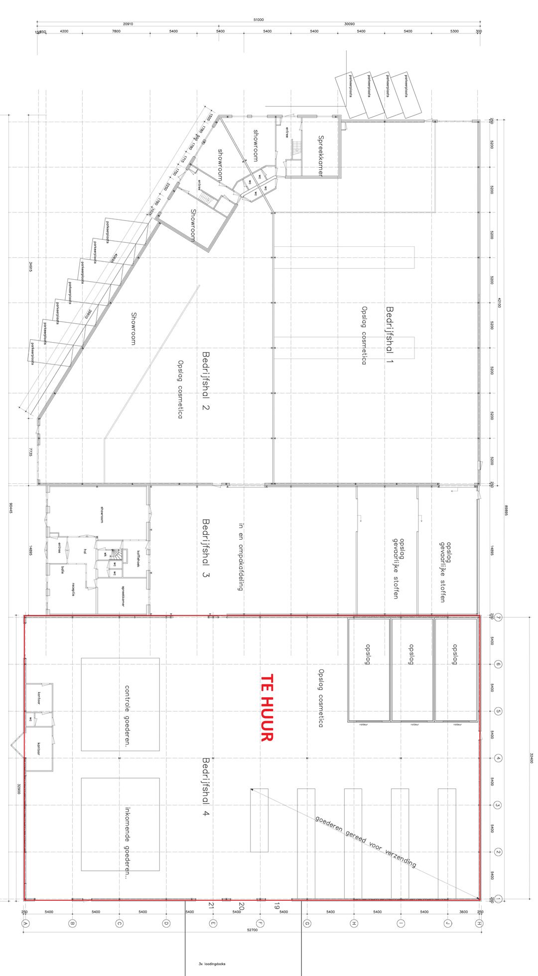
Beschikbare oppervlakte voor de verhuur:
Circa 5.060 m² bedrijfsruimte - begane grond
Circa 213 m² kantoorruimte - begane grond
Circa 550 m² kantoorruimte - 1e verdieping
Circa 570 m² overkapping - begane grond
Circa 1.100 m² buitenterrein gelegen rondom het bedrijfsgebouw
Parkeergelegenheid:
30 parkeerplaatsen beschikbaar gelegen op eigen terrein.
Opleveringsniveau bedrijfsruimte:
• vrije hoogte van circa 6 meter
• maximaal toelaatbare vloerbelasting van circa 1.500 kg / m²
• 5 loading docks
• 4 elektrisch bedienbare overheaddeuren
• verschillende overheaddeuren zijn voorzien van een loopdeur
• krachtstroomaansluiting aanwezig
• monolithisch afgewerkte betonvloer
• verlichting middels TL-opbouwarmaturen
• daglichttoetreding middels raampartijen
• alarminstallatie*
• brandblusvoorzieningen*
• gescheiden dames- en heren toiletgroep met voorportaal voorzien van fonteintje
• verwarming middels direct gestookte heaters
• 2.500 KG kraanbaan* (ter overname)
Zaken aangegeven met "*" worden eenmalig en omniet door Verhuurder aan Huurder ter beschikking gesteld. Eventuele reparatie, onderhoud en-/of vervangen van deze zaken komt voor rekening en risico van Huurder.
Opleveringsniveau kantoorruimte:
• verlichting middels inbouwarmaturen
• daglichttoetreding middels raampartijen
• te openen ramen middels draai- / kiep systeem
• kozijnen voorzien van dubbele beglazing
• wand kabelgoten voorzien van data- en elektra aansluitingen
• vloerstoffering gedeeltelijk tapijt tegels en gedeeltelijk tegels
• huidige kamerindeling middels metal stud- en systeemwanden
• alarminstallatie*
• brandblusvoorzieningen*
• gescheiden dames- en heren toiletgroep met voorportaal voorzien van fonteintje
• pantry voorzien van boven- en onderkasten, spoelbak en oven* (ter overname)
• verwarming middels Cv-installatie met radiatoren en thermostaatkranen
• mechanische ventilatie
• topkoeling
Zaken aangegeven met "*" worden eenmalig en omniet door Verhuurder aan Huurder ter beschikking gesteld. Eventuele reparatie, onderhoud en-/of vervangen van deze zaken komt voor rekening en risico van Huurder.
Opleveringsniveau terrein:
• 100% bestraat met klinkers
• omheind middels hekwerk
• afsluitbaar middels rolpoort
Aanvaarding:
Per direct.
Energielabel:
De kantoorruimte beschikt over het zeer gunstige energielabel A+ welke geldig is tot 19-10-2031.
Hiermee voldoet de kantoorruimte reeds ruimschoots aan de overheidsdoelstellingen waarbij vanaf 2023 alle bedrijfsgebouwen die naast de industriefunctie één of meer gebruiksfuncties hebben zoals kantoorruimte (waarbij het gebruiksoppervlakte groter is dan 50 m²) energielabelplichtig zijn.
Kadastrale gegevens De Run 4225 te Veldhoven:
Gemeente: Veldhoven
Sectie: K
Perceelnummer: 1918
Oppervlakte: 17.537 m² (gedeeltelijk)
Bestemmingsplan:
Het bestemmingsplan van dit bedrijfsgebouw aan De Run 4225 te Veldhoven op Bedrijventerrein De Run is op te vragen via één van onze bedrijfsmakelaars bij Bossers & Fitters Bedrijfshuisvesting B.V. en/of via de website van het omgevingsloket.
Bouwjaar:
1992
HUURGEGEVENS
Aanvangshuurprijs:
€ 435.000,00 per jaar te vermeerderen met de geldende B.T.W.
Voorschot servicekosten:
Nader overeen te komen.
Huurtermijn:
Vijf (5) jaren.
Verlengingstermijn:
Telkens met vijf (5) jaar.
Opzegtermijn:
Twaalf (12) maanden voorafgaand aan de expiratiedatum.
Huurindexering:
De huurprijs van dit bedrijfspand aan De Run 4225 te Veldhoven zal jaarlijks worden geïndexeerd, voor het eerst één jaar na huuringangsdatum, op basis van het maandprijsindexcijfer volgens de consumentenprijsindex CPI-alle huishoudens (2015=100), dan wel meest recente tijdsbasis, gepubliceerd door het Centraal Bureau voor de statistiek (CBS).
Zekerheidsstelling:
Bankgarantie of waarborgsom ter grootte van drie (3) maanden huur inclusief eventuele servicekosten en B.T.W.
Huurbetaling:
Per kwartaal vooruit te voldoen.
B.T.W.:
Indien huurder niet aan het “90% criterium” (aandeel belaste prestaties) voldoet, zal er van rechtswege sprake zijn van omzetbelasting vrijgestelde verhuur. Als dan wordt de overeengekomen kale huurprijs, exclusief omzetbelasting, zodanig verhoogd, dat het voor verhuurder ontstane financiële nadeel wordt gecompenseerd.
Huurcontract:
R.O.Z.-model, huurovereenkomst kantoorruimte en andere bedrijfsruimte in de zin van artikel 7:230a BW met de benodigde aanvullingen.
Meer informatie:
Wenst u meer informatie over dit beschikbare bedrijfsgebouw welke te huur is aan De Run 4225 te Veldhoven, neem dan vrijblijvend contact op met één van de bedrijfsmakelaars bij Bossers & Fitters Bedrijfshuisvesting B.V.
Onze bedrijfsmakelaar Pim van der Werff is van alle beschikbare informatie op de hoogte betreffende de verhuur van dit bedrijfsgebouw aan De Run 4225 te Veldhoven.
Het bedrijfsobject is gelegen op een uitstekend bereikbare locatie op bedrijventerrein De Run in Veldhoven en het bedrijfspand bevindt zich aan De Run 4225. De locatie biedt directe aansluiting op de N2/A2 en ligt op korte afstand van Eindhoven Airport en het centrum van Eindhoven. In de nabije omgeving zijn diverse toonaangevende bedrijven gevestigd, waaronder ASML, Fedex, Promese en Enexis.
Bereikbaarheid:
Het bedrijfsobject aan de Run 4225 is gunstig gelegen op bedrijventerrein De Run in Veldhoven, midden in de Brainportregio Eindhoven. De locatie bevindt zich nabij ASML, het Máxima Medisch Centrum en diverse andere toonaangevende bedrijven en voorzieningen. Dankzij de directe aansluiting op de A2 en A67 is het pand uitstekend bereikbaar met de auto, terwijl bushaltes op loopafstand zorgen voor een goede verbinding met Eindhoven Centraal Station en omliggende plaatsen. Daarnaast is er ruime parkeergelegenheid op eigen terrein.
OBJECTGEGEVENS
Beschikbare oppervlakte voor de verhuur:
Circa 5.060 m² bedrijfsruimte - begane grond
Circa 213 m² kantoorruimte - begane grond
Circa 550 m² kantoorruimte - 1e verdieping
Circa 570 m² overkapping - begane grond
Circa 1.100 m² buitenterrein gelegen rondom het bedrijfsgebouw
Parkeergelegenheid:
30 parkeerplaatsen beschikbaar gelegen op eigen terrein.
Opleveringsniveau bedrijfsruimte:
• vrije hoogte van circa 6 meter
• maximaal toelaatbare vloerbelasting van circa 1.500 kg / m²
• 5 loading docks
• 4 elektrisch bedienbare overheaddeuren
• verschillende overheaddeuren zijn voorzien van een loopdeur
• krachtstroomaansluiting aanwezig
• monolithisch afgewerkte betonvloer
• verlichting middels TL-opbouwarmaturen
• daglichttoetreding middels raampartijen
• alarminstallatie*
• brandblusvoorzieningen*
• gescheiden dames- en heren toiletgroep met voorportaal voorzien van fonteintje
• verwarming middels direct gestookte heaters
• 2.500 KG kraanbaan* (ter overname)
Zaken aangegeven met "*" worden eenmalig en omniet door Verhuurder aan Huurder ter beschikking gesteld. Eventuele reparatie, onderhoud en-/of vervangen van deze zaken komt voor rekening en risico van Huurder.
Opleveringsniveau kantoorruimte:
• verlichting middels inbouwarmaturen
• daglichttoetreding middels raampartijen
• te openen ramen middels draai- / kiep systeem
• kozijnen voorzien van dubbele beglazing
• wand kabelgoten voorzien van data- en elektra aansluitingen
• vloerstoffering gedeeltelijk tapijt tegels en gedeeltelijk tegels
• huidige kamerindeling middels metal stud- en systeemwanden
• alarminstallatie*
• brandblusvoorzieningen*
• gescheiden dames- en heren toiletgroep met voorportaal voorzien van fonteintje
• pantry voorzien van boven- en onderkasten, spoelbak en oven* (ter overname)
• verwarming middels Cv-installatie met radiatoren en thermostaatkranen
• mechanische ventilatie
• topkoeling
Zaken aangegeven met "*" worden eenmalig en omniet door Verhuurder aan Huurder ter beschikking gesteld. Eventuele reparatie, onderhoud en-/of vervangen van deze zaken komt voor rekening en risico van Huurder.
Opleveringsniveau terrein:
• 100% bestraat met klinkers
• omheind middels hekwerk
• afsluitbaar middels rolpoort
Aanvaarding:
Per direct.
Energielabel:
De kantoorruimte beschikt over het zeer gunstige energielabel A+ welke geldig is tot 19-10-2031.
Hiermee voldoet de kantoorruimte reeds ruimschoots aan de overheidsdoelstellingen waarbij vanaf 2023 alle bedrijfsgebouwen die naast de industriefunctie één of meer gebruiksfuncties hebben zoals kantoorruimte (waarbij het gebruiksoppervlakte groter is dan 50 m²) energielabelplichtig zijn.
Kadastrale gegevens De Run 4225 te Veldhoven:
Gemeente: Veldhoven
Sectie: K
Perceelnummer: 1918
Oppervlakte: 17.537 m² (gedeeltelijk)
Bestemmingsplan:
Het bestemmingsplan van dit bedrijfsgebouw aan De Run 4225 te Veldhoven op Bedrijventerrein De Run is op te vragen via één van onze bedrijfsmakelaars bij Bossers & Fitters Bedrijfshuisvesting B.V. en/of via de website van het omgevingsloket.
Bouwjaar:
1992
HUURGEGEVENS
Aanvangshuurprijs:
€ 435.000,00 per jaar te vermeerderen met de geldende B.T.W.
Voorschot servicekosten:
Nader overeen te komen.
Huurtermijn:
Vijf (5) jaren.
Verlengingstermijn:
Telkens met vijf (5) jaar.
Opzegtermijn:
Twaalf (12) maanden voorafgaand aan de expiratiedatum.
Huurindexering:
De huurprijs van dit bedrijfspand aan De Run 4225 te Veldhoven zal jaarlijks worden geïndexeerd, voor het eerst één jaar na huuringangsdatum, op basis van het maandprijsindexcijfer volgens de consumentenprijsindex CPI-alle huishoudens (2015=100), dan wel meest recente tijdsbasis, gepubliceerd door het Centraal Bureau voor de statistiek (CBS).
Zekerheidsstelling:
Bankgarantie of waarborgsom ter grootte van drie (3) maanden huur inclusief eventuele servicekosten en B.T.W.
Huurbetaling:
Per kwartaal vooruit te voldoen.
B.T.W.:
Indien huurder niet aan het “90% criterium” (aandeel belaste prestaties) voldoet, zal er van rechtswege sprake zijn van omzetbelasting vrijgestelde verhuur. Als dan wordt de overeengekomen kale huurprijs, exclusief omzetbelasting, zodanig verhoogd, dat het voor verhuurder ontstane financiële nadeel wordt gecompenseerd.
Huurcontract:
R.O.Z.-model, huurovereenkomst kantoorruimte en andere bedrijfsruimte in de zin van artikel 7:230a BW met de benodigde aanvullingen.
Meer informatie:
Wenst u meer informatie over dit beschikbare bedrijfsgebouw welke te huur is aan De Run 4225 te Veldhoven, neem dan vrijblijvend contact op met één van de bedrijfsmakelaars bij Bossers & Fitters Bedrijfshuisvesting B.V.
Onze bedrijfsmakelaar Pim van der Werff is van alle beschikbare informatie op de hoogte betreffende de verhuur van dit bedrijfsgebouw aan De Run 4225 te Veldhoven.
Features
Transfer of ownership
- Rental price
- € 435,000 per year
- First rental price
- € 550,000 per year
- Listed since
-
- Status
- Available
- Acceptance
- Available immediately
Construction
- Main use
- Industrial unit
- Building type
- Resale property
- Year of construction
- 1992
Surface areas
- Area
- 5,823 m²
- Industrial unit area
- 5,060 m²
- Area of site
- 1,100 m²
- Office area
- 763 m²
- Clearance
- 6 m
- Maximum load
- 1,500 kg/m²
- Plot size
- 17,537 m²
Layout
- Number of floors
- 2 floors
- Facilities
- Overhead doors, three-phase electric power, concrete floor, heater, toilet, mechanical ventilation, peak cooling, built-in fittings and windows can be opened
Energy
- Energy label
- A+
Surroundings
- Location
- Business park
Parking
- Parking spaces
- 30 uncovered parking spaces
NVM real estate agent
Photos