Description
Een nieuw te realiseren representatief bedrijfsgebouw met bedrijfs- en inpandige kantoorruimte met voldoende parkeergelegenheid. Gunstig gelegen op bedrijventerrein De Run 5400 nabij uitvalswegen A67, A2/N2 en A58.
Metrage (gbo):
Totaal ca. 1383m² (gbo) en 22 parkeerplaatsen.
Indeling units:
Entree. Bedrijfsruimte met overhead. Vrije hoogte bedrijfsruimte ca. 6,70 - ca. 7,00m.
Inpandige kantoorruimte met toiletruimte en pantry.
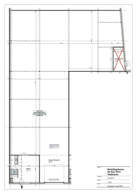
Unit 5415: Totaal ca. 615m² (gbo) inclusief inpandige kantoorruimte van ca. 38m² (gbo). Huurprijs €57.500,- exclusief btw per jaar. Twee parkeerplaatsen.
Unit 5415A: Totaal ca. 304m² (gbo) inclusief inpandige kantoorruimte van ca. 37m² (gbo). Huurprijs €30.000,- exclusief btw per jaar. en 2 parkeerplaatsen.
unit 5415B: Totaal ca. 464m² (gbo) inclusief inpandige kantoorruimte van ca. 37m² (gbo). Huurprijs €45.000,- exclusief btw per jaar en 4 parkeerplaatsen.
Constructie/installaties/afwerkingsniveau:
Begane grondvloer is een in het werk gestorte betonvloer, monolitisch afgewerkt (nabehandeling met Ashford Formula - waardoor een dichtere, hardere toplaag) met vloerisolatie. Aluminium kozijnen voorzien van isolerende HR ++. Overheaddeuren met elektrische bediening. Buitenwanden in geïsoleerde panelen. Stalen dakplaten met isolatie . Verwarming/koeling kantoorruimte via airco’s. Mechanische ventilatie. Brandblusmiddelen, noodverlichting.
Aanvaarding/oplevering:
Prognose: eind 2026.
Parkeren:
Aantal vaste parkeerplaatsen per unit en 14 gezamenlijke parkeerplaatsen op het buitenterrein aan de oostzijde.
Ligging en omgeving:
Gunstig gesitueerd op bedrijventerrein De Run 5400, Veldhoven, nabij uitvalswegen A67, A2/N2, A58, bushalte (HOV-lijn) en wegen naar Valkenswaard en de Kempen dorpen.
Bereikbaarheid:
Prima met auto, fiets, openbaar vervoer (HOV). Eindhoven Airport dichtbij.
Bestemmingsplan:
Bestemmingsplan: De Run 2008, herziening I 2010. Bestemming bedrijventerrein. Bedrijfsverzamelgebouw bestemd voor bedrijven die behoren tot milieucategorie 3. Nadere informatie is op aanvraag beschikbaar.
Huurvoorwaarden:
Huurbetaling: Per maand vooruit te voldoen.
Huurtermijn: Bespreekbaar, minimaal 24 maanden.
Huurprijsaanpassing: De huurprijs zal jaarlijks worden aangepast op basis van het maandprijsindexcijfer volgens de consumentenindex reeks alle huishoudens (2015=100).
Huurovereenkomst: ROZ model kantoorruimte en andere bedrijfsruimte in de zin van artikel 7:230a BW (2025).
Huurprijzen zijn exclusief btw en exclusief gemeentelijke belastingen gebruiker.
Servicekosten voor onderhoud en verlichting buitenterrein €... .
Zekerheidstelling:
Huurder verstrekt aan verhuurder voor oplevering van het gehuurde een waarborgsom ter grootte van twee maanden huurverplichting.
Btw: Indien huurder niet aan het “90%-criterium” (aandeel belaste prestaties) voldoet, zal er van rechtswege sprake zijn van een omzetbelasting vrijgestelde verhuur. Als dan wordt de overeengekomen kale huurprijs, excl. omzetbelasting, zodanig verhoogd, dat het voor verhuurder ontstane financiële nadeel wordt gecompenseerd. Er wordt geopteerd voor een met btw belaste verhuur.
Metrage (gbo):
Totaal ca. 1383m² (gbo) en 22 parkeerplaatsen.
Indeling units:
Entree. Bedrijfsruimte met overhead. Vrije hoogte bedrijfsruimte ca. 6,70 - ca. 7,00m.
Inpandige kantoorruimte met toiletruimte en pantry.
Unit 5415: Totaal ca. 615m² (gbo) inclusief inpandige kantoorruimte van ca. 38m² (gbo). Huurprijs €57.500,- exclusief btw per jaar. Twee parkeerplaatsen.
Unit 5415A: Totaal ca. 304m² (gbo) inclusief inpandige kantoorruimte van ca. 37m² (gbo). Huurprijs €30.000,- exclusief btw per jaar. en 2 parkeerplaatsen.
unit 5415B: Totaal ca. 464m² (gbo) inclusief inpandige kantoorruimte van ca. 37m² (gbo). Huurprijs €45.000,- exclusief btw per jaar en 4 parkeerplaatsen.
Constructie/installaties/afwerkingsniveau:
Begane grondvloer is een in het werk gestorte betonvloer, monolitisch afgewerkt (nabehandeling met Ashford Formula - waardoor een dichtere, hardere toplaag) met vloerisolatie. Aluminium kozijnen voorzien van isolerende HR ++. Overheaddeuren met elektrische bediening. Buitenwanden in geïsoleerde panelen. Stalen dakplaten met isolatie . Verwarming/koeling kantoorruimte via airco’s. Mechanische ventilatie. Brandblusmiddelen, noodverlichting.
Aanvaarding/oplevering:
Prognose: eind 2026.
Parkeren:
Aantal vaste parkeerplaatsen per unit en 14 gezamenlijke parkeerplaatsen op het buitenterrein aan de oostzijde.
Ligging en omgeving:
Gunstig gesitueerd op bedrijventerrein De Run 5400, Veldhoven, nabij uitvalswegen A67, A2/N2, A58, bushalte (HOV-lijn) en wegen naar Valkenswaard en de Kempen dorpen.
Bereikbaarheid:
Prima met auto, fiets, openbaar vervoer (HOV). Eindhoven Airport dichtbij.
Bestemmingsplan:
Bestemmingsplan: De Run 2008, herziening I 2010. Bestemming bedrijventerrein. Bedrijfsverzamelgebouw bestemd voor bedrijven die behoren tot milieucategorie 3. Nadere informatie is op aanvraag beschikbaar.
Huurvoorwaarden:
Huurbetaling: Per maand vooruit te voldoen.
Huurtermijn: Bespreekbaar, minimaal 24 maanden.
Huurprijsaanpassing: De huurprijs zal jaarlijks worden aangepast op basis van het maandprijsindexcijfer volgens de consumentenindex reeks alle huishoudens (2015=100).
Huurovereenkomst: ROZ model kantoorruimte en andere bedrijfsruimte in de zin van artikel 7:230a BW (2025).
Huurprijzen zijn exclusief btw en exclusief gemeentelijke belastingen gebruiker.
Servicekosten voor onderhoud en verlichting buitenterrein €... .
Zekerheidstelling:
Huurder verstrekt aan verhuurder voor oplevering van het gehuurde een waarborgsom ter grootte van twee maanden huurverplichting.
Btw: Indien huurder niet aan het “90%-criterium” (aandeel belaste prestaties) voldoet, zal er van rechtswege sprake zijn van een omzetbelasting vrijgestelde verhuur. Als dan wordt de overeengekomen kale huurprijs, excl. omzetbelasting, zodanig verhoogd, dat het voor verhuurder ontstane financiële nadeel wordt gecompenseerd. Er wordt geopteerd voor een met btw belaste verhuur.
Map
Map is loading...
Cadastral boundaries
Buildings
Travel time
Gain insight into the reachability of this object, for instance from a public transport station or a home address.