Zonnecelstraat 2-16 8051 TB Hattem
- Rented
€ 675 p/mo.
Description
Zonnecelstraat 2-16, Hattem
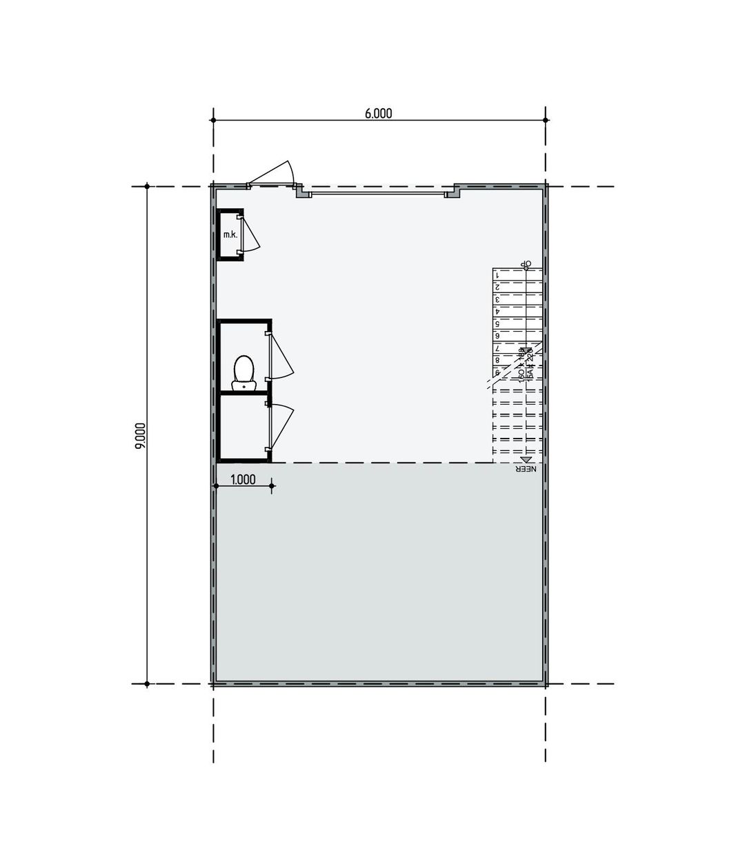
- Fraaie bedrijfsunit van ca. 54 m2 op (ca. 9 meter diep x 6 meter breed) met entresol/verdiepingsvloer van ca. 24 m2
- Voorzien van toilet en kastruimte
- Gelegen op bedrijventerrein H2O, in de oksel van de A50 en A28, tegenover Bedrijventerrein Netelhorst
- Gebouwd in 2021
- 5 min rijafstand van Zwolle
- Ruime elektrisch bedienbare overheaddeur (ca. 3,2 meter x 3,5 meter hoog)
- Afzonderlijke loopdeur
- Eigen meterkast met water en elektra
- Vrije hoogte unit ca. 6 meter
Oplevering: In overleg
Huurprijs € 675,= per maand excl. BTW en servicekosten
Goedkeuring
Het bovenstaande is onder finaal voorbehoud van de eigenaar.
Disclaimer: Ondanks dat deze publicatie met de grootst mogelijke zorgvuldigheid is samengesteld is de Online Bedrijfsmakelaar BV niet aansprakelijk te stellen voor onjuiste of onvolledige informatie die in deze publicatie vermeld staan. Aan deze gegevens kunnen geen rechten worden ontleend.
====================
Alle beschikbare informatie ontvangen?
Benieuwd naar alle beschikbare informatie over het pand? Vraag dan nu, onder de grote contactbutton, de gratis objectbrochure van Zonnecelstraat 2-16 in Hattem aan en ontvang de objectbrochure binnen 5 minuten in uw mailbox. Uiteraard kunt u ook direct een geheel vrijblijvende bezichtiging met de beheerder van het pand inplannen.
- Fraaie bedrijfsunit van ca. 54 m2 op (ca. 9 meter diep x 6 meter breed) met entresol/verdiepingsvloer van ca. 24 m2
- Voorzien van toilet en kastruimte
- Gelegen op bedrijventerrein H2O, in de oksel van de A50 en A28, tegenover Bedrijventerrein Netelhorst
- Gebouwd in 2021
- 5 min rijafstand van Zwolle
- Ruime elektrisch bedienbare overheaddeur (ca. 3,2 meter x 3,5 meter hoog)
- Afzonderlijke loopdeur
- Eigen meterkast met water en elektra
- Vrije hoogte unit ca. 6 meter
Oplevering: In overleg
Huurprijs € 675,= per maand excl. BTW en servicekosten
Goedkeuring
Het bovenstaande is onder finaal voorbehoud van de eigenaar.
Disclaimer: Ondanks dat deze publicatie met de grootst mogelijke zorgvuldigheid is samengesteld is de Online Bedrijfsmakelaar BV niet aansprakelijk te stellen voor onjuiste of onvolledige informatie die in deze publicatie vermeld staan. Aan deze gegevens kunnen geen rechten worden ontleend.
====================
Alle beschikbare informatie ontvangen?
Benieuwd naar alle beschikbare informatie over het pand? Vraag dan nu, onder de grote contactbutton, de gratis objectbrochure van Zonnecelstraat 2-16 in Hattem aan en ontvang de objectbrochure binnen 5 minuten in uw mailbox. Uiteraard kunt u ook direct een geheel vrijblijvende bezichtiging met de beheerder van het pand inplannen.
Features
Transfer of ownership
- Last rental price
- € 675 per month
- Listed since
-
- Status
- Rented
Construction
- Main use
- Industrial unit
- Building type
- Resale property
- Year of construction
- 2021
Surface areas
- Area
- 78 m²
- Industrial unit area
- 78 m²
- Clearance
- 6 m
Layout
- Facilities
- Overhead doors, concrete floor and toilet
Energy
- Energy label
- Not required
Surroundings
- Location
- Business park
NVM real estate agent
Photos