Zonnebaan 14 3542 EC Utrecht
- Rented
€ 83,960 /yr

Description
Multifunctionele bedrijfsruimte met inpandige kantoorruimte
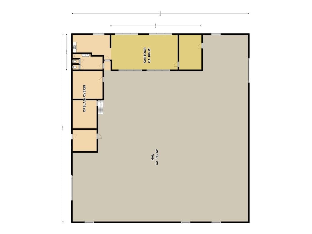
De vrijstaande bedrijfsruimte, totaal groot ca. 1.120 m² verhuurbaar vloeroppervlak,
onderverdeeld als volgt:
- Ca. 758 m² v.v.o. bedrijfsruimte begane grond;
- Ca. 109 m² v.v.o. overig/opslag begane grond;
- Ca. 78 m² v.v.o. kantoorruimte begane grond;
- Ca. 142 m² v.v.o. kantoorruimte 1e verdieping;
- Ca. 33 m² v.v.o. overig/kantine 1e verdieping.
Parkeren
4 door verhuurder nog aan te wijzen parkeerplaatsen voor het gebouw
Bedrijfs-/kantoorruimte
- Twee elektrische overheaddeuren;
- Diverse loopdeuren;
- Dubbel toilet met wasbak;
- Pantryblok;
- Twee trappen naar de verdieping;
- Tl-opbouwverlichting;
- Betonvloer, vloerbelasting ca. 2.000 kg/m² begane grond;
- Verwarming bedrijfsruimte d.m.v. gasheaters;
- Meterkast v.v. eigen aansluitingen water, gas en elektra;
- Diverse raampartijen in de gevel;
- Vrije hoogte circa 550 cm.
- Brandslanghaspels en/of blussers;
- Cv-installatie v.v. radiatoren in de kantoren;
- Diverse airco-units kantoorruimte.
Buitenterrein
- Verlichting buitengevel;
- Verhard middels asfalt;
- Deels voorzien van (afsluitbaar) hekwerk.
Ligging
Het complex is gelegen op bedrijventerrein Lage Weide nabij de randweg Utrecht en op- en afrit A2 te Utrecht. Het bedrijventerrein Lage Weide is gelegen aan de West-zijde van Utrecht op korte afstand van de A12 en de A2.
Het complex ligt aan de noordzijde van Lage Weide waardoor het een uitstekend bereikbaar is. In de directe omgeving zijn diverse (internationale) bedrijven gevestigd. De locatie kenmerkt zich door een goede bereikbaarheid zowel per auto als
Bestemming
Plannaam: Bedrijventerrein Lage Weide
Plannummer: NL.IMRO.0344.BPLAGEWEIDE
Datum: Vastgesteld 17-07-2014
Bestemming: Bedrijventerrein
Functieaanduiding: Bedrijven t/m categorie 5.1
De vrijstaande bedrijfsruimte, totaal groot ca. 1.120 m² verhuurbaar vloeroppervlak,
onderverdeeld als volgt:
- Ca. 758 m² v.v.o. bedrijfsruimte begane grond;
- Ca. 109 m² v.v.o. overig/opslag begane grond;
- Ca. 78 m² v.v.o. kantoorruimte begane grond;
- Ca. 142 m² v.v.o. kantoorruimte 1e verdieping;
- Ca. 33 m² v.v.o. overig/kantine 1e verdieping.
Parkeren
4 door verhuurder nog aan te wijzen parkeerplaatsen voor het gebouw
Bedrijfs-/kantoorruimte
- Twee elektrische overheaddeuren;
- Diverse loopdeuren;
- Dubbel toilet met wasbak;
- Pantryblok;
- Twee trappen naar de verdieping;
- Tl-opbouwverlichting;
- Betonvloer, vloerbelasting ca. 2.000 kg/m² begane grond;
- Verwarming bedrijfsruimte d.m.v. gasheaters;
- Meterkast v.v. eigen aansluitingen water, gas en elektra;
- Diverse raampartijen in de gevel;
- Vrije hoogte circa 550 cm.
- Brandslanghaspels en/of blussers;
- Cv-installatie v.v. radiatoren in de kantoren;
- Diverse airco-units kantoorruimte.
Buitenterrein
- Verlichting buitengevel;
- Verhard middels asfalt;
- Deels voorzien van (afsluitbaar) hekwerk.
Ligging
Het complex is gelegen op bedrijventerrein Lage Weide nabij de randweg Utrecht en op- en afrit A2 te Utrecht. Het bedrijventerrein Lage Weide is gelegen aan de West-zijde van Utrecht op korte afstand van de A12 en de A2.
Het complex ligt aan de noordzijde van Lage Weide waardoor het een uitstekend bereikbaar is. In de directe omgeving zijn diverse (internationale) bedrijven gevestigd. De locatie kenmerkt zich door een goede bereikbaarheid zowel per auto als
Bestemming
Plannaam: Bedrijventerrein Lage Weide
Plannummer: NL.IMRO.0344.BPLAGEWEIDE
Datum: Vastgesteld 17-07-2014
Bestemming: Bedrijventerrein
Functieaanduiding: Bedrijven t/m categorie 5.1
Features
Transfer of ownership
- Last rental price
- € 83,960 per year
- Listed since
-
- Status
- Rented
Construction
- Main use
- Industrial unit
- Building type
- Resale property
- Year of construction
- 1978
Surface areas
- Area
- 1,120 m²
- Industrial unit area
- 867 m²
- Office area
- 253 m²
- Clearance
- 5.6 m
- Clear span
- 30 m
- Maximum load
- 2,000 kg/m²
- Plot size
- 1,615 m²
Layout
- Number of floors
- 2 floors
- Facilities
- Rooflights, overhead doors, three-phase electric power, concrete floor, heater, toilet, pantry, air conditioning, mechanical ventilation, built-in fittings and windows can be opened
Energy
- Energy label
- A 0.84
Surroundings
- Location
- Business park
NVM real estate agent
Photos













