Bedrijventerrein Nudepark I unit 6 6702 DZ Wageningen
- Sold
€ 162,000 v.o.n.
Description
Nu in de verkoop, 25 bedrijfsunits met eigen parkeerplaatsen, tussen Wageningen en Rhenen.
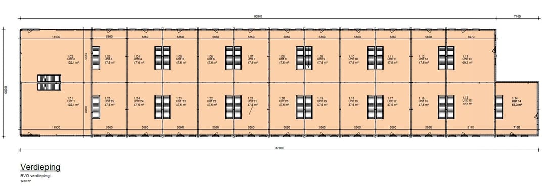
Op een uitstekende zichtlocatie op bedrijventerrein Nudepark I te Wageningen wordt aan het Nudepark een bedrijfsverzamelgebouw gerealiseerd met 25 hoogwaardige en exclusieve bedrijfsunits. De locatie is gelegen nabij de N225 tussen Wageningen en Rhenen. Het project bestaat uit units die variëren in grootte van 100 m² tot 209 m² en iedere unit beschikt over minimaal 3 parkeerplaatsen.
De bouw zal aanvangen in februari 2026. De oplevering wordt verwacht in september 2026.
Locatie
Het bedrijfsobject is gelegen op bedrijventerrein “Nudepark I” tussen Wageningen en Rhenen en ca. 15 minuten van de op- en afrit van de A12.
Unit 6:
Begane grond: 52 m²
1e verdieping: 48 m²
Totaal: 100 m²
De verkoopprijs bedraagt € 162.000,00 v.o.n.*
*Exclusief 21% BTW en notariskosten.
Het samenvoegen van units is bespreekbaar.
Opleveringsniveau
De bedrijfsunits beschikken standaard over tal van voorzieningen, onder andere voorzien van:
- Begane grondvloer beton monoliet (1.500 kg/m²);
- Verdiepingsvloer bestaat uit kanaalplaatvloer (500 kg/m²);
- Raamkozijnen voorzien van HR++ isolatieglas;
- Meterkast voorzien van de invoer van elektra, water en internet (aansluitkosten niet in de koopsom inbegrepen).
Vrije hoogte
De vrije hoogte is 3,5 meter.
Parkeren
3 parkeerplaatsen.
Nutsvoorzieningen
De units worden elk voorzien van een eigen aansluiting voor elektra en water. De eenmalige aansluitkosten worden doorbelast bij notariële levering.
Bestemmingsplan
De bestemming van het perceel is ‘Bedrijventerrein-2’. De locatie is daarmee bestemd voor bedrijven zoals genoemd in de Staat van Bedrijfsactiviteiten II tot en met milieu categorie 3.2. De units mogen onder andere gebruikt worden als werkplaats, opslagruimte, magazijn en montageruimte met bijbehorende kantoorruimte.
Belegging
De aankoop van een eigen bedrijfsunit is zeer interessant. De verkoopprijzen zijn exclusief BTW en notariskosten. Daarbij kunt u de BTW terugvragen, ook wanneer u de bedrijfsunit als particulier aanschaft, als zijnde belegging. Omdat het nieuwbouw betreft hoeft u daarnaast ook géén 10,4% overdrachtsbelasting te betalen. Wanneer u een bedrijfsunit aankoopt als belegging en overweegt deze te verhuren, kunnen wij u hier ook in adviseren dan wel volledig in ontzorgen.
VvE beheer
Voor het onderhoud en beheer van de gemeenschappelijke delen, wordt van rechtswege een Vereniging van Eigenaren (kortweg VvE) opgericht. Als koper bent u bij oplevering van de bedrijfsruimte automatisch lid van de Vereniging van Eigenaren. De belangrijkste taken en bevoegdheden die deze vereniging verzorgd zijn:
- De opstalverzekering.
- De aansprakelijkheidsverzekering.
- Reservering voor groot onderhoud, waaronder het dak.
- Onderhoud van gemeenschappelijke (groen)voorzieningen.
Voor overige informatie verwijzen wij u graag naar de brochure.
Heeft dit uw interesse gewekt? Neem dan contact op voor meer informatie!
BMV Bedrijfsmakelaars
Sweerts de Landasstraat 27
6814 DA Arnhem
026 - 355 21 00
Op een uitstekende zichtlocatie op bedrijventerrein Nudepark I te Wageningen wordt aan het Nudepark een bedrijfsverzamelgebouw gerealiseerd met 25 hoogwaardige en exclusieve bedrijfsunits. De locatie is gelegen nabij de N225 tussen Wageningen en Rhenen. Het project bestaat uit units die variëren in grootte van 100 m² tot 209 m² en iedere unit beschikt over minimaal 3 parkeerplaatsen.
De bouw zal aanvangen in februari 2026. De oplevering wordt verwacht in september 2026.
Locatie
Het bedrijfsobject is gelegen op bedrijventerrein “Nudepark I” tussen Wageningen en Rhenen en ca. 15 minuten van de op- en afrit van de A12.
Unit 6:
Begane grond: 52 m²
1e verdieping: 48 m²
Totaal: 100 m²
De verkoopprijs bedraagt € 162.000,00 v.o.n.*
*Exclusief 21% BTW en notariskosten.
Het samenvoegen van units is bespreekbaar.
Opleveringsniveau
De bedrijfsunits beschikken standaard over tal van voorzieningen, onder andere voorzien van:
- Begane grondvloer beton monoliet (1.500 kg/m²);
- Verdiepingsvloer bestaat uit kanaalplaatvloer (500 kg/m²);
- Raamkozijnen voorzien van HR++ isolatieglas;
- Meterkast voorzien van de invoer van elektra, water en internet (aansluitkosten niet in de koopsom inbegrepen).
Vrije hoogte
De vrije hoogte is 3,5 meter.
Parkeren
3 parkeerplaatsen.
Nutsvoorzieningen
De units worden elk voorzien van een eigen aansluiting voor elektra en water. De eenmalige aansluitkosten worden doorbelast bij notariële levering.
Bestemmingsplan
De bestemming van het perceel is ‘Bedrijventerrein-2’. De locatie is daarmee bestemd voor bedrijven zoals genoemd in de Staat van Bedrijfsactiviteiten II tot en met milieu categorie 3.2. De units mogen onder andere gebruikt worden als werkplaats, opslagruimte, magazijn en montageruimte met bijbehorende kantoorruimte.
Belegging
De aankoop van een eigen bedrijfsunit is zeer interessant. De verkoopprijzen zijn exclusief BTW en notariskosten. Daarbij kunt u de BTW terugvragen, ook wanneer u de bedrijfsunit als particulier aanschaft, als zijnde belegging. Omdat het nieuwbouw betreft hoeft u daarnaast ook géén 10,4% overdrachtsbelasting te betalen. Wanneer u een bedrijfsunit aankoopt als belegging en overweegt deze te verhuren, kunnen wij u hier ook in adviseren dan wel volledig in ontzorgen.
VvE beheer
Voor het onderhoud en beheer van de gemeenschappelijke delen, wordt van rechtswege een Vereniging van Eigenaren (kortweg VvE) opgericht. Als koper bent u bij oplevering van de bedrijfsruimte automatisch lid van de Vereniging van Eigenaren. De belangrijkste taken en bevoegdheden die deze vereniging verzorgd zijn:
- De opstalverzekering.
- De aansprakelijkheidsverzekering.
- Reservering voor groot onderhoud, waaronder het dak.
- Onderhoud van gemeenschappelijke (groen)voorzieningen.
Voor overige informatie verwijzen wij u graag naar de brochure.
Heeft dit uw interesse gewekt? Neem dan contact op voor meer informatie!
BMV Bedrijfsmakelaars
Sweerts de Landasstraat 27
6814 DA Arnhem
026 - 355 21 00
Features
Transfer of ownership
- Last asking price
- € 162,000 vrij op naam
- Listed since
-
- Status
- Sold
Construction
- Main use
- Industrial unit
- Building type
- Resale property
- Year of construction
- Currently under construction
Surface areas
- Area
- 100 m²
- Industrial unit area
- 100 m²
- Clearance
- 3.5 m
- Maximum load
- 1,500 kg/m²
- Plot size
- 4,080 m²
Layout
- Facilities
- Concrete floor
Energy
- Energy label
- Not available
Surroundings
- Location
- Business park
- Accessibility
- Bus stop in less than 500 m, Dutch Railways Intercity station in 5000 m or more and motorway exit in 1500 m to 2000 m
NVM real estate agent
Photos