Ridder Snouckaertlaan 7 2273 HZ Voorburg
€ 2,950,000 k.k.
Description
Adres: Ridder Snouckaertlaan 7, 2273 HZ te Voorburg
TE KOOP: UNIEK HALFVRIJSTAAND MULTIEFUNCTIONEEL BEDRIJFSGEBOUW VAN TOTAAL CA. 2.690M² MET PARKEERPLAATSEN OP EIGEN TERREIN (PERCEELGROOTTE CA. 1.523M²)
Algemeen:
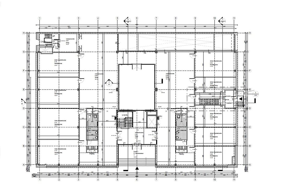
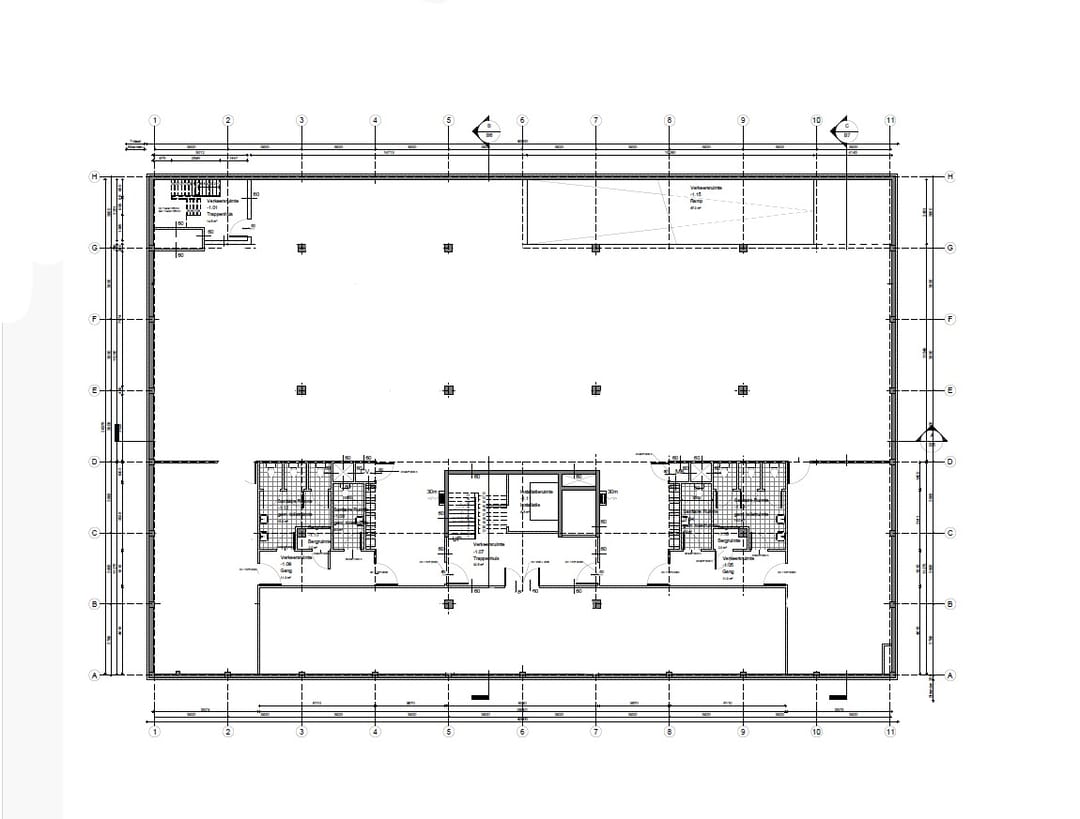
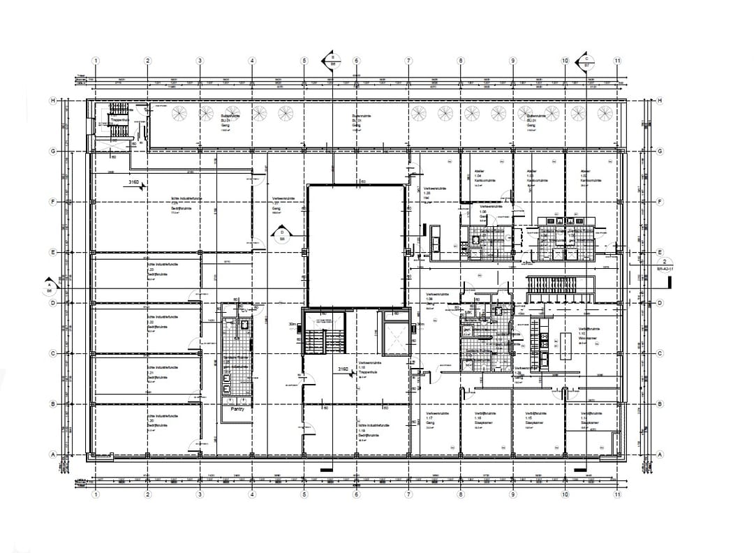
Gelegen op kleinschalig bedrijventerrein "Prinses Irenelaan" ('t Loo) van Voorburg op de hoek van de Prinses Irenelaan en de Ridder Snouckaertlaan multifunctioneel bedrijfsgebouw van totaal ca. 2.690m². Dit bijzondere uit drie bouwlagen bestaande bedrijfsgebouw beschikt in het souterrain over een grote bedrijfsruimte van ca. 1.036 met een vrije hoogte van ca. 3.85meter, voorzien van daglichttoetreding, welke met voertuigen te bereiken is via een hellingbaan. De begane grond en 1e verdieping zijn thans ingericht als kantoorruimten en een dienstwoning doch zijn ook in te richten als bedrijfsruimten voor bijvoorbeeld ambachtelijke ondernemers. Het bedrijfsgebouw is de laatste jaren voor een groot deel gerenoveerd en voorzien van diverse ruimten op de verdiepingen doch is indien gewenst bouwkundig goed anders in te delen
Direct naast het bedrijventerrein is recent het voormalige CBS terrein getransformeerd naar Park 070 een duurzame woonwijk met 229 eengezinswoningen en appartementen. Het winkelcentrum 'De Julianabaan' aan het Koningin Julianaplein is gelegen op loopafstand.
Door de gunstige half vrijstaande ligging aan de entree van het bedrijventerrein en het brede front beschikt het object over een uitstekende attentiewaarde.
Oppervlakte:
Bedrijfsruimte souterrain: ca. 1.036m²
Bedrijfsruimte en/of kantoor begane grond: ca. 851m²
Bedrijfsruimte en/of kantoor en dienstwoning: 1e verdieping: ca. 802m²
Totaal: ca. 2.689m² (2.909m² BVO)
De vrije hoogte van de bedrijfsruimte bedraagt ca. 3.85 meter.
Kadastrale gegevens:
Gemeente Voorburg, sectie D nummer 3471 grootte 1.532m²
Het object is gelegen op eigen grond.
Bestemming:
Het object is gelegen in het bestemmingsplan "Herstelbesluit Bestemmingsplan Stedelijk" en beschikt over de bestemming "Bedrijf" met functieaanduiding Bedrijf t/m categorie 2
De voor 'Bedrijf' aangewezen gronden zijn bestemd voor:
- bedrijven zoals genoemd in de bij deze regels als bijlage behorende Staat van bedrijfsactiviteiten behorende tot ten hoogste de categorie
zoals die op de verbeelding is aangegeven, met uitzondering van geluidszoneringsplichtige inrichtingen;
- één bedrijfswoning per bouwperceel, uitsluitend ter plaatse van de aanduiding (bw);
(Zie voor nadere informatie )
Vraagprijs:
€ 2.950.000,-- kosten koper
Waarborgsom:
10% van de koopsom, te voldoen binnen 2 weken na ondertekening van de koopovereenkomst
Parkeren:
Het object beschikt over ca. 20 parkeerplaatsen op het voor de hoofdentree gelegen parkeer-/buitenterrein van ca. 385m³. Verder parkeervoorzieningen aan de openbare weg.
Opleveringsniveau
Het object zal worden verkocht en geleverd vrij van huur en gebruik "as is, where is".
Overige bijzonderheden:
- Bij verkoop: ouderdoms- en materialenclausule van toepassing
- Bouwjaar: omstreeks 1960, voor een deel gerenoveerd in de afgelopen 5 jaar
- Eigen grond
- Koopovereenkomst BOG (model NVM)
Courtage:
Indien door de bemiddeling van Martijn de Lange Bedrijfsmakelaars bij dit object een transactie tot stand wordt gebracht, dan bent u ons hiervoor geen kosten of courtage verschuldigd.
TE KOOP: UNIEK HALFVRIJSTAAND MULTIEFUNCTIONEEL BEDRIJFSGEBOUW VAN TOTAAL CA. 2.690M² MET PARKEERPLAATSEN OP EIGEN TERREIN (PERCEELGROOTTE CA. 1.523M²)
Algemeen:
Gelegen op kleinschalig bedrijventerrein "Prinses Irenelaan" ('t Loo) van Voorburg op de hoek van de Prinses Irenelaan en de Ridder Snouckaertlaan multifunctioneel bedrijfsgebouw van totaal ca. 2.690m². Dit bijzondere uit drie bouwlagen bestaande bedrijfsgebouw beschikt in het souterrain over een grote bedrijfsruimte van ca. 1.036 met een vrije hoogte van ca. 3.85meter, voorzien van daglichttoetreding, welke met voertuigen te bereiken is via een hellingbaan. De begane grond en 1e verdieping zijn thans ingericht als kantoorruimten en een dienstwoning doch zijn ook in te richten als bedrijfsruimten voor bijvoorbeeld ambachtelijke ondernemers. Het bedrijfsgebouw is de laatste jaren voor een groot deel gerenoveerd en voorzien van diverse ruimten op de verdiepingen doch is indien gewenst bouwkundig goed anders in te delen
Direct naast het bedrijventerrein is recent het voormalige CBS terrein getransformeerd naar Park 070 een duurzame woonwijk met 229 eengezinswoningen en appartementen. Het winkelcentrum 'De Julianabaan' aan het Koningin Julianaplein is gelegen op loopafstand.
Door de gunstige half vrijstaande ligging aan de entree van het bedrijventerrein en het brede front beschikt het object over een uitstekende attentiewaarde.
Oppervlakte:
Bedrijfsruimte souterrain: ca. 1.036m²
Bedrijfsruimte en/of kantoor begane grond: ca. 851m²
Bedrijfsruimte en/of kantoor en dienstwoning: 1e verdieping: ca. 802m²
Totaal: ca. 2.689m² (2.909m² BVO)
De vrije hoogte van de bedrijfsruimte bedraagt ca. 3.85 meter.
Kadastrale gegevens:
Gemeente Voorburg, sectie D nummer 3471 grootte 1.532m²
Het object is gelegen op eigen grond.
Bestemming:
Het object is gelegen in het bestemmingsplan "Herstelbesluit Bestemmingsplan Stedelijk" en beschikt over de bestemming "Bedrijf" met functieaanduiding Bedrijf t/m categorie 2
De voor 'Bedrijf' aangewezen gronden zijn bestemd voor:
- bedrijven zoals genoemd in de bij deze regels als bijlage behorende Staat van bedrijfsactiviteiten behorende tot ten hoogste de categorie
zoals die op de verbeelding is aangegeven, met uitzondering van geluidszoneringsplichtige inrichtingen;
- één bedrijfswoning per bouwperceel, uitsluitend ter plaatse van de aanduiding (bw);
(Zie voor nadere informatie )
Vraagprijs:
€ 2.950.000,-- kosten koper
Waarborgsom:
10% van de koopsom, te voldoen binnen 2 weken na ondertekening van de koopovereenkomst
Parkeren:
Het object beschikt over ca. 20 parkeerplaatsen op het voor de hoofdentree gelegen parkeer-/buitenterrein van ca. 385m³. Verder parkeervoorzieningen aan de openbare weg.
Opleveringsniveau
Het object zal worden verkocht en geleverd vrij van huur en gebruik "as is, where is".
Overige bijzonderheden:
- Bij verkoop: ouderdoms- en materialenclausule van toepassing
- Bouwjaar: omstreeks 1960, voor een deel gerenoveerd in de afgelopen 5 jaar
- Eigen grond
- Koopovereenkomst BOG (model NVM)
Courtage:
Indien door de bemiddeling van Martijn de Lange Bedrijfsmakelaars bij dit object een transactie tot stand wordt gebracht, dan bent u ons hiervoor geen kosten of courtage verschuldigd.
Features
Transfer of ownership
- Asking price
- € 2,950,000 kosten koper
- Listed since
-
- Status
- Available
- Acceptance
- Available in consultation
Construction
- Main use
- Industrial unit
- Building type
- Resale property
- Year of construction
- 1960
Surface areas
- Area
- 2,689 m² (units from 2,289 m²)
- Industrial unit area
- 2,289 m²
- Area of site
- 500 m²
- Office area
- 400 m²
- Clearance
- 3.9 m
- Plot size
- 1,532 m²
Layout
- Number of floors
- 2 floors
- Facilities
- Air conditioning, rooflights, overhead doors, three-phase electric power, concrete floor, toilet, pantry, mechanical ventilation, built-in fittings and windows can be opened
Energy
- Energy label
- Not available
Surroundings
- Location
- Business park and in residential district
- Accessibility
- Bus stop in less than 500 m, Dutch Railways Intercity station in less than 500 m, motorway exit in 1500 m to 2000 m and Tram stop in less than 500 m
- Local facilities
- Restaurant in less than 500 m and retail outlet in less than 500 m
Parking
- Parking spaces
- 20 uncovered parking spaces
NVM real estate agent
Photos