Vijverweg 4 7641 LH Wierden
€ 52,225 /yr

Description
Op een goed bereikbare locatie aan de Vijverweg 4 te Wierden bieden wij u dit veelzijdige object aan voor de verhuur.
De ruime bedrijfsruimte beschikt aan de voorzijde over een eigen entree welke toegang geeft tot de kantoor-/ showroom welke in overleg met huurder geheel Turn Key kan worden opgeleverd.
Deze prachtige locatie is zeer geschikt voor ondernemingen die werken, presenteren en ondernemen willen combineren.
Dit object is gelegen op Bedrijventerrein ‘De Weuste Noord’, een modern en strategisch gelegen werklocatie welke zich kenmerkt door zijn uitstekende bereikbaarheid en variatie in bedrijvigheid.
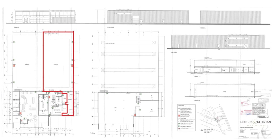
Oppervlakte:
Bedrijfsruimte:
Ca. 665 m²
Kantoor-/showroomruimte:
Ca. 72 m²
Daarnaast is er aan de voorzijde een grote parkeerplaats aanwezig voor collectief gebruik met mede huurder en kan er aan de achterzijde (in overleg) gebruik worden gemaakt van het riante buitenterrein.
Daarnaast is er optioneel de navolgende ruimte eventueel bij te huren:
Begane grond
Kantoor-/ showroom-/ bar
Ca. 460 m²
Bedrijfs-/ opslagruimte
Ca. 660 m²
Etage
Opslagruimte
Ca. 186 m²
Opleveringsniveau:
Bedrijfsruimte:
De bedrijfsruimte in de huidige staat met 2elektrische overheaddeuren, lichtstraten, vrije hoogte ca. 6,9 m¹, e.a.
Kantoorruimte:
Naar wens der huurder zal de kantoor-/ showroomruimte Turn Key worden opgeleverd met pantry, toilet, koeling-/ verwarming, systeemplafond en LED verlichting, gladde wanden en vloeren, e.d.
Bereikbaarheid:
Het object is gelegen aan de rand van Wierden en kent een uitstekende bereikbaarheid met het eigen vervoer. Door de nabijgelegen provinciale weg N36 zijn de op- en afritten van de Rijksweg A35 binnen ca. 5 autominuten te bereiken.
Parkeergelegenheid:
Ruim voldoende aanwezig aan de voorzijde van het gehuurde.
Bestemmingsplan:
Het object valt binnen bestemmingsplan: ‘Bestemmingsplan Bedrijvenpark Weuste Noord’ met als enkelbestemming: ‘Bedrijventerrein’ met functieaanduiding ‘bedrijf tot en met categorie 3.1’. De volledige bestemmingsplaninformatie is als bijlage aan deze brochure toegevoegd.
Huurprijs:
Bedrijfsruimte:
€ 65,00 per m² per jaar, exclusief BTW
Kantoor-/showroomruimte:
€ 125,00 per m² per jaar, exclusief BTW
Serrvicekosten:
Voor het gebruik van elektra en water zal maandelijks aan huurder een nader overeen te komen service voorschot in rekening worden gebracht, welke jaarlijks wordt afgerekend aan de hand van tussenmeters.
Zekerheidsstelling:
Waarborgsom ter grootte van 3 maanden huur inclusief BTW.
Huurtermijn:
5 + 5 verlengingsjaren, doch in overleg.
Huurbetalingen:
Per maand vooruit.
Huurovereenkomst:
Conform ROZ-model.
Indexering:
Jaarlijks, 1 jaar na ingangsdatum huurovereenkomst volgens module “Indexering Huren” van het CBS.
Aanvaarding:
In overleg, kan echter snel.
De ruime bedrijfsruimte beschikt aan de voorzijde over een eigen entree welke toegang geeft tot de kantoor-/ showroom welke in overleg met huurder geheel Turn Key kan worden opgeleverd.
Deze prachtige locatie is zeer geschikt voor ondernemingen die werken, presenteren en ondernemen willen combineren.
Dit object is gelegen op Bedrijventerrein ‘De Weuste Noord’, een modern en strategisch gelegen werklocatie welke zich kenmerkt door zijn uitstekende bereikbaarheid en variatie in bedrijvigheid.
Oppervlakte:
Bedrijfsruimte:
Ca. 665 m²
Kantoor-/showroomruimte:
Ca. 72 m²
Daarnaast is er aan de voorzijde een grote parkeerplaats aanwezig voor collectief gebruik met mede huurder en kan er aan de achterzijde (in overleg) gebruik worden gemaakt van het riante buitenterrein.
Daarnaast is er optioneel de navolgende ruimte eventueel bij te huren:
Begane grond
Kantoor-/ showroom-/ bar
Ca. 460 m²
Bedrijfs-/ opslagruimte
Ca. 660 m²
Etage
Opslagruimte
Ca. 186 m²
Opleveringsniveau:
Bedrijfsruimte:
De bedrijfsruimte in de huidige staat met 2elektrische overheaddeuren, lichtstraten, vrije hoogte ca. 6,9 m¹, e.a.
Kantoorruimte:
Naar wens der huurder zal de kantoor-/ showroomruimte Turn Key worden opgeleverd met pantry, toilet, koeling-/ verwarming, systeemplafond en LED verlichting, gladde wanden en vloeren, e.d.
Bereikbaarheid:
Het object is gelegen aan de rand van Wierden en kent een uitstekende bereikbaarheid met het eigen vervoer. Door de nabijgelegen provinciale weg N36 zijn de op- en afritten van de Rijksweg A35 binnen ca. 5 autominuten te bereiken.
Parkeergelegenheid:
Ruim voldoende aanwezig aan de voorzijde van het gehuurde.
Bestemmingsplan:
Het object valt binnen bestemmingsplan: ‘Bestemmingsplan Bedrijvenpark Weuste Noord’ met als enkelbestemming: ‘Bedrijventerrein’ met functieaanduiding ‘bedrijf tot en met categorie 3.1’. De volledige bestemmingsplaninformatie is als bijlage aan deze brochure toegevoegd.
Huurprijs:
Bedrijfsruimte:
€ 65,00 per m² per jaar, exclusief BTW
Kantoor-/showroomruimte:
€ 125,00 per m² per jaar, exclusief BTW
Serrvicekosten:
Voor het gebruik van elektra en water zal maandelijks aan huurder een nader overeen te komen service voorschot in rekening worden gebracht, welke jaarlijks wordt afgerekend aan de hand van tussenmeters.
Zekerheidsstelling:
Waarborgsom ter grootte van 3 maanden huur inclusief BTW.
Huurtermijn:
5 + 5 verlengingsjaren, doch in overleg.
Huurbetalingen:
Per maand vooruit.
Huurovereenkomst:
Conform ROZ-model.
Indexering:
Jaarlijks, 1 jaar na ingangsdatum huurovereenkomst volgens module “Indexering Huren” van het CBS.
Aanvaarding:
In overleg, kan echter snel.
Features
Transfer of ownership
- Rental price
- € 52,225 per year
- Listed since
-
- Status
- Available
- Acceptance
- Available in consultation
Construction
- Main use
- Industrial unit
- Building type
- Resale property
- Year of construction
- 2009
Surface areas
- Area
- 737 m²
- Industrial unit area
- 737 m²
Energy
- Energy label
- Not available
VBO real estate agent
Photos



















