Description
Nieuwbouwproject BEDRIJVENPARC ZEEWOLDE (4 Kapper) - BOUWVERGUNNING IS VERLEEND - Start bouw april 2026
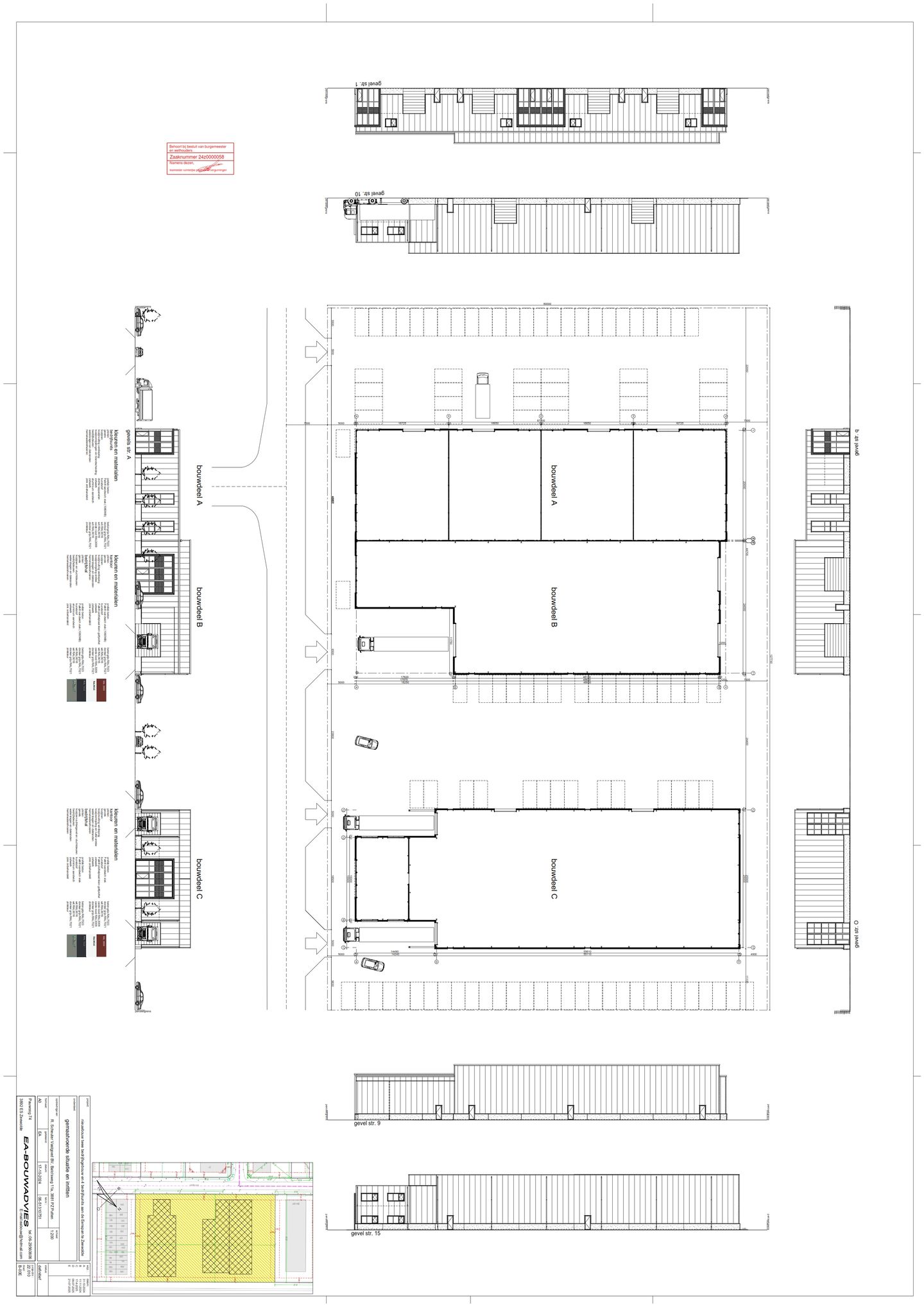
Op bedrijventerrein Horsterparc in Zeewolde wordt een nieuw bedrijfsverzamelgebouw ontwikkeld bestaande uit slechts 4 grote units. Dit maakt deel uit van een groter plan waar aan beide zijde nog een groter bedrijfsgebouw komt te staan.
De locatie ligt nabij de provinciale weg tussen Harderwijk-Nijkerk en Almere in en is goed bereikbaar per auto via 2-baans wegen. Horsterparc is een kleinschalig jong bedrijventerrein naast het grote Trekkersveld. Het dorp van Zeewolde ligt op 2-3 minuten rijafstand. In de directe omgeving zijn diverse bedrijven gehuisvest waaronder o.a. King Nonwovens, Bakker, Wolter Koops, Brouwer Units en het Tegeldepot.
Het nieuwbouwplan "Bedrijvenparc Zeewolde" bestaat uit 4 middelgrote bedrijfsunits, in grootte variërend van 416 m² tot 419 m² bruto vloeroppervlak. Voor de units worden parkeerplaatsen aangelegd. De gebouwen worden duurzaam opgeleverd met o.a. hoge isolatiewaardes, vloerverwarming (voorbereidt) en eigentijdse luxe uitstraling.
Elke unit wordt voorzien van een (gedeeltelijke) verdiepingsvloer zodat op de verdieping eventueel kantoorruimte e.d. kan worden gemaakt. Tevens kunnen (meerdere) units gekoppeld worden.
Opleveringsniveau
Elke unit is voorzien van:
- Aansluitingen in meterkast voor elektra, water, glasvezel;
- Afvoer riool in vloer gestort;
- Monoliet afgewerkte begane grond vloer met draagvermogen van circa 1.700 kg/m²;
- Kanaalplaatvloer (onafgewerkt) verdieping met draagvermogen van circa 500 kg/m²;
- Overheaddeur (circa 3,75 x 4,20 meter);
- Kunststof profiel kozijnen met draai/kiepraam met meerpuntssluiting;
- Vurenhouten trap naar verdieping;
- Betonnen plint in gevel gebouw;
- Vrije hoogte circa 7 meter;
- Gevel deels voorzien van sandwichpanelen;
- Mogelijkheid om zonnepanelen te plaatsen op het dak door koper;
De units worden nieuw gebouwd en volgens de laatste inzichten, regelgeving en normering casco opgeleverd.
Bestemming
De voor 'Bedrijventerrein - 3' aangewezen gronden zijn bestemd voor:
- ter plaatse van de aanduiding 'bedrijf tot en met categorie 3.2', het uitoefenen van bedrijfsmatige activiteiten in de categorieën 1 tot en met 3.2 van de bij deze regels behorende Staat van Bedrijfsactiviteiten-Horsterparc;
met dien verstande dat:
g. risicovolle inrichtingen niet zijn toegestaan;
h. bedrijven die in belangrijke mate geluidhinder kunnen veroorzaken niet zijn toegestaan;
Kadaster
Het betreft grond in vol eigendom wat gesplitst zal gaan worden in appartementsrechten.
Koopprijs en oppervlakte
unit begane grond verdieping Koopsom Status
1. 335 m² 83 m² € 585.000,- OPTIE
2. 335 m² 83 m² € 545.000,- BESCHIKBAAR
3. 335 m² 83 m² € 535.000,- BESCHIKBAAR
4. 335 m² 83 m² € 565.000,- OPTIE
De oppervlaktes zijn op basis van Bruto Vloer Oppervlakte (b.v.o.) vermeld. Bekijk de plattegronden voor de exacte oppervlakte per unit. Prijzen zijn geldig tot 1 april 2026.
Parkeren
Op eigen terrein worden ruim voldoende parkeerplaatsen aangelegd die verdeeld worden tussen de eigenaren.
Bijkomende kosten en BTW
De units worden "Vrij op naam" geleverd. De kosten voor de levering bij de notaris zijn inbegrepen in de prijs. De genoemde prijzen zijn exclusief 21% BTW.
Voor de aansluiting op de nutsvoorzieningen wordt een bijdrage van € 3.000,- in rekening gebracht met als uitgangspunt dat er een 3 x 35 A elektra aansluiting wordt geleverd.
Vve
Er zal een Vereniging van Eigenaren worden opgericht waar de kopers automatisch lid van worden. Er zal een maandelijkse bijdrage worden gevraagd tussen de circa € 250,- per unit naar verwachting voor reservering van o.a. groot onderhoud, opstalverzekering en onderhoud van het buitenterrein.
Projectnotaris
PVM uit Almere.
Planning
De bouwvergunning is verleend. De verwachting is dat de bouw start in april 2026 en de oplevering in 2026 plaats vindt.
Aanvaarding
In overleg.
MEER INFO VIA
UPPELSCHOTEN REAL ESTATE | 085-0605055
Wij werken voor ú
Op bedrijventerrein Horsterparc in Zeewolde wordt een nieuw bedrijfsverzamelgebouw ontwikkeld bestaande uit slechts 4 grote units. Dit maakt deel uit van een groter plan waar aan beide zijde nog een groter bedrijfsgebouw komt te staan.
De locatie ligt nabij de provinciale weg tussen Harderwijk-Nijkerk en Almere in en is goed bereikbaar per auto via 2-baans wegen. Horsterparc is een kleinschalig jong bedrijventerrein naast het grote Trekkersveld. Het dorp van Zeewolde ligt op 2-3 minuten rijafstand. In de directe omgeving zijn diverse bedrijven gehuisvest waaronder o.a. King Nonwovens, Bakker, Wolter Koops, Brouwer Units en het Tegeldepot.
Het nieuwbouwplan "Bedrijvenparc Zeewolde" bestaat uit 4 middelgrote bedrijfsunits, in grootte variërend van 416 m² tot 419 m² bruto vloeroppervlak. Voor de units worden parkeerplaatsen aangelegd. De gebouwen worden duurzaam opgeleverd met o.a. hoge isolatiewaardes, vloerverwarming (voorbereidt) en eigentijdse luxe uitstraling.
Elke unit wordt voorzien van een (gedeeltelijke) verdiepingsvloer zodat op de verdieping eventueel kantoorruimte e.d. kan worden gemaakt. Tevens kunnen (meerdere) units gekoppeld worden.
Opleveringsniveau
Elke unit is voorzien van:
- Aansluitingen in meterkast voor elektra, water, glasvezel;
- Afvoer riool in vloer gestort;
- Monoliet afgewerkte begane grond vloer met draagvermogen van circa 1.700 kg/m²;
- Kanaalplaatvloer (onafgewerkt) verdieping met draagvermogen van circa 500 kg/m²;
- Overheaddeur (circa 3,75 x 4,20 meter);
- Kunststof profiel kozijnen met draai/kiepraam met meerpuntssluiting;
- Vurenhouten trap naar verdieping;
- Betonnen plint in gevel gebouw;
- Vrije hoogte circa 7 meter;
- Gevel deels voorzien van sandwichpanelen;
- Mogelijkheid om zonnepanelen te plaatsen op het dak door koper;
De units worden nieuw gebouwd en volgens de laatste inzichten, regelgeving en normering casco opgeleverd.
Bestemming
De voor 'Bedrijventerrein - 3' aangewezen gronden zijn bestemd voor:
- ter plaatse van de aanduiding 'bedrijf tot en met categorie 3.2', het uitoefenen van bedrijfsmatige activiteiten in de categorieën 1 tot en met 3.2 van de bij deze regels behorende Staat van Bedrijfsactiviteiten-Horsterparc;
met dien verstande dat:
g. risicovolle inrichtingen niet zijn toegestaan;
h. bedrijven die in belangrijke mate geluidhinder kunnen veroorzaken niet zijn toegestaan;
Kadaster
Het betreft grond in vol eigendom wat gesplitst zal gaan worden in appartementsrechten.
Koopprijs en oppervlakte
unit begane grond verdieping Koopsom Status
1. 335 m² 83 m² € 585.000,- OPTIE
2. 335 m² 83 m² € 545.000,- BESCHIKBAAR
3. 335 m² 83 m² € 535.000,- BESCHIKBAAR
4. 335 m² 83 m² € 565.000,- OPTIE
De oppervlaktes zijn op basis van Bruto Vloer Oppervlakte (b.v.o.) vermeld. Bekijk de plattegronden voor de exacte oppervlakte per unit. Prijzen zijn geldig tot 1 april 2026.
Parkeren
Op eigen terrein worden ruim voldoende parkeerplaatsen aangelegd die verdeeld worden tussen de eigenaren.
Bijkomende kosten en BTW
De units worden "Vrij op naam" geleverd. De kosten voor de levering bij de notaris zijn inbegrepen in de prijs. De genoemde prijzen zijn exclusief 21% BTW.
Voor de aansluiting op de nutsvoorzieningen wordt een bijdrage van € 3.000,- in rekening gebracht met als uitgangspunt dat er een 3 x 35 A elektra aansluiting wordt geleverd.
Vve
Er zal een Vereniging van Eigenaren worden opgericht waar de kopers automatisch lid van worden. Er zal een maandelijkse bijdrage worden gevraagd tussen de circa € 250,- per unit naar verwachting voor reservering van o.a. groot onderhoud, opstalverzekering en onderhoud van het buitenterrein.
Projectnotaris
PVM uit Almere.
Planning
De bouwvergunning is verleend. De verwachting is dat de bouw start in april 2026 en de oplevering in 2026 plaats vindt.
Aanvaarding
In overleg.
MEER INFO VIA
UPPELSCHOTEN REAL ESTATE | 085-0605055
Wij werken voor ú
Map
Map is loading...
Cadastral boundaries
Buildings
Travel time
Gain insight into the reachability of this object, for instance from a public transport station or a home address.