Grevelingenstraat 11-a 4301 XZ Zierikzee
€ 2,750 p/mo.
€ 495,000 v.o.n.
Description
Bedrijfsruimte te koop en te huur Grevelingenstraat 11a, Zierikzee
Neeskens Bedrijfsmakelaars biedt aan: een nieuw gebouwde bedrijfsruimte op een perceel van 468 m² eigen grond, gelegen aan de Grevelingenstraat in Zierikzee. De locatie bevindt zich in een gebied met veel grootschalige detailhandel, waaronder Praxis, Welkoop, Aldi, Leen Bakker, Albert Heijn en Lidl. Een representatieve en goed bereikbare locatie voor ondernemers die zichtbaarheid en bereikbaarheid belangrijk vinden.
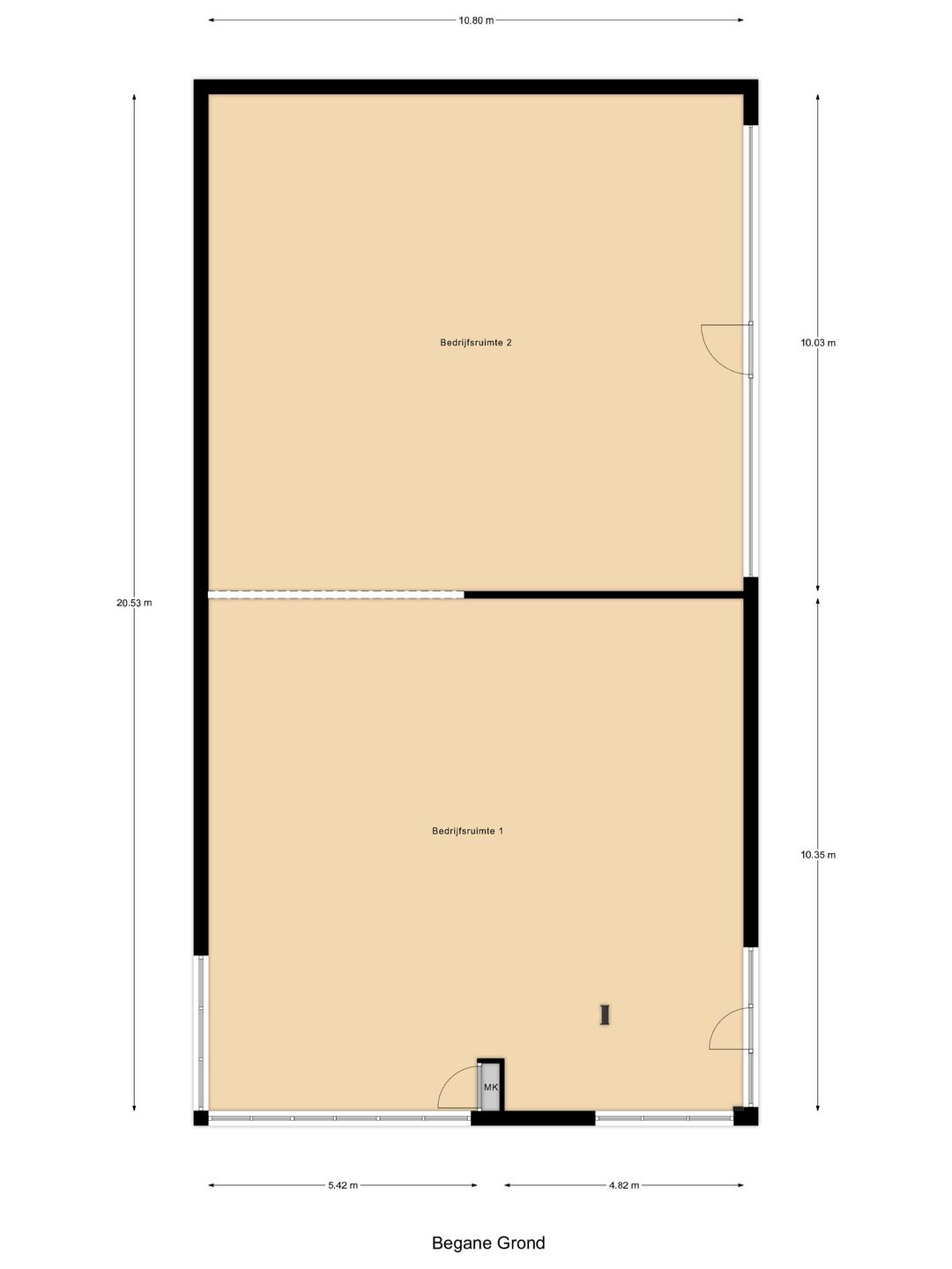
De bedrijfsunit beschikt over een begane grond van circa 220 m² en een verdieping van circa 100 m². Aan de voorzijde is er eigen parkeergelegenheid en voldoende ruimte om het terrein aan de achterzijde te bereiken. Ook achter het pand bevindt zich nog extra buitenterrein. De voorzijde is voorzien van een loopdeur met eigen entree, terwijl aan de achterzijde twee roldeuren toegang geven tot de bedrijfsruimte. De begane grond is voorzien van vloerverwarming (zonder verwarmingsinstallatie). Op de verdieping is geen vloerverwarming aanwezig. Het pand beschikt over aansluitingen voor water, elektra en afvoer. De vloerbelasting op de begane grond bedraagt 2.500 kg/m². Een vaste trap naar de verdieping is nog niet geplaatst, waardoor de indeling naar wens kan worden gerealiseerd.
Kenmerken
- Perceel oppervlakte: 468 m² eigen grond
- Bedrijfsoppervlakte begane grond: ca. 220 m²
- Verdieping: ca. 100 m²
- Vloerbelasting begane grond: 2.500 kg/m²
- Vloerverwarming aanwezig op begane grond
- Twee roldeuren aan de achterzijde
- Eigen parkeergelegenheid aan de voorzijde
- Extra buitenterrein aan de achterzijde
- Aansluitingen voor water en elektra
- Gelegen tussen diverse grootschalige detailhandels (o.a. Praxis, Welkoop, Aldi, Leen Bakker, Albert Heijn en Lidl)
- Een representatieve bedrijfsruimte met uitbreidingsmogelijkheden, goede bereikbaarheid en uitstekende ligging in een levendig bedrijfs- en detailhandelsgebied.
Bestemming:
Volgens de website omgevingsloket bedraagt de bestemming.
De voor 'Bedrijventerrein - 1' aangewezen gronden zijn bestemd voor:
bedrijven en bedrijfsactiviteiten voor zover deze voorkomen in de categorieën 1 en 2 van de bij deze regels horende Staat van Bedrijfsactiviteiten.
Hierbij horende ondergeschikte voorzieningen zoals verhardingen, voet- en fietspaden, inritten, parkeervoorzieningen, water, waterhuishoudkundige voorzieningen, nutsvoorzieningen en groenvoorzieningen.
Ter plaatse van de aanduiding 'parkeerterrein': uitsluitend een parkeerterrein.
Volgens het omgevingsloket is het volgende van toepassing:
De voor Bedrijventerrein - 1 aangewezen gronden zijn ook bestemd voor:
detailhandel in volumineuze goederen
detailhandel in de volgende detailhandelsbranches:
- woninginrichting, inclusief keukens en badkamers;
- tuincentra, plant- en dierbenodigdheden;
- bouwmarkten en doe-het-zelf;
- fietsen en automaterialen.
Koper is zelf verantwoordelijk na te gaan bij het bevoegd gezag of het gewenste gebruik is toegestaan. We adviseren u dit altijd voor aankoop of huur te overleggen.
Kadastrale informatie
Kadastraal bekend gemeente Zierikzee H 1709 groot 468m2
Energielabel
Het pand beschikt nog niet over een energielabel.
Vraagprijs
De vraagprijs is € 495.000,-- VON excl. BTW
Fiscaal:
Het object is belast met de BTW (21%). De koopsom is mogelijk vrijgesteld van overdrachtsbelasting (10,4%). Dit onder goedkeuring behandelend notaris. Indien dit niet het geval is komt de overdrachtsbelasting voor rekening van koper. Verkoper verklaart dat hij het pand nog niet in gebruik genomen heeft.
Zekerheidstelling
Een garantie ter grootte van een 10% van de koopsom.
Oplevering
In overleg.
Bijzonderheden
Verkoop geschiedt onder voorbehoud goedkeuring van de verkoper.
Huurprijs:
De huurprijs bedraagt € 2750,- per maand excl. BTW
Kenmerken overeenkomst huur:
In geval u verdere interesse heeft en er uiteindelijk een overeenkomst tot stand komt, gelden de navolgende bepalingen:
Omzetbelasting huur:
Verhuurder wenst te opteren voor BTW belaste huur en verhuur. Ingeval huurder niet aan de gestelde criteria voor belaste verhuur voldoet, wordt de huurprijs verhoogd ter compensatie van de gevolgen van het vervallen van de mogelijkheid om te opteren voor de BTW belaste huur.
Huurbetaling:
De huurpenningen dienen te worden voldaan bij vooruitbetaling per kwartaal of per maand.
Huurtermijn:
In nader overleg overeen te komen.
Huurovereenkomst:
De huurovereenkomst zal volgens model ROZ- model kantoor en overige bedrijfsruimte worden opgesteld.
Huurindexatie:
Jaarlijks, voor het eerst 1 jaar na ingangsdatum huurovereenkomst, op basis van de wijziging van het maandprijsindexcijfer volgens de Consumentenprijsindex (CPI), reeks, CPI- Alle Huishoudens (2015 = 100) zoals gepubliceerd door het Centraal Bureau voor de Statistiek (CBS).
Waarborgsom:
Een waarborgsom ter grootte van een betalingsverplichting van 3 maanden huur inclusief BTW.
Algemeen:
Deze informatie is met zorg samengesteld. Voor de juistheid daarvan kan echter geen aansprakelijkheid worden aanvaard, noch kan aan de vermelde gegevens enig recht worden ontleend. Alle opgegeven afmetingen zijn indicatief. Deze informatie dient slechts als uitnodiging om in onderhandeling te treden en kan derhalve niet kan worden beschouwd als een aanbod of offerte.
Neeskens Bedrijfsmakelaars biedt aan: een nieuw gebouwde bedrijfsruimte op een perceel van 468 m² eigen grond, gelegen aan de Grevelingenstraat in Zierikzee. De locatie bevindt zich in een gebied met veel grootschalige detailhandel, waaronder Praxis, Welkoop, Aldi, Leen Bakker, Albert Heijn en Lidl. Een representatieve en goed bereikbare locatie voor ondernemers die zichtbaarheid en bereikbaarheid belangrijk vinden.
De bedrijfsunit beschikt over een begane grond van circa 220 m² en een verdieping van circa 100 m². Aan de voorzijde is er eigen parkeergelegenheid en voldoende ruimte om het terrein aan de achterzijde te bereiken. Ook achter het pand bevindt zich nog extra buitenterrein. De voorzijde is voorzien van een loopdeur met eigen entree, terwijl aan de achterzijde twee roldeuren toegang geven tot de bedrijfsruimte. De begane grond is voorzien van vloerverwarming (zonder verwarmingsinstallatie). Op de verdieping is geen vloerverwarming aanwezig. Het pand beschikt over aansluitingen voor water, elektra en afvoer. De vloerbelasting op de begane grond bedraagt 2.500 kg/m². Een vaste trap naar de verdieping is nog niet geplaatst, waardoor de indeling naar wens kan worden gerealiseerd.
Kenmerken
- Perceel oppervlakte: 468 m² eigen grond
- Bedrijfsoppervlakte begane grond: ca. 220 m²
- Verdieping: ca. 100 m²
- Vloerbelasting begane grond: 2.500 kg/m²
- Vloerverwarming aanwezig op begane grond
- Twee roldeuren aan de achterzijde
- Eigen parkeergelegenheid aan de voorzijde
- Extra buitenterrein aan de achterzijde
- Aansluitingen voor water en elektra
- Gelegen tussen diverse grootschalige detailhandels (o.a. Praxis, Welkoop, Aldi, Leen Bakker, Albert Heijn en Lidl)
- Een representatieve bedrijfsruimte met uitbreidingsmogelijkheden, goede bereikbaarheid en uitstekende ligging in een levendig bedrijfs- en detailhandelsgebied.
Bestemming:
Volgens de website omgevingsloket bedraagt de bestemming.
De voor 'Bedrijventerrein - 1' aangewezen gronden zijn bestemd voor:
bedrijven en bedrijfsactiviteiten voor zover deze voorkomen in de categorieën 1 en 2 van de bij deze regels horende Staat van Bedrijfsactiviteiten.
Hierbij horende ondergeschikte voorzieningen zoals verhardingen, voet- en fietspaden, inritten, parkeervoorzieningen, water, waterhuishoudkundige voorzieningen, nutsvoorzieningen en groenvoorzieningen.
Ter plaatse van de aanduiding 'parkeerterrein': uitsluitend een parkeerterrein.
Volgens het omgevingsloket is het volgende van toepassing:
De voor Bedrijventerrein - 1 aangewezen gronden zijn ook bestemd voor:
detailhandel in volumineuze goederen
detailhandel in de volgende detailhandelsbranches:
- woninginrichting, inclusief keukens en badkamers;
- tuincentra, plant- en dierbenodigdheden;
- bouwmarkten en doe-het-zelf;
- fietsen en automaterialen.
Koper is zelf verantwoordelijk na te gaan bij het bevoegd gezag of het gewenste gebruik is toegestaan. We adviseren u dit altijd voor aankoop of huur te overleggen.
Kadastrale informatie
Kadastraal bekend gemeente Zierikzee H 1709 groot 468m2
Energielabel
Het pand beschikt nog niet over een energielabel.
Vraagprijs
De vraagprijs is € 495.000,-- VON excl. BTW
Fiscaal:
Het object is belast met de BTW (21%). De koopsom is mogelijk vrijgesteld van overdrachtsbelasting (10,4%). Dit onder goedkeuring behandelend notaris. Indien dit niet het geval is komt de overdrachtsbelasting voor rekening van koper. Verkoper verklaart dat hij het pand nog niet in gebruik genomen heeft.
Zekerheidstelling
Een garantie ter grootte van een 10% van de koopsom.
Oplevering
In overleg.
Bijzonderheden
Verkoop geschiedt onder voorbehoud goedkeuring van de verkoper.
Huurprijs:
De huurprijs bedraagt € 2750,- per maand excl. BTW
Kenmerken overeenkomst huur:
In geval u verdere interesse heeft en er uiteindelijk een overeenkomst tot stand komt, gelden de navolgende bepalingen:
Omzetbelasting huur:
Verhuurder wenst te opteren voor BTW belaste huur en verhuur. Ingeval huurder niet aan de gestelde criteria voor belaste verhuur voldoet, wordt de huurprijs verhoogd ter compensatie van de gevolgen van het vervallen van de mogelijkheid om te opteren voor de BTW belaste huur.
Huurbetaling:
De huurpenningen dienen te worden voldaan bij vooruitbetaling per kwartaal of per maand.
Huurtermijn:
In nader overleg overeen te komen.
Huurovereenkomst:
De huurovereenkomst zal volgens model ROZ- model kantoor en overige bedrijfsruimte worden opgesteld.
Huurindexatie:
Jaarlijks, voor het eerst 1 jaar na ingangsdatum huurovereenkomst, op basis van de wijziging van het maandprijsindexcijfer volgens de Consumentenprijsindex (CPI), reeks, CPI- Alle Huishoudens (2015 = 100) zoals gepubliceerd door het Centraal Bureau voor de Statistiek (CBS).
Waarborgsom:
Een waarborgsom ter grootte van een betalingsverplichting van 3 maanden huur inclusief BTW.
Algemeen:
Deze informatie is met zorg samengesteld. Voor de juistheid daarvan kan echter geen aansprakelijkheid worden aanvaard, noch kan aan de vermelde gegevens enig recht worden ontleend. Alle opgegeven afmetingen zijn indicatief. Deze informatie dient slechts als uitnodiging om in onderhandeling te treden en kan derhalve niet kan worden beschouwd als een aanbod of offerte.
Features
Transfer of ownership
- Asking price
- € 495,000 vrij op naam
- Rental price
- € 2,750 per month
- Listed since
-
- Status
- Available
- Acceptance
- Available in consultation
Construction
- Main use
- Industrial unit
- Building type
- Resale property
- Year of construction
- 2024
Surface areas
- Area
- 320 m²
- Industrial unit area
- 320 m²
- Plot size
- 468 m²
Layout
- Facilities
- Overhead doors and concrete floor
Energy
- Energy label
- Not required
Surroundings
- Location
- Business park
Real estate agent
Photos