Dautzenbergstraat 21 6411 LA Heerlen
€ 479,000 k.k.
Description
TE KOOP | DAUTZENBERGSTRAAT 21 | HEERLEN | BELEGGING OF EIGEN GEBRUIK
Wegens de verhuizing van Dresscode naar een andere locatie in Heerlen, bieden wij dit representatieve retailobject aan, gelegen aan de Dautzenbergstraat, een geliefde zijstraat van de drukbezochte Saroleastraat. De locatie kenmerkt zich door een sterke mix van landelijke retailers en lokale ondernemers.
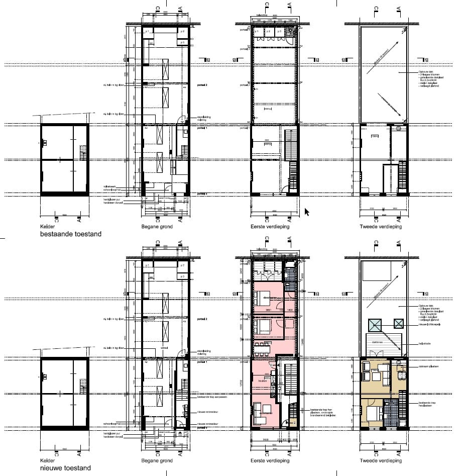
Het object bestaat uit drie verdiepingen, een kelder en een zolder en beschikt over drie huisnummers (21, 21a en 21b), wat flexibiliteit biedt in gebruik en toekomstige invulling. De verkoopvloeroppervlakte is gesitueerd op de begane grond en de eerste verdieping, terwijl de tweede verdieping momenteel dienstdoet als opslagruimte.
Een belangrijk pluspunt is de principegoedkeuring van de gemeente voor de realisatie van twee zelfstandige appartementen op de eerste en tweede verdieping. Daarnaast is het mogelijk om een maisonette boven de winkel te realiseren (tekeningen op aanvraag beschikbaar). Dit biedt interessante herontwikkelings- en beleggingsmogelijkheden, bijvoorbeeld in combinatie met behoud van retail op de begane grond.
Het pand is hoogwaardig afgewerkt en voorzien van moderne installaties. Zo beschikt de begane grond over vloerverwarming en zijn er airconditioningsystemen op alle verdiepingen, wat zorgt voor optimaal comfort voor zowel personeel als bezoekers.
Momenteel wordt de onroerende zaak geëxploiteerd door de gerenommeerde modewinkel Dresscode, die hier al bijna 20 jaar een begrip is in Heerlen. Dit onderstreept niet alleen de kwaliteit van het object, maar ook de kracht van de locatie.
Kortom, een uniek vastgoedobject in het centrum van Heerlen, met een solide retailbasis én aantrekkelijke toekomstpotentie voor wonen en/of belegging. Een buitenkans voor investeerders en ondernemers met visie.
BASISKENMERKEN
Adres: Dautzenbergstraat 21, 6411 LA Heerlen
Bouwjaar: 1980
Gebruik: Winkel, dienstverlening, transformatie, belegging
Perceeloppervlakte: 115 m²
Vraagprijs: € 479.000,- k.k.
Aanvaarding: In overleg, op korte termijn mogelijk
LOCATIE
De binnenstad van Heerlen vormt het grootste koopcentrum van de regio Parkstad met ca. 257.000 inwoners. Verder telt Heerlen zelf ca. 87.500 inwoners (Bron: Gemeente Heerlen). De woonboulevard zorgt voor een enorme passantenstroom, voor een groot deel zelfs afkomstig van over de Belgische en Duitse grens. Dit maakt Heerlen tot een kernwinkelgebied met volop kansen voor ondernemers.
Bereikbaarheid:
Per auto: De provinciale- en/of snelwegen richting Maastricht, Eindhoven en Aken zijn binnen no-time bereikbaar.
Per openbaar vervoer: het object is goed bereikbaar met het openbaar vervoer. Het centraal station van Heerlen en diverse bushaltes bevinden zich op loopafstand.
OBJECTINFORMATIE
Het gebouw bestaat uit:
Bouwlaag - Omschrijving – Oppervlakte (v.v.o.)
Begane grond – multifunctionele ruimte - ca. 120 m²
Eerste verdieping – multifunctionele ruimte - ca. 120 m²
Tweede verdieping – multifunctionele ruimte - ca. 50 m²
Totaal ca. 290 m²
Parkeren:
Betaald parkeren in de directe omgeving. Het Corio Center, de Putgraaf en de Geleenstraat beschikken over ruime parkeerfaciliteiten.
Bestemming:
Als ruimtelijk kader geldt het Omgevingsplan ‘Gemeente Heerlen’, met specifiek voor dit object het bestemmingsplan ‘Cityplan Heerlen’. Op basis van dit plan is het object bestemd als ‘Gemengd’. Het Omgevingsplan is op eerste aanvraag beschikbaar via ons kantoor.
Opleveringsniveau:
Het object wordt in huidige staat (´as-is, where-is´) opgeleverd.
KOOPGEGEVENS
Vraagprijs: € 479.000,- kosten koper.
Aanvaarding: In overleg, op korte termijn mogelijk.
Kadastrale info: het object is kadastraal bekend:
Gemeente Heerlen, sectie D, nummers 3441
Totaal groot: 115 m²
Eigendom soort: Volle eigendom.
Oplevering: In huidige staat, vrij van huur en bezemschoon.
Verkoop of verhuur van dit object is te allen tijde onder voorbehoud van schriftelijke goedkeuring door eigenaar.
Alle maten en afmetingen zijn bij benadering weergegeven. Deze aanbieding mag slechts worden gezien als een uitnodiging tot bezichtiging. Een afspraak hiertoe kunt u maken bij ons kantoor.
Wegens de verhuizing van Dresscode naar een andere locatie in Heerlen, bieden wij dit representatieve retailobject aan, gelegen aan de Dautzenbergstraat, een geliefde zijstraat van de drukbezochte Saroleastraat. De locatie kenmerkt zich door een sterke mix van landelijke retailers en lokale ondernemers.
Het object bestaat uit drie verdiepingen, een kelder en een zolder en beschikt over drie huisnummers (21, 21a en 21b), wat flexibiliteit biedt in gebruik en toekomstige invulling. De verkoopvloeroppervlakte is gesitueerd op de begane grond en de eerste verdieping, terwijl de tweede verdieping momenteel dienstdoet als opslagruimte.
Een belangrijk pluspunt is de principegoedkeuring van de gemeente voor de realisatie van twee zelfstandige appartementen op de eerste en tweede verdieping. Daarnaast is het mogelijk om een maisonette boven de winkel te realiseren (tekeningen op aanvraag beschikbaar). Dit biedt interessante herontwikkelings- en beleggingsmogelijkheden, bijvoorbeeld in combinatie met behoud van retail op de begane grond.
Het pand is hoogwaardig afgewerkt en voorzien van moderne installaties. Zo beschikt de begane grond over vloerverwarming en zijn er airconditioningsystemen op alle verdiepingen, wat zorgt voor optimaal comfort voor zowel personeel als bezoekers.
Momenteel wordt de onroerende zaak geëxploiteerd door de gerenommeerde modewinkel Dresscode, die hier al bijna 20 jaar een begrip is in Heerlen. Dit onderstreept niet alleen de kwaliteit van het object, maar ook de kracht van de locatie.
Kortom, een uniek vastgoedobject in het centrum van Heerlen, met een solide retailbasis én aantrekkelijke toekomstpotentie voor wonen en/of belegging. Een buitenkans voor investeerders en ondernemers met visie.
BASISKENMERKEN
Adres: Dautzenbergstraat 21, 6411 LA Heerlen
Bouwjaar: 1980
Gebruik: Winkel, dienstverlening, transformatie, belegging
Perceeloppervlakte: 115 m²
Vraagprijs: € 479.000,- k.k.
Aanvaarding: In overleg, op korte termijn mogelijk
LOCATIE
De binnenstad van Heerlen vormt het grootste koopcentrum van de regio Parkstad met ca. 257.000 inwoners. Verder telt Heerlen zelf ca. 87.500 inwoners (Bron: Gemeente Heerlen). De woonboulevard zorgt voor een enorme passantenstroom, voor een groot deel zelfs afkomstig van over de Belgische en Duitse grens. Dit maakt Heerlen tot een kernwinkelgebied met volop kansen voor ondernemers.
Bereikbaarheid:
Per auto: De provinciale- en/of snelwegen richting Maastricht, Eindhoven en Aken zijn binnen no-time bereikbaar.
Per openbaar vervoer: het object is goed bereikbaar met het openbaar vervoer. Het centraal station van Heerlen en diverse bushaltes bevinden zich op loopafstand.
OBJECTINFORMATIE
Het gebouw bestaat uit:
Bouwlaag - Omschrijving – Oppervlakte (v.v.o.)
Begane grond – multifunctionele ruimte - ca. 120 m²
Eerste verdieping – multifunctionele ruimte - ca. 120 m²
Tweede verdieping – multifunctionele ruimte - ca. 50 m²
Totaal ca. 290 m²
Parkeren:
Betaald parkeren in de directe omgeving. Het Corio Center, de Putgraaf en de Geleenstraat beschikken over ruime parkeerfaciliteiten.
Bestemming:
Als ruimtelijk kader geldt het Omgevingsplan ‘Gemeente Heerlen’, met specifiek voor dit object het bestemmingsplan ‘Cityplan Heerlen’. Op basis van dit plan is het object bestemd als ‘Gemengd’. Het Omgevingsplan is op eerste aanvraag beschikbaar via ons kantoor.
Opleveringsniveau:
Het object wordt in huidige staat (´as-is, where-is´) opgeleverd.
KOOPGEGEVENS
Vraagprijs: € 479.000,- kosten koper.
Aanvaarding: In overleg, op korte termijn mogelijk.
Kadastrale info: het object is kadastraal bekend:
Gemeente Heerlen, sectie D, nummers 3441
Totaal groot: 115 m²
Eigendom soort: Volle eigendom.
Oplevering: In huidige staat, vrij van huur en bezemschoon.
Verkoop of verhuur van dit object is te allen tijde onder voorbehoud van schriftelijke goedkeuring door eigenaar.
Alle maten en afmetingen zijn bij benadering weergegeven. Deze aanbieding mag slechts worden gezien als een uitnodiging tot bezichtiging. Een afspraak hiertoe kunt u maken bij ons kantoor.
Features
Transfer of ownership
- Asking price
- € 479,000 kosten koper
- Listed since
-
- Status
- Available
- Acceptance
- Available in consultation
Construction
- Main use
- Retail outlet with showroom
- Alternative use(s)
- Investment
- Building type
- Resale property
- Year of construction
- 1980
Surface areas
- Area
- 290 m²
- Plot size
- 115 m²
Energy
- Energy label
- Not available
Surroundings
- Location
- Town center
- Accessibility
- Bus stop in less than 500 m, Dutch Railways Intercity station in less than 500 m and motorway exit in 1000 m to 1500 m
NVM real estate agent
Photos