Landjuweel 35 3905 PE Veenendaal
Price on request

Description
Vrijstaand bedrijfscomplex op een ruime kavel van ca. 15.000 m² gelegen op prachtige zichtlocatie aan de Rijksweg A12 op industrieterrein De Faktorij te Veenendaal.
Het geheel is verhuurd en biedt in de toekomst diverse mogelijkheden zoals herontwikkeling.
Adres:
Landjuweel 35 te Veenendaal.
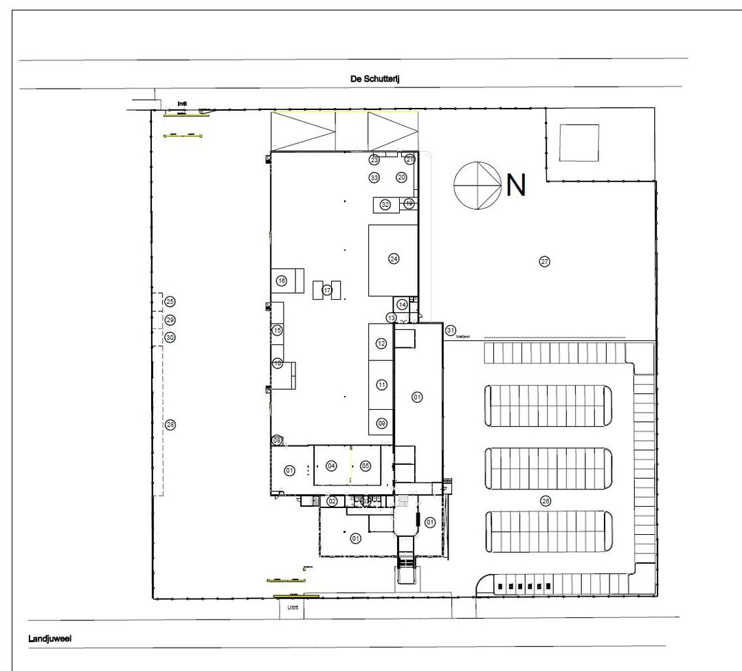
Oppervlakte kavel:
14.999 m²
Koopprijs:
Op aanvraag.
Opleveringsniveau:
In huidige (verhuurde) staat, "as is where is".
Kadastraal:
Gemeente Veenendaal.
Sectie G
Nummer 1929 en 1316
Grootte 14.530 m² en 469 m²
Parkeren:
Voldoende parkeergelegenheid op eigen terrein ca. 121 stuks exclusiefs overig buitenterrein.
Bouwjaar:
Omstreeks 1985 en in de jaren grotendeels gerenoveerd.
Label:
A.
Ontwikkellocatie:
Het object is gelegen op een grote kavel waardoor het ook een perfecte ontwikkelingslocatie voor bedrijfsgebouwen is, met een strategische ligging langs de A12, in de richting van Utrecht en Arnhem. Deze zichtlocatie is ideaal voor bedrijven die zowel van de uitstekende bereikbaarheid als van de zichtbaarheid willen profiteren.
De locatie heeft als bestemming “Bedrijf” met de functieaanduiding bedrijf tot en met categorie 3.1.
De maximum bouwhoogte is 15 m.
Huursituatie:
Huurder:
Heijmans Facilitair Bedrijf B.V.
Looptijd:
T/m 31 december 2028.
Verlenging:
Telkens drie (03) jaar.
Opzegtermijn:
12 maanden.
Huurprijs:
€ 429.675,28 per jaar exclusief btw.
Btw:
Ja.
Indexatie:
Eerste indexatie per 1 januari 2026.
Garantstelling:
Concerngarantie € 125.537,50
Het gebouw:
Oppervlakte:
Begane grond:
Kantoorruimte en overige ruimtes 1.280,60 m²
Bedrijfsruimte 2.369,9 m²
Eerste verdieping
Kantoorruimte en overige ruimtes 847,65 m²
Totaal: 4.498,15 m²
Bovenstaande metrages zijn niet op basis van de NEN ingemeten.
Het geheel is verhuurd en biedt in de toekomst diverse mogelijkheden zoals herontwikkeling.
Adres:
Landjuweel 35 te Veenendaal.
Oppervlakte kavel:
14.999 m²
Koopprijs:
Op aanvraag.
Opleveringsniveau:
In huidige (verhuurde) staat, "as is where is".
Kadastraal:
Gemeente Veenendaal.
Sectie G
Nummer 1929 en 1316
Grootte 14.530 m² en 469 m²
Parkeren:
Voldoende parkeergelegenheid op eigen terrein ca. 121 stuks exclusiefs overig buitenterrein.
Bouwjaar:
Omstreeks 1985 en in de jaren grotendeels gerenoveerd.
Label:
A.
Ontwikkellocatie:
Het object is gelegen op een grote kavel waardoor het ook een perfecte ontwikkelingslocatie voor bedrijfsgebouwen is, met een strategische ligging langs de A12, in de richting van Utrecht en Arnhem. Deze zichtlocatie is ideaal voor bedrijven die zowel van de uitstekende bereikbaarheid als van de zichtbaarheid willen profiteren.
De locatie heeft als bestemming “Bedrijf” met de functieaanduiding bedrijf tot en met categorie 3.1.
De maximum bouwhoogte is 15 m.
Huursituatie:
Huurder:
Heijmans Facilitair Bedrijf B.V.
Looptijd:
T/m 31 december 2028.
Verlenging:
Telkens drie (03) jaar.
Opzegtermijn:
12 maanden.
Huurprijs:
€ 429.675,28 per jaar exclusief btw.
Btw:
Ja.
Indexatie:
Eerste indexatie per 1 januari 2026.
Garantstelling:
Concerngarantie € 125.537,50
Het gebouw:
Oppervlakte:
Begane grond:
Kantoorruimte en overige ruimtes 1.280,60 m²
Bedrijfsruimte 2.369,9 m²
Eerste verdieping
Kantoorruimte en overige ruimtes 847,65 m²
Totaal: 4.498,15 m²
Bovenstaande metrages zijn niet op basis van de NEN ingemeten.
Features
Transfer of ownership
- Asking price
- Price on request
- Listed since
-
- Status
- Available
- Acceptance
- Available in consultation
Construction
- Main use
- Investment
- Building type
- Resale property
- Construction period
- 1981-1990
Surface areas
- Area
- 4,498 m²
- Plot size
- 14,999 m²
Energy
- Energy label
- A
Surroundings
- Location
- Business park
- Accessibility
- Dutch Railways Intercity station in 2000 m to 3000 m and motorway exit in 500 m to 1000 m
Parking
- Parking spaces
- 121 uncovered parking spaces
Investment property
- Gross rental income
- € 429,675 per year
- Tenants
- 1 tenant
- Rented
- 4,498 m²
Real estate agent
Photos
































