Pettemerstraat 14 1823 CW Alkmaar
                € 3,075 p/mo.
            
         
Description
Representatieve kantoorruimte te  huur  op 2  verdiepingen in  een modern kantoorgebouw met  een  totale oppervlakte van ca.  294  m² (inclusief  toeslag algemene ruimtes). 
  
De kantoorruimtes beschikken over veel daglicht toetreding door de diverse raampartijen en zijn voorzien van airco, verwarming en een systeemplafond met verlichting.
Deelverhuur is bespreekbaar vanaf 47 m² (incl. toeslag algemene ruimtes). De kantoorruimtes kunnen in overleg gemeubileerd worden opgeleverd.
 
Tevens zijn er 2 eigen parkeerplaatsen bij te huren vanaf 100 m² kantoorruimte of bij het huren van een volledige verdieping.
 
Indeling
Via de centrale entree op de begane grond betreedt u het kantoorgebouw. Op de begane grond is een gemeenschappelijke pantry en kantine. Middels zowel de lift als het ruime trappenhuis begeeft u zich tot de verdiepingen. Iedere verdieping beschikt over een eigen toiletgroep.
 
Eerste verdieping:
Kantoor 1.1: ca. 53 m² (incl. toeslag algemene ruimtes)
Kantoor 1.2: ca. 84 m² (incl. toeslag algemene ruimtes)
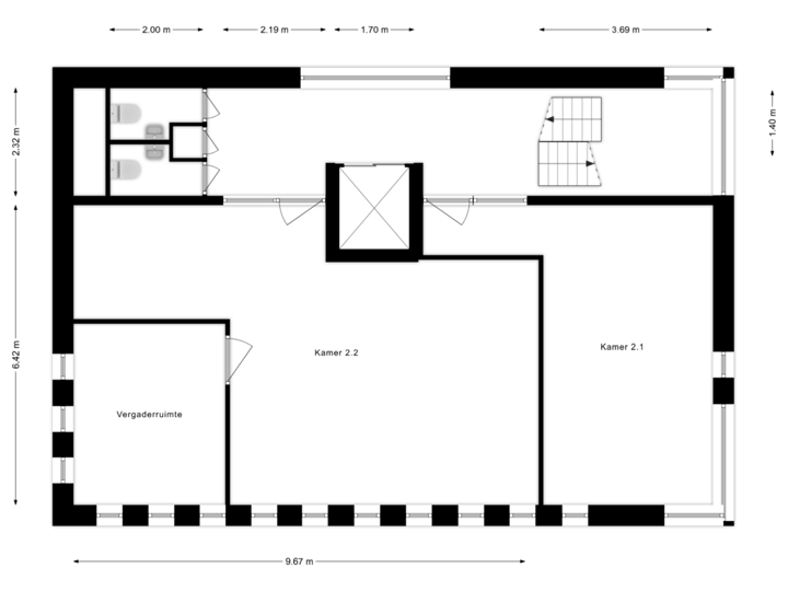
Tweede verdieping:
Kantoor 2.1: ca. 47 m² (incl. toeslag algemene ruimtes)
Kantoor 2.2: ca. 110 m² (incl. toeslag algemene ruimtes)
 
Het gebouw is 24/7 voor u toegankelijk.
 
Het plaatsen van reclame-uitingen op de gevel behoort tot de mogelijkheden. De huurprijs wordt daarvoor met €100 (excl. BTW) per maand verhoogd.
 
Ligging
Dit moderne kantoorgebouw is centraal gelegen in Alkmaar Overstad, op slechts 800 meter vanaf NS-station Alkmaar Centraal en het centrum van de stad.
 
Bereikbaarheid
Het kantoorgebouw is met de auto zeer goed bereikbaar door de centrale ligging in Alkmaar en de omliggende provinciale wegen N242, N245 en de N9.
 
Parkeren
Voor u en uw bezoekers zijn er voldoende betaalde parkeerplaatsen voor de deur of op het naastgelegen parkeerterrein beschikbaar.
 
Voorschot servicekosten
Maandelijks is een verrekenbaar voorschot verschuldigd, bestaande uit:
- verbruik elektra, gas en water
- onderhoud installaties
- schoonmaakkosten gemeenschappelijke ruimten
- glasbewassing
- verzorging huisvuil
- internetverbinding
- OZB gebruiksdeel
 
Bent u op zoek naar een representatieve kantoorruimte met een professionele uitstraling en benieuwd naar de mogelijkheden? Neem gerust contact met ons op voor vragen of een bezichtiging.
 
Aanvaarding
In overleg. Kan op korte termijn geschieden.
 
Huurtermijn
In overleg met verhuurder.
 
Onder- / overmaat
Onder dan wel overmaat van het metrage zal nimmer kunnen leiden tot enige verrekening van de huurprijs en/of eventuele kosten van bijkomende leveringen en diensten tijdens de periode van deze huurovereenkomst met inbegrip van eventuele verlengingen hiervan.
 
Betaling
De huurprijs en het voorschot servicekosten vermeerderd met BTW dienen tegelijk en bij vooruitbetaling per maand te worden voldaan.
De kantoorruimtes beschikken over veel daglicht toetreding door de diverse raampartijen en zijn voorzien van airco, verwarming en een systeemplafond met verlichting.
Deelverhuur is bespreekbaar vanaf 47 m² (incl. toeslag algemene ruimtes). De kantoorruimtes kunnen in overleg gemeubileerd worden opgeleverd.
Tevens zijn er 2 eigen parkeerplaatsen bij te huren vanaf 100 m² kantoorruimte of bij het huren van een volledige verdieping.
Indeling
Via de centrale entree op de begane grond betreedt u het kantoorgebouw. Op de begane grond is een gemeenschappelijke pantry en kantine. Middels zowel de lift als het ruime trappenhuis begeeft u zich tot de verdiepingen. Iedere verdieping beschikt over een eigen toiletgroep.
Eerste verdieping:
Kantoor 1.1: ca. 53 m² (incl. toeslag algemene ruimtes)
Kantoor 1.2: ca. 84 m² (incl. toeslag algemene ruimtes)
Tweede verdieping:
Kantoor 2.1: ca. 47 m² (incl. toeslag algemene ruimtes)
Kantoor 2.2: ca. 110 m² (incl. toeslag algemene ruimtes)
Het gebouw is 24/7 voor u toegankelijk.
Het plaatsen van reclame-uitingen op de gevel behoort tot de mogelijkheden. De huurprijs wordt daarvoor met €100 (excl. BTW) per maand verhoogd.
Ligging
Dit moderne kantoorgebouw is centraal gelegen in Alkmaar Overstad, op slechts 800 meter vanaf NS-station Alkmaar Centraal en het centrum van de stad.
Bereikbaarheid
Het kantoorgebouw is met de auto zeer goed bereikbaar door de centrale ligging in Alkmaar en de omliggende provinciale wegen N242, N245 en de N9.
Parkeren
Voor u en uw bezoekers zijn er voldoende betaalde parkeerplaatsen voor de deur of op het naastgelegen parkeerterrein beschikbaar.
Voorschot servicekosten
Maandelijks is een verrekenbaar voorschot verschuldigd, bestaande uit:
- verbruik elektra, gas en water
- onderhoud installaties
- schoonmaakkosten gemeenschappelijke ruimten
- glasbewassing
- verzorging huisvuil
- internetverbinding
- OZB gebruiksdeel
Bent u op zoek naar een representatieve kantoorruimte met een professionele uitstraling en benieuwd naar de mogelijkheden? Neem gerust contact met ons op voor vragen of een bezichtiging.
Aanvaarding
In overleg. Kan op korte termijn geschieden.
Huurtermijn
In overleg met verhuurder.
Onder- / overmaat
Onder dan wel overmaat van het metrage zal nimmer kunnen leiden tot enige verrekening van de huurprijs en/of eventuele kosten van bijkomende leveringen en diensten tijdens de periode van deze huurovereenkomst met inbegrip van eventuele verlengingen hiervan.
Betaling
De huurprijs en het voorschot servicekosten vermeerderd met BTW dienen tegelijk en bij vooruitbetaling per maand te worden voldaan.
Features
Transfer of ownership
- Rental price
- € 3,075 per month
- Service charges
- € 1,250 per month (21% VAT applies)
- Listed since
- 
        
- Status
- Available
- Acceptance
- Available in consultation
Construction
- Main use
- Office
- Alternative use(s)
- Health care institution
- Building type
- Resale property
- Construction period
- 2001-2010
Surface areas
- Area
- 294 m²
Layout
- Number of floors
- 2 floors
- Facilities
- Air conditioning, mechanical ventilation, built-in fittings, elevators, windows can be opened, cable ducts, modular ceiling, toilet, heating and room layout
Energy
- Energy label
- C 1.23
Surroundings
- Location
- Town center, furniture boulevard, railway station site and large-scale retail location
- Accessibility
- Bus stop in less than 500 m, bus junction in 500 m to 1000 m, Dutch Railways Intercity station in 500 m to 1000 m and motorway exit in 2000 m to 3000 m
Parking
- Parking spaces
- 2 uncovered parking spaces
- Parking costs
- From € 100,- per lot per year (21% VAT applies)
NVM real estate agent
Photos
 
                     
                     
                     
                     
                     
                     
                     
                     
                     
                     
                     
                     
                     
                     
                     
                     
                     
                     
                     
                     
            Floorplan
1e Verdieping
 
                        2e Verdieping
