Zevenhuizen 10 1811 KB Alkmaar
€ 1,895 p/mo.
Description
TE HUUR
Aan één van de belangrijkste entrees van de Alkmaarse binnenstad is deze representatieve kantoor-/praktijkruimte gelegen. De locatie profiteert van een zeer hoge passantenstroom, mede door de directe verbinding tussen Station Alkmaar, de binnenstad, het Canadaplein en de Langestraat, dé hoofdwinkelstraat van Alkmaar.
Dankzij deze uitstekende zichtbaarheid en bereikbaarheid is het object uitermate geschikt voor zakelijke dienstverlening.
De commerciële ruimte heeft een oppervlakte van ca. 85 m² VVO en beschikt over een markante hoekligging met een royale etalage, wat zorgt voor optimale attentiewaarde en presentatie.
De locatie ligt direct naast het razand populaire Kaatje's Bakery café en de Centrale Bibliotheek Alkmaar en op loopafstand van onder andere Theater de Vest, het Stedelijk Museum Alkmaar, diverse horecagelegenheden en de Grote Kerk. Ook het Canadaplein, hét cultuurplein van Alkmaar, bevindt zich op korte afstand.
Deze combinatie van cultuur, retail, horeca en openbaar vervoer zorgt voor een constante stroom van bezoekers van hoge kwaliteit.
Huurprijs
€ 1.895,- per maand, excl. BTW.
Servicekosten
Een bedrag ter grootte van € 50,- excl. BTW per maand ten behoeve van de Vereniging van Eigenaren.
Tevens wordt Huurder zelf contribuant van de Nutsleveranciers.
*bij een niet BTW-plichtige partij: er dient een correctie te komen op de servicekosten (BTW compensatie).
Inhoudsbeschrijving
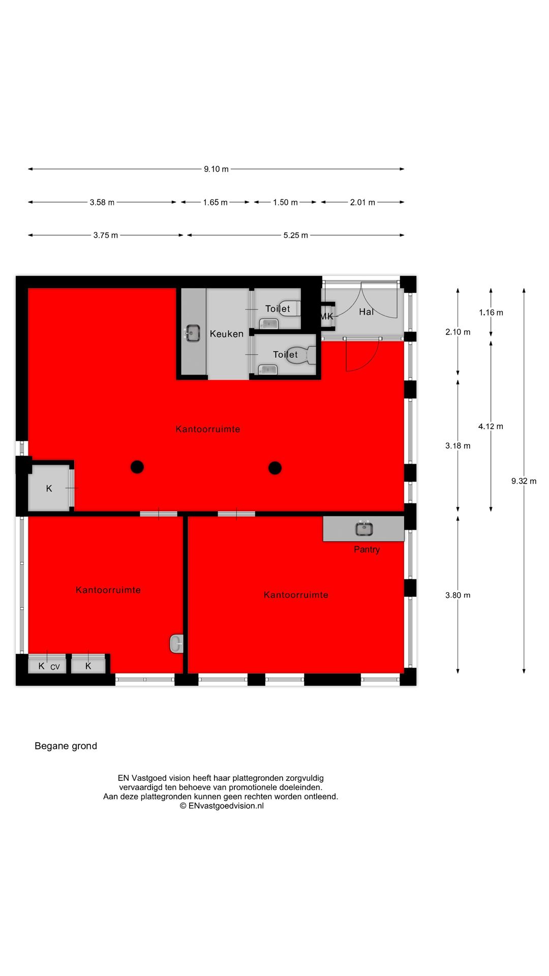
Middels de entree (dubbele loopdeur) bereikt u het voorportaal vanwaar u vervolgens direct de kantoor-/praktijkruimte binnen stapt. Deze ruimte geeft u toegang tot twee separate kantoorkamers, de pantry en de twee toiletten. Beide kantoorkamers zijn voorzien van pantry / fonteintje.
Opleveringsniveau
Het object wordt in de huidige staat, leeg en ontruimd opgeleverd.
Installaties
- Gas, water en elektra aansluitingen;
- Systeemplafond v.v. verlichting;
- Radiatoren aangesloten op een cv-ketel;
- Patchkast;
- Raambekleding;
- Alarm;
- Pantry (2 x);
- Bezoekerstoilet;
- Personeelstoilet.
Parkeren
Betaald parkeren is mogelijk direct naast het object en in de directe omgeving en in nabijgelegen parkeergarages.
Bereikbaarheid
Het object is uitstekend bereikbaar, zowel per auto als te voet en met het openbaar vervoer.
Kadastrale gegevens
Gemeente: Alkmaar.
Sectie: A.
Nummer: 4637 A4.
Bouwjaar
1985, conform de BAG Viewer van het Kadaster.
Energielabel
Van het aangeboden object is het energielabel thans in aanvraag.
Bestemming
Bij de gemeente Alkmaar valt het perceel binnen het bestemmingsplan “Binnenstad Centrum”. Dit houdt in dat het perceel bestemd is voor “kantoren, consumentverzorgende dienstverlening, galerie, maatschappelijke doeleinden, culturele voorzieningen, kleinschalige sportvoorzieningen”. Bij twijfel over het toestaan van uw bedrijfsvoering adviseren wij u zelf contact op te nemen met de Gemeente Alkmaar of via het Omgevingsloket.
Model overeenkomst
Naar meest recente model van de Raad voor Onroerende Zaken (ROZ),
Een bankgarantie of waarborgsom ter grootte van drie maanden huurverplichting (inclusief de verschuldigde BTW en servicekosten en de daarover verschuldigde BTW*).
*De BTW is uitsluitend bedoeld om de hoogte van de zekerheidsstelling te bepalen en kan niet in de BTW administratie worden opgenomen.
Huurtermijn
Uitgangspunt is 5 + 5 jaar, afwijkende termijn in overleg.
Aanvaarding
In overleg.
BTW
De huurprijs is gebaseerd op het feit dat de huurder het gehuurde blijvend gebruikt of blijvend laat gebruiken voor doeleinden waarvoor een volledig of minimaal een in de Wet op de Omzetbelasting 1968 genoemd percentage recht op aftrek van de omzetbelasting op de voet van artikel 15 van de Wet op de Omzetbelasting 1968.
Indexering
Jaarlijks, voor het eerst een jaar na huuringangsdatum, conform de reeks consumentenprijsindexcijfers (CPI Alle Huishoudens), zoals gepubliceerd door het Centraal Bureau voor de Statistiek op basis van het meest recente prijsindexcijfer (thans 2015=100).
Huurprijsbetaling
In maandtermijnen bij vooruitbetaling te voldoen.
Voorbehoud
Goedkeuring en gunning eigenaar.
Alle informatie is geheel vrijblijvend en houdt enkel in een uitnodiging tot het doen van een bieding. Alle gegevens zijn met zorg samengesteld en uit ons inziens betrouwbare bron afkomstig. Ten aanzien van de juistheid ervan kunnen wij echter geen aansprakelijkheid aanvaarden.
Aan één van de belangrijkste entrees van de Alkmaarse binnenstad is deze representatieve kantoor-/praktijkruimte gelegen. De locatie profiteert van een zeer hoge passantenstroom, mede door de directe verbinding tussen Station Alkmaar, de binnenstad, het Canadaplein en de Langestraat, dé hoofdwinkelstraat van Alkmaar.
Dankzij deze uitstekende zichtbaarheid en bereikbaarheid is het object uitermate geschikt voor zakelijke dienstverlening.
De commerciële ruimte heeft een oppervlakte van ca. 85 m² VVO en beschikt over een markante hoekligging met een royale etalage, wat zorgt voor optimale attentiewaarde en presentatie.
De locatie ligt direct naast het razand populaire Kaatje's Bakery café en de Centrale Bibliotheek Alkmaar en op loopafstand van onder andere Theater de Vest, het Stedelijk Museum Alkmaar, diverse horecagelegenheden en de Grote Kerk. Ook het Canadaplein, hét cultuurplein van Alkmaar, bevindt zich op korte afstand.
Deze combinatie van cultuur, retail, horeca en openbaar vervoer zorgt voor een constante stroom van bezoekers van hoge kwaliteit.
Huurprijs
€ 1.895,- per maand, excl. BTW.
Servicekosten
Een bedrag ter grootte van € 50,- excl. BTW per maand ten behoeve van de Vereniging van Eigenaren.
Tevens wordt Huurder zelf contribuant van de Nutsleveranciers.
*bij een niet BTW-plichtige partij: er dient een correctie te komen op de servicekosten (BTW compensatie).
Inhoudsbeschrijving
Middels de entree (dubbele loopdeur) bereikt u het voorportaal vanwaar u vervolgens direct de kantoor-/praktijkruimte binnen stapt. Deze ruimte geeft u toegang tot twee separate kantoorkamers, de pantry en de twee toiletten. Beide kantoorkamers zijn voorzien van pantry / fonteintje.
Opleveringsniveau
Het object wordt in de huidige staat, leeg en ontruimd opgeleverd.
Installaties
- Gas, water en elektra aansluitingen;
- Systeemplafond v.v. verlichting;
- Radiatoren aangesloten op een cv-ketel;
- Patchkast;
- Raambekleding;
- Alarm;
- Pantry (2 x);
- Bezoekerstoilet;
- Personeelstoilet.
Parkeren
Betaald parkeren is mogelijk direct naast het object en in de directe omgeving en in nabijgelegen parkeergarages.
Bereikbaarheid
Het object is uitstekend bereikbaar, zowel per auto als te voet en met het openbaar vervoer.
Kadastrale gegevens
Gemeente: Alkmaar.
Sectie: A.
Nummer: 4637 A4.
Bouwjaar
1985, conform de BAG Viewer van het Kadaster.
Energielabel
Van het aangeboden object is het energielabel thans in aanvraag.
Bestemming
Bij de gemeente Alkmaar valt het perceel binnen het bestemmingsplan “Binnenstad Centrum”. Dit houdt in dat het perceel bestemd is voor “kantoren, consumentverzorgende dienstverlening, galerie, maatschappelijke doeleinden, culturele voorzieningen, kleinschalige sportvoorzieningen”. Bij twijfel over het toestaan van uw bedrijfsvoering adviseren wij u zelf contact op te nemen met de Gemeente Alkmaar of via het Omgevingsloket.
Model overeenkomst
Naar meest recente model van de Raad voor Onroerende Zaken (ROZ),
Een bankgarantie of waarborgsom ter grootte van drie maanden huurverplichting (inclusief de verschuldigde BTW en servicekosten en de daarover verschuldigde BTW*).
*De BTW is uitsluitend bedoeld om de hoogte van de zekerheidsstelling te bepalen en kan niet in de BTW administratie worden opgenomen.
Huurtermijn
Uitgangspunt is 5 + 5 jaar, afwijkende termijn in overleg.
Aanvaarding
In overleg.
BTW
De huurprijs is gebaseerd op het feit dat de huurder het gehuurde blijvend gebruikt of blijvend laat gebruiken voor doeleinden waarvoor een volledig of minimaal een in de Wet op de Omzetbelasting 1968 genoemd percentage recht op aftrek van de omzetbelasting op de voet van artikel 15 van de Wet op de Omzetbelasting 1968.
Indexering
Jaarlijks, voor het eerst een jaar na huuringangsdatum, conform de reeks consumentenprijsindexcijfers (CPI Alle Huishoudens), zoals gepubliceerd door het Centraal Bureau voor de Statistiek op basis van het meest recente prijsindexcijfer (thans 2015=100).
Huurprijsbetaling
In maandtermijnen bij vooruitbetaling te voldoen.
Voorbehoud
Goedkeuring en gunning eigenaar.
Alle informatie is geheel vrijblijvend en houdt enkel in een uitnodiging tot het doen van een bieding. Alle gegevens zijn met zorg samengesteld en uit ons inziens betrouwbare bron afkomstig. Ten aanzien van de juistheid ervan kunnen wij echter geen aansprakelijkheid aanvaarden.
Features
Transfer of ownership
- Rental price
- € 1,895 per month
- Service charges
- € 50 per month (21% VAT applies)
- Listed since
-
- Status
- Available
- Acceptance
- Available in consultation
Construction
- Main use
- Office
- Building type
- Resale property
- Year of construction
- 1985
Surface areas
- Area
- 85 m²
Layout
- Number of floors
- 1 floor
- Facilities
- Modular ceiling, toilet, pantry, heating and room layout
Energy
- Energy label
- Not available
Surroundings
- Location
- Town center
- Accessibility
- Bus stop in less than 500 m, Dutch Railways Intercity station in 1000 m to 1500 m and motorway exit in 2000 m to 3000 m
NVM real estate agent
Photos
Floorplan
Begane grond