Description
BEDRIJFSRUIMTE - KANTOOR - CREATIEVE STUDIORUIMTE - WERKRUIMTE - SHOWROOM - OPSLAG
*** Volg labels als Björn Borg, Total Design, De Kastoor, Wonen 2000, ZUG en Senso en vestig u op deze creatieve hub in het zicht aan de ringweg A10 ***
Hoogwaardig en duurzaam ontwikkeld bedrijfsverzamelgebouw met een prachtig uitzicht over het IJ. De bedrijfsruimte is gelegen op de tweede verdieping aan de Pedro de Medinalaan op het Steigereiland. Het Steigereiland is een van de zeven eilanden van IJburg: het eerste eiland dat u tegenkomt vanaf de markante Enneüs Heermabrug.
Het gebouw ligt direct aan het water en is uitstekend zichtbaar vanaf de Ring A10. Het betreft een modern bedrijfsverzamelgebouw waarin een aantal op techniek gerichte bedrijven is gehuisvest. De verhuur richt zich op huurders actief in techniek en innovatie, passend bij het karakter van het pand. Het pand is duurzaam ontwikkeld en heeft een A++ energielabel, gunstig voor uw bedrijfsvoering en kernwaarden. Voor warmte en koeling wordt gebruik gemaakt van een Warmte-koude opslag in de bodem, gecombineerd met stadswarmte. Kortom het pand is volledig voorbereid op gasloos. De gevel bestaat uit corten staal, de constructie betreft een betonskelet, de ruimtes zijn 4 meter hoog, buitenkozijnen met glas van vloer tot plafond en fraaie installaties in het zicht. Alle units beschikken over een buitenruimte aan de westzijde. Waar mogelijk is LED verlichting toegepast.
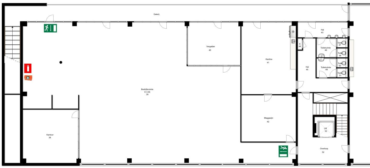
OBJECT
Het gehuurde betreft een kantoor-bedrijfsruimte verdieping van 485 m² VVO gelegen op de tweede verdieping aan de straatzijde. De unit is ingedeeld in een kantoorruimte, directiekantoor, vergaderruimte, grote keuken+kantineruimte, een coworkingspace met eigen pantry en een opslagruimte, De gehele unit bedraagt totaal ca 485 m² VVO, gelegen op de tweede verdieping straatzijde. Genoemde metrages zijn inclusief een pro rata aandeel in de algemene ruimten van het gebouw. Deze verdieping is in zijn geheel te huren voor € 7.680,- per maand excl. BTW en servicekosten. Er zijn 4 parkeerplaatsen bij te huren op eigen terrein ad € 1980,- per parkeerplaats /jaar excl. BTW
LOCATIE en BEREIKBAARHEID
De unit is gelegen op het Steigereiland te IJburg, ook wel de designstrip genoemd. Het eiland is prachtig aan het water gelegen en omzoomd door een groenstrook. De locatie is per auto uitstekend bereikbaar vanaf de ringweg A-10 met de auto afrit Zeeburg/S114. Via de nabijgelegen aansluiting A1 bent u vlot aangesloten op het Gooi-Enschede, via de aansluiting A2 richting Utrecht-Maastricht en via de A7/A8 op Zaandam-Purmerend. De locatie is hoogwaardig verbonden met het OV: op 150 meter afstand van het gebouw ligt de tramhalte Steigereiland van sneltram 26, vanwaar op frequente basis trams vertrekken in de richting van en naar het NS-station Amsterdam Centraal (reistijd ca. 20 minuten). Een bushalte (lijn 359) is gelegen op loopafstand. Op het nabijgelegen Zeeburgereiland zijn 2 P&R terreinen aanwezig. Op loopafstand bevindt zich een eetcafé, een buurtsupermarkt en het Diemerpark voor de nodige ontspanning. Het pand grenst aan een recent opgeleverde openbare steiger waarop u borrels of barbecues kunt organiseren.
PARKEERGELEGENHEID
4 parkeerplaatsen op eigen terrein
OPLEVERINGSNIVEAU
• De kantoorunits worden turn-key opgeleverd inclusief meubilair bespreekbaar
• Gemeenschappelijke entree trappenhuis
• Lift (1000 KG)
• Twee entreedeuren naar de unit
• Gevels uitgevoerd met verdiepingshoge glaspanelen;
• Deels buitenzonwering
• LED verlichting;
• LED verlichting in de algemene ruimten;
• 2 sanitaire groepen per verdieping;
• Keuken in de kantineruimte met vaatwasser, elektrische kookplaat, oven, koelkast
• Coworkingspace met pantry, vaatwasser, vrieskast, koelkast
• Videofooninstallatie;
• Tag-bediening voor het automatisch openen van de slagbomen
• Inbraakalarminstallatie;
• Autolaadpalen op eigen terrein
• Klimaatinstallatie door middel van koude/warmte opslag in de bodem.
• Roerende zaken (kantoormeubilair) ter overname van vorige huurder
SERVICEKOSTEN *
€ 37,50,- per m² v.v.o. per jaar, te vermeerderen met BTW als verrekenbaar voorschot
HUURPRIJSAANPASSING
Jaarlijks, op basis van de wijziging van het maandprijsindexcijfer volgens de consumentenprijsindex (CPI) reeks CPI-Alle Huishoudens (2015 = 100), gepubliceerd door het Centraal Bureau voor de Statistiek (CBS).
HUURTERMIJN:
5 jaar + 5 optiejaren
ZEKERHEIDSSTELLING:
Bankgarantie of waarborgsom ter grootte van 3 maanden huur en voorschot servicekosten inclusief BTW.
HUUROVEREENKOMST:
ROZ model 2015, huurovereenkomst kantoorruimte en andere bedrijfsruimte in de zin van artikel 7:230a BW met de benodigde aanvullingen.
OPZEGTERMIJN
Per 12 maanden voor het einde van de huurovereenkomst
BETALINGEN
Huur, servicekosten en BTW per maand of kwartaal vooruit.
AANVAARDING
In overleg.
*** Volg labels als Björn Borg, Total Design, De Kastoor, Wonen 2000, ZUG en Senso en vestig u op deze creatieve hub in het zicht aan de ringweg A10 ***
Hoogwaardig en duurzaam ontwikkeld bedrijfsverzamelgebouw met een prachtig uitzicht over het IJ. De bedrijfsruimte is gelegen op de tweede verdieping aan de Pedro de Medinalaan op het Steigereiland. Het Steigereiland is een van de zeven eilanden van IJburg: het eerste eiland dat u tegenkomt vanaf de markante Enneüs Heermabrug.
Het gebouw ligt direct aan het water en is uitstekend zichtbaar vanaf de Ring A10. Het betreft een modern bedrijfsverzamelgebouw waarin een aantal op techniek gerichte bedrijven is gehuisvest. De verhuur richt zich op huurders actief in techniek en innovatie, passend bij het karakter van het pand. Het pand is duurzaam ontwikkeld en heeft een A++ energielabel, gunstig voor uw bedrijfsvoering en kernwaarden. Voor warmte en koeling wordt gebruik gemaakt van een Warmte-koude opslag in de bodem, gecombineerd met stadswarmte. Kortom het pand is volledig voorbereid op gasloos. De gevel bestaat uit corten staal, de constructie betreft een betonskelet, de ruimtes zijn 4 meter hoog, buitenkozijnen met glas van vloer tot plafond en fraaie installaties in het zicht. Alle units beschikken over een buitenruimte aan de westzijde. Waar mogelijk is LED verlichting toegepast.
OBJECT
Het gehuurde betreft een kantoor-bedrijfsruimte verdieping van 485 m² VVO gelegen op de tweede verdieping aan de straatzijde. De unit is ingedeeld in een kantoorruimte, directiekantoor, vergaderruimte, grote keuken+kantineruimte, een coworkingspace met eigen pantry en een opslagruimte, De gehele unit bedraagt totaal ca 485 m² VVO, gelegen op de tweede verdieping straatzijde. Genoemde metrages zijn inclusief een pro rata aandeel in de algemene ruimten van het gebouw. Deze verdieping is in zijn geheel te huren voor € 7.680,- per maand excl. BTW en servicekosten. Er zijn 4 parkeerplaatsen bij te huren op eigen terrein ad € 1980,- per parkeerplaats /jaar excl. BTW
LOCATIE en BEREIKBAARHEID
De unit is gelegen op het Steigereiland te IJburg, ook wel de designstrip genoemd. Het eiland is prachtig aan het water gelegen en omzoomd door een groenstrook. De locatie is per auto uitstekend bereikbaar vanaf de ringweg A-10 met de auto afrit Zeeburg/S114. Via de nabijgelegen aansluiting A1 bent u vlot aangesloten op het Gooi-Enschede, via de aansluiting A2 richting Utrecht-Maastricht en via de A7/A8 op Zaandam-Purmerend. De locatie is hoogwaardig verbonden met het OV: op 150 meter afstand van het gebouw ligt de tramhalte Steigereiland van sneltram 26, vanwaar op frequente basis trams vertrekken in de richting van en naar het NS-station Amsterdam Centraal (reistijd ca. 20 minuten). Een bushalte (lijn 359) is gelegen op loopafstand. Op het nabijgelegen Zeeburgereiland zijn 2 P&R terreinen aanwezig. Op loopafstand bevindt zich een eetcafé, een buurtsupermarkt en het Diemerpark voor de nodige ontspanning. Het pand grenst aan een recent opgeleverde openbare steiger waarop u borrels of barbecues kunt organiseren.
PARKEERGELEGENHEID
4 parkeerplaatsen op eigen terrein
OPLEVERINGSNIVEAU
• De kantoorunits worden turn-key opgeleverd inclusief meubilair bespreekbaar
• Gemeenschappelijke entree trappenhuis
• Lift (1000 KG)
• Twee entreedeuren naar de unit
• Gevels uitgevoerd met verdiepingshoge glaspanelen;
• Deels buitenzonwering
• LED verlichting;
• LED verlichting in de algemene ruimten;
• 2 sanitaire groepen per verdieping;
• Keuken in de kantineruimte met vaatwasser, elektrische kookplaat, oven, koelkast
• Coworkingspace met pantry, vaatwasser, vrieskast, koelkast
• Videofooninstallatie;
• Tag-bediening voor het automatisch openen van de slagbomen
• Inbraakalarminstallatie;
• Autolaadpalen op eigen terrein
• Klimaatinstallatie door middel van koude/warmte opslag in de bodem.
• Roerende zaken (kantoormeubilair) ter overname van vorige huurder
SERVICEKOSTEN *
€ 37,50,- per m² v.v.o. per jaar, te vermeerderen met BTW als verrekenbaar voorschot
HUURPRIJSAANPASSING
Jaarlijks, op basis van de wijziging van het maandprijsindexcijfer volgens de consumentenprijsindex (CPI) reeks CPI-Alle Huishoudens (2015 = 100), gepubliceerd door het Centraal Bureau voor de Statistiek (CBS).
HUURTERMIJN:
5 jaar + 5 optiejaren
ZEKERHEIDSSTELLING:
Bankgarantie of waarborgsom ter grootte van 3 maanden huur en voorschot servicekosten inclusief BTW.
HUUROVEREENKOMST:
ROZ model 2015, huurovereenkomst kantoorruimte en andere bedrijfsruimte in de zin van artikel 7:230a BW met de benodigde aanvullingen.
OPZEGTERMIJN
Per 12 maanden voor het einde van de huurovereenkomst
BETALINGEN
Huur, servicekosten en BTW per maand of kwartaal vooruit.
AANVAARDING
In overleg.
Map
Map is loading...
Cadastral boundaries
Buildings
Travel time
Gain insight into the reachability of this object, for instance from a public transport station or a home address.