Velperweg 37 6824 BE Arnhem
€ 145 /m²/year

Description
Dit zeer representatieve kantoorgebouw is gelegen aan de Velperweg, de doorgaande weg van Arnhem naar Velp, waaraan veel grote kantoorgebruikers gehuisvest zijn zoals Dirkzwager Advocaten en Notarissen, Nysingh Advocaten en Notarissen en Van Landschot Bankiers. Op de begane grond is Rabobank gevestigd.
Ligging
Het pand is gelegen nabij NS-station Velperpoort en de Steenstraat. De directe omgeving kent een gemengd karakter vanwege diverse functies zoals, kantoren, winkels, wonen, zorg en onderwijs.
Bereikbaarheid
Zowel met eigen vervoer als openbaar vervoer is deze locatie uitstekend te bereiken. Op ca. 300 m afstand ligt NS-station Velperpoort welke directe verbinding heeft met Arnhem-Centraal, Zutphen en Winterswijk. Met de vlakbij gelegen bushaltes zijn er directe verbindingen met Arnhem Centraal en Velp. De rijkswegen A12, A50 en A325 zijn met de auto in ca. 10 minuten te bereiken.
Vloeroppervlakte
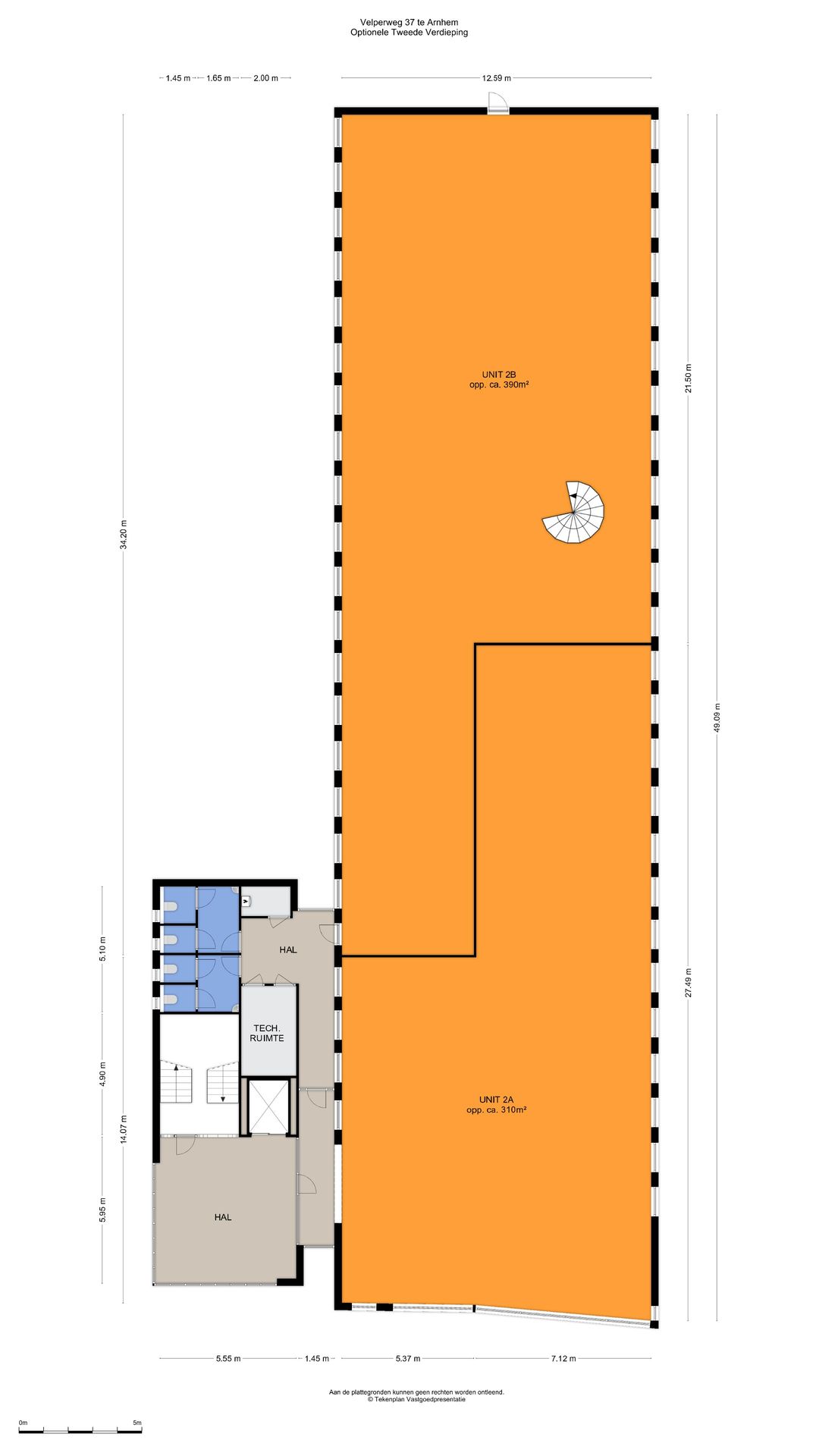
Voor de verhuur is totaal circa 1.400 m² v.v.o. beschikbaar, verdeeld als volgt:
2e verdieping Ca. 700 m²
3e verdieping Ca. 700 m²
Deelverhuur is mogelijk vanaf 235 m².
Bovengenoemde metrage is inclusief doorbelasting van een aandeel van de algemene ruimten.
Opleveringsniveau
- Royale ontvangsthal met mos wand, natuurstenen vloer en elektrische toegangsdeuren;
- Personenlift;
- Mechanische ventilatie met topkoeling;
- Nieuw systeemplafond met ledverlichting;
- Bestaande kabelgoten;
- Gesausde wanden;
- Sanitaire groep per verdieping;
- Zonwering aan de buitenzijde.
Parkeren
Ruime parkeergelegenheid op eigen terrein van 22 parkeerplaatsen, waarvan 2 parkeerplaatsen voorzien zijn van een elektrische laadpaal. In de omgeving is het vrij parkeren.
Huurprijs
€ 145,- per m², per jaar, te vermeerderen met BTW.
Huurprijs parkeerplaatsen
€ 650,- per parkeerplaats, per jaar, te vermeerderen met BTW.
Servicekosten
De servicekosten bedragen € 35,- per m² v.v.o. per jaar te vermeerderen met BTW als verrekenbaar voorschot voor de volgende diensten en leveringen:
- Elektraverbruik in het Gehuurde en de algemene en gemeenschappelijke ruimten, inclusief vastrecht;
- Gasverbruik in het Gehuurde en de algemene en gemeenschappelijke ruimten, inclusief vastrecht;
- Waterverbruik in het Gehuurde en de algemene en gemeenschappelijke ruimten, inclusief vastrecht;
- Glasbewassing buitenzijde;
- Schoonmaak van de algemene en gemeenschappelijke ruimten;
- Onderhoud buitenterrein en tuin;
- Abonnement doormelding brandalarm en brandmeldcentrale;
- Telefonieverbinding liftinstallatie;
- Onderhoud aan en controle van de verlichting in de algemene en gemeenschappelijke ruimten;
- Onderhoud aan en controle van de intercom en deuropeningsinstallatie;
- Onderhoud aan en controle van de brandmeld- en ontruimingsinstallatie;
- Onderhoud aan en controle van de automatische schuifdeuren;
- Onderhoud aan en controle van de liftinstallaties;
- Onderhoud aan en controle van de verwarming, luchtbehandeling, koelmachine, hydrofoor, stoombevochtiger en dakventilator;
- Vervanging van de filter van het luchtbehandelingssysteem;
- Controle van de dakbedekking, goten, hemelwaterafvoeren, dakdoorvoeren en dakranden;
- Onderhoud aan en controle van de buitendeuren (inclusief hang- en sluitwerk);
- Onderhoud gevelinstallatie;
- Onderhoud zonwering;
- Administratiekosten ad 5% over de hierboven genoemde levering van zaken en diensten.
Energielabel
Het object beschikt over energielabel A+
Heeft dit pand uw interesse gewekt? Dan nodigen wij u van harte uit het pand een van binnen te komen bekijken!
BMV Bedrijfsmakelaars
Sweerts de Landasstraat 27
6814 DA Arnhem
026 - 355 21 00
Ligging
Het pand is gelegen nabij NS-station Velperpoort en de Steenstraat. De directe omgeving kent een gemengd karakter vanwege diverse functies zoals, kantoren, winkels, wonen, zorg en onderwijs.
Bereikbaarheid
Zowel met eigen vervoer als openbaar vervoer is deze locatie uitstekend te bereiken. Op ca. 300 m afstand ligt NS-station Velperpoort welke directe verbinding heeft met Arnhem-Centraal, Zutphen en Winterswijk. Met de vlakbij gelegen bushaltes zijn er directe verbindingen met Arnhem Centraal en Velp. De rijkswegen A12, A50 en A325 zijn met de auto in ca. 10 minuten te bereiken.
Vloeroppervlakte
Voor de verhuur is totaal circa 1.400 m² v.v.o. beschikbaar, verdeeld als volgt:
2e verdieping Ca. 700 m²
3e verdieping Ca. 700 m²
Deelverhuur is mogelijk vanaf 235 m².
Bovengenoemde metrage is inclusief doorbelasting van een aandeel van de algemene ruimten.
Opleveringsniveau
- Royale ontvangsthal met mos wand, natuurstenen vloer en elektrische toegangsdeuren;
- Personenlift;
- Mechanische ventilatie met topkoeling;
- Nieuw systeemplafond met ledverlichting;
- Bestaande kabelgoten;
- Gesausde wanden;
- Sanitaire groep per verdieping;
- Zonwering aan de buitenzijde.
Parkeren
Ruime parkeergelegenheid op eigen terrein van 22 parkeerplaatsen, waarvan 2 parkeerplaatsen voorzien zijn van een elektrische laadpaal. In de omgeving is het vrij parkeren.
Huurprijs
€ 145,- per m², per jaar, te vermeerderen met BTW.
Huurprijs parkeerplaatsen
€ 650,- per parkeerplaats, per jaar, te vermeerderen met BTW.
Servicekosten
De servicekosten bedragen € 35,- per m² v.v.o. per jaar te vermeerderen met BTW als verrekenbaar voorschot voor de volgende diensten en leveringen:
- Elektraverbruik in het Gehuurde en de algemene en gemeenschappelijke ruimten, inclusief vastrecht;
- Gasverbruik in het Gehuurde en de algemene en gemeenschappelijke ruimten, inclusief vastrecht;
- Waterverbruik in het Gehuurde en de algemene en gemeenschappelijke ruimten, inclusief vastrecht;
- Glasbewassing buitenzijde;
- Schoonmaak van de algemene en gemeenschappelijke ruimten;
- Onderhoud buitenterrein en tuin;
- Abonnement doormelding brandalarm en brandmeldcentrale;
- Telefonieverbinding liftinstallatie;
- Onderhoud aan en controle van de verlichting in de algemene en gemeenschappelijke ruimten;
- Onderhoud aan en controle van de intercom en deuropeningsinstallatie;
- Onderhoud aan en controle van de brandmeld- en ontruimingsinstallatie;
- Onderhoud aan en controle van de automatische schuifdeuren;
- Onderhoud aan en controle van de liftinstallaties;
- Onderhoud aan en controle van de verwarming, luchtbehandeling, koelmachine, hydrofoor, stoombevochtiger en dakventilator;
- Vervanging van de filter van het luchtbehandelingssysteem;
- Controle van de dakbedekking, goten, hemelwaterafvoeren, dakdoorvoeren en dakranden;
- Onderhoud aan en controle van de buitendeuren (inclusief hang- en sluitwerk);
- Onderhoud gevelinstallatie;
- Onderhoud zonwering;
- Administratiekosten ad 5% over de hierboven genoemde levering van zaken en diensten.
Energielabel
Het object beschikt over energielabel A+
Heeft dit pand uw interesse gewekt? Dan nodigen wij u van harte uit het pand een van binnen te komen bekijken!
BMV Bedrijfsmakelaars
Sweerts de Landasstraat 27
6814 DA Arnhem
026 - 355 21 00
Features
Transfer of ownership
- Rental price
- € 145 per square meter per year
- Service charges
- € 35 per square meter per year (21% VAT applies)
- Listed since
-
- Status
- Available
- Acceptance
- Available in consultation
Construction
- Main use
- Office
- Building type
- Resale property
- Year of construction
- 1993
Surface areas
- Area
- 1,400 m² (units from 235 m²)
Layout
- Number of floors
- 2 floors
- Facilities
- Peak cooling, elevators, windows can be opened, cable ducts, modular ceiling, toilet, pantry, heating and room layout
Energy
- Energy label
- A+
Surroundings
- Location
- Office park and in residential district
- Accessibility
- Bus stop in less than 500 m, Dutch Railways Intercity station in 500 m to 1000 m and motorway exit in 3000 m to 4000 m
Parking
- Parking spaces
- 25 uncovered parking spaces
NVM real estate agent
Photos












































Floorplan
Tweede Verdieping

Optionele Tweede Verdieping

Derde Verdieping

Optionele Derde Verdieping
