Gasthuisstraat 8 3771 HE Barneveld
                € 2,450 p/mo.
            
         
Description
Te huur KARAKTERISTIEK  KANTOORPAND  (woon-werk) gelegen  in directe  nabijheid van het winkelcentrum  van  Barneveld. De locatie biedt  de  mogelijkheid om verschillende  activiteiten te vestigen  waaronder dienstverlening-, detailhandel-,  gezondheidszorg-  en kantooractiviteiten.  Daarnaast biedt deze locatie ook de combinatie voor wonen (1e verdieping) en 
werken. De ruimten bevinden zich op de begane grond (circa 55 m²) en op de eerste verdieping (circa 45m²). Het pand bestaat uit meerdere kantoor-/ spreekkamers, die voorzien zijn van voldoende daglicht en is onder andere v.v. toiletvoorziening, pantry en verwarming door middel van radiatoren. Tevens beschikt het pand over een buitenterras met berging.
 
De op- en afrit van de Rijksweg A30 (Barneveld - Ede) zijn gelegen op korte afstand. Station Barneveld-Centrum is
gelegen op loopafstand, waardoor het object ook goed te bereiken is middels het openbaar vervoer.
 
Objectomschrijving
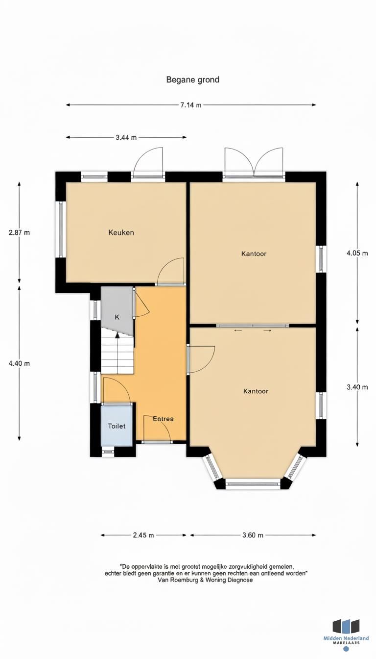
Op ZICHT-LOCATIE gelegen kantoorruimte (woon-werk) met een beschikbare vloeroppervlakte van circa 100 m², gelegen aan de Gasthuisstraat 8-8A (3771 HE) te Barneveld.
 
Beschikbare bruto vloeroppervlakte
• Begane grond circa 55 m².
• Eerste etage circa 45 m².
 
Deelverhuur is in overleg bespreekbaar.
 
Opleveringsniveau
• Entree met natuurstenen vloerafwerking;
• Houten kozijnen v.v. dubbele beglazing;
• Wand- en plafondverlichting;
• Toiletvoorziening;
• Verwarming door middel van C.V.-radiatoren;
• Diverse kantoorvertrekken;
• Pantry op verdieping;
• Archiefruimte;
• Separate berging.
 
Parkeergelegenheid
Er zijn 4 parkeerplaatsen beschikbaar op eigen terrein.
 
Bestemming
Van toepassing is bestemmingsplan Barneveld-Centrum (22-01-2022)
Enkelbestemming gemengd met functieaanduidingen bedrijf, detailhandel volumineus, dienstverlening, gezondheidszorg en kantoor.
 
Huurvoorwaarden
Huurprijs
€ 2.450,- per maand.
 
Huurtermijn
In overleg.
 
Huurbetaling
Per maand vooruit.
 
Zekerheidstelling
Bankgarantie / waarborgsom ter grootte van 3 maanden huur.
 
Huurovereenkomst
Volgens ROZ-Model.
 
Huurprijsindexering
Jaarlijks, voor het eerst één jaar na huur ingangsdatum, op basis van de wijziging van het maand prijsindexcijfer volgens de consumentenprijsindex (CPI) reeks CPI-Alle Huishoudens (2015=100), gepubliceerd door het Centraal Bureau voor de Statistiek (CBS).
 
Aanvaarding
In overleg.
 
DOWNLOAD DE BROCHURE VIA MNM.NL
 
Alle informatie is geheel vrijblijvend en onder voorbehoud. Hieraan kunnen geen rechten worden ontleend.
werken. De ruimten bevinden zich op de begane grond (circa 55 m²) en op de eerste verdieping (circa 45m²). Het pand bestaat uit meerdere kantoor-/ spreekkamers, die voorzien zijn van voldoende daglicht en is onder andere v.v. toiletvoorziening, pantry en verwarming door middel van radiatoren. Tevens beschikt het pand over een buitenterras met berging.
De op- en afrit van de Rijksweg A30 (Barneveld - Ede) zijn gelegen op korte afstand. Station Barneveld-Centrum is
gelegen op loopafstand, waardoor het object ook goed te bereiken is middels het openbaar vervoer.
Objectomschrijving
Op ZICHT-LOCATIE gelegen kantoorruimte (woon-werk) met een beschikbare vloeroppervlakte van circa 100 m², gelegen aan de Gasthuisstraat 8-8A (3771 HE) te Barneveld.
Beschikbare bruto vloeroppervlakte
• Begane grond circa 55 m².
• Eerste etage circa 45 m².
Deelverhuur is in overleg bespreekbaar.
Opleveringsniveau
• Entree met natuurstenen vloerafwerking;
• Houten kozijnen v.v. dubbele beglazing;
• Wand- en plafondverlichting;
• Toiletvoorziening;
• Verwarming door middel van C.V.-radiatoren;
• Diverse kantoorvertrekken;
• Pantry op verdieping;
• Archiefruimte;
• Separate berging.
Parkeergelegenheid
Er zijn 4 parkeerplaatsen beschikbaar op eigen terrein.
Bestemming
Van toepassing is bestemmingsplan Barneveld-Centrum (22-01-2022)
Enkelbestemming gemengd met functieaanduidingen bedrijf, detailhandel volumineus, dienstverlening, gezondheidszorg en kantoor.
Huurvoorwaarden
Huurprijs
€ 2.450,- per maand.
Huurtermijn
In overleg.
Huurbetaling
Per maand vooruit.
Zekerheidstelling
Bankgarantie / waarborgsom ter grootte van 3 maanden huur.
Huurovereenkomst
Volgens ROZ-Model.
Huurprijsindexering
Jaarlijks, voor het eerst één jaar na huur ingangsdatum, op basis van de wijziging van het maand prijsindexcijfer volgens de consumentenprijsindex (CPI) reeks CPI-Alle Huishoudens (2015=100), gepubliceerd door het Centraal Bureau voor de Statistiek (CBS).
Aanvaarding
In overleg.
DOWNLOAD DE BROCHURE VIA MNM.NL
Alle informatie is geheel vrijblijvend en onder voorbehoud. Hieraan kunnen geen rechten worden ontleend.
Features
Transfer of ownership
- Rental price
- € 2,450 per month
- Service charges
- No service charges known
- Listed since
- 
        
- Status
- Available
- Acceptance
- Available in consultation
Construction
- Main use
- Office
- Building type
- Resale property
- Year of construction
- 1930
Surface areas
- Area
- 100 m²
Layout
- Number of floors
- 1 floor
- Facilities
- Air conditioning, windows can be opened, toilet and pantry
Energy
- Energy label
- Not available
Surroundings
- Location
- Town center
- Accessibility
- Bus stop in 500 m to 1000 m, subway station in 5000 m or more, Dutch Railways Intercity station in 500 m to 1000 m, motorway exit in 1000 m to 1500 m and Tram stop in 5000 m or more
Parking
- Parking spaces
- 4 uncovered parking spaces
NVM real estate agent
Photos
 
                     
                     
                     
                     
                     
                     
                     
                     
                     
                     
                     
                     
                     
                     
                     
                     
                     
                     
                     
                     
                     
                     
                     
                     
                     
                     
                     
                     
                     
                     
                     
                     
                     
            Floorplan
Begane grond
 
                        Eerste verdieping
