• Under offer

Binnendelta 11-n 1261 WZ Blaricum

€ 675 p/mo.

Description

BENT U OPZOEK NAAR EEN REPRESENTATIEVE BEDRIJFSRUIMTE OP DE BEGANE GROND, DAN IS DIT WELLICHT HETGEEN U ZOEKT!!

OBJECT
Bedrijfsruimte, hoekligging met uitzicht richting restaurant Bruis.

BESTEMMING
Kantoor-/bedrijfsdoeleinden alsmede opslag.

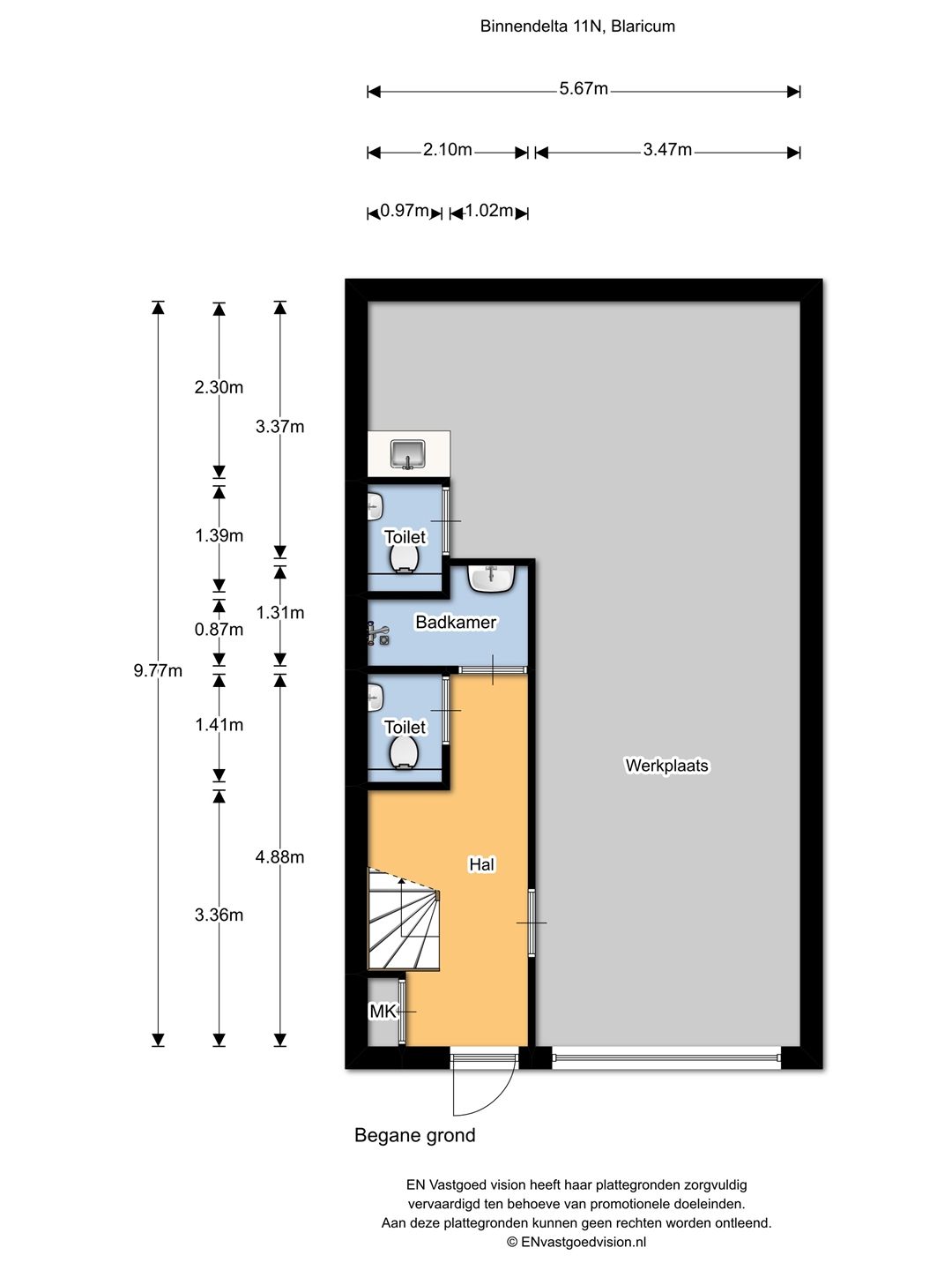
INDELING
De bedrijfsruimte op de begane grond heeft een oppervlakte van ca. 62 m². Zie plattegrond voor de indeling.

BEREIKBAARHEID
Het Businesspark te Blaricummermeent is uitstekend bereikbaar gezien de ligging nabij de op-/afrit A27, A6 en de A1.

STATUS GEBOUW
Bestaande bouw

SOORT
Bedrijfsruimte op de begane grond.

METRAGES
Begane grond verdieping: BVO 61,95 m²/ VVE 53,57 m2, thans beschikbaar.
Van het complex is een NEN 2580 meetrapport en een energielabel beschikbaar.

TYPE AANBOD
Verhuur bedrijfsruimte

HUURTERMIJN
In overleg te bepalen, waarbij een minimale huurtermijn van drie (3) jaar wenselijk is.

BESCHIKBAAR
Per direct beschikbaar.

PARKEERGELEGENHEID
Parkeren op eigen terrein of in de directe omgeving langs de openbare weg. 1-2 parkeerplaatsen beschikbaar.

HUURPRIJS BIJ AANVANG
€ 675, -- ex. (21%) BTW
Exclusief kosten nutsvoorzieningen en servicekosten, waarvoor een maandelijks voorschot á € 60,-- in rekening zal worden gebracht.

HUURPRIJS AANPASSING
Indexering jaarlijks, voor het eerst één jaar na de huuringangsdatum, wordt de laatst geldende huurprijs verhoogd op basis van het maandprijsindexcijfer voor de gezinsconsumptie CPI Alle Huishoudens (2015 = 100), gepubliceerd door het Centraal Bureau voor de Statistiek (CBS). De huurprijs zal géén daling ondergaan en jaarlijks met minimaal 1,75% verhoogd worden.

ZEKERHEIDSTELLING
Bankgarantie/waarborgsom, gelijk aan 3 maanden huurbetalingsverplichting inclusief de huurprijs voor parkeerplaat(sen), alsmede de servicekosten en de verschuldigde BTW over het gehele bedrag.

SERVICEKOSTEN
Huurder is een voorschotbedrag servicekosten verschuldigd ter grootte van (indicatief € 60,-) per maand exclusief BTW, inzake de navolgende door verhuurder te verzorgen leveringen en diensten:
- algemeen onderhoud buitenterrein;
- glasverzekering;
- glasbewassing;
- administratiekosten ad 6%;

Huurder dient zelf zorg te dragen voor de benodigde abonnementen voor nutsvoorzieningen.

CONDITIES
Huurovereenkomst kantoorruimte en andere bedrijfsruimte op basis van het standaardmodel van de Raad voor Onroerende Zaken (ROZ), model 30 januari 2015.

OPZEGTERMIJN
Nader te bepalen, gangbaar is 6 tot 12 maanden.

Features

Transfer of ownership

Rental price
€ 675 per month
Service charges
€ 60 per month (21% VAT applies)
Listed since
Status
Under offer
Acceptance
Available in consultation

Construction

Main use
Office
Alternative use(s)
Commercial property
Building type
Resale property
Year of construction
2014

Surface areas

Area
60 m²
Plot size
999 m²

Layout

Number of floors
1 floor
Facilities
Mechanical ventilation, built-in fittings, windows can be opened, toilet, pantry and heating

Energy

Energy label
A 0.99

Surroundings

Location
Business park and in residential district

Parking

Parking spaces
1 uncovered parking place

Map

Map is loading...

Cadastral boundaries Buildings

Travel time

Gain insight into the reachability of this object, for instance from a public transport station or a home address.

Binnendelta 11-n

€ 675 p/mo.