Denneweg 56 2514 CH Den Haag
- New
€ 1,950 p/mo.

Description
Adres: Denneweg 56 (2e verdieping), 2514 CH (Centrum / Buurtschap 2005)
TE HUUR: MULTIFUNCIONELE ZO TE BETREKKEN KANTOOR-/PRAKTIJK-/BEDRIJFSRUIMTE VAN CA. 150M² IN DE GEZELLIGE DENNEWEG, DIRECT NABIJ HET LANGE VOORHOUT
Algemeen:
Aan de gezellige winkelstraat "De Denneweg" in markant en monumentaal pand van het bedrijf "Aveda The Hague" zo te betrekken recent gerenoveerde charmante multifunctionele kantoor-/praktijk-/bedrijfsruimte van totaal ca. 150m² gelegen op de tweede verdieping met tevens entresolvloer en uitzicht naar De Nieuwe Schoolstraat. Deze unieke multifunctionele bedrijfsruimte maakt onderdeel uit van het monumentale gebouw welke in gebruik is bij de kappers en schoonheidssalon "Aveda The Hague", een begrip in Den Haag.
Aveda is op zoek naar een onderneming die past in dit schitterende monument. De invulling kan divers zijn; van kantoorruimte tot praktijk- of atelierruimte, of een onderneming die aanvullend is op het bedrijf Aveda The Hague, kortom voor vele doeleinden geschikt. Wij staan open voor een mooie invulling en iemand die op zoek is naar een gave plek in hartje centrum Den Haag.
De bedrijfsruimte is toegankelijk via de schitterende entree op de begane grond met schitterend trappenhuis (en lift). Aan de achterzijde beschikt de te verhuren ruimte ook over een uitgang met trap naar de Nieuwe Schoolstraat.
Locatie:
Deze fraaie bedrijfsruimte is gelegen in het gezellige en geliefde Buurtschap 2005. In het verlengde van de Denneweg ligt enerzijds de winkelstraat de Frederikstraat en anderzijds De Vos in Tuinstraat en het Lange Voorhout. De Denneweg kenmerkt zich door de aanwezigheid van diverse speciaalzaken op allerlei gebied (antiek, sieraden, mode, kunst etc.) maar ook door de aanwezigheid van diverse soorten hoogwaardige levendige horecabedrijven.
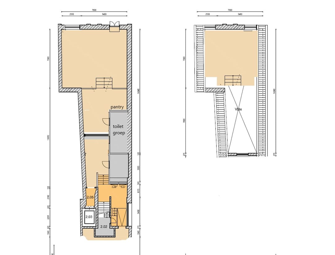
Vloeroppervlak:
2e verdieping: ca. 105m²
entresol 2e verdieping: ca. 45m²
Totaal: ca. 150m² inclusief toebedeling algemene ruimten
Bestemming:
Het kantoor is gelegen in het bestemmingsplan "Binnenhof" en beschikt over de bestemming "Gemengd-1".
De voor 'Gemengd-1' aangewezen gronden zijn bestemd voor:
- dienstverlening, zoals nader bepaald in lid 5.5 ;
- maatschappelijk, waaronder wordt verstaan gezondheidszorg, praktijkruimten, openbare dienstverlening, en welzijnsvoorzieningen;
- kantoor.
Parkeergelegenheid:
Aan de openbare weg (Denneweg, Frederikstraat, Hooikade, Lange Voorhout en Nieuwe Schoolstraat) zijn betaalde parkeermogelijkheden aanwezig.
Opleveringsniveau:
De bedrijfsruimte is recent gerenoveerd en zal worden opgeleverd in de huidige nagenoeg turn-key staat, o.a. voorzien van:
- strak gestucte wanden en plafonds;
- gedeelde cv gasinstallatie met radiatoren;
- pantry voorzien van koelkast en vaatwasser;
- pvc-vloeren;
- modern betegelde toiletgroep;
Huurprijs:
€ 1.950,-- per maand te vermeerderen met BTW.
BTW:
Verhuurder zal opteren voor een met BTW belaste verhuur, huurder verleent hiertoe zijn medewerking en verklaart voor tenminste 90% belaste prestaties te leveren.
Huurprijsbetaling
Per maand vooruit te voldoen.
Huurtermijn
In overleg
Huurprijsaanpassing
Jaarlijks, voor het eerst 1 jaar na huuringangsdatum, op basis van de wijziging van het prijsindexcijfer volgens de Consumentenprijsindex (CPI), Alle Huishoudens (2015=100), gepubliceerd door het Centraal Bureau voor de Statistiek (CBS).
Servicekosten:
Voorschot n.t.b., ten behoeve van o.a.;
- verbruik gas, water en elektra;
- schoonmaak algemene ruimten;
- onderhoud installaties;
- aandeel zakelijke lasten.
Zekerheidstelling
Bankgarantie ter grootte van een betalingsverplichting van drie maanden huurverplichting.
Afhankelijk van de gegoedheid huurder kan verhuurder ten aanzien van de zekerheidstelling aanvullende voorwaarden stellen.
Aanvaarding
Per direct.
Huurovereenkomst
De huurovereenkomst zal worden opgesteld conform de door de Raad voor Onroerende Zaken (ROZ) in 2015 vastgestelde ROZ model Huurovereenkomst Kantoorruimte en overige bedrijfsruimte.
Courtage
Mocht door bemiddeling van Martijn de Lange Bedrijfsmakelaars bij dit object een transactie tot stand worden gebracht, dan zult u ons hiervoor geen kosten of courtage verschuldigd zijn.
TE HUUR: MULTIFUNCIONELE ZO TE BETREKKEN KANTOOR-/PRAKTIJK-/BEDRIJFSRUIMTE VAN CA. 150M² IN DE GEZELLIGE DENNEWEG, DIRECT NABIJ HET LANGE VOORHOUT
Algemeen:
Aan de gezellige winkelstraat "De Denneweg" in markant en monumentaal pand van het bedrijf "Aveda The Hague" zo te betrekken recent gerenoveerde charmante multifunctionele kantoor-/praktijk-/bedrijfsruimte van totaal ca. 150m² gelegen op de tweede verdieping met tevens entresolvloer en uitzicht naar De Nieuwe Schoolstraat. Deze unieke multifunctionele bedrijfsruimte maakt onderdeel uit van het monumentale gebouw welke in gebruik is bij de kappers en schoonheidssalon "Aveda The Hague", een begrip in Den Haag.
Aveda is op zoek naar een onderneming die past in dit schitterende monument. De invulling kan divers zijn; van kantoorruimte tot praktijk- of atelierruimte, of een onderneming die aanvullend is op het bedrijf Aveda The Hague, kortom voor vele doeleinden geschikt. Wij staan open voor een mooie invulling en iemand die op zoek is naar een gave plek in hartje centrum Den Haag.
De bedrijfsruimte is toegankelijk via de schitterende entree op de begane grond met schitterend trappenhuis (en lift). Aan de achterzijde beschikt de te verhuren ruimte ook over een uitgang met trap naar de Nieuwe Schoolstraat.
Locatie:
Deze fraaie bedrijfsruimte is gelegen in het gezellige en geliefde Buurtschap 2005. In het verlengde van de Denneweg ligt enerzijds de winkelstraat de Frederikstraat en anderzijds De Vos in Tuinstraat en het Lange Voorhout. De Denneweg kenmerkt zich door de aanwezigheid van diverse speciaalzaken op allerlei gebied (antiek, sieraden, mode, kunst etc.) maar ook door de aanwezigheid van diverse soorten hoogwaardige levendige horecabedrijven.
Vloeroppervlak:
2e verdieping: ca. 105m²
entresol 2e verdieping: ca. 45m²
Totaal: ca. 150m² inclusief toebedeling algemene ruimten
Bestemming:
Het kantoor is gelegen in het bestemmingsplan "Binnenhof" en beschikt over de bestemming "Gemengd-1".
De voor 'Gemengd-1' aangewezen gronden zijn bestemd voor:
- dienstverlening, zoals nader bepaald in lid 5.5 ;
- maatschappelijk, waaronder wordt verstaan gezondheidszorg, praktijkruimten, openbare dienstverlening, en welzijnsvoorzieningen;
- kantoor.
Parkeergelegenheid:
Aan de openbare weg (Denneweg, Frederikstraat, Hooikade, Lange Voorhout en Nieuwe Schoolstraat) zijn betaalde parkeermogelijkheden aanwezig.
Opleveringsniveau:
De bedrijfsruimte is recent gerenoveerd en zal worden opgeleverd in de huidige nagenoeg turn-key staat, o.a. voorzien van:
- strak gestucte wanden en plafonds;
- gedeelde cv gasinstallatie met radiatoren;
- pantry voorzien van koelkast en vaatwasser;
- pvc-vloeren;
- modern betegelde toiletgroep;
Huurprijs:
€ 1.950,-- per maand te vermeerderen met BTW.
BTW:
Verhuurder zal opteren voor een met BTW belaste verhuur, huurder verleent hiertoe zijn medewerking en verklaart voor tenminste 90% belaste prestaties te leveren.
Huurprijsbetaling
Per maand vooruit te voldoen.
Huurtermijn
In overleg
Huurprijsaanpassing
Jaarlijks, voor het eerst 1 jaar na huuringangsdatum, op basis van de wijziging van het prijsindexcijfer volgens de Consumentenprijsindex (CPI), Alle Huishoudens (2015=100), gepubliceerd door het Centraal Bureau voor de Statistiek (CBS).
Servicekosten:
Voorschot n.t.b., ten behoeve van o.a.;
- verbruik gas, water en elektra;
- schoonmaak algemene ruimten;
- onderhoud installaties;
- aandeel zakelijke lasten.
Zekerheidstelling
Bankgarantie ter grootte van een betalingsverplichting van drie maanden huurverplichting.
Afhankelijk van de gegoedheid huurder kan verhuurder ten aanzien van de zekerheidstelling aanvullende voorwaarden stellen.
Aanvaarding
Per direct.
Huurovereenkomst
De huurovereenkomst zal worden opgesteld conform de door de Raad voor Onroerende Zaken (ROZ) in 2015 vastgestelde ROZ model Huurovereenkomst Kantoorruimte en overige bedrijfsruimte.
Courtage
Mocht door bemiddeling van Martijn de Lange Bedrijfsmakelaars bij dit object een transactie tot stand worden gebracht, dan zult u ons hiervoor geen kosten of courtage verschuldigd zijn.
Features
Transfer of ownership
- Rental price
- € 1,950 per month
- Service charges
- No service charges known
- Listed since
-
- Status
- Available
- Acceptance
- Available in consultation
Construction
- Main use
- Office
- Building type
- Resale property
- Year of construction
- 1898
Surface areas
- Area
- 160 m²
Layout
- Number of floors
- 2 floors
- Facilities
- Built-in fittings, elevators, windows can be opened, toilet, pantry, heating and room layout
Energy
- Energy label
- Not available
Surroundings
- Location
- Town center, shopping center and in residential district
- Accessibility
- Bus stop in less than 500 m, Dutch Railways Intercity station in less than 500 m, motorway exit in less than 500 m and Tram stop in less than 500 m
- Local facilities
- Restaurant in less than 500 m and retail outlet in less than 500 m
NVM real estate agent
Photos























