Pieter Hoebeeweg 8 3316 BT Dordrecht
€ 18,750 p/mo.
Description
Te huur: twee nieuwbouw kantoorpanden met bedrijfsruimte en royaal buitenterrein – oplevering Q3/Q4 2026 – Dordrecht
Aan de Pieter Hoebeeweg 8 in Dordrecht worden in 2026 twee moderne nieuwbouwkantoorpanden gerealiseerd, gecombineerd met bedrijfsruimte en een groot flexibel buitenterrein van totaal 7233 m². Deze hoogwaardige ontwikkeling biedt bedrijven de mogelijkheid om hun kantoorruimte volledig op maat en in eigen stijl af te laten bouwen.
Ideaal voor organisaties die toekomstbestendig willen huisvesten en behoefte hebben aan een combinatie van kantoor, bedrijfsruimte en veel buitenruimte.
OPPERVLAKTE
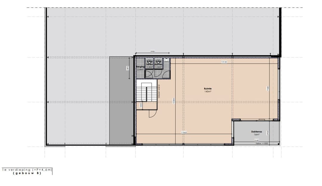
- Kantoorruimte: 368 m² (2 lagen van ca. 198 en 170 m²)
- Bedrijfsruimte: 890 m²
- Buitenterrein: vanaf minimaal 2.000 m² per pand, uitbreidbaarheid naar ruimere volumes mogelijk in overleg
Totaal terrein oppervlakte: 7.233 m²
LIGGING EN BEREIKBAARHEID
De nieuwbouw wordt gerealiseerd op een uitstekend bereikbaar bedrijventerrein in Dordrecht. Via de nabijgelegen N3, A15 en A16 die binnen enkele minuten bereikbaar zijn en u uitstekend verbinden richting Rotterdam, Breda en Gorinchem.
Ook met het openbaar vervoer is de locatie goed ontsloten, dankzij bushaltes in de directe omgeving.
De omgeving kenmerkt zich door een modernere bedrijfsbebouwing en een professioneel ondernemersklimaat.
PARKEREN
Op eigen terrein zijn naar eigen inzicht vele parkeerplaatsen beschikbaar aangezien de gehele buitenruimte opnieuw wordt gerealiseerd is de indeling door potentiële huurder zelf mede in te richten zodat er een optimale situatie ontstaat voor de huurder.
BESTEMMINGSPLAN
Het actuele bestemmingsplan staat o.a. bedrijfsruimte, kantoorruimte en buitenterrein toe, waardoor het pand breed inzetbaar is voor diverse soorten bedrijfsvoering — van logistiek tot dienstverlening.
OPLEVERINGSNIVEAU
Aangezien het gebouw in december 2025 casco wordt opgeleverd, kunnen potentiële huurders zich nog volledig mengen in de definitieve indeling van de kantoorruimets. Hierdoor zal er voor de huurder een optimale invulling worden gecreëerd op het hogere kantoor niveau.
KANTOORRUIMTE
(afbouw volledig in overleg mogelijk – maatwerk, denk hierbij aan)
- Airconditioning – VRF systeem
- Te openen ramen
- Inbouwarmaturen
- Systeemplafond
- Kabelgoten
- Verwarming
- Pantry
- Sanitair
- Flexplekken mogelijk
- Turnkey indeling mogelijk naar wens huurder
- Toegang tot faciliteiten zoals receptie, kantine, vergaderruimte en gezamenlijke keuken
BEDRIJFSRUIMTE
(basisvoorzieningen aanwezig, specials i.o.m. huurder n.t.b.)
- Lichtstraten
- Overheaddeuren
- Volledige betonvloer (2500 kg/m²)
- Krachtstroom
BUITENTERREIN
(per pand vanaf 2.000 m² / uitbreidbaar)
- Elektrische poort
- Elektra-aansluiting
- Lichtmasten
HUURCONDITIES
- Huurprijs: € 18.750,- per maand (excl. BTW) (nummer 8)
- Servicekosten: n.t.b. i.v.m. variabele kosten in wensen afbouw +/- € 750,00/mnd
- Huurtermijn: minimaal 3 of 5 jaar met verlenging 3 – 5 jaar
- Opzegtermijn: 1 jaar
- Betalingen: per kwartaal
- Zekerheidstelling: bankgarantie ter grootte van 1 kwartaal huur incl. BTW
- BTW: van toepassing
- Aanvaarding: nr. 8 per Q3/Q4 2026 nr 4 o.v.b. per Q3 2028.
- Huurindexering vindt jaarlijks plaats conform het CPI (CBS), met een minimum van de voorafgaande jaarhuur.
GOEDKEURING
Het bovenstaande is onder finaal voorbehoud van de eigenaar.
Disclaimer: Ondanks dat deze publicatie met de grootst mogelijke zorgvuldigheid is samengesteld is de Online Bedrijfsmakelaar BV niet aansprakelijk te stellen voor onjuiste of onvolledige informatie die in deze publicatie vermeld staan. Aan deze gegevens kunnen geen rechten worden ontleend.
====================
Alle beschikbare informatie ontvangen?
Benieuwd naar alle beschikbare informatie over dit pand? Vraag dan nu, onder de grote contactbutton, de gratis objectbrochure van Pieter Hoebeeweg 4 - 8 in Dordrecht aan en ontvang de objectbrochure binnen 5 minuten in uw mailbox. Uiteraard kunt u ook direct een geheel vrijblijvende bezichtiging met de beheerder van het pand inplannen.
Aan de Pieter Hoebeeweg 8 in Dordrecht worden in 2026 twee moderne nieuwbouwkantoorpanden gerealiseerd, gecombineerd met bedrijfsruimte en een groot flexibel buitenterrein van totaal 7233 m². Deze hoogwaardige ontwikkeling biedt bedrijven de mogelijkheid om hun kantoorruimte volledig op maat en in eigen stijl af te laten bouwen.
Ideaal voor organisaties die toekomstbestendig willen huisvesten en behoefte hebben aan een combinatie van kantoor, bedrijfsruimte en veel buitenruimte.
OPPERVLAKTE
- Kantoorruimte: 368 m² (2 lagen van ca. 198 en 170 m²)
- Bedrijfsruimte: 890 m²
- Buitenterrein: vanaf minimaal 2.000 m² per pand, uitbreidbaarheid naar ruimere volumes mogelijk in overleg
Totaal terrein oppervlakte: 7.233 m²
LIGGING EN BEREIKBAARHEID
De nieuwbouw wordt gerealiseerd op een uitstekend bereikbaar bedrijventerrein in Dordrecht. Via de nabijgelegen N3, A15 en A16 die binnen enkele minuten bereikbaar zijn en u uitstekend verbinden richting Rotterdam, Breda en Gorinchem.
Ook met het openbaar vervoer is de locatie goed ontsloten, dankzij bushaltes in de directe omgeving.
De omgeving kenmerkt zich door een modernere bedrijfsbebouwing en een professioneel ondernemersklimaat.
PARKEREN
Op eigen terrein zijn naar eigen inzicht vele parkeerplaatsen beschikbaar aangezien de gehele buitenruimte opnieuw wordt gerealiseerd is de indeling door potentiële huurder zelf mede in te richten zodat er een optimale situatie ontstaat voor de huurder.
BESTEMMINGSPLAN
Het actuele bestemmingsplan staat o.a. bedrijfsruimte, kantoorruimte en buitenterrein toe, waardoor het pand breed inzetbaar is voor diverse soorten bedrijfsvoering — van logistiek tot dienstverlening.
OPLEVERINGSNIVEAU
Aangezien het gebouw in december 2025 casco wordt opgeleverd, kunnen potentiële huurders zich nog volledig mengen in de definitieve indeling van de kantoorruimets. Hierdoor zal er voor de huurder een optimale invulling worden gecreëerd op het hogere kantoor niveau.
KANTOORRUIMTE
(afbouw volledig in overleg mogelijk – maatwerk, denk hierbij aan)
- Airconditioning – VRF systeem
- Te openen ramen
- Inbouwarmaturen
- Systeemplafond
- Kabelgoten
- Verwarming
- Pantry
- Sanitair
- Flexplekken mogelijk
- Turnkey indeling mogelijk naar wens huurder
- Toegang tot faciliteiten zoals receptie, kantine, vergaderruimte en gezamenlijke keuken
BEDRIJFSRUIMTE
(basisvoorzieningen aanwezig, specials i.o.m. huurder n.t.b.)
- Lichtstraten
- Overheaddeuren
- Volledige betonvloer (2500 kg/m²)
- Krachtstroom
BUITENTERREIN
(per pand vanaf 2.000 m² / uitbreidbaar)
- Elektrische poort
- Elektra-aansluiting
- Lichtmasten
HUURCONDITIES
- Huurprijs: € 18.750,- per maand (excl. BTW) (nummer 8)
- Servicekosten: n.t.b. i.v.m. variabele kosten in wensen afbouw +/- € 750,00/mnd
- Huurtermijn: minimaal 3 of 5 jaar met verlenging 3 – 5 jaar
- Opzegtermijn: 1 jaar
- Betalingen: per kwartaal
- Zekerheidstelling: bankgarantie ter grootte van 1 kwartaal huur incl. BTW
- BTW: van toepassing
- Aanvaarding: nr. 8 per Q3/Q4 2026 nr 4 o.v.b. per Q3 2028.
- Huurindexering vindt jaarlijks plaats conform het CPI (CBS), met een minimum van de voorafgaande jaarhuur.
GOEDKEURING
Het bovenstaande is onder finaal voorbehoud van de eigenaar.
Disclaimer: Ondanks dat deze publicatie met de grootst mogelijke zorgvuldigheid is samengesteld is de Online Bedrijfsmakelaar BV niet aansprakelijk te stellen voor onjuiste of onvolledige informatie die in deze publicatie vermeld staan. Aan deze gegevens kunnen geen rechten worden ontleend.
====================
Alle beschikbare informatie ontvangen?
Benieuwd naar alle beschikbare informatie over dit pand? Vraag dan nu, onder de grote contactbutton, de gratis objectbrochure van Pieter Hoebeeweg 4 - 8 in Dordrecht aan en ontvang de objectbrochure binnen 5 minuten in uw mailbox. Uiteraard kunt u ook direct een geheel vrijblijvende bezichtiging met de beheerder van het pand inplannen.
Features
Transfer of ownership
- Rental price
- € 18,750 per month
- Listed since
-
- Status
- Available
- Acceptance
- Available in consultation
Construction
- Main use
- Paved outdoor area
- Alternative use(s)
- Commercial property and office space
Surface areas
- Area
- 368 m²
- Plot size
- 8,600 m²
Layout
- Number of floors
- 2 floors
Energy
- Energy label
- Not available
NVM real estate agent
Photos