Insulindelaan 30 1217 HL Hilversum
€ 1,675,000 k.k.

Description
Te koop aangeboden:
Kantoorvilla met brede bestemming, waaronder begrepen een woonbestemming, gelegen op zichtlocatie aan de Insulindelaan 30 op ruim perceel.
Het terrein is deels verhard en omzoomd door hoge bomen. Architect: J.H. Slot, bouwjaar ca. 1898.
Op het achter gelegen perceel zijn er bouwmogelijkheden voor een multimediabedrijf op het bouwkavel, grenzend aan het Media Park.
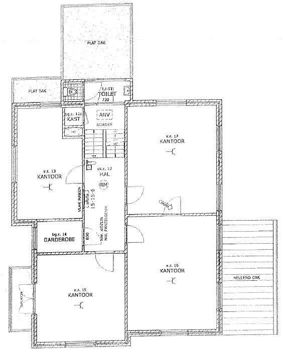
Indeling:
Begane grond:
Via de entree komt men in de gedeelde vestibule en hal met opgang naar de eerste etage.
Royale hal met vier kantoorruimtes, een pantry en een garderobe.
Bordes:
Tussen de begane grond en de eerste etage bevindt zich een toiletruimte en berging.
Eerste etage:
Royale hal en vier kantoorkamers in verschillende afmetingen, allen voorzien van een luxueuze visgraat parketvloer. Daarnaast is er een pantry-ruimte.
Bordes:
Tussen de eerste en tweede etage bevindt zich een toiletruimte.
Tweede etage:
Overloop en twee royale kantoorvertrekken, beide voorzien van een visgraat parketvloer en een fraai afgewerkte zichtbare nok.
Opleveringsniveau:
Het pand wordt opgeleverd in de huidige staat en beschikt onder andere over:
• verwarmingsinstallatie;
• mechanische ventilatie;
• brandpreventieve middelen en brandmeldinstallatie;
• kabelgoten met elektra-, data- en telefoonbekabeling;
• visgraat parketvloer;
• diversetoiletvoorzieningen.
Bouwvlak:
•Oppervlakte bouwvlak in bestemmingsplan: ca. 590 m².
• Maximaal te bouwen grondoppervlak:0,63 x 590 m² = 372 m².
• Bij een verdiepingshoogte van ca. 3,30 m tot 3,50 m zijn drie bouwlagen mogelijk.
• Maximaal aantal m² vloeroppervlak: 3 x 372 m² = 1.116 m².
• Onderkeldering van het gebouw is toegestaan.
Bestemming bouwgrond (perceel 1617) Definitie:
Een bedrijf dat producten maakt of bedrijfsmatig
diensten verleent op het gebied van beeld, geluid en tekst met gebruik van radio, televisie, computer, mobiel, print en evenementen. Het is ook een multimediabedrijf als minimaal 50% van de omzet afkomstig is van producten of diensten voor multimediabedrijven, of als minimaal 50% van de afnemers tot deze sector behoren.
Ligging en bereikbaarheid:
Het object is gelegen aan de centrumring van Hilversum, grenzend aan Media Park en op loopafstand van NS-station Hilversum.
Parkeergelegenheid:
Er zijn 14 tot 16 parkeerplaatsen gelegen op eigen terrein.
Vraagprijs:
De vraagprijs bedraagt € 1.675.000, - k.k.
Monumentale status:
Gemeentelijk Monument.
Bestemming:
Conform het vigerende bestemmingsplan "Mediapark" is het object bestemd voor gebruik als 'Gemengd-2', met de volgende toegestane functies:
• Multimediabedrijven;
• Maatschappelijke activiteiten;
• Dienstverlening;
• Kantoren;
• Wonen.
Kantoorvilla met brede bestemming, waaronder begrepen een woonbestemming, gelegen op zichtlocatie aan de Insulindelaan 30 op ruim perceel.
Het terrein is deels verhard en omzoomd door hoge bomen. Architect: J.H. Slot, bouwjaar ca. 1898.
Op het achter gelegen perceel zijn er bouwmogelijkheden voor een multimediabedrijf op het bouwkavel, grenzend aan het Media Park.
Indeling:
Begane grond:
Via de entree komt men in de gedeelde vestibule en hal met opgang naar de eerste etage.
Royale hal met vier kantoorruimtes, een pantry en een garderobe.
Bordes:
Tussen de begane grond en de eerste etage bevindt zich een toiletruimte en berging.
Eerste etage:
Royale hal en vier kantoorkamers in verschillende afmetingen, allen voorzien van een luxueuze visgraat parketvloer. Daarnaast is er een pantry-ruimte.
Bordes:
Tussen de eerste en tweede etage bevindt zich een toiletruimte.
Tweede etage:
Overloop en twee royale kantoorvertrekken, beide voorzien van een visgraat parketvloer en een fraai afgewerkte zichtbare nok.
Opleveringsniveau:
Het pand wordt opgeleverd in de huidige staat en beschikt onder andere over:
• verwarmingsinstallatie;
• mechanische ventilatie;
• brandpreventieve middelen en brandmeldinstallatie;
• kabelgoten met elektra-, data- en telefoonbekabeling;
• visgraat parketvloer;
• diversetoiletvoorzieningen.
Bouwvlak:
•Oppervlakte bouwvlak in bestemmingsplan: ca. 590 m².
• Maximaal te bouwen grondoppervlak:0,63 x 590 m² = 372 m².
• Bij een verdiepingshoogte van ca. 3,30 m tot 3,50 m zijn drie bouwlagen mogelijk.
• Maximaal aantal m² vloeroppervlak: 3 x 372 m² = 1.116 m².
• Onderkeldering van het gebouw is toegestaan.
Bestemming bouwgrond (perceel 1617) Definitie:
Een bedrijf dat producten maakt of bedrijfsmatig
diensten verleent op het gebied van beeld, geluid en tekst met gebruik van radio, televisie, computer, mobiel, print en evenementen. Het is ook een multimediabedrijf als minimaal 50% van de omzet afkomstig is van producten of diensten voor multimediabedrijven, of als minimaal 50% van de afnemers tot deze sector behoren.
Ligging en bereikbaarheid:
Het object is gelegen aan de centrumring van Hilversum, grenzend aan Media Park en op loopafstand van NS-station Hilversum.
Parkeergelegenheid:
Er zijn 14 tot 16 parkeerplaatsen gelegen op eigen terrein.
Vraagprijs:
De vraagprijs bedraagt € 1.675.000, - k.k.
Monumentale status:
Gemeentelijk Monument.
Bestemming:
Conform het vigerende bestemmingsplan "Mediapark" is het object bestemd voor gebruik als 'Gemengd-2', met de volgende toegestane functies:
• Multimediabedrijven;
• Maatschappelijke activiteiten;
• Dienstverlening;
• Kantoren;
• Wonen.
Features
Transfer of ownership
- Asking price
- € 1,675,000 kosten koper
- Service charges
- No service charges known
- Listed since
-
- Status
- Available
- Acceptance
- Available in consultation
Construction
- Main use
- Office
- Building type
- Resale property
- Year of construction
- 1898
Surface areas
- Area
- 398 m²
- Plot size
- 2,359 m²
Layout
- Number of floors
- 3 floors
- Facilities
- Windows can be opened, cable ducts, pantry and heating
Energy
- Energy label
- Not available
Surroundings
- Location
- In residential district
- Accessibility
- Bus stop in less than 500 m, Dutch Railways Intercity station in 1000 m to 1500 m and motorway exit in 1000 m to 1500 m
Parking
- Parking spaces
- 16 uncovered parking spaces
Photos


























