Description
Op een goede locatie op industrieterrein “Zendijk” staat deze MULTIFUNCTIONELE BEDRIJFSRUIMTE met werk/opslag/bedrijfsruimte op de begane grond, mogelijkheid voor kantoorruimte op de verdieping. Door het representatieve uiterlijk bij uitstek geschikt voor showroom, werkplaats, distributiepunt en kantoor.
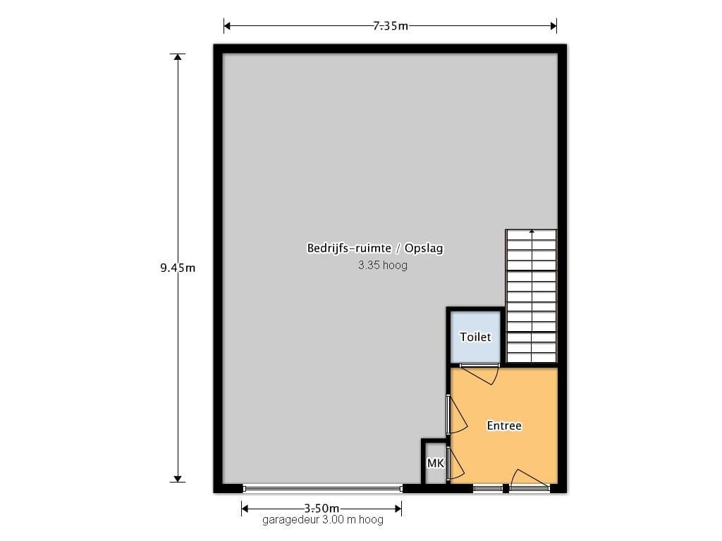
BEGANE GROND:
Entree met meterkast, toilet geheel betegeld met hangend toilet en fonteintje, trapopgang naar de verdieping, binnendeur naar bedrijfsruimte met geïsoleerde sectional roldeur.
VERDIEPING:
Vanuit de ruime entree trapopgang naar de verdieping met diverse gebruiksmogelijkheden.
VOORZIENINGEN:
- uitstekende isolatie, vloer, muren en dak
- puien uitgevoerd in aluminium, voorzien van isolerende beglazing
- voorzien van centrale verwarming
- verdieping met systeemplafond en verlichting
- meterkast met aansluitingen elektra, gas en water
- betegeld toilet met fonteintje
- armatuur verlichting begane grond aanwezig
- oplevering in overleg
BEREIKBAARHEID:
Deze bedrijfsruimte/kantoor is volledig geïsoleerd en heeft een zeer gunstige zicht-ligging.
PARKEERGELEGENHEID:
Er is ruime parkeergelegenheid voor het gebouw.
BIJZONDERHEDEN:
- Servicekosten bedragen € 50,-- per maand exclusief BTW.
- ROZ huurovereenkomst met bespreekbare huurperiode.
- Gelegen op gunstige locatie t.a.v. uitvalswegen op industrieterrein Zendijk.
- Gunning onder voorbehoud opdrachtgever, er wordt voor BTW geopteerd.
- Al onze informatie is geheel vrijblijvend; wijzigingen en afwijkingen voorbehouden.
BEGANE GROND:
Entree met meterkast, toilet geheel betegeld met hangend toilet en fonteintje, trapopgang naar de verdieping, binnendeur naar bedrijfsruimte met geïsoleerde sectional roldeur.
VERDIEPING:
Vanuit de ruime entree trapopgang naar de verdieping met diverse gebruiksmogelijkheden.
VOORZIENINGEN:
- uitstekende isolatie, vloer, muren en dak
- puien uitgevoerd in aluminium, voorzien van isolerende beglazing
- voorzien van centrale verwarming
- verdieping met systeemplafond en verlichting
- meterkast met aansluitingen elektra, gas en water
- betegeld toilet met fonteintje
- armatuur verlichting begane grond aanwezig
- oplevering in overleg
BEREIKBAARHEID:
Deze bedrijfsruimte/kantoor is volledig geïsoleerd en heeft een zeer gunstige zicht-ligging.
PARKEERGELEGENHEID:
Er is ruime parkeergelegenheid voor het gebouw.
BIJZONDERHEDEN:
- Servicekosten bedragen € 50,-- per maand exclusief BTW.
- ROZ huurovereenkomst met bespreekbare huurperiode.
- Gelegen op gunstige locatie t.a.v. uitvalswegen op industrieterrein Zendijk.
- Gunning onder voorbehoud opdrachtgever, er wordt voor BTW geopteerd.
- Al onze informatie is geheel vrijblijvend; wijzigingen en afwijkingen voorbehouden.
Map
Map is loading...
Cadastral boundaries
Buildings
Travel time
Gain insight into the reachability of this object, for instance from a public transport station or a home address.