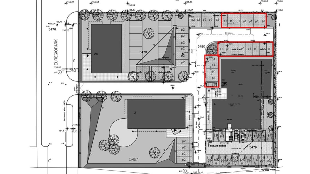
Euregiopark 4 6467 JE Kerkrade
€ 54,000 /yr
Description
TE HUUR : ZEER GOED VERZORGDE KANTOORRUIMTE
INCL. 20 PARKEERPLAATSEN - EUREGIOPARK 4 KERKRADE
BINNEN HET EUREGIOPARK IN KERKRADE WORDT EEN OP ZICHTLOCATIE GELEGEN EN HOOGWAARDIG AFGEWERKT KANTOOROBJECT TE HUUR AANGEBODEN. HET PAND OMVAT CIRCA 540 M² KANTOOR, ALSMEDE 20 PARKEERPLAATSEN VOOR EXCLUSIEF GEBRUIK.
ALGEMEEN
Binnen het Euregio Business Park in Kerkrade (naast Mc. Donalds en nabij het Parkstad Limburg Stadion) wordt ca. 540 m² VVO zeer goed verzorgde kantoorruimte op zichtlocatie te huur aangeboden, binnen een modern ogend, prestigieus en onder architectuur ontworpen kantoorcomplex.
Het pand omvat allerlei voorzieningen waaronder een glasvezelaansluiting, evenals een royale parkeerfaciliteit waarvan 20 plekken tot het gehuurde behoren. Het geheel is uitermate gunstig gesitueerd nabij meerdere uitvalswegen (o.a. de Ringweg Parkstad) en in principe vanaf januari 2026 beschikbaar (c.q. zoveel eerder in samenspraak).
Gelet op de situering, bereikbaarheid, vigerende bestemming, uitstraling, indeling en voorzieningen, leent de beschikbare ruimte zich uitstekend voor partijen die als dienstverlener actief zijn.
OMGEVING - LIGGING - BEREIKBAARHEID
Het Euregiopark in Kerkrade is een relatief jong en modern bedrijvenpark, waar onder meer McDonald’s, Qwiek, Arbopro en Bloemenparket gevestigd zijn.
Het businesspark is centraal gelegen tussen de gemeentes Heerlen, Kerkrade en Landgraaf, waarbij het pand op zichtlocatie gesitueerd is. Centrumvoorzieningen zoals winkels en horecafaciliteiten zijn binnen enkele minuten rijden binnen handbereik.
De bereikbaarheid van de locatie per (vracht)wagen is uitstekend te noemen, aangezien het object vrijwel aan de binnenring van Heerlen grenst, die in directe verbinding staat met de Ringweg Parkstad. Deze dubbelbaans snelweg voorziet in directe aansluitingen met snelwegen in de richting van Aken, Maastricht en Eindhoven. Doordat busverbindingen in de directe nabijheid halteplaatsen kennen, is de bereikbaarheid middels het OV goed te noemen.
INDELING EN VOORZIENINGEN
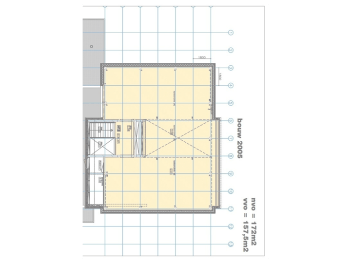
Het gebouw voorziet in ca. 540 m² VVO kantoor, verdeeld over begane grond (ca. 197 m²), 1e verdieping (ca. 185 m²) en 2e verdieping (ca. 158 m²). De verschillende lagen omvatten meerdere werk- en spreekkamers, alsmede een berging, luxe kantine en toiletruimtes. De ruimtes beschikken (overwegend) over airconditioning / luchtbehandeling, alarm, akoestische wanden / deuren, akoestisch absorberende antisone houten plafonds met ingebouwde verlichtingsarmaturen, (elektrische) warmtepomp installatie en IT - aansluitingen (glasvezel).
Het goed verzorgde en afsluitbare buitenterrein omvat een parkeerfaciliteit t.b.v. 20 (personen) wagens voor exclusief gebruik en is toegankelijk middels een gezamenlijke toegangsweg.
PRIJSSTELLING
De vraaghuurprijs voor het geheel (540 m² kantoorruimte inclusief 20 parkeerplaatsen) bedraagt :
€ 54.000,= op jaarbasis c.q. € 4.500,= op maandbasis (exclusief BTW en services).
HUURUITGANGSPUNTEN
• huurbetaling
per maand vooraf te voldoen.
• indexering
jaarlijks voor het eerst 1 jaar na huuringang op reguliere wijze.
• BTW
is wel van toepassing aangaande de verhuur.
• services
verhuurder verzorgd allerhande services, waarbij jaarlijks zal worden afgerekend. Het voorschot bedraagt € 35,= / m² VVO t.b.v. de levering
van gas (warmte), water en elektra, tuinonderhoud inclusief groene muur, glasbewassing (buitenzijde pand 4x per jaar), vuilafvoer (RD4) en periodieke
keuring van de brandpreventieve middelen.
• opleverniveau
huidige staat, doch zaken zijn bespreekbaar.
• huurtermijn
is flexibel, doch bedraagt tenminste 3 jaar.
• opzegtermijn
tenminste 12 maanden voor enig expiratiemoment c.q. in overleg.
• zekerheidsstelling
3 maanden betalingsverplichting (huur + 21% opslag + services) middels een bankgarantie of waarborgsom.
• contract
standaard ROZ-contract model kantoor- / bedrijfsruimte 2015 inclusief algemene bepalingen.
OVERIGE ELEMENTEN
• beschikbaarheid
in principe per 01 januari 2026, doch dit kan in samenspraak met de huidig huurder wellicht worden bijgesteld.
• bestemming
de vigerende bestemming luidt ‘Dienstverlening’, huurder dient zelf te toetsen ofde beoogde activiteiten geoorloofd zijn binnen het pand c.q.
dient dit te toetsen bij de gemeente Kerkrade => meer info op ‘ tekeningen
zie bijlage => schaaltekeningen kunnen beschikbaar worden gesteld.
• bouwjaar
2005.
• EPA
C-label (zie bijlage) => NB : ten gevolge van het vervangen van airco’s zal het label naar verwachting verbeteren.
• voorbehoud
er is te allen tijde sprake van een voorbehoud goedkeuring door de eigenaar van de onroerende zaak.
INCL. 20 PARKEERPLAATSEN - EUREGIOPARK 4 KERKRADE
BINNEN HET EUREGIOPARK IN KERKRADE WORDT EEN OP ZICHTLOCATIE GELEGEN EN HOOGWAARDIG AFGEWERKT KANTOOROBJECT TE HUUR AANGEBODEN. HET PAND OMVAT CIRCA 540 M² KANTOOR, ALSMEDE 20 PARKEERPLAATSEN VOOR EXCLUSIEF GEBRUIK.
ALGEMEEN
Binnen het Euregio Business Park in Kerkrade (naast Mc. Donalds en nabij het Parkstad Limburg Stadion) wordt ca. 540 m² VVO zeer goed verzorgde kantoorruimte op zichtlocatie te huur aangeboden, binnen een modern ogend, prestigieus en onder architectuur ontworpen kantoorcomplex.
Het pand omvat allerlei voorzieningen waaronder een glasvezelaansluiting, evenals een royale parkeerfaciliteit waarvan 20 plekken tot het gehuurde behoren. Het geheel is uitermate gunstig gesitueerd nabij meerdere uitvalswegen (o.a. de Ringweg Parkstad) en in principe vanaf januari 2026 beschikbaar (c.q. zoveel eerder in samenspraak).
Gelet op de situering, bereikbaarheid, vigerende bestemming, uitstraling, indeling en voorzieningen, leent de beschikbare ruimte zich uitstekend voor partijen die als dienstverlener actief zijn.
OMGEVING - LIGGING - BEREIKBAARHEID
Het Euregiopark in Kerkrade is een relatief jong en modern bedrijvenpark, waar onder meer McDonald’s, Qwiek, Arbopro en Bloemenparket gevestigd zijn.
Het businesspark is centraal gelegen tussen de gemeentes Heerlen, Kerkrade en Landgraaf, waarbij het pand op zichtlocatie gesitueerd is. Centrumvoorzieningen zoals winkels en horecafaciliteiten zijn binnen enkele minuten rijden binnen handbereik.
De bereikbaarheid van de locatie per (vracht)wagen is uitstekend te noemen, aangezien het object vrijwel aan de binnenring van Heerlen grenst, die in directe verbinding staat met de Ringweg Parkstad. Deze dubbelbaans snelweg voorziet in directe aansluitingen met snelwegen in de richting van Aken, Maastricht en Eindhoven. Doordat busverbindingen in de directe nabijheid halteplaatsen kennen, is de bereikbaarheid middels het OV goed te noemen.
INDELING EN VOORZIENINGEN
Het gebouw voorziet in ca. 540 m² VVO kantoor, verdeeld over begane grond (ca. 197 m²), 1e verdieping (ca. 185 m²) en 2e verdieping (ca. 158 m²). De verschillende lagen omvatten meerdere werk- en spreekkamers, alsmede een berging, luxe kantine en toiletruimtes. De ruimtes beschikken (overwegend) over airconditioning / luchtbehandeling, alarm, akoestische wanden / deuren, akoestisch absorberende antisone houten plafonds met ingebouwde verlichtingsarmaturen, (elektrische) warmtepomp installatie en IT - aansluitingen (glasvezel).
Het goed verzorgde en afsluitbare buitenterrein omvat een parkeerfaciliteit t.b.v. 20 (personen) wagens voor exclusief gebruik en is toegankelijk middels een gezamenlijke toegangsweg.
PRIJSSTELLING
De vraaghuurprijs voor het geheel (540 m² kantoorruimte inclusief 20 parkeerplaatsen) bedraagt :
€ 54.000,= op jaarbasis c.q. € 4.500,= op maandbasis (exclusief BTW en services).
HUURUITGANGSPUNTEN
• huurbetaling
per maand vooraf te voldoen.
• indexering
jaarlijks voor het eerst 1 jaar na huuringang op reguliere wijze.
• BTW
is wel van toepassing aangaande de verhuur.
• services
verhuurder verzorgd allerhande services, waarbij jaarlijks zal worden afgerekend. Het voorschot bedraagt € 35,= / m² VVO t.b.v. de levering
van gas (warmte), water en elektra, tuinonderhoud inclusief groene muur, glasbewassing (buitenzijde pand 4x per jaar), vuilafvoer (RD4) en periodieke
keuring van de brandpreventieve middelen.
• opleverniveau
huidige staat, doch zaken zijn bespreekbaar.
• huurtermijn
is flexibel, doch bedraagt tenminste 3 jaar.
• opzegtermijn
tenminste 12 maanden voor enig expiratiemoment c.q. in overleg.
• zekerheidsstelling
3 maanden betalingsverplichting (huur + 21% opslag + services) middels een bankgarantie of waarborgsom.
• contract
standaard ROZ-contract model kantoor- / bedrijfsruimte 2015 inclusief algemene bepalingen.
OVERIGE ELEMENTEN
• beschikbaarheid
in principe per 01 januari 2026, doch dit kan in samenspraak met de huidig huurder wellicht worden bijgesteld.
• bestemming
de vigerende bestemming luidt ‘Dienstverlening’, huurder dient zelf te toetsen ofde beoogde activiteiten geoorloofd zijn binnen het pand c.q.
dient dit te toetsen bij de gemeente Kerkrade => meer info op ‘ tekeningen
zie bijlage => schaaltekeningen kunnen beschikbaar worden gesteld.
• bouwjaar
2005.
• EPA
C-label (zie bijlage) => NB : ten gevolge van het vervangen van airco’s zal het label naar verwachting verbeteren.
• voorbehoud
er is te allen tijde sprake van een voorbehoud goedkeuring door de eigenaar van de onroerende zaak.
Features
Transfer of ownership
- Rental price
- € 54,000 per year
- Service charges
- € 35 per month
- Listed since
-
- Status
- Available
- Acceptance
- Available on 1/1/2026
Construction
- Main use
- Office
- Building type
- Resale property
- Year of construction
- 2005
Surface areas
- Area
- 540 m²
Layout
- Number of floors
- 3 floors
- Facilities
- Air conditioning, built-in fittings, windows can be opened, cable ducts, modular ceiling, toilet, pantry, heating and room layout
Energy
- Energy label
- C
Surroundings
- Location
- Business park
- Accessibility
- Bus stop in less than 500 m, bus junction in 500 m to 1000 m and motorway exit in 1000 m to 1500 m
Parking
- Parking spaces
- 20 uncovered parking spaces
NVM real estate agent
Photos
Floorplan
Begane grond
Eerste verdieping
Tweede verdieping