Lagelandseweg 52 6545 CG Nijmegen
                € 800 p/mo.
            
         
Description
Algemeen: 
Instapklare kantoorruimte op goed bereikbare locatie nabij de A73 op bedrijventerrein Westkanaaldijk in Nijmegen.
 
De kantoorruimte is gelegen op de eerste verdieping, beschikt over een eigen entree op de begane grond en is onder andere voorzien van een pantry, dames- en herentoilet en een alarminstallatie.
 
Vloeroppervlakte:
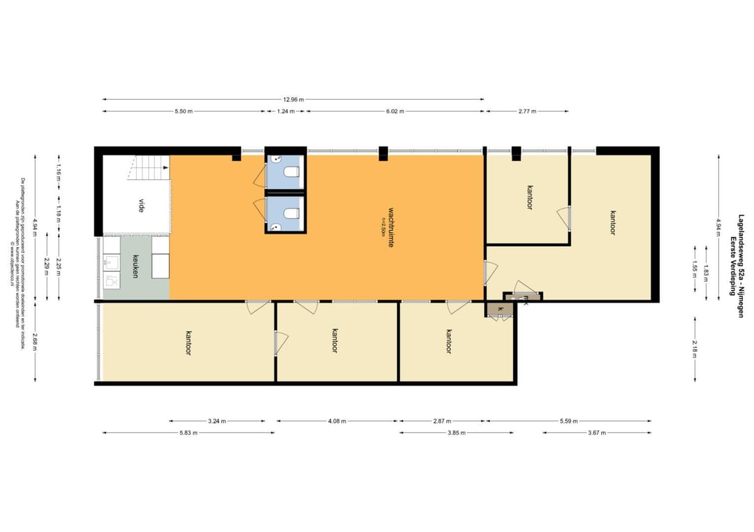
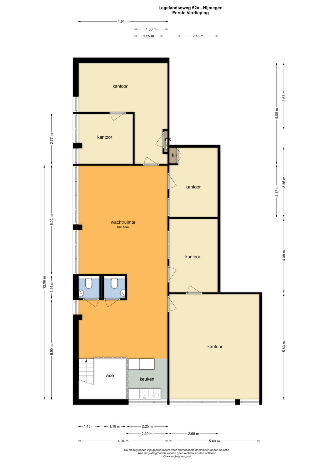
Voor verhuur is een totale oppervlakte beschikbaar van circa 140 m² (VVO) gelegen op de eerste verdieping.
 
Parkeren:
Voldoende (gratis) parkeermogelijkheden aan de openbare weg.
 
Opleveringsniveau:
Het object wordt opgeleverd in de huidige staat, onder andere voorzien van de navolgende voorzieningen:
- Eigen entree;
- Vloerbedekking;
- Systeemplafonds voorzien van verlichting;
- CV-installatie met radiatoren;
- Luchtbehandelingsinstallatie;
- Mechanische ventilatie;
- Pantry;
- Gescheiden dames- en herentoilet;
- Alarminstallatie.
 
Huurprijs:
€ 800,-- per maand, te vermeerderen met BTW en servicekosten.
 
Servicekosten:
De servicekosten bedragen € 200,-- per maand, te vermeerderen met BTW. De levering van onder andere de volgende zaken en diensten wordt door verhuurder verzorgd:
- Elektraverbruik;
- Gasverbruik;
- Waterverbruik;
- Onderhoud/keuring/controles en storingen van de installaties.
 
Aanvaarding:
In overleg. Een oplevering op korte termijn is bespreekbaar.
 
Locatie:
Bedrijventerrein Westkanaaldijk, gelegen aan het Maas-Waalkanaal, heeft een belangrijke economische waarde voor de gemeente Nijmegen en de regio. Westkanaaldijk kent een grote diversiteit aan ondernemers. Zo biedt het moderne en beveiligde bedrijventerrein ruimte aan zowel kleine als grote bedrijven uit diverse sectoren. In de directe omgeving zijn onder andere gevestigd: Synthon, AstraZeneca, DFDS, Kropman, Mead Johnson en Variopak.
 
Bereikbaarheid:
Eigen vervoer: Het bedrijventerrein is goed ontsloten richting de snelwegen A73 en A50 en beschikt over een openbare los- en laadwal aan het Maas-Waalkanaal. De op- en afritten van de snelweg A73 liggen op circa 1,5 km afstand.
 
Openbaar vervoer: De dichtstbijzijnde bushalte ligt op loopafstand aan de Hogelandseweg.
 
Bestemming:
De locatie valt onder het vigerende bestemmingsplan ‘Nijmegen Westkanaaldijk 2016’ met de bestemming ‘Bedrijventerrein’, aangevuld met de functieaanduiding ‘specifieke vorm van bedrijventerrein - 2-4’.
 
De voor deze bestemming aangewezen gronden zijn bestemd voor:
- bedrijven voor zover deze voorkomen in categorie 2 tot en met 4.2 van de Staat van bedrijfsactiviteiten;
- Productiegebonden detailhandel en ondergeschikte detailhandel voor groothandelsbedrijven;
- De verkoop van goederen door middel van internetverkoop;
- Zelfstandige kantoren.
 
Informatie inzake gebruiksmogelijkheden en voorschriften is te verkrijgen via ons kantoor of bij de gemeente Nijmegen, dan wel via de website omgevingswet.overheid.nl.
 
Informatie / bezichtiging:
DK Makelaars
Oranjesingel 60
6511 NX Nijmegen
024 - 2037060
dkmakelaars.nl
Instapklare kantoorruimte op goed bereikbare locatie nabij de A73 op bedrijventerrein Westkanaaldijk in Nijmegen.
De kantoorruimte is gelegen op de eerste verdieping, beschikt over een eigen entree op de begane grond en is onder andere voorzien van een pantry, dames- en herentoilet en een alarminstallatie.
Vloeroppervlakte:
Voor verhuur is een totale oppervlakte beschikbaar van circa 140 m² (VVO) gelegen op de eerste verdieping.
Parkeren:
Voldoende (gratis) parkeermogelijkheden aan de openbare weg.
Opleveringsniveau:
Het object wordt opgeleverd in de huidige staat, onder andere voorzien van de navolgende voorzieningen:
- Eigen entree;
- Vloerbedekking;
- Systeemplafonds voorzien van verlichting;
- CV-installatie met radiatoren;
- Luchtbehandelingsinstallatie;
- Mechanische ventilatie;
- Pantry;
- Gescheiden dames- en herentoilet;
- Alarminstallatie.
Huurprijs:
€ 800,-- per maand, te vermeerderen met BTW en servicekosten.
Servicekosten:
De servicekosten bedragen € 200,-- per maand, te vermeerderen met BTW. De levering van onder andere de volgende zaken en diensten wordt door verhuurder verzorgd:
- Elektraverbruik;
- Gasverbruik;
- Waterverbruik;
- Onderhoud/keuring/controles en storingen van de installaties.
Aanvaarding:
In overleg. Een oplevering op korte termijn is bespreekbaar.
Locatie:
Bedrijventerrein Westkanaaldijk, gelegen aan het Maas-Waalkanaal, heeft een belangrijke economische waarde voor de gemeente Nijmegen en de regio. Westkanaaldijk kent een grote diversiteit aan ondernemers. Zo biedt het moderne en beveiligde bedrijventerrein ruimte aan zowel kleine als grote bedrijven uit diverse sectoren. In de directe omgeving zijn onder andere gevestigd: Synthon, AstraZeneca, DFDS, Kropman, Mead Johnson en Variopak.
Bereikbaarheid:
Eigen vervoer: Het bedrijventerrein is goed ontsloten richting de snelwegen A73 en A50 en beschikt over een openbare los- en laadwal aan het Maas-Waalkanaal. De op- en afritten van de snelweg A73 liggen op circa 1,5 km afstand.
Openbaar vervoer: De dichtstbijzijnde bushalte ligt op loopafstand aan de Hogelandseweg.
Bestemming:
De locatie valt onder het vigerende bestemmingsplan ‘Nijmegen Westkanaaldijk 2016’ met de bestemming ‘Bedrijventerrein’, aangevuld met de functieaanduiding ‘specifieke vorm van bedrijventerrein - 2-4’.
De voor deze bestemming aangewezen gronden zijn bestemd voor:
- bedrijven voor zover deze voorkomen in categorie 2 tot en met 4.2 van de Staat van bedrijfsactiviteiten;
- Productiegebonden detailhandel en ondergeschikte detailhandel voor groothandelsbedrijven;
- De verkoop van goederen door middel van internetverkoop;
- Zelfstandige kantoren.
Informatie inzake gebruiksmogelijkheden en voorschriften is te verkrijgen via ons kantoor of bij de gemeente Nijmegen, dan wel via de website omgevingswet.overheid.nl.
Informatie / bezichtiging:
DK Makelaars
Oranjesingel 60
6511 NX Nijmegen
024 - 2037060
dkmakelaars.nl
Features
Transfer of ownership
- Rental price
- € 800 per month
- Service charges
- € 200 per month (21% VAT applies)
- Listed since
- 
        
- Status
- Available
- Acceptance
- Available immediately
Construction
- Main use
- Office
- Building type
- Resale property
- Year of construction
- 1989
Surface areas
- Area
- 140 m²
Layout
- Number of floors
- 1 floor
- Facilities
- Air conditioning, mechanical ventilation, peak cooling, built-in fittings, modular ceiling, toilet, pantry, heating and room layout
Energy
- Energy label
- Not available
Surroundings
- Location
- Business park
- Accessibility
- Bus stop in less than 500 m, bus junction in 2000 m to 3000 m, Dutch Railways Intercity station in 2000 m to 3000 m and motorway exit in 2000 m to 3000 m
- Local facilities
- Bank in 3000 m to 4000 m, recreation in 1000 m to 1500 m, restaurant in 1500 m to 2000 m and retail outlet in 3000 m to 4000 m
NVM real estate agent
Photos
 
                     
                     
                     
                     
                     
                     
                     
                     
                     
                     
                     
            Floorplan
BEGANE GROND
 
                        EERSTE VERDIEPING
