Ramgatseweg 17 4941 VN Raamsdonksveer
- New
€ 3,350 p/mo.
Description
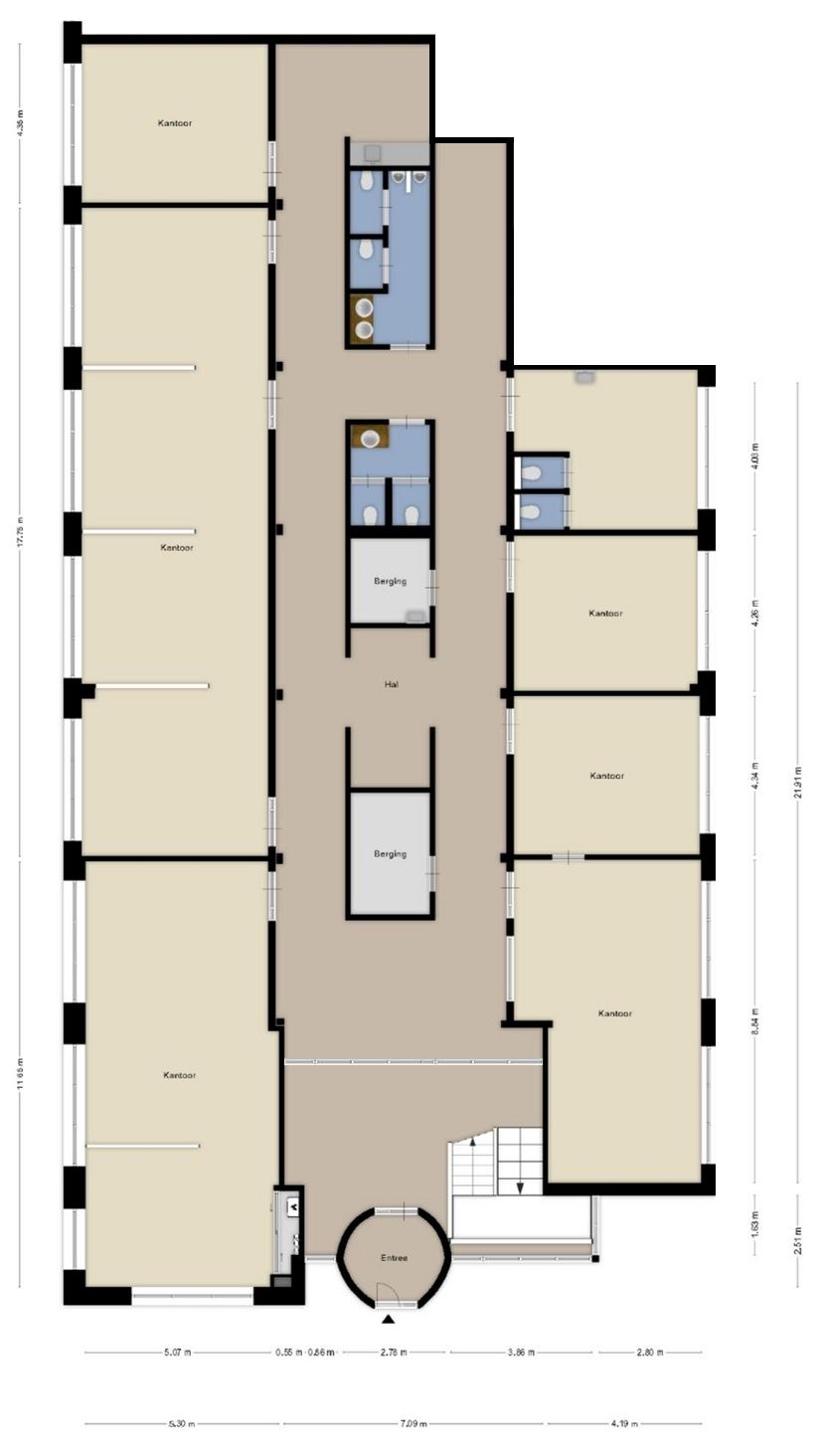
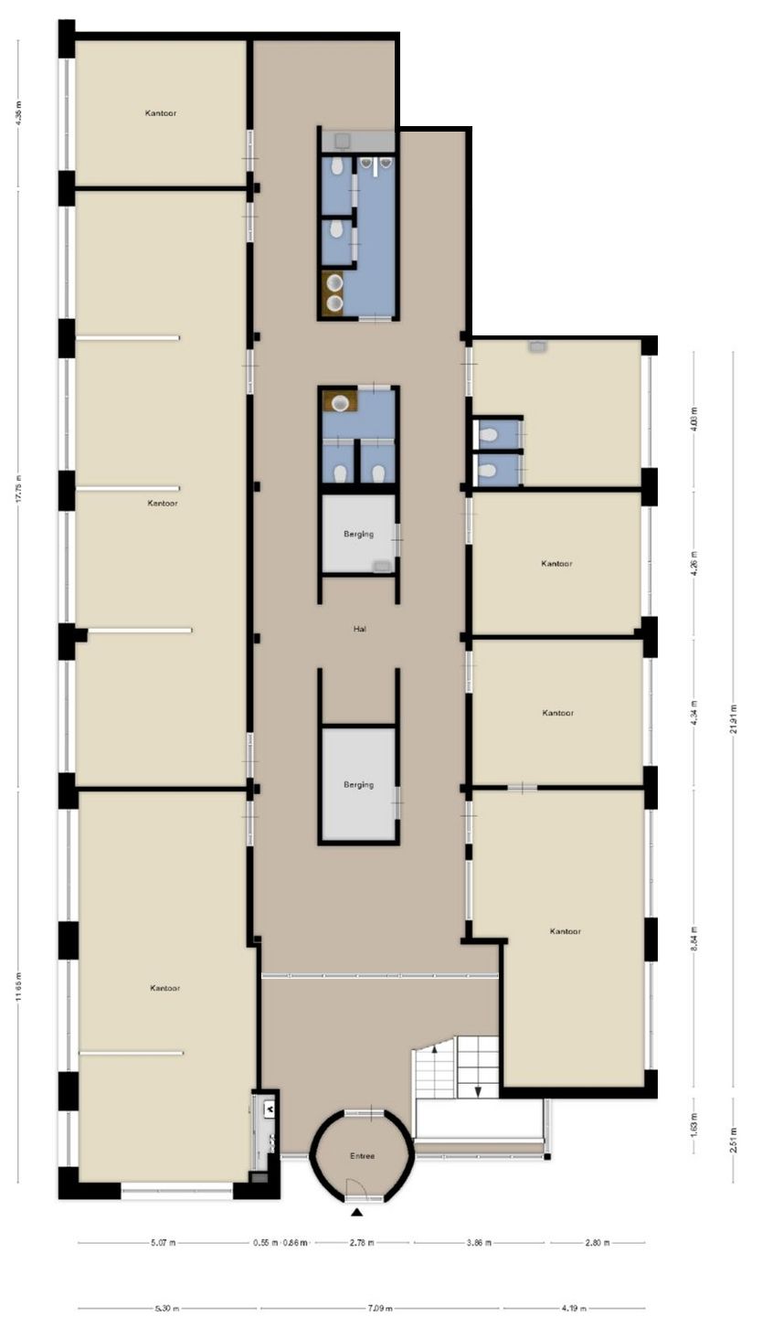
Kantoorruimte van ca. 387 m² (op de begane grond), sanitair, 10 parkeerplaatsen en verdere aanhorigheden
Situering
De kantoorruimte is gelegen aan de Ramgatseweg 17 (op de begane grond) te Raamsdonksveer op het bedrijventerrein “Dombosch“. Het bedrijventerrein is een
dynamische en vitale locatie die een belangrijke rol speelt in de economische infrastructuur van de regio. Een diversiteit aan bedrijven is gevestigd op het terrein,
variërend van kleine en middelgrote ondernemingen tot grotere industriële spelers.
Het bedrijventerrein is strategisch gelegen nabij de A27 en de A59, wat zorgt voor goede bereikbaarheid per weg. Het centrum van zowel Geertruidenberg als Raamsdonksveer is op korte afstand gelegen.
Opleveringsniveau
Kantoorruimte + spreekruimtes:
- Laminaat als vloerafwerking
- Deels metselwerk wanden
- Deels met spachtelputz afgewerkte wanden
- Systeemplafonds met geïntegreerde verlichting
- Individueel regelbare radiatoren
- Individueel regelbare airconditioning
- Aluminium kozijnen met dubbele beglazing
- LED verlichting
- Kabelgoten
Entree + hal (BG + 1e):
- Natuurstenen tegels als vloerafwerking
- Deels metselwerk wanden
- Deels met spachtelputz afgewerkte wanden
- Systeemplafonds met geïntegreerde verlichting
- Pantry met voorzieningen
- Aluminium kozijnen met dubbele beglazing
- LED verlichting
Kleedruimte:
- Laminaat als vloerafwerking
- Deels metselwerk wanden
- Deels met spachtelputz afgewerkte wanden
- Systeemplafonds met geïntegreerde verlichting
- Individueel regelbare radiatoren
- Aluminium kozijnen met dubbele beglazing
- LED verlichting
- 2 toiletten en 1 spoelbak
Toiletgroepen:
- Toiletgroep dames (2 toiletten + 1 spoelbak)
- Toiletgroep heren (2 toiletten + 2 urinoirs + 2 spoelbakken)
- Natuurstenen tegels als vloerafwerking
- Met tegelwerk afgewerkte wanden
- Systeemplafonds met geïntegreerde verlichting
- LED verlichting
Opleveringsniveau algemeen
Bedrijfspand kantoorgedeelte:
- Bouwjaar 1990
- Traditioneel gebouwd
- Opgetrokken in metselwerk spouwmuren
- Dakisolatie
- Bitumineus gedekt
- Betonvloeren
Algemeen:
- 10 eigen parkeerplaatsen
- Brandmeldinstallatie
- Alarminstallatie
- Airconditioning per ruimte in te stellen
- Aluminium kozijnen met dubbele beglazing
- Volledig uitgerust met brandmelders en brandblussers
Bestemmingsplan
Het object valt binnen het bestemmingsplan van de Gemeente Geertruidenberg “Dombosch” met de bestemming “Bedrijventerrein’ en de functieaanduiding
“bedrijf tot en met categorie 4.2“. Echter betreft het aangeboden object alleen kantoorruimte.
Te huur: € 3.550,- excl. BTW per maand
Oplevering: Per direct.
Servicekosten
De kosten van gas, water, elektra en riool- en reinigingsrechten zijn niet bij de huurprijs inbegrepen. Deze kosten bedragen € 970,- excl. BTW per maand.
Zekerheidsstelling
- Een waarborgsom zal gesteld worden ter grootte van 3 maanden huurverplichting inclusief 21% BTW en servicekosten; of;
- Bankgarantie ter hoogte van drie maanden huur inclusief BTW en servicekosten.
Bijzonderheden
- Verhuurder behoudt zich het recht bepaalde branches om moverende redenen te weigeren;
- Bij opzegging van de huur dient bij oplevering alles in oorspronkelijke staat te worden opgeleverd of in nader overleg.
Deze informatieverstrekking geschiedt geheel vrijblijvend en onder voorbehoud van tussentijdse verhuur c.q. wijzigingen.
Voor nadere informatie en/ of een afspraak voor een bezichtiging kunt u te allen tijde contact opnemen.
Situering
De kantoorruimte is gelegen aan de Ramgatseweg 17 (op de begane grond) te Raamsdonksveer op het bedrijventerrein “Dombosch“. Het bedrijventerrein is een
dynamische en vitale locatie die een belangrijke rol speelt in de economische infrastructuur van de regio. Een diversiteit aan bedrijven is gevestigd op het terrein,
variërend van kleine en middelgrote ondernemingen tot grotere industriële spelers.
Het bedrijventerrein is strategisch gelegen nabij de A27 en de A59, wat zorgt voor goede bereikbaarheid per weg. Het centrum van zowel Geertruidenberg als Raamsdonksveer is op korte afstand gelegen.
Opleveringsniveau
Kantoorruimte + spreekruimtes:
- Laminaat als vloerafwerking
- Deels metselwerk wanden
- Deels met spachtelputz afgewerkte wanden
- Systeemplafonds met geïntegreerde verlichting
- Individueel regelbare radiatoren
- Individueel regelbare airconditioning
- Aluminium kozijnen met dubbele beglazing
- LED verlichting
- Kabelgoten
Entree + hal (BG + 1e):
- Natuurstenen tegels als vloerafwerking
- Deels metselwerk wanden
- Deels met spachtelputz afgewerkte wanden
- Systeemplafonds met geïntegreerde verlichting
- Pantry met voorzieningen
- Aluminium kozijnen met dubbele beglazing
- LED verlichting
Kleedruimte:
- Laminaat als vloerafwerking
- Deels metselwerk wanden
- Deels met spachtelputz afgewerkte wanden
- Systeemplafonds met geïntegreerde verlichting
- Individueel regelbare radiatoren
- Aluminium kozijnen met dubbele beglazing
- LED verlichting
- 2 toiletten en 1 spoelbak
Toiletgroepen:
- Toiletgroep dames (2 toiletten + 1 spoelbak)
- Toiletgroep heren (2 toiletten + 2 urinoirs + 2 spoelbakken)
- Natuurstenen tegels als vloerafwerking
- Met tegelwerk afgewerkte wanden
- Systeemplafonds met geïntegreerde verlichting
- LED verlichting
Opleveringsniveau algemeen
Bedrijfspand kantoorgedeelte:
- Bouwjaar 1990
- Traditioneel gebouwd
- Opgetrokken in metselwerk spouwmuren
- Dakisolatie
- Bitumineus gedekt
- Betonvloeren
Algemeen:
- 10 eigen parkeerplaatsen
- Brandmeldinstallatie
- Alarminstallatie
- Airconditioning per ruimte in te stellen
- Aluminium kozijnen met dubbele beglazing
- Volledig uitgerust met brandmelders en brandblussers
Bestemmingsplan
Het object valt binnen het bestemmingsplan van de Gemeente Geertruidenberg “Dombosch” met de bestemming “Bedrijventerrein’ en de functieaanduiding
“bedrijf tot en met categorie 4.2“. Echter betreft het aangeboden object alleen kantoorruimte.
Te huur: € 3.550,- excl. BTW per maand
Oplevering: Per direct.
Servicekosten
De kosten van gas, water, elektra en riool- en reinigingsrechten zijn niet bij de huurprijs inbegrepen. Deze kosten bedragen € 970,- excl. BTW per maand.
Zekerheidsstelling
- Een waarborgsom zal gesteld worden ter grootte van 3 maanden huurverplichting inclusief 21% BTW en servicekosten; of;
- Bankgarantie ter hoogte van drie maanden huur inclusief BTW en servicekosten.
Bijzonderheden
- Verhuurder behoudt zich het recht bepaalde branches om moverende redenen te weigeren;
- Bij opzegging van de huur dient bij oplevering alles in oorspronkelijke staat te worden opgeleverd of in nader overleg.
Deze informatieverstrekking geschiedt geheel vrijblijvend en onder voorbehoud van tussentijdse verhuur c.q. wijzigingen.
Voor nadere informatie en/ of een afspraak voor een bezichtiging kunt u te allen tijde contact opnemen.
Features
Transfer of ownership
- Rental price
- € 3,350 per month
- Service charges
- No service charges known
- Listed since
-
- Status
- Available
- Acceptance
- Available immediately
Construction
- Main use
- Office
- Building type
- Resale property
- Year of construction
- 1990
Surface areas
- Area
- 387 m²
Layout
- Number of floors
- 1 floor
- Facilities
- Air conditioning, windows can be opened, cable ducts, modular ceiling, toilet, pantry, heating and room layout
Energy
- Energy label
- Not available
Surroundings
- Location
- Business park
- Accessibility
- Bus stop in 1000 m to 1500 m, bus junction in 3000 m to 4000 m, subway station in 5000 m or more, subway junction in 5000 m or more, Dutch Railways Intercity station in 5000 m or more, motorway exit in 500 m to 1000 m, Tram stop in 5000 m or more and tram junction in 5000 m or more
- Local facilities
- Bank in 5000 m or more, recreation in 2000 m to 3000 m, restaurant in 2000 m to 3000 m and retail outlet in 2000 m to 3000 m
Parking
- Parking spaces
- 10 uncovered parking spaces
Real estate agent
Photos