Lopikerplein 2 2871 AN Schoonhoven
€ 1,514 p/mo.

Description
- Kantoorruimte van 77m² te huur op de 2e verdieping -
Kantoorgebouw "De Toren" is uitstekend gesitueerd op een mooie locatie aan de rand van het centrum van Schoonhoven.
Gunstig gelegen langs de N210, met directe verbinding aan de in- en uitvalswegen naar Utrecht, Gouda en Rotterdam.
In de directe omgeving is voldoende gratis parkeergelegenheid en het openbaar vervoer is binnen 50 meter aanwezig. Het gezellige centrum van Schoonhoven is op loopafstand.
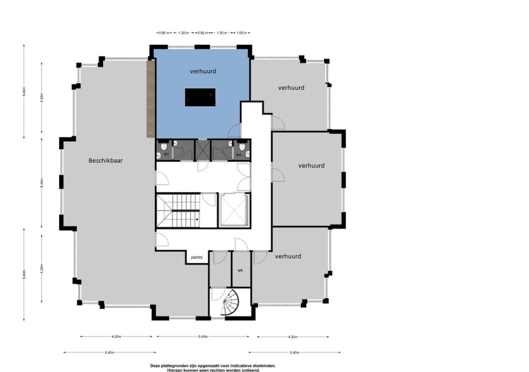
INDELING 2E VERDIEPING
Hal met lift, trappenhuis, dames en herentoiletten, gang en een pantry. Kantoorruimte van netto 77 m2 en kenmerkt zich door een prachtig uitzicht en veel lichtinval door de grote raampartijen.
Opleveringsniveau: de ruimte wordt turn-key opgeleverd en is onder andere voorzien van:
- systeemplafond met ingebouwde verlichtingsarmaturen;
- airco unit;
- voorzien van tapijtvloer;
- voorzien van raambekleding;
- pantry;
- intercominstallatie;
- internetaansluiting;
- apart dames en heren toilet;
- beschikbaar per 1 januari 2026.
Bij de huur is inbegrepen:
Periodieke onderhouds- en controlewerkzaamheden, elektriciteitsverbruik e.d. van:
- Liften;
- Luchtbehandelingsinstallatie;
- Centrale verwarmingsinstallatie;
- Warmwaterinstallatie;
- Zwakstroominstallatie van de algemene ruimten en van de noodstroominstallatie;
- Brandmeldinstallatie;
- Signalerings- en bewakingsapparatuur;
- Verlichting en verwarming, klein onderhoud in de algemene ruimten en centrale hal begane grond.
- Warmwaterlevering waaronder meer begrepen meterhuur voor zover deze kosten aan verhuurder in rekening worden gebracht door de desbetreffende instanties;
- Levering van warm water, waaronder begrepen brandstof- en elektriciteitsverbruik e.d.;
- Glasverzekering van alle gevelruiten in het gehuurde dienende tot lichtdoorlating;
- Glasverzekering van alle glasruiten dienende tot lichtdoorlating in de algemene ruimten;
- Elektriciteitsverbruik in de gehuurde ruimten voor zover dit aan verhuurder in rekening wordt gebracht;
- Diensten van de huisbewaarder/portier(s), of andere functionarissen die diensten verrichten ten behoeve van het gebouw waarvan het gehuurde deel uitmaakt;
- Levering van warmte;
- Glasvezelverbinding.
De administratiekosten over de hiervoor vermelde leveringen en diensten van 5% te verhogen met de wettelijk verschuldigde omzetbelasting;
Verhuurder en huurder komen overeen dat de kosten voor het gebruik van de telefoon en de kosten voor het schoonmaken (m.u.v. schoonmaak algemene ruimtes), kosten zijn die gedragen worden door de huurder.
Huurprijsaanpassing: De huurprijs wordt jaarlijks herzien op basis van de
consumentenprijsindex (CPI) Alle Huishoudens (2015=100), gepubliceerd door het Centraal Bureau voor de Statistiek (CBS), mits dit geen verlaging tot gevolg heeft.
Huurbetaling: de betaling van de huurprijs, servicekosten (voorschot) en eventuele BTW geschiedt steeds per maand bij vooruitbetaling middels automatisch incasso.
Zekerheid: huurder dient voor huuringangsdatum, maar uiterlijk een dag voor de datum van ingebruikname, aan verhuurder een waarborgsom te voldoen voor een betalingstermijn van 3 maanden huur, inclusief servicevoorschot en omzetbelasting.
BTW-status: verhuurder wenst te opteren voor BTW-belaste huur en verhuur. Ingeval huurder de BTW niet kan verrekenen, zal de huurprijs in overleg met huurder worden verhoogd ter compensatie van de gevolgen van het vervallen van de mogelijkheid om te opteren voor BTW-belaste verhuur.
Huurovereenkomst: huurovereenkomst wordt opgesteld conform het standaard model van de Raad voor Onroerende Zaken (ROZ), model 2015, zoals gehanteerd door de Nederlandse Vereniging voor Makelaars (NVM), aangevuld met locatie specifieke- en verhuurdersbepalingen.
Voorbehoud: elke transactie behoeft de nadrukkelijke goedkeuring van eigenaar.
Algemeen: al het bovenstaande betreft informatie omtrent de verhuur van kantoorruimte op de 2e verdieping Lopikerplein 2 te Schoonhoven. Deze informatie is met zorg samengesteld, maar voor de juistheid ervan kan door Van Herk Bedrijfsmakelaars geen aansprakelijkheid worden aanvaard, noch aan de vermelde gegevens enig recht worden ontleend. Nadrukkelijk is vermeld dat deze informatieverstrekking niet als een aanbieding of offerte mag worden beschouwd.
Kantoorgebouw "De Toren" is uitstekend gesitueerd op een mooie locatie aan de rand van het centrum van Schoonhoven.
Gunstig gelegen langs de N210, met directe verbinding aan de in- en uitvalswegen naar Utrecht, Gouda en Rotterdam.
In de directe omgeving is voldoende gratis parkeergelegenheid en het openbaar vervoer is binnen 50 meter aanwezig. Het gezellige centrum van Schoonhoven is op loopafstand.
INDELING 2E VERDIEPING
Hal met lift, trappenhuis, dames en herentoiletten, gang en een pantry. Kantoorruimte van netto 77 m2 en kenmerkt zich door een prachtig uitzicht en veel lichtinval door de grote raampartijen.
Opleveringsniveau: de ruimte wordt turn-key opgeleverd en is onder andere voorzien van:
- systeemplafond met ingebouwde verlichtingsarmaturen;
- airco unit;
- voorzien van tapijtvloer;
- voorzien van raambekleding;
- pantry;
- intercominstallatie;
- internetaansluiting;
- apart dames en heren toilet;
- beschikbaar per 1 januari 2026.
Bij de huur is inbegrepen:
Periodieke onderhouds- en controlewerkzaamheden, elektriciteitsverbruik e.d. van:
- Liften;
- Luchtbehandelingsinstallatie;
- Centrale verwarmingsinstallatie;
- Warmwaterinstallatie;
- Zwakstroominstallatie van de algemene ruimten en van de noodstroominstallatie;
- Brandmeldinstallatie;
- Signalerings- en bewakingsapparatuur;
- Verlichting en verwarming, klein onderhoud in de algemene ruimten en centrale hal begane grond.
- Warmwaterlevering waaronder meer begrepen meterhuur voor zover deze kosten aan verhuurder in rekening worden gebracht door de desbetreffende instanties;
- Levering van warm water, waaronder begrepen brandstof- en elektriciteitsverbruik e.d.;
- Glasverzekering van alle gevelruiten in het gehuurde dienende tot lichtdoorlating;
- Glasverzekering van alle glasruiten dienende tot lichtdoorlating in de algemene ruimten;
- Elektriciteitsverbruik in de gehuurde ruimten voor zover dit aan verhuurder in rekening wordt gebracht;
- Diensten van de huisbewaarder/portier(s), of andere functionarissen die diensten verrichten ten behoeve van het gebouw waarvan het gehuurde deel uitmaakt;
- Levering van warmte;
- Glasvezelverbinding.
De administratiekosten over de hiervoor vermelde leveringen en diensten van 5% te verhogen met de wettelijk verschuldigde omzetbelasting;
Verhuurder en huurder komen overeen dat de kosten voor het gebruik van de telefoon en de kosten voor het schoonmaken (m.u.v. schoonmaak algemene ruimtes), kosten zijn die gedragen worden door de huurder.
Huurprijsaanpassing: De huurprijs wordt jaarlijks herzien op basis van de
consumentenprijsindex (CPI) Alle Huishoudens (2015=100), gepubliceerd door het Centraal Bureau voor de Statistiek (CBS), mits dit geen verlaging tot gevolg heeft.
Huurbetaling: de betaling van de huurprijs, servicekosten (voorschot) en eventuele BTW geschiedt steeds per maand bij vooruitbetaling middels automatisch incasso.
Zekerheid: huurder dient voor huuringangsdatum, maar uiterlijk een dag voor de datum van ingebruikname, aan verhuurder een waarborgsom te voldoen voor een betalingstermijn van 3 maanden huur, inclusief servicevoorschot en omzetbelasting.
BTW-status: verhuurder wenst te opteren voor BTW-belaste huur en verhuur. Ingeval huurder de BTW niet kan verrekenen, zal de huurprijs in overleg met huurder worden verhoogd ter compensatie van de gevolgen van het vervallen van de mogelijkheid om te opteren voor BTW-belaste verhuur.
Huurovereenkomst: huurovereenkomst wordt opgesteld conform het standaard model van de Raad voor Onroerende Zaken (ROZ), model 2015, zoals gehanteerd door de Nederlandse Vereniging voor Makelaars (NVM), aangevuld met locatie specifieke- en verhuurdersbepalingen.
Voorbehoud: elke transactie behoeft de nadrukkelijke goedkeuring van eigenaar.
Algemeen: al het bovenstaande betreft informatie omtrent de verhuur van kantoorruimte op de 2e verdieping Lopikerplein 2 te Schoonhoven. Deze informatie is met zorg samengesteld, maar voor de juistheid ervan kan door Van Herk Bedrijfsmakelaars geen aansprakelijkheid worden aanvaard, noch aan de vermelde gegevens enig recht worden ontleend. Nadrukkelijk is vermeld dat deze informatieverstrekking niet als een aanbieding of offerte mag worden beschouwd.
Features
Transfer of ownership
- Rental price
- € 1,514 per month
- Service charges
- No service charges known
- Listed since
-
- Status
- Available
- Acceptance
- Available on 1/1/2026
Construction
- Main use
- Office space
- Building type
- Resale property
- Year of construction
- 1999
Surface areas
- Area
- 77 m²
Layout
- Number of floors
- 4 floors
- Facilities
- Air conditioning, mechanical ventilation, built-in fittings, elevators, windows can be opened, cable ducts, modular ceiling, toilet, pantry, heating and room layout
Energy
- Energy label
- A
Surroundings
- Accessibility
- Bus stop in less than 500 m, Dutch Railways Intercity station in 4000 m to 5000 m and motorway exit in 5000 m or more
NVM real estate agent
Photos














