Stationspark 1240 3364 DA Sliedrecht
€ 5,995 p/mo.
Description
Luxe, turn-key ‘kantoorloft’ van ca. 360 m² b.v.o. verdeeld over 3 bouwlagen, gelegen op de herkenbare hoek/kop van het moderne en duurzame nieuwbouwproject Xentraal I op het Stationspark in Sliedrecht. Dit kantorenpark is gelegen op een herkenbare en uitstekend bereikbare locatie tussen rijksweg A15 en de Merwede-Lingelijn (treinverbinding Dordrecht-Geldermalsen).
De moderne en duurzame kantoorruimte met energielabel A+ beschikt o.a. over een eigen voordeur, eigen nutsaansluitingen, vloerafwerking, wandafwerking, systeemplafonds met ledverlichting, verwarming en koeling en keurig sanitair op elke bouwlaag. Tevens beschikt het kantoor over 26 zonnepanelen, waarvan het voordeel volledig aan huurder toekomt, alsmede 11 toegewezen, eigen parkeerplaatsen. Het aanwezige kantoormeubilair kan indien gewenst eveneens worden gehuurd.
Locatie:
De kantoorloft is gelegen op kantorenpark Stationspark, nabij de op- en afritten van rijksweg A15 en op een steenworp afstand van treinstation Sliedrecht met in het voormalige stationsgebouw restaurant en brasserie ‘de Heeren van Slydregt’. Er rijden ieder kwartier treinen in de richting van Dordrecht en Gorinchem / Geldermalsen. Op bedrijventerrein Stationspark zijn enkele gerenommeerde bedrijven en instellingen gevestigd als o.a. het Albert Schweitzer Ziekenhuis (polikliniek), Stout, ABB, Univé Zuid-Nederland (verzekeringen), Hak + Baak Accountants en Hoek & Blok accountants, belastingadviseurs en juristen.
Afmetingen:
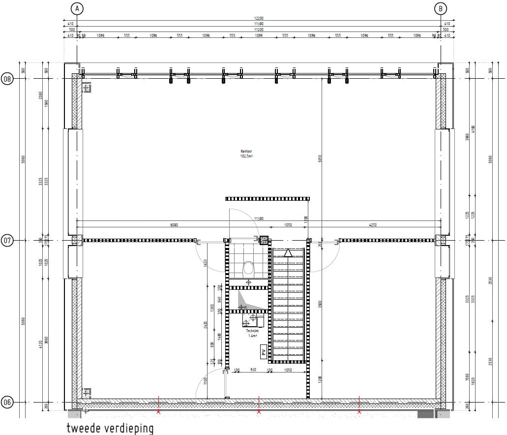
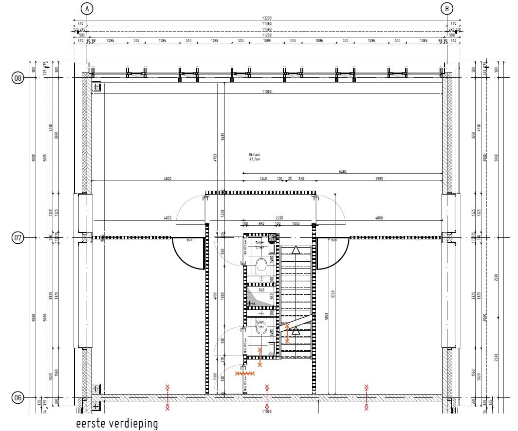
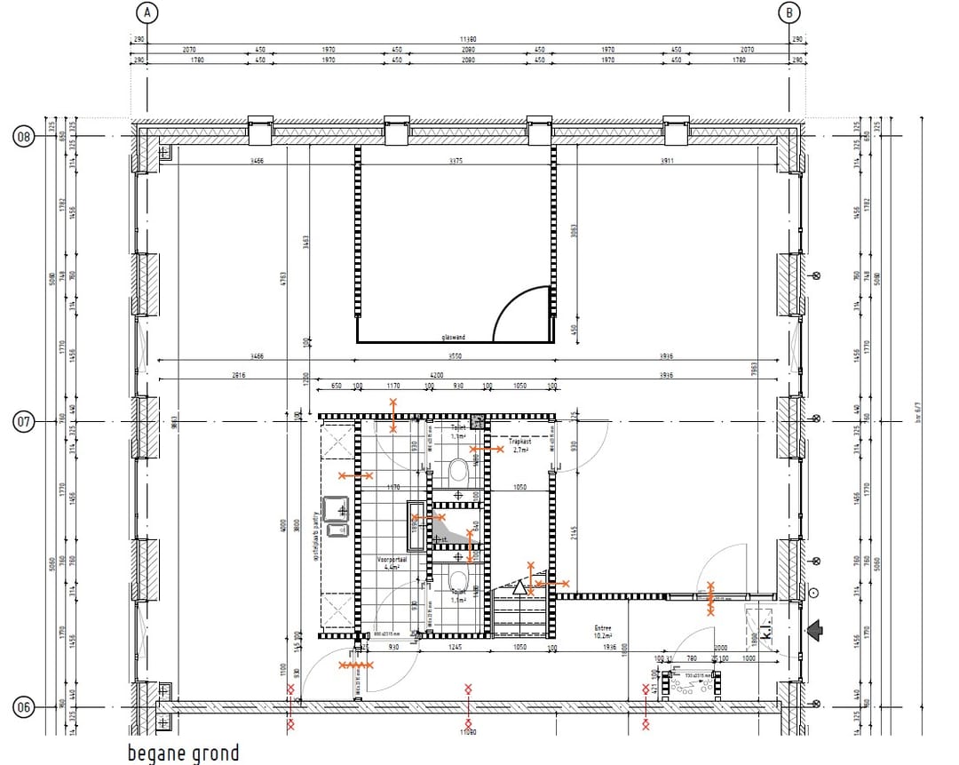
Ca. 360 m² b.v.o. kantoorruimte, verdeeld over 3 bouwlagen.
Parkeren:
11 eigen parkeerplaatsen. Tevens ruime openbare parkeergelegenheid ter plaatse van het treinstation.
Bestemming:
Kantoordoeleinden.
Bouwaard/algemeen:
- onderheide betonfundering;
- geïsoleerde betonnen begane grond vloer (Rc-waarde 3,5 m² K/W);
- betonnen verdiepingsvloer;
- metselwerk gevels met kalkzandsteen binnenspouwblad (Rc-waarde 4,5 m² K/W);
- aluminium buitenkozijnen-, ramen en – deuren met HR++ isolerende beglazing;
- unit-scheidende wanden uitgevoerd in kalkzandsteen;
- kantoren binnenzijde lichte scheidingswanden;
- geïsoleerd plat dak met bitumineuze dakbedekking (Rc-waarde 6,0 m² K/W);
- meterkast met aansluitingen voor elektra, water en telefonie/internet (glasvezel);
- brandblusmiddelen.
Voorzieningen/specificaties:
- eigen voordeur;
- vloerafwerking tapijt;
- wandafwerking gesausd glasweefsel;
- systeemplafonds met ledverlichtingsarmaturen, vrije hoogte ca. 2,70 meter;
- functionele wandindeling door middel van metal stud-scheidingswanden en glazen scheidingswanden;
- koeling en verwarming door middel van een VRF installatie;
- WTW-balans ventilatie;
- betegelde toiletruimten op elke bouwlaag;
- luxe keuken met inbouwapparatuur op de begane grond;
- diverse wandcontactdozen;
- zonnepaneleninstallatie met 26 zonnepanelen.
Energielabel:
A+, geldig tot 12 januari 2032.
Reclamevoering:
Uitsluitend toegestaan door middel van een doosletter in overleg met en na goedkeuring van eigenaar/verhuurder.
Huurprijs:
€ 5.995,- per maand exclusief servicekosten exclusief BTW.
Servicekosten:
In nader overleg.
Energiekosten:
Per datum sleuteloverdracht/oplevering is huurder zelf verantwoordelijk voor het afsluiten van leveringscontracten ten behoeve van elektra en water. Het voordeel van de zonnepaneleninstallatie met 26 zonnepanelen komt volledig toe aan huurder.
Huurperiode:
Bij voorkeur 5 jaar.
Huurbetaling:
Per maand vooruit.
Huurverhoging:
Jaarlijks, voor het eerst 1 jaar na huuringangsdatum, conform de wijziging van het maandprijsindexcijfer volgens de Consumentenprijsindex (CPI), reeks CPI-alle huishoudens (2015 = 100), gepubliceerd door het Centraal Bureau voor de Statistiek (CBS).
Huurovereenkomst:
De te sluiten huurovereenkomst zal worden opgemaakt op basis van het ROZ-model (Raad van Onroerende Zaken) kantoorruimte en andere bedrijfsruimte in de zin van artikel 7:230a BW, vastgesteld 30-01-2015 met bijbehorende Algemene Bepalingen gedeponeerd bij de griffie van de Rechtbank te Den Haag en op 17-02-2015 aldaar ingeschreven onder nummer 15/21.
Zekerheidstelling:
Bankgarantie of waarborgsom ter grootte van een kwartaalverplichting huur inclusief servicekosten inclusief BTW.
Omzetbelasting:
De huurprijs wordt belast met de geldende omzetbelasting. Huurder en verhuurder opteren voor een BTW-belaste verhuur. Indien op basis van de nieuwe BTW-wetgevingsvoorstelling huurder niet meer aan het criterium meer dan 90% BTW-belaste prestaties verricht voldoet, en zodoende het verzoek om BTW-belaste verhuur niet geaccepteerd wordt, dan zal de huurprijs worden verhoogd met een nader door verhuurder vast te stellen percentage.
Oplevering:
Per direct beschikbaar.
Deze informatie is door ons met de nodige zorgvuldigheid samengesteld. Onzerzijds wordt echter geen enkele aansprakelijkheid aanvaard voor enige onvolledigheid, onjuistheid of anderszins, dan wel de gevolgen daarvan. Alle opgegeven maten en oppervlakten zijn indicatief.
De moderne en duurzame kantoorruimte met energielabel A+ beschikt o.a. over een eigen voordeur, eigen nutsaansluitingen, vloerafwerking, wandafwerking, systeemplafonds met ledverlichting, verwarming en koeling en keurig sanitair op elke bouwlaag. Tevens beschikt het kantoor over 26 zonnepanelen, waarvan het voordeel volledig aan huurder toekomt, alsmede 11 toegewezen, eigen parkeerplaatsen. Het aanwezige kantoormeubilair kan indien gewenst eveneens worden gehuurd.
Locatie:
De kantoorloft is gelegen op kantorenpark Stationspark, nabij de op- en afritten van rijksweg A15 en op een steenworp afstand van treinstation Sliedrecht met in het voormalige stationsgebouw restaurant en brasserie ‘de Heeren van Slydregt’. Er rijden ieder kwartier treinen in de richting van Dordrecht en Gorinchem / Geldermalsen. Op bedrijventerrein Stationspark zijn enkele gerenommeerde bedrijven en instellingen gevestigd als o.a. het Albert Schweitzer Ziekenhuis (polikliniek), Stout, ABB, Univé Zuid-Nederland (verzekeringen), Hak + Baak Accountants en Hoek & Blok accountants, belastingadviseurs en juristen.
Afmetingen:
Ca. 360 m² b.v.o. kantoorruimte, verdeeld over 3 bouwlagen.
Parkeren:
11 eigen parkeerplaatsen. Tevens ruime openbare parkeergelegenheid ter plaatse van het treinstation.
Bestemming:
Kantoordoeleinden.
Bouwaard/algemeen:
- onderheide betonfundering;
- geïsoleerde betonnen begane grond vloer (Rc-waarde 3,5 m² K/W);
- betonnen verdiepingsvloer;
- metselwerk gevels met kalkzandsteen binnenspouwblad (Rc-waarde 4,5 m² K/W);
- aluminium buitenkozijnen-, ramen en – deuren met HR++ isolerende beglazing;
- unit-scheidende wanden uitgevoerd in kalkzandsteen;
- kantoren binnenzijde lichte scheidingswanden;
- geïsoleerd plat dak met bitumineuze dakbedekking (Rc-waarde 6,0 m² K/W);
- meterkast met aansluitingen voor elektra, water en telefonie/internet (glasvezel);
- brandblusmiddelen.
Voorzieningen/specificaties:
- eigen voordeur;
- vloerafwerking tapijt;
- wandafwerking gesausd glasweefsel;
- systeemplafonds met ledverlichtingsarmaturen, vrije hoogte ca. 2,70 meter;
- functionele wandindeling door middel van metal stud-scheidingswanden en glazen scheidingswanden;
- koeling en verwarming door middel van een VRF installatie;
- WTW-balans ventilatie;
- betegelde toiletruimten op elke bouwlaag;
- luxe keuken met inbouwapparatuur op de begane grond;
- diverse wandcontactdozen;
- zonnepaneleninstallatie met 26 zonnepanelen.
Energielabel:
A+, geldig tot 12 januari 2032.
Reclamevoering:
Uitsluitend toegestaan door middel van een doosletter in overleg met en na goedkeuring van eigenaar/verhuurder.
Huurprijs:
€ 5.995,- per maand exclusief servicekosten exclusief BTW.
Servicekosten:
In nader overleg.
Energiekosten:
Per datum sleuteloverdracht/oplevering is huurder zelf verantwoordelijk voor het afsluiten van leveringscontracten ten behoeve van elektra en water. Het voordeel van de zonnepaneleninstallatie met 26 zonnepanelen komt volledig toe aan huurder.
Huurperiode:
Bij voorkeur 5 jaar.
Huurbetaling:
Per maand vooruit.
Huurverhoging:
Jaarlijks, voor het eerst 1 jaar na huuringangsdatum, conform de wijziging van het maandprijsindexcijfer volgens de Consumentenprijsindex (CPI), reeks CPI-alle huishoudens (2015 = 100), gepubliceerd door het Centraal Bureau voor de Statistiek (CBS).
Huurovereenkomst:
De te sluiten huurovereenkomst zal worden opgemaakt op basis van het ROZ-model (Raad van Onroerende Zaken) kantoorruimte en andere bedrijfsruimte in de zin van artikel 7:230a BW, vastgesteld 30-01-2015 met bijbehorende Algemene Bepalingen gedeponeerd bij de griffie van de Rechtbank te Den Haag en op 17-02-2015 aldaar ingeschreven onder nummer 15/21.
Zekerheidstelling:
Bankgarantie of waarborgsom ter grootte van een kwartaalverplichting huur inclusief servicekosten inclusief BTW.
Omzetbelasting:
De huurprijs wordt belast met de geldende omzetbelasting. Huurder en verhuurder opteren voor een BTW-belaste verhuur. Indien op basis van de nieuwe BTW-wetgevingsvoorstelling huurder niet meer aan het criterium meer dan 90% BTW-belaste prestaties verricht voldoet, en zodoende het verzoek om BTW-belaste verhuur niet geaccepteerd wordt, dan zal de huurprijs worden verhoogd met een nader door verhuurder vast te stellen percentage.
Oplevering:
Per direct beschikbaar.
Deze informatie is door ons met de nodige zorgvuldigheid samengesteld. Onzerzijds wordt echter geen enkele aansprakelijkheid aanvaard voor enige onvolledigheid, onjuistheid of anderszins, dan wel de gevolgen daarvan. Alle opgegeven maten en oppervlakten zijn indicatief.
Features
Transfer of ownership
- Rental price
- € 5,995 per month
- Service charges
- No service charges known
- Listed since
-
- Status
- Available
- Acceptance
- Available immediately
Construction
- Main use
- Office
- Building type
- Resale property
- Year of construction
- 2022
Surface areas
- Area
- 360 m²
Layout
- Number of floors
- 3 floors
- Facilities
- Air conditioning, built-in fittings, modular ceiling, toilet, pantry and heating
Energy
- Energy label
- A+
Surroundings
- Location
- Office park
Parking
- Parking spaces
- 11 uncovered parking spaces
NVM real estate agent
Photos