Kubus 141 3364 DG Sliedrecht
€ 875 p/mo.
Description
Keurige, zelfstandige kantoorruimte van ca. 82 m² met eigen sanitaire voorzieningen, gelegen op de 1e verdieping van een eigentijds bedrijfsverzamelgebouw op bedrijventerrein Noord-Oost Kwadrant in Sliedrecht. De locatie bevindt zich op zeer korte afstand van de op- en afritten van rijksweg A15.
De kantoorruimte is bereikbaar via een gemeenschappelijke entree op de begane grond, voorzien van een trapopgang en liftinstallatie.
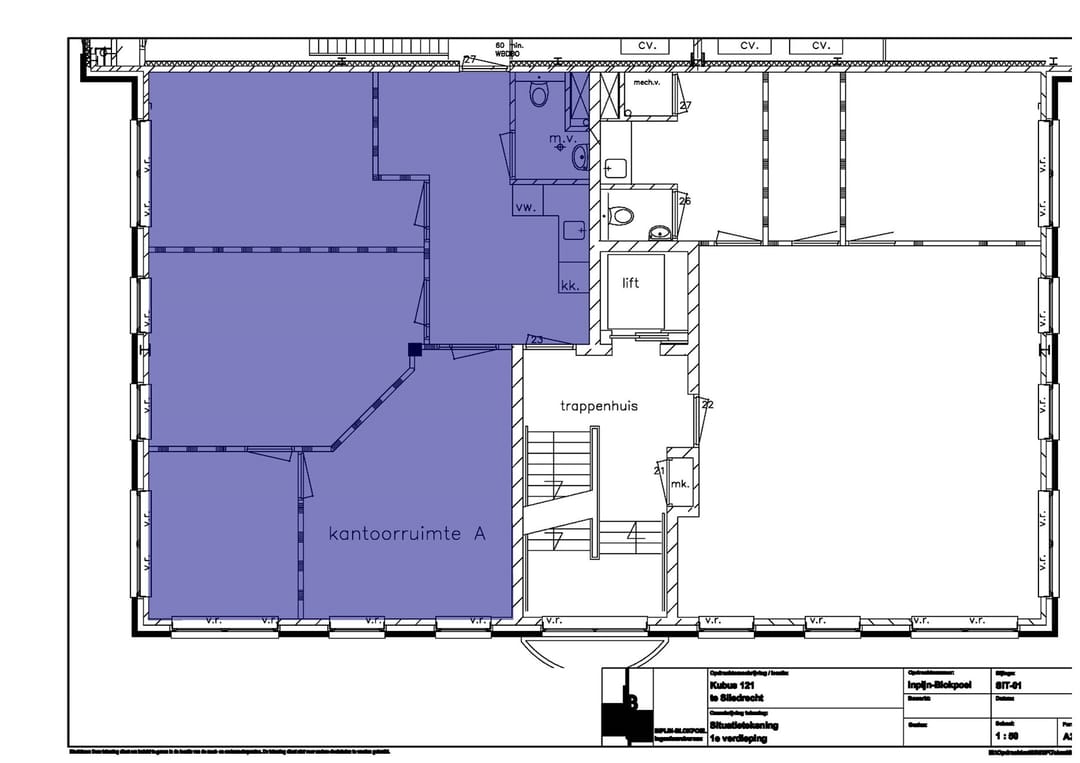
De ruimte op de 1e verdieping beschikt over een nette entree/ontvangstruimte met pantry en toilet, alsmede drie kantoorcompartimenten (voorheen vier).
Het geheel heeft een verzorgd afwerkingsniveau, waaronder vloerafwerking, gesausde wanden, een systeemplafond met verlichtingsarmaturen en installaties voor verwarming en airconditioning.
Bij de kantoorruimte behoren tevens twee eigen parkeerplaatsen.
Locatie:
De kantoorunit is gelegen in Sliedrecht op bedrijventerrein Noord-Oost Kwadrant. Dit relatief nieuwe bedrijventerrein is gelegen aan de rijksweg A15 met op- en afritten nabij de entree van het bedrijventerrein. Op circa 1.300 meter afstand ligt een treinstation aan de MerwedeLingelijn, met een kwartiersdienstregeling tussen Dordrecht en Geldermalsen.
Afmetingen:
Ca. 82 m² kantoorruimte.
Parkeren:
Twee eigen parkeerplaatsen.
Bestemming:
Kantoordoeleinden.
Bouwaard/algemeen:
- onderheide betonfundering;
- betonnen vloeren;
- opbouw staalconstructie;
- gevels metselwerk;
- aluminium gevelkozijnen met isolerende beglazing;
- betonnen dak met bitumineuze dakbedekking.
Voorzieningen/specificaties:
- gezamenlijke entree met bellentableau en brievenbussen;
- plavuizen in de verkeersruimten;
- stalen trapopgang met natuurstenen treden en bordessen;
- indeling kantoorruimte 1e verdieping: entree/ontvangstruimte met pantry en toiletruimte, alsmede kantoorcompartimenten (voorheen 4);
- kantoorruimte voorzien van tapijt;
- wandafwerking spuitwerk;
- systeemplafond met verlichtingsarmaturen;
- wandgoten ten behoeve van bekabeling data, elektra en telefonie;
- pantry;
- toiletruimte;
- verwarming middels cv-installatie en radiatoren;
- airconditioning;
- brandblusmiddelen.
Reclamevoering:
Uitsluitend in overleg met en na goedkeuring van eigenaar/verhuurder.
Huurprijs:
€ 875,- per maand exclusief servicekosten exclusief BTW.
Servicekosten:
Het voorschot servicekosten bedraagt € 30,- per m² per jaar exclusief BTW (derhalve € 205,- per maand exclusief BTW) ten behoeve van de volgende leveringen en diensten:
- gebruik elektra (verrekening vindt plaats op basis van een tussenmeter);
- gebruik gas (gezamenlijke cv-installatie voorzien van tussenmeter t.b.v. kantoren op de 1e en 2e verdieping; verrekening vindt plaats op basis van het gehuurde metrage);
- gebruik water (gezamenlijke aansluiting voor de zes kantoorruimten vanaf de begane grond tot de 2e verdieping; verrekening vindt plaats op basis van het gehuurde metrage);
- periodiek onderhoud cv-installatie (naar rato);
- periodiek onderhoud airconditioning;
- periodiek onderhoud liftinstallatie;
- periodiek onderhoud brandblusmiddelen;
- periodiek schoonmaken van het dak;
- terrein- en tuinonderhoud.
Huurperiode:
Bij voorkeur 3 jaar of langer.
Huurbetaling:
Per maand vooruit.
Huurverhoging:
Jaarlijks, voor het eerst 1 jaar na huuringangsdatum, conform de wijziging van het maandprijsindexcijfer volgens de Consumentenprijsindex (CPI), reeks CPI-alle huishoudens (2025 = 100), gepubliceerd door het Centraal Bureau voor de Statistiek (CBS).
Huurovereenkomst:
De te sluiten huurovereenkomst zal worden opgemaakt op basis van het ROZ-model (Raad van Onroerende Zaken) kantoorruimte en andere bedrijfsruimte in de zin van artikel 7:230a BW, vastgesteld 05-03-2025 met bijbehorende Algemene Bepalingen gedeponeerd bij de griffie van de Rechtbank te Den Haag en op 10-04-2025 aldaar ingeschreven onder nummer 8/2025.
Zekerheidsstelling:
Bankgarantie of waarborgsom ter grootte van een kwartaalverplichting huur inclusief servicekosten inclusief BTW.
Omzetbelasting:
De huurprijs wordt belast met de geldende omzetbelasting. Huurder en verhuurder opteren voor een BTW-belaste verhuur. Indien op basis van de nieuwe BTW-wetgevingsvoorstelling huurder niet meer aan het criterium meer dan 90% BTW-belaste prestaties verricht voldoet, en zodoende het verzoek om BTW-belaste verhuur niet geaccepteerd wordt, dan zal de huurprijs worden verhoogd met een nader door verhuurder vast te stellen percentage.
Oplevering:
Op korte termijn mogelijk.
Deze informatie is door ons met de nodige zorgvuldigheid samengesteld. Onzerzijds wordt echter geen enkele aansprakelijkheid aanvaard voor enige onvolledigheid, onjuistheid of anderszins, dan wel de gevolgen daarvan. Alle opgegeven maten en oppervlakten zijn indicatief.
De kantoorruimte is bereikbaar via een gemeenschappelijke entree op de begane grond, voorzien van een trapopgang en liftinstallatie.
De ruimte op de 1e verdieping beschikt over een nette entree/ontvangstruimte met pantry en toilet, alsmede drie kantoorcompartimenten (voorheen vier).
Het geheel heeft een verzorgd afwerkingsniveau, waaronder vloerafwerking, gesausde wanden, een systeemplafond met verlichtingsarmaturen en installaties voor verwarming en airconditioning.
Bij de kantoorruimte behoren tevens twee eigen parkeerplaatsen.
Locatie:
De kantoorunit is gelegen in Sliedrecht op bedrijventerrein Noord-Oost Kwadrant. Dit relatief nieuwe bedrijventerrein is gelegen aan de rijksweg A15 met op- en afritten nabij de entree van het bedrijventerrein. Op circa 1.300 meter afstand ligt een treinstation aan de MerwedeLingelijn, met een kwartiersdienstregeling tussen Dordrecht en Geldermalsen.
Afmetingen:
Ca. 82 m² kantoorruimte.
Parkeren:
Twee eigen parkeerplaatsen.
Bestemming:
Kantoordoeleinden.
Bouwaard/algemeen:
- onderheide betonfundering;
- betonnen vloeren;
- opbouw staalconstructie;
- gevels metselwerk;
- aluminium gevelkozijnen met isolerende beglazing;
- betonnen dak met bitumineuze dakbedekking.
Voorzieningen/specificaties:
- gezamenlijke entree met bellentableau en brievenbussen;
- plavuizen in de verkeersruimten;
- stalen trapopgang met natuurstenen treden en bordessen;
- indeling kantoorruimte 1e verdieping: entree/ontvangstruimte met pantry en toiletruimte, alsmede kantoorcompartimenten (voorheen 4);
- kantoorruimte voorzien van tapijt;
- wandafwerking spuitwerk;
- systeemplafond met verlichtingsarmaturen;
- wandgoten ten behoeve van bekabeling data, elektra en telefonie;
- pantry;
- toiletruimte;
- verwarming middels cv-installatie en radiatoren;
- airconditioning;
- brandblusmiddelen.
Reclamevoering:
Uitsluitend in overleg met en na goedkeuring van eigenaar/verhuurder.
Huurprijs:
€ 875,- per maand exclusief servicekosten exclusief BTW.
Servicekosten:
Het voorschot servicekosten bedraagt € 30,- per m² per jaar exclusief BTW (derhalve € 205,- per maand exclusief BTW) ten behoeve van de volgende leveringen en diensten:
- gebruik elektra (verrekening vindt plaats op basis van een tussenmeter);
- gebruik gas (gezamenlijke cv-installatie voorzien van tussenmeter t.b.v. kantoren op de 1e en 2e verdieping; verrekening vindt plaats op basis van het gehuurde metrage);
- gebruik water (gezamenlijke aansluiting voor de zes kantoorruimten vanaf de begane grond tot de 2e verdieping; verrekening vindt plaats op basis van het gehuurde metrage);
- periodiek onderhoud cv-installatie (naar rato);
- periodiek onderhoud airconditioning;
- periodiek onderhoud liftinstallatie;
- periodiek onderhoud brandblusmiddelen;
- periodiek schoonmaken van het dak;
- terrein- en tuinonderhoud.
Huurperiode:
Bij voorkeur 3 jaar of langer.
Huurbetaling:
Per maand vooruit.
Huurverhoging:
Jaarlijks, voor het eerst 1 jaar na huuringangsdatum, conform de wijziging van het maandprijsindexcijfer volgens de Consumentenprijsindex (CPI), reeks CPI-alle huishoudens (2025 = 100), gepubliceerd door het Centraal Bureau voor de Statistiek (CBS).
Huurovereenkomst:
De te sluiten huurovereenkomst zal worden opgemaakt op basis van het ROZ-model (Raad van Onroerende Zaken) kantoorruimte en andere bedrijfsruimte in de zin van artikel 7:230a BW, vastgesteld 05-03-2025 met bijbehorende Algemene Bepalingen gedeponeerd bij de griffie van de Rechtbank te Den Haag en op 10-04-2025 aldaar ingeschreven onder nummer 8/2025.
Zekerheidsstelling:
Bankgarantie of waarborgsom ter grootte van een kwartaalverplichting huur inclusief servicekosten inclusief BTW.
Omzetbelasting:
De huurprijs wordt belast met de geldende omzetbelasting. Huurder en verhuurder opteren voor een BTW-belaste verhuur. Indien op basis van de nieuwe BTW-wetgevingsvoorstelling huurder niet meer aan het criterium meer dan 90% BTW-belaste prestaties verricht voldoet, en zodoende het verzoek om BTW-belaste verhuur niet geaccepteerd wordt, dan zal de huurprijs worden verhoogd met een nader door verhuurder vast te stellen percentage.
Oplevering:
Op korte termijn mogelijk.
Deze informatie is door ons met de nodige zorgvuldigheid samengesteld. Onzerzijds wordt echter geen enkele aansprakelijkheid aanvaard voor enige onvolledigheid, onjuistheid of anderszins, dan wel de gevolgen daarvan. Alle opgegeven maten en oppervlakten zijn indicatief.
Features
Transfer of ownership
- Rental price
- € 875 per month
- Service charges
- € 30 per square meter per year (21% VAT applies)
- Listed since
-
- Status
- Available
- Acceptance
- Available in consultation
Construction
- Main use
- Office
- Building type
- Resale property
- Year of construction
- 2000
Surface areas
- Area
- 82 m²
Layout
- Number of floors
- 1 floor
- Facilities
- Windows can be opened, cable ducts, modular ceiling, toilet, pantry and heating
Energy
- Energy label
- Not available
Surroundings
- Location
- Business park
Parking
- Parking spaces
- 2 uncovered parking spaces
NVM real estate agent
Photos