Raadhuisplein 5 5161 CG Sprang-Capelle
€ 985 p/mo.

Description
Op goede locatie in het centrum van Sprang-Capelle gelegen winkelruimte met gratis parkeergelegenheid in directe omgeving.
Algemeen
Sprang-Capelle (inwoners 9.990), een pittoresk dorp gelegen in het hart van Noord-Brabant, biedt een perfecte mix van authentieke charme en moderne bedrijvigheid. Hier vindt u een divers aanbod aan winkels, bedrijven en diensten die inspelen op al uw wensen en behoeften. Of u nu op zoek bent naar unieke boetieks of lokale ambachten. Het Raadhuisplein is gevuld met een breed scala aan winkels die elke smaak en stijl bedienen. Sprang-Capelle is gemakkelijk bereikbaar. Er is voldoende parkeergelegenheid en de centrale ligging maakt het eenvoudig om vanuit omliggende steden en dorpen een bezoek te brengen.
Bouwjaar
1989
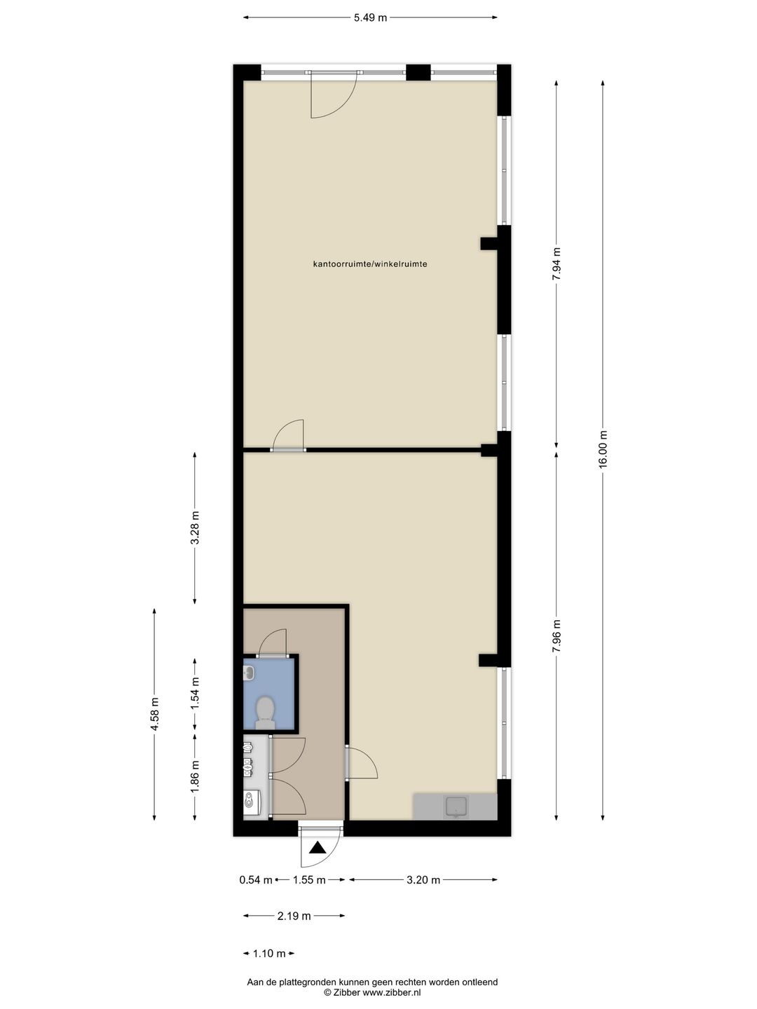
Vloeroppervlakte:
Kantoor-/winkelruimte : ca. 88 m²
Totaal : ca. 88 m²
Bestemming:
Het object valt binnen het bestemmingsplan “Deelgebied 29”, vastgesteld op 21-09-2023, waarin het de bestemming “Centrumvoorzieningen” heeft gekregen. Voor een afschrift van dit bestemmingsplan kunt u contact met ons kantoor opnemen.
Frontbreedte:
Ca. 5,5 meter
Indeling
Entree, open kantoor/winkelruimte welke is opgesplitst middels een glazen wand, pantry, toilet en achteringang naar parkeerterrein.
Voorzieningen
- Systeemplafond met led-verlichting;
- Pvc-vloer;
- Keukenblok;
- 1 toilet;
- Aansluiting data en elektra;
- Raamdecoratie en rolluiken (zijkant);
- Alarm;
- Cv-verwarmd middels radiatoren.
Opmerkingen
- Achter het gehuurde is een eigen afgesloten parkeerterrein, de huurprijs bedraagt € 175,- per maand excl. BTW per parkeerplaats.
- Er zijn voldoende gratis openbare parkeerplaatsen in de directe omgeving.
- In overleg kan het gehuurde worden voorzien van airco.
Kadastrale gegevens
Gemeente : Sprang
Sectie : B
Nummer : 4505, A1
Oplevering
In overleg
Energielabel
A
Verhuurvoorwaarden
Wij bieden het object aan op basis van onder meer de volgende voorwaarden:
- huurtermijn van vijf (5) jaren met telkenmale verlengingsperioden van vijf (5) jaren;
- wederzijdse opzegtermijn van twaalf (12) maanden voorafgaand aan expiratiedatum;
- jaarlijkse indexering op basis van het CPI indexcijfer alle huishoudens (2015=100), voor het eerst één jaar na huuringangsdatum;
- betaling per één maand vooruit;
- uitgangspunt is een met BTW belaste verhuur;
- doorlopende bankgarantie of waarborgsom ter grootte van drie (3) maanden huur;
- model huurovereenkomst kantoorruimte en andere bedrijfsruimte in de zin van artikel 7:230a BW met bijbehorende algemene bepalingen, zoals vastgesteld door de Raad voor Onroerende Zaken (ROZ) op 30 januari 2025.
- model huurovereenkomst winkelruimte en andere bedrijfsruimte in de zin van artikel 7:290 BW met bijbehorende algemene bepalingen, zoals vastgesteld door de Raad voor Onroerende Zaken (ROZ) op 17 september 2022.
Huurprijs: € 985,- per maand te vermeerderen met BTW
Algemeen
Sprang-Capelle (inwoners 9.990), een pittoresk dorp gelegen in het hart van Noord-Brabant, biedt een perfecte mix van authentieke charme en moderne bedrijvigheid. Hier vindt u een divers aanbod aan winkels, bedrijven en diensten die inspelen op al uw wensen en behoeften. Of u nu op zoek bent naar unieke boetieks of lokale ambachten. Het Raadhuisplein is gevuld met een breed scala aan winkels die elke smaak en stijl bedienen. Sprang-Capelle is gemakkelijk bereikbaar. Er is voldoende parkeergelegenheid en de centrale ligging maakt het eenvoudig om vanuit omliggende steden en dorpen een bezoek te brengen.
Bouwjaar
1989
Vloeroppervlakte:
Kantoor-/winkelruimte : ca. 88 m²
Totaal : ca. 88 m²
Bestemming:
Het object valt binnen het bestemmingsplan “Deelgebied 29”, vastgesteld op 21-09-2023, waarin het de bestemming “Centrumvoorzieningen” heeft gekregen. Voor een afschrift van dit bestemmingsplan kunt u contact met ons kantoor opnemen.
Frontbreedte:
Ca. 5,5 meter
Indeling
Entree, open kantoor/winkelruimte welke is opgesplitst middels een glazen wand, pantry, toilet en achteringang naar parkeerterrein.
Voorzieningen
- Systeemplafond met led-verlichting;
- Pvc-vloer;
- Keukenblok;
- 1 toilet;
- Aansluiting data en elektra;
- Raamdecoratie en rolluiken (zijkant);
- Alarm;
- Cv-verwarmd middels radiatoren.
Opmerkingen
- Achter het gehuurde is een eigen afgesloten parkeerterrein, de huurprijs bedraagt € 175,- per maand excl. BTW per parkeerplaats.
- Er zijn voldoende gratis openbare parkeerplaatsen in de directe omgeving.
- In overleg kan het gehuurde worden voorzien van airco.
Kadastrale gegevens
Gemeente : Sprang
Sectie : B
Nummer : 4505, A1
Oplevering
In overleg
Energielabel
A
Verhuurvoorwaarden
Wij bieden het object aan op basis van onder meer de volgende voorwaarden:
- huurtermijn van vijf (5) jaren met telkenmale verlengingsperioden van vijf (5) jaren;
- wederzijdse opzegtermijn van twaalf (12) maanden voorafgaand aan expiratiedatum;
- jaarlijkse indexering op basis van het CPI indexcijfer alle huishoudens (2015=100), voor het eerst één jaar na huuringangsdatum;
- betaling per één maand vooruit;
- uitgangspunt is een met BTW belaste verhuur;
- doorlopende bankgarantie of waarborgsom ter grootte van drie (3) maanden huur;
- model huurovereenkomst kantoorruimte en andere bedrijfsruimte in de zin van artikel 7:230a BW met bijbehorende algemene bepalingen, zoals vastgesteld door de Raad voor Onroerende Zaken (ROZ) op 30 januari 2025.
- model huurovereenkomst winkelruimte en andere bedrijfsruimte in de zin van artikel 7:290 BW met bijbehorende algemene bepalingen, zoals vastgesteld door de Raad voor Onroerende Zaken (ROZ) op 17 september 2022.
Huurprijs: € 985,- per maand te vermeerderen met BTW
Features
Transfer of ownership
- Rental price
- € 985 per month
- Service charges
- No service charges known
- Listed since
-
- Status
- Available
- Acceptance
- Available in consultation
Construction
- Main use
- Office
- Alternative use(s)
- Retail space
- Building type
- Resale property
- Year of construction
- 1989
Surface areas
- Area
- 88 m²
Layout
- Number of floors
- 1 floor
- Facilities
- Windows can be opened, modular ceiling, toilet, pantry and heating
Energy
- Energy label
- A 0.80
Surroundings
- Location
- Shopping center
NVM real estate agent
Photos















Floorplan
Appartement
