Pluggematen 4-D 8331 TV Steenwijk
€ 425,000 k.k.
Description
Modern afgewerkte kantoorruimte met verdieping en royaal magazijn/opslag, volledig vernieuwd in 2025 en direct klaar voor gebruik. Het kantoor omvat twee representatieve verdiepingen van elk ca. 103 m² BVO en is hoogwaardig geïsoleerd met o.a. HR++ beglazing. Gebouwd in 2001 maar qua uitstraling en comfort geheel van nu. Daarnaast is een ruim magazijn optioneel beschikbaar.
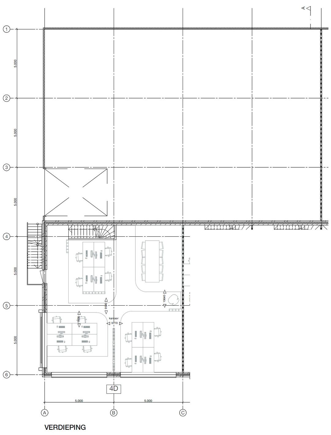
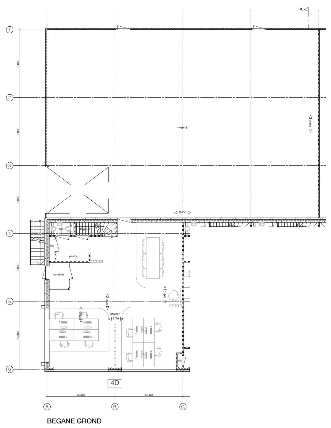
Indeling;
Begane grond: entree, twee kantoorruimtes, vergaderzaal, pantry en toilet met fontein.
Verdieping: drie ruime kantoorruimtes en een vergaderzaal.
Het magazijn is direct verbonden met het kantoorpand en voorzien van één elektrische overheaddeur.
Metrages (BVO):
– Begane grond: circa 103 m² BVO
– Eerste verdieping: circa 103 m² BVO
– Magazijn/opslag: circa 276 m² BVO
De kantoorruimte wordt hoogwaardig opgeleverd en is volledig toekomstbestendig. Zo is het pand voorzien van dak-, muur- en vloerisolatie en uitgerust met HR++ beglazing, het dak van het pand wordt compleet vervangen. De verwarming verloopt via elektrische airco-units, waardoor het pand volledig gasloos is. Verder beschikt de kantoorruimte over een dekvloer, systeemplafond en wordt deze behangklaar opgeleverd. Ook zijn een meterkast, trap, pantry en toiletgroep inbegrepen. Het object heeft een eigen nutsaansluiting, wordt geleverd met 6 zonnepanelen en biedt twee parkeerplaatsen aan de voorzijde.
Ligging en bereikbaarheid
Het object is gelegen op bedrijventerrein Groot Verlaat, een goed bereikbaar en functioneel bedrijventerrein. Op het terrein is ruim voldoende parkeergelegenheid aanwezig.
Omgevingsplan
De voor 'Bedrijventerrein' aangewezen gronden zijn bestemd voor:
a. ter plaatse reeds legaal bestaande bedrijven, welke aanwezig zijn op het moment dat het bestemmingsplan in werking treedt;
b. bedrijven en/of bedrijfsactiviteiten die behoren tot milieucategorie 1 tot en met 4.2, zoals die zijn opgenomen in de Staat van bedrijfsactiviteiten (Bijlage 1 bij deze regels) en/of daarmee qua milieueffecten gelijk te stellen bedrijven en/of bedrijfsactiviteiten, met uitzondering van: geluidzoneringsplichtige inrichtingen voorzover niet gesitueerd binnen de aanduiding 'wetgevingzone - wet geluidhinder', en; risicovolle inrichtingen; en met dien verstande dat de volgende milieuzonering in acht wordt genomen:
voor meer informatie kijk op het omgevingsloket.
Indeling;
Begane grond: entree, twee kantoorruimtes, vergaderzaal, pantry en toilet met fontein.
Verdieping: drie ruime kantoorruimtes en een vergaderzaal.
Het magazijn is direct verbonden met het kantoorpand en voorzien van één elektrische overheaddeur.
Metrages (BVO):
– Begane grond: circa 103 m² BVO
– Eerste verdieping: circa 103 m² BVO
– Magazijn/opslag: circa 276 m² BVO
De kantoorruimte wordt hoogwaardig opgeleverd en is volledig toekomstbestendig. Zo is het pand voorzien van dak-, muur- en vloerisolatie en uitgerust met HR++ beglazing, het dak van het pand wordt compleet vervangen. De verwarming verloopt via elektrische airco-units, waardoor het pand volledig gasloos is. Verder beschikt de kantoorruimte over een dekvloer, systeemplafond en wordt deze behangklaar opgeleverd. Ook zijn een meterkast, trap, pantry en toiletgroep inbegrepen. Het object heeft een eigen nutsaansluiting, wordt geleverd met 6 zonnepanelen en biedt twee parkeerplaatsen aan de voorzijde.
Ligging en bereikbaarheid
Het object is gelegen op bedrijventerrein Groot Verlaat, een goed bereikbaar en functioneel bedrijventerrein. Op het terrein is ruim voldoende parkeergelegenheid aanwezig.
Omgevingsplan
De voor 'Bedrijventerrein' aangewezen gronden zijn bestemd voor:
a. ter plaatse reeds legaal bestaande bedrijven, welke aanwezig zijn op het moment dat het bestemmingsplan in werking treedt;
b. bedrijven en/of bedrijfsactiviteiten die behoren tot milieucategorie 1 tot en met 4.2, zoals die zijn opgenomen in de Staat van bedrijfsactiviteiten (Bijlage 1 bij deze regels) en/of daarmee qua milieueffecten gelijk te stellen bedrijven en/of bedrijfsactiviteiten, met uitzondering van: geluidzoneringsplichtige inrichtingen voorzover niet gesitueerd binnen de aanduiding 'wetgevingzone - wet geluidhinder', en; risicovolle inrichtingen; en met dien verstande dat de volgende milieuzonering in acht wordt genomen:
voor meer informatie kijk op het omgevingsloket.
Features
Transfer of ownership
- Asking price
- € 425,000 kosten koper
- Service charges
- No service charges known
- Listed since
-
- Status
- Available
- Acceptance
- Available in consultation
Construction
- Main use
- Office
- Alternative use(s)
- Commercial property
- Building type
- Resale property
- Year of construction
- 2001
Surface areas
- Area
- 206 m² (units from 103 m²)
- Plot size
- 2,010 m²
Layout
- Number of floors
- 2 floors
- Facilities
- Air conditioning, mechanical ventilation, modular ceiling, toilet and heating
Energy
- Energy label
- A 0.80
Surroundings
- Location
- Business park
- Accessibility
- Bus stop in 500 m to 1000 m, bus junction in 500 m to 1000 m, subway station in 5000 m or more, subway junction in 5000 m or more, Dutch Railways Intercity station in 3000 m to 4000 m, motorway exit in 4000 m to 5000 m, Tram stop in 5000 m or more and tram junction in 5000 m or more
NVM real estate agent
Photos