Beeckerhof 8-E 6071 BX Swalmen
Rental price on request
Description
TE HUUR: INSTAPKLAAR PRAKTIJKGEBOUW VAN 120 M² VVO.
Het pand is volledig ingericht als praktijk. Dankzij de moderne afwerking en het overvloedige daglicht is het een echte eyecatcher. De ruime entree-overkapping van douglashout en de aanwezigheid van een mindervalidenentree maken het plaatje compleet. Rondom het pand is voldoende afscherming aanwezig, zodat de privacy optimaal gewaarborgd blijft.
Geschikte praktijk/kliniek voor onder andere:
-Fysiotherapie
-Ergotherapie
-Oogklinieken
-Kliniek voor psychische hulp
-Kliniek voor plastische chirurgie
-Dermatologie
-Tandartspraktijk
-Schoonheidssalon
-Diëtetiek
-Manuele therapie
-Acupunctuur
-Osteopathie
-Medische keuringen
VOORZIENINGEN
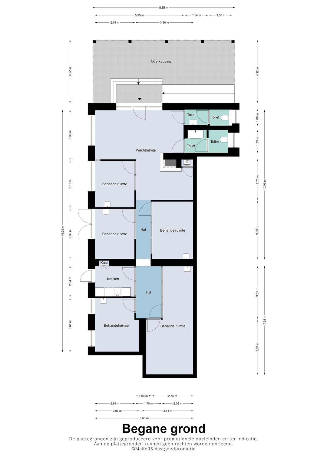
De ruimte beschikt over vijf behandelkamers, allen voorzien van water, afvoer, elektra, systeemplafond met LEDarmaturen, airo-units, vloerverwarming en visgraat PVC-vloer. De algemene ruimtes omvatten een wacht- en/of receptieruimte, sanitaire voorzieningen en een keuken met uitgebreide faciliteiten, met een totale oppervlakte van 120 m² vvo.
PARKEREN
Ruime parkeergelgenheid op eigen terrein en nabij de oprijlaan zijn diverse openbare parkeergelegenheden aanwezig.
LOCATIE
Het object ligt op zichtafstand van de doorgaande weg Rijksweg Zuid in Swalmen. Aan de voorzijde van het pand
bevinden zich meerdere openbare parkeervoorzieningen.
DUURZAAMHEID
Hoewel de langgevelboerderij oorspronkelijk dateert uit 1780, is het pand volledig geïsoleerd en voldoet het aan de eisen van de huidige energietransitie. Denk hierbij aan de wanden, deuren en het dak; daarnaast is er een WTW-installatie in het pand.
OPLEVERINGSNIVEAU
Het pand wordt verhuurd in de huidige staat, zoals omschreven in deze tekst.
HUURTERMIJN
Vijf (5) jaar, met telkens verlengingsperioden van vijf (5) jaar. In onderling overleg kan hiervan worden afgeweken.
HUURPRIJS
€ 23.400 per jaar, exclusief BTW.
ZEKERHEIDSTELLING
De huurder dient voor of uiterlijk op de huuringangsdatum een bankgarantie (conform model ROZ) te stellen ter
grootte van minimaal drie maanden huur.
HUURPRIJSAANPASSING
Jaarlijks, op basis van wijziging van het maandprijsindexcijfer volgens de Consumentenprijsindex (CPI) reeks CPI-Alle
Huishoudens (2015 = 100), gepubliceerd door het Centraal Bureau voor de Statistiek (CBS).
BETALINGEN
Huur en BTW dienen per maand vooruit te worden voldaan.
OVERIGE CONDITIES
Huurovereenkomst op basis van het standaardmodel van de Raad voor Onroerende Zaken (ROZ), model februari
2015.
BEZICHTIGING
Uitsluitend op afspraak met ons kantoor.
De vermelde informatie is van algemene aard en vormt geen aanbod. Aan de inhoud van deze informatie kunnen
geen rechten worden ontleend.
Het pand is volledig ingericht als praktijk. Dankzij de moderne afwerking en het overvloedige daglicht is het een echte eyecatcher. De ruime entree-overkapping van douglashout en de aanwezigheid van een mindervalidenentree maken het plaatje compleet. Rondom het pand is voldoende afscherming aanwezig, zodat de privacy optimaal gewaarborgd blijft.
Geschikte praktijk/kliniek voor onder andere:
-Fysiotherapie
-Ergotherapie
-Oogklinieken
-Kliniek voor psychische hulp
-Kliniek voor plastische chirurgie
-Dermatologie
-Tandartspraktijk
-Schoonheidssalon
-Diëtetiek
-Manuele therapie
-Acupunctuur
-Osteopathie
-Medische keuringen
VOORZIENINGEN
De ruimte beschikt over vijf behandelkamers, allen voorzien van water, afvoer, elektra, systeemplafond met LEDarmaturen, airo-units, vloerverwarming en visgraat PVC-vloer. De algemene ruimtes omvatten een wacht- en/of receptieruimte, sanitaire voorzieningen en een keuken met uitgebreide faciliteiten, met een totale oppervlakte van 120 m² vvo.
PARKEREN
Ruime parkeergelgenheid op eigen terrein en nabij de oprijlaan zijn diverse openbare parkeergelegenheden aanwezig.
LOCATIE
Het object ligt op zichtafstand van de doorgaande weg Rijksweg Zuid in Swalmen. Aan de voorzijde van het pand
bevinden zich meerdere openbare parkeervoorzieningen.
DUURZAAMHEID
Hoewel de langgevelboerderij oorspronkelijk dateert uit 1780, is het pand volledig geïsoleerd en voldoet het aan de eisen van de huidige energietransitie. Denk hierbij aan de wanden, deuren en het dak; daarnaast is er een WTW-installatie in het pand.
OPLEVERINGSNIVEAU
Het pand wordt verhuurd in de huidige staat, zoals omschreven in deze tekst.
HUURTERMIJN
Vijf (5) jaar, met telkens verlengingsperioden van vijf (5) jaar. In onderling overleg kan hiervan worden afgeweken.
HUURPRIJS
€ 23.400 per jaar, exclusief BTW.
ZEKERHEIDSTELLING
De huurder dient voor of uiterlijk op de huuringangsdatum een bankgarantie (conform model ROZ) te stellen ter
grootte van minimaal drie maanden huur.
HUURPRIJSAANPASSING
Jaarlijks, op basis van wijziging van het maandprijsindexcijfer volgens de Consumentenprijsindex (CPI) reeks CPI-Alle
Huishoudens (2015 = 100), gepubliceerd door het Centraal Bureau voor de Statistiek (CBS).
BETALINGEN
Huur en BTW dienen per maand vooruit te worden voldaan.
OVERIGE CONDITIES
Huurovereenkomst op basis van het standaardmodel van de Raad voor Onroerende Zaken (ROZ), model februari
2015.
BEZICHTIGING
Uitsluitend op afspraak met ons kantoor.
De vermelde informatie is van algemene aard en vormt geen aanbod. Aan de inhoud van deze informatie kunnen
geen rechten worden ontleend.
Features
Transfer of ownership
- Rental price
- Rental price on request
- Service charges
- No service charges known
- Listed since
-
- Status
- Available
- Acceptance
- Available immediately
Construction
- Main use
- Office
- Alternative use(s)
- Consulting rooms
- Building type
- Resale property
- Year of construction
- 1780
Surface areas
- Area
- 120 m²
- Plot size
- 120 m²
Layout
- Number of floors
- 1 floor
- Facilities
- Air conditioning, mechanical ventilation, built-in fittings, windows can be opened, modular ceiling, toilet, pantry, heating and room layout
Energy
- Energy label
- Not available
Surroundings
- Location
- In residential district and rural area
Parking
- Parking spaces
- 12 uncovered parking spaces
NVM real estate agent
Photos
Floorplan
Begane Grond