Zilkerduinweg 375 2114 AM Vogelenzang
€ 250,000 /yr

Description
OBJECT:
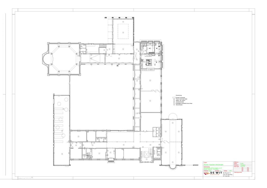
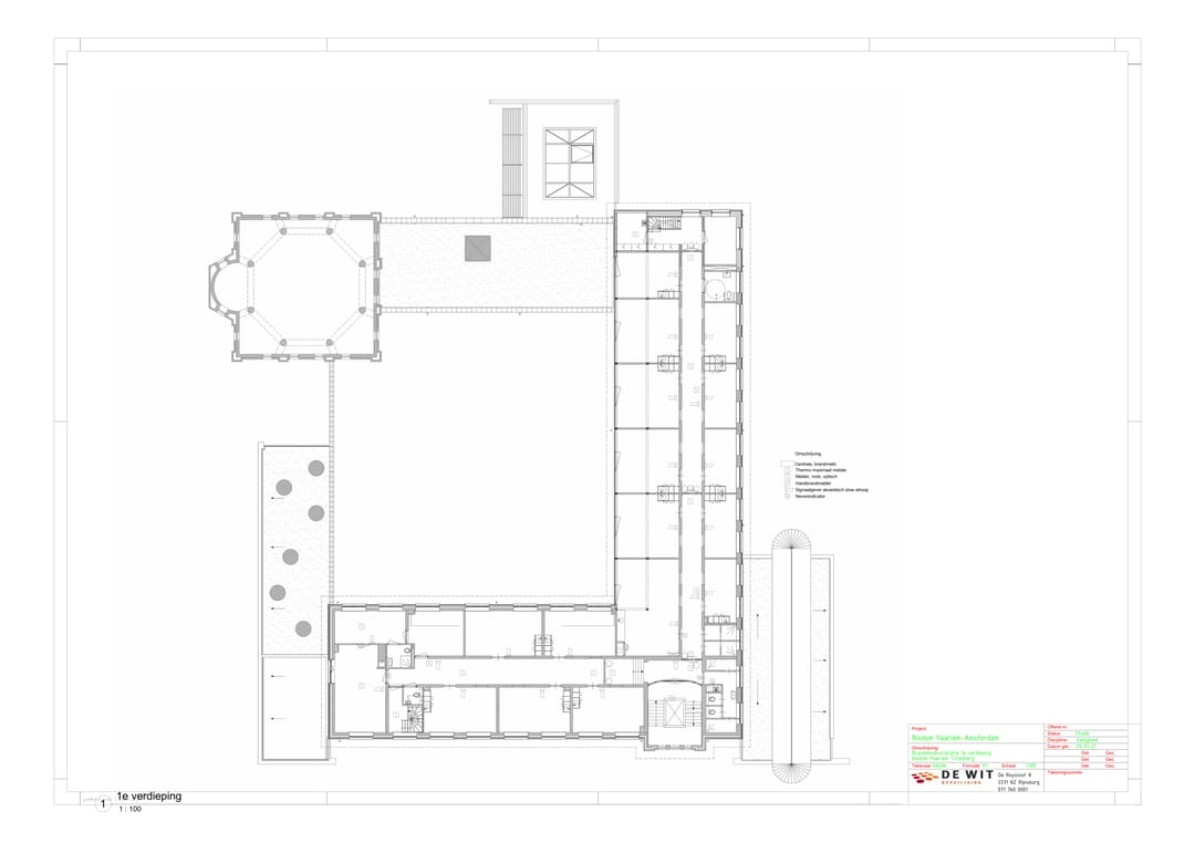
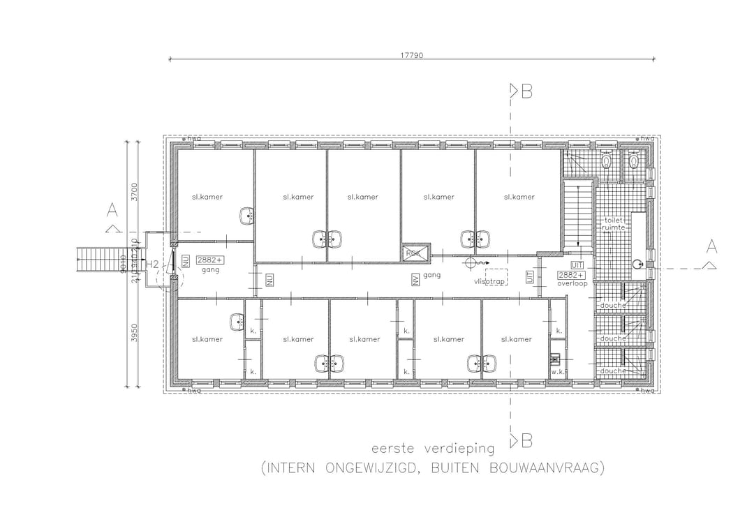
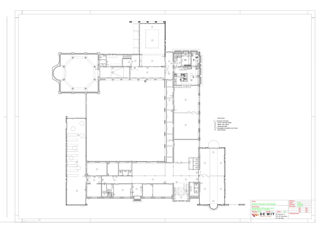
Kapel De Tiltenberg, Zilkerduinweg 375 te Vogelenzang. Dit voormalig klooster en opleidingscentrum met een bruto vloeroppervlak van ca. 2.200 m² B.V.O. (niet NEN2580 gemeten) is gelegen op een fraai landgoed van 44.000 m². Het object biedt mogelijkheden voor uiteenlopende functies, zoals opleidings-, zorg- of kantoorlocaties, of herontwikkeling met meer dan 30 kamers.
In 2003 werd De Tiltenberg overgenomen door het bisdom Haarlem-Amsterdam, dat het pand ingrijpend liet verbouwen om het geschikt te maken voor opleidingen en cursussen.
Vanaf 2005 werd het gebouw gebruikt als Grootseminarie en opleidingscentrum voor priesters, diakens en catechisten, en als thuisbasis voor het Sint Bonifatiusinstituut en het Centrum Sociale Leer van de Kerk (CSLK).
In 2016 verhuisde de priesteropleiding naar Heiloo, maar De Tiltenberg bleef in gebruik voor cursussen, kerkelijke opleidingen en ondersteunende functies van het bisdom.
Rond 1930 werd het landgoed De Tiltenberg verworven door het Gezelschap van de Vrouwen van Nazareth, een katholieke vrouwenorde gesticht in 1922 door jezuïet Jacques van Ginneken. Hun doel was de verspreiding van het geloof door middel van de werkingen van de ‘Graalbeweging’, opgezet in 1928
In 1931 werd het hoofdgebouw ontworpen door architect Jan Stuyt, uitgevoerd als een sober, L-vormig, tweelaags gebouw met torenvormig trappenhuis en tentdak.
In 1952–1953 werd een oktagonale kapel toegevoegd. Deze werd ontworpen door Nico van der Laan met medewerking van Dom Hans van der Laan in de traditionalistische stijl van de Bossche school
R.K. Joannes de Doper parochie
HUURPRIJS:
€250.000,- per jaar (excl. btw en servicekosten).
VOORZIENINGEN:
- Achtzijdige kapel (geschikt als multifunctionele ruimte)
- Ruim hoofdgebouw met auditorium, vergader- en cursusruimtes
- Mogelijkheid tot 30+ kamers
- Professionele keuken
- Alarmsysteem
- Grote fietsenstalling
- Ruim voldoende parkeergelegenheid op eigen terrein
- Landgoed van 4 hectare
LOCATIE:
Zilkerduinweg 375, Vogelenzang, gemeente Bloemendaal, Noord-Holland. Rustig gelegen op landgoed De Tiltenberg, nabij de Amsterdamse Waterleidingduinen en goed bereikbaar via uitvalswegen richting Haarlem, Leiden en Amsterdam.
PARKEREN:
Ruim voldoende parkeergelegenheid aanwezig.
BTW:
Wel van toepassing.
SERVICEKOSTEN:
Nader te bepalen.
ENERGIELABEL:
Nog te bepalen (wordt later aangeleverd).
HUURVOORWAARDEN:
Per maand bij vooruitbetaling te voldoen.
Huurtermijn in overleg.
Huurovereenkomst conform het standaardmodel van de Raad van Onroerende Zaken (ROZ).
Huurprijsaanpassing vindt jaarlijks plaats op basis van de consumentenprijsindex (CPI) reeks alle huishoudens (2015=100), gepubliceerd door het Centraal Bureau voor de Statistiek (CBS).
Zekerheidsstelling: waarborgsom ten bedrage van drie maanden huur en servicekosten, te vermeerderen met omzetbelasting.
Aanvaarding in overleg.
Oplevering in huidige staat.
BEZICHTIGING:
Uitsluitend op afspraak.
Kapel De Tiltenberg, Zilkerduinweg 375 te Vogelenzang. Dit voormalig klooster en opleidingscentrum met een bruto vloeroppervlak van ca. 2.200 m² B.V.O. (niet NEN2580 gemeten) is gelegen op een fraai landgoed van 44.000 m². Het object biedt mogelijkheden voor uiteenlopende functies, zoals opleidings-, zorg- of kantoorlocaties, of herontwikkeling met meer dan 30 kamers.
In 2003 werd De Tiltenberg overgenomen door het bisdom Haarlem-Amsterdam, dat het pand ingrijpend liet verbouwen om het geschikt te maken voor opleidingen en cursussen.
Vanaf 2005 werd het gebouw gebruikt als Grootseminarie en opleidingscentrum voor priesters, diakens en catechisten, en als thuisbasis voor het Sint Bonifatiusinstituut en het Centrum Sociale Leer van de Kerk (CSLK).
In 2016 verhuisde de priesteropleiding naar Heiloo, maar De Tiltenberg bleef in gebruik voor cursussen, kerkelijke opleidingen en ondersteunende functies van het bisdom.
Rond 1930 werd het landgoed De Tiltenberg verworven door het Gezelschap van de Vrouwen van Nazareth, een katholieke vrouwenorde gesticht in 1922 door jezuïet Jacques van Ginneken. Hun doel was de verspreiding van het geloof door middel van de werkingen van de ‘Graalbeweging’, opgezet in 1928
In 1931 werd het hoofdgebouw ontworpen door architect Jan Stuyt, uitgevoerd als een sober, L-vormig, tweelaags gebouw met torenvormig trappenhuis en tentdak.
In 1952–1953 werd een oktagonale kapel toegevoegd. Deze werd ontworpen door Nico van der Laan met medewerking van Dom Hans van der Laan in de traditionalistische stijl van de Bossche school
R.K. Joannes de Doper parochie
HUURPRIJS:
€250.000,- per jaar (excl. btw en servicekosten).
VOORZIENINGEN:
- Achtzijdige kapel (geschikt als multifunctionele ruimte)
- Ruim hoofdgebouw met auditorium, vergader- en cursusruimtes
- Mogelijkheid tot 30+ kamers
- Professionele keuken
- Alarmsysteem
- Grote fietsenstalling
- Ruim voldoende parkeergelegenheid op eigen terrein
- Landgoed van 4 hectare
LOCATIE:
Zilkerduinweg 375, Vogelenzang, gemeente Bloemendaal, Noord-Holland. Rustig gelegen op landgoed De Tiltenberg, nabij de Amsterdamse Waterleidingduinen en goed bereikbaar via uitvalswegen richting Haarlem, Leiden en Amsterdam.
PARKEREN:
Ruim voldoende parkeergelegenheid aanwezig.
BTW:
Wel van toepassing.
SERVICEKOSTEN:
Nader te bepalen.
ENERGIELABEL:
Nog te bepalen (wordt later aangeleverd).
HUURVOORWAARDEN:
Per maand bij vooruitbetaling te voldoen.
Huurtermijn in overleg.
Huurovereenkomst conform het standaardmodel van de Raad van Onroerende Zaken (ROZ).
Huurprijsaanpassing vindt jaarlijks plaats op basis van de consumentenprijsindex (CPI) reeks alle huishoudens (2015=100), gepubliceerd door het Centraal Bureau voor de Statistiek (CBS).
Zekerheidsstelling: waarborgsom ten bedrage van drie maanden huur en servicekosten, te vermeerderen met omzetbelasting.
Aanvaarding in overleg.
Oplevering in huidige staat.
BEZICHTIGING:
Uitsluitend op afspraak.
Features
Transfer of ownership
- Rental price
- € 250,000 per year
- Service charges
- No service charges known
- Listed since
-
- Status
- Available
- Acceptance
- Available in consultation
Construction
- Main use
- Office
- Building type
- Resale property
- Construction period
- 1906-1930
Surface areas
- Area
- 2,200 m²
Layout
- Number of floors
- 2 floors
- Facilities
- Windows can be opened, toilet, pantry, heating and room layout
Energy
- Energy label
- Not available
NVM real estate agent
Photos

































