Keulenaar 3 3961 NM Wijk bij Duurstede
€ 1,250 p/mo.
Description
Keulenaar 3 te Wijk bij Duurstede
Ondernemers opgelet!
Uw bedrijf vestigen in een gloednieuwe en representatieve zelfstandige kantoor-/bedrijfs-/praktijkruimte in Wijk bij Duurstede? Dit wordt mogelijk gemaakt op bedrijventerrein Broekweg, want aan de Keulenaar is recentelijk gestart met de bouw van een modern en architectonisch hoogwaardig af te werken bedrijfscomplex, waarin deze schitterende kantoor-/bedrijfs-/praktijkruimte op de 1e verdieping beschikbaar komt met een oppervlakte van ca. 120 m² en een verrassende binnentuin van ca. 40 m². Geheel naar de eisen van deze tijd: gasloos en duurzaam! Als toekomstige huurder heeft u nog ruimschoots inspraak over uw wensen op het gebied van de indeling en inrichting.
Deze representatieve en functionele unit is uitermate geschikt voor uiteenlopende (zakelijke) doeleinden. Of u nu een startende ondernemer bent of een groeiende onderneming met behoefte aan een eigen of grotere bedrijfsruimte op een goed bereikbare locatie, hier vindt u de ideale basis voor uw bedrijf.
Met oog voor detail, duurzaamheid én energiezuinigheid wordt deze unit voorzien van een moderne, representatieve gevel en een hoogwaardige afwerking met gebruik van veel glas waardoor er veel natuurlijke lichtinval is, evenals hoge plafonds, vloerverwarming en airconditioning op de verdieping, 10 zonnepanelen en vier eigen parkeerplaatsen.
De unit heeft een energielabel A+.
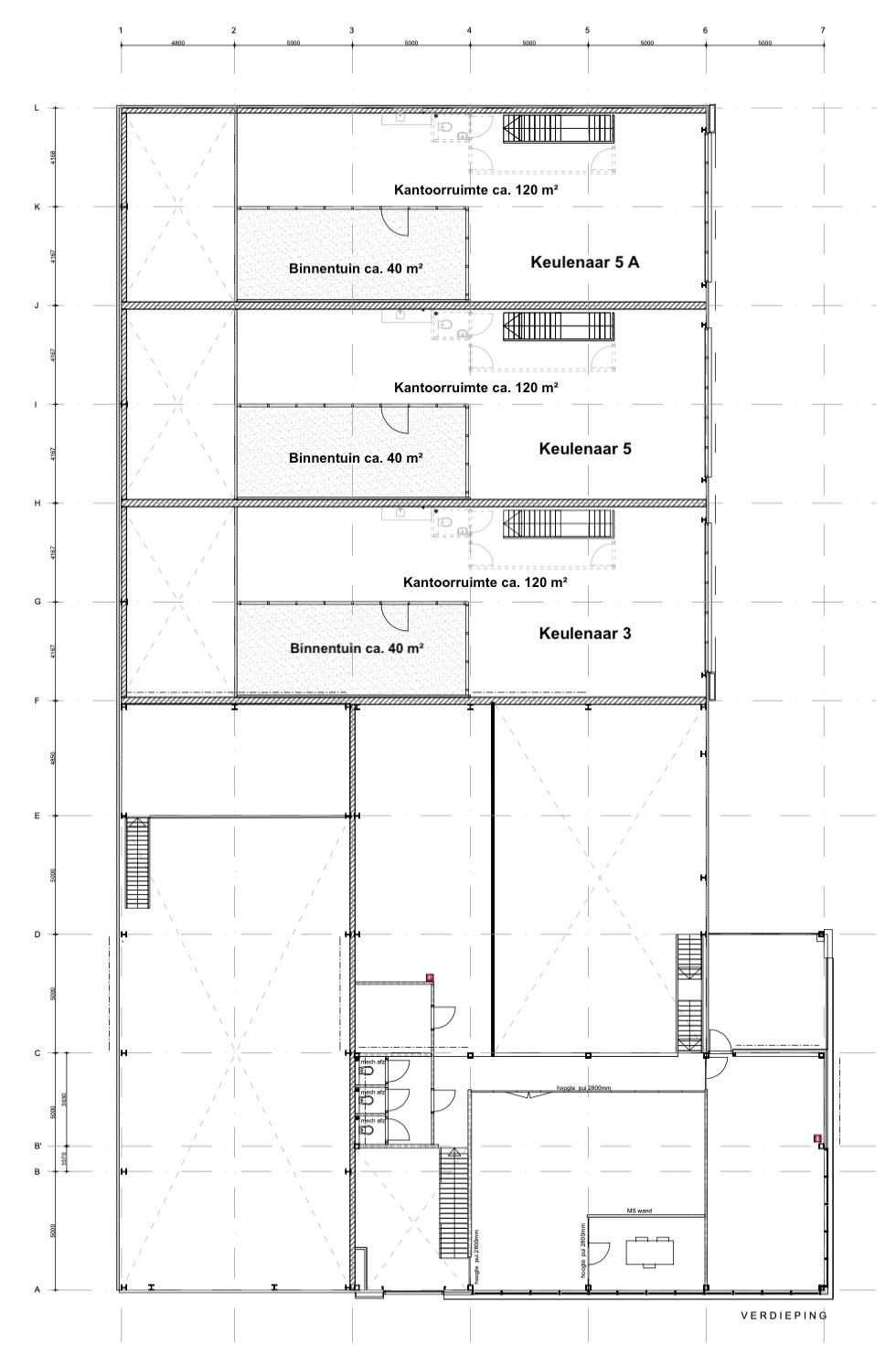
De bedrijfs-/kantoorruimte is toegankelijk via een entreeportaal met loopdeur met daarachter de trapopgang naar de kantoorverdieping met een oppervlakte van ca. 120 m² met als verrassende extra een gave 'binnentuin' van ca. 40 m². Deze verdieping zal o.a. worden voorzien van glazen wanden en een openslaande deur naar de binnentuin, verlichtingsarmaturen, verwarming en koeling middels vloerverwarming en 2 airco-units, pantry v.v. koelkast, vaatwasser en close-in boiler en toiletruimte.
De gebouwhoogte bedraagt ca. 8.00 meter en dit bedrijfscomplex is voorzien van een kanaalplaten (betonnen) verdiepingsvloer en dak.
LOCATIE EN BEREIKBAARHEID:
Gelegen op industrieterrein “Broekweg”. Dit Industrieterrein ligt aan de westkant van Wijk bij Duurstede en is ca. 33 hectare groot. Er zijn ruim honderd bedrijven gevestigd, in de milieucategorie 1 tot en met 3. Het is een gemengd terrein met een verscheidenheid aan bedrijvigheid. Zo treft u naast kantoren onder meer constructie-/ en transportbedrijven aan. Maar ook diverse sport-/ en lifestyleclubs, grootschalige detailhandel, auto-/caravanbedrijven en drukkerijen. Enkele voorbeelden zijn o.a. Ecotools, Aegir Marine, Jacomij BV, PPC (Plinten & Profielen Centrale), Sign Activation, Van Geloven - Royaan, Karwei, Your Floor, New Forrest en A&A Expo. De aanwezigheid van al deze gerenommeerde bedrijven, draagt bij aan een professioneel ondernemersklimaat.
Uitstekende bereikbaarheid met de auto/bus en/of vrachtwagen en is gelegen nabij de provinciale weg N229. Het object is eveneens met het openbaar vervoer goed te bereiken. Er bevindt zich een bushalte op enkele minuten loopafstand.
Kortom, dé ideale locatie om jouw bedrijf te vestigen.
DUURZAAMHEID:
De kantoor-/bedrijfsruimte wordt gasloos opgeleverd, v.v. een warmtepomp, vloerverwarming en 2 airco-units. De isolatiewaarden voldoen aan de laatste normen van het bouwbesluit. De bedrijfsruimte heeft een lage energiebehoefte omdat er gekozen is voor een slim ontwerp van de gebouwschil en door het toepassen van uitstekende isolatie.
Opleveringsniveau:
De kantoor-/bedrijfsruimte wordt standaard voorzien van o.a. de navolgende voorzieningen:
- Mechanische ventilatie in de kantoorruimte;
- Basis elektrische installatie;
- Noodverlichting;
- Verdiepingstrap;
- 10 zonnepanelen op het dak (met een opbrengst van ca. 3.500 kWh per jaar);
- Glasvezelaansluiting;
- Airco (2 units) t.b.v. koeling en verwarming in de kantoorruimte;
- 1 verlichtingsarmatuur;
- Volledig afgewerkt toilet met fontein;
- Pantry v.v. koelkast, vaatwasser en close-in boiler;
- Buitenverlichting;
- Te openen ramen.
- Laadpaalvoorbereiding bij parkeervakken aan de overzijde d.m.v. een mantelbuis vanaf gevel tot parkeervak.
VLOEROPPERVLAKTE:
Kantoorunit Keulenaar 3 (1e verdieping) :
ca. 120 m² kantoorruimte op de 1e verdieping, ca. 40 m² binnentuin op de 1e verdieping.
Parkeerplaatsen per bedrijfsunit:
Keulenaar 3 : 4;
HUURCONDITIES:
Huurprijs kantoorunit 1e verdieping (Keulenaar 3):
€ 1.250,-- per maand excl. BTW, € 15.000,- per jaar excl. BTW.
SERVICEKOSTEN
Nader te bepalen.
WAARBORGSOM
Afhankelijk van de financiële gegoedheid van de kandidaat een bankgarantie c.q. een waarborgsom ter groot van minimaal 3 (drie) maanden huur inclusief servicekosten en BTW.
HUURBETALING
Huurbetaling per maand te voldoen.
AANVAARDING
In overleg, naar verwachting Q2 2026.
HUURTERMIJN
In overleg, voorkeur minimaal 3 jaar.
OPZEGTERMIJN
Uiterlijk 12 (twaalf) maanden voor het aflopen van een huurtermijn.
HUURPRIJSAANPASSING
Jaarlijkse indexering, voor het eerst 1 (één) jaar na huuringangsdatum, zulks op basis van de consumentenprijsindex (CPI), reeks “alle huishoudens”, zoals vastgesteld door het CBS, met als basisjaar 2015=100.
HUUROVEREENKOMST
Gebaseerd op het meest recente standaard model huurovereenkomst kantoorruimte en andere bedrijfsruimte in de zin van artikel 7:230a BW (ROZ). Van deze overeenkomst maken deel uit de bijbehorende “Algemene bepalingen huurovereenkomst kantoorruimte en andere bedrijfsruimte in de zin van artikel 7:230a BW”.
OMZETBELASTING
Uitgangspunt is BTW-belaste verhuur. Derhalve dient genoemde huurprijs te worden vermeerderd met het van toepassing zijnde BTW-percentage. Indien huurder niet aan het 90% criterium voldoet, zal er van rechtswege sprake zijn van omzetbelasting vrijgestelde verhuur. Alsdan wordt de overeengekomen kale huurprijs, exclusief omzetbelasting, zodanig verhoogd dat het voor verhuurder ontstane nadeel volledig wordt gecompenseerd.
BESTEMMING EN GEBRUIK
Huurder dient zich ervan te vergewissen dat het object de eigenschappen bezit, benodigd voor het door hem beoogde gebruik en dat het beoogde gebruik past binnen het vigerende bestemmingsplan. Een bestemming kan aan verandering onderhevig zijn. Raadpleeg derhalve voor de actuele gegevens de website omgevingswet.overheid.nl regels-op-de-kaart, de website van de betreffende gemeente of neem contact op met de betreffende gemeente.
PLATTEGRONDTEKENINGEN
De in deze brochure opgenomen plattegrondtekening(en) zijn van indicatieve aard. Hieraan kunnen geen rechten worden ontleend.
Wil je meer weten over dit project?
Neem dan gerust contact met ons op. Wij maken graag een vrijblijvende afspraak, zodat u kan beoordelen of uw bedrijf zich kan huisvesten op deze mooie, nieuwe en energieke plek!
De vermelde informatie behelst geen aanbod doch globale informatie van algemene aard. De informatie is niet meer dan een uitnodiging om in onderhandeling te treden. De Gier Makelaars staat niet in voor de juistheid en volledigheid van de informatie. Aan de inhoud van deze informatie kunnen geen rechten worden ontleend.
Ondernemers opgelet!
Uw bedrijf vestigen in een gloednieuwe en representatieve zelfstandige kantoor-/bedrijfs-/praktijkruimte in Wijk bij Duurstede? Dit wordt mogelijk gemaakt op bedrijventerrein Broekweg, want aan de Keulenaar is recentelijk gestart met de bouw van een modern en architectonisch hoogwaardig af te werken bedrijfscomplex, waarin deze schitterende kantoor-/bedrijfs-/praktijkruimte op de 1e verdieping beschikbaar komt met een oppervlakte van ca. 120 m² en een verrassende binnentuin van ca. 40 m². Geheel naar de eisen van deze tijd: gasloos en duurzaam! Als toekomstige huurder heeft u nog ruimschoots inspraak over uw wensen op het gebied van de indeling en inrichting.
Deze representatieve en functionele unit is uitermate geschikt voor uiteenlopende (zakelijke) doeleinden. Of u nu een startende ondernemer bent of een groeiende onderneming met behoefte aan een eigen of grotere bedrijfsruimte op een goed bereikbare locatie, hier vindt u de ideale basis voor uw bedrijf.
Met oog voor detail, duurzaamheid én energiezuinigheid wordt deze unit voorzien van een moderne, representatieve gevel en een hoogwaardige afwerking met gebruik van veel glas waardoor er veel natuurlijke lichtinval is, evenals hoge plafonds, vloerverwarming en airconditioning op de verdieping, 10 zonnepanelen en vier eigen parkeerplaatsen.
De unit heeft een energielabel A+.
De bedrijfs-/kantoorruimte is toegankelijk via een entreeportaal met loopdeur met daarachter de trapopgang naar de kantoorverdieping met een oppervlakte van ca. 120 m² met als verrassende extra een gave 'binnentuin' van ca. 40 m². Deze verdieping zal o.a. worden voorzien van glazen wanden en een openslaande deur naar de binnentuin, verlichtingsarmaturen, verwarming en koeling middels vloerverwarming en 2 airco-units, pantry v.v. koelkast, vaatwasser en close-in boiler en toiletruimte.
De gebouwhoogte bedraagt ca. 8.00 meter en dit bedrijfscomplex is voorzien van een kanaalplaten (betonnen) verdiepingsvloer en dak.
LOCATIE EN BEREIKBAARHEID:
Gelegen op industrieterrein “Broekweg”. Dit Industrieterrein ligt aan de westkant van Wijk bij Duurstede en is ca. 33 hectare groot. Er zijn ruim honderd bedrijven gevestigd, in de milieucategorie 1 tot en met 3. Het is een gemengd terrein met een verscheidenheid aan bedrijvigheid. Zo treft u naast kantoren onder meer constructie-/ en transportbedrijven aan. Maar ook diverse sport-/ en lifestyleclubs, grootschalige detailhandel, auto-/caravanbedrijven en drukkerijen. Enkele voorbeelden zijn o.a. Ecotools, Aegir Marine, Jacomij BV, PPC (Plinten & Profielen Centrale), Sign Activation, Van Geloven - Royaan, Karwei, Your Floor, New Forrest en A&A Expo. De aanwezigheid van al deze gerenommeerde bedrijven, draagt bij aan een professioneel ondernemersklimaat.
Uitstekende bereikbaarheid met de auto/bus en/of vrachtwagen en is gelegen nabij de provinciale weg N229. Het object is eveneens met het openbaar vervoer goed te bereiken. Er bevindt zich een bushalte op enkele minuten loopafstand.
Kortom, dé ideale locatie om jouw bedrijf te vestigen.
DUURZAAMHEID:
De kantoor-/bedrijfsruimte wordt gasloos opgeleverd, v.v. een warmtepomp, vloerverwarming en 2 airco-units. De isolatiewaarden voldoen aan de laatste normen van het bouwbesluit. De bedrijfsruimte heeft een lage energiebehoefte omdat er gekozen is voor een slim ontwerp van de gebouwschil en door het toepassen van uitstekende isolatie.
Opleveringsniveau:
De kantoor-/bedrijfsruimte wordt standaard voorzien van o.a. de navolgende voorzieningen:
- Mechanische ventilatie in de kantoorruimte;
- Basis elektrische installatie;
- Noodverlichting;
- Verdiepingstrap;
- 10 zonnepanelen op het dak (met een opbrengst van ca. 3.500 kWh per jaar);
- Glasvezelaansluiting;
- Airco (2 units) t.b.v. koeling en verwarming in de kantoorruimte;
- 1 verlichtingsarmatuur;
- Volledig afgewerkt toilet met fontein;
- Pantry v.v. koelkast, vaatwasser en close-in boiler;
- Buitenverlichting;
- Te openen ramen.
- Laadpaalvoorbereiding bij parkeervakken aan de overzijde d.m.v. een mantelbuis vanaf gevel tot parkeervak.
VLOEROPPERVLAKTE:
Kantoorunit Keulenaar 3 (1e verdieping) :
ca. 120 m² kantoorruimte op de 1e verdieping, ca. 40 m² binnentuin op de 1e verdieping.
Parkeerplaatsen per bedrijfsunit:
Keulenaar 3 : 4;
HUURCONDITIES:
Huurprijs kantoorunit 1e verdieping (Keulenaar 3):
€ 1.250,-- per maand excl. BTW, € 15.000,- per jaar excl. BTW.
SERVICEKOSTEN
Nader te bepalen.
WAARBORGSOM
Afhankelijk van de financiële gegoedheid van de kandidaat een bankgarantie c.q. een waarborgsom ter groot van minimaal 3 (drie) maanden huur inclusief servicekosten en BTW.
HUURBETALING
Huurbetaling per maand te voldoen.
AANVAARDING
In overleg, naar verwachting Q2 2026.
HUURTERMIJN
In overleg, voorkeur minimaal 3 jaar.
OPZEGTERMIJN
Uiterlijk 12 (twaalf) maanden voor het aflopen van een huurtermijn.
HUURPRIJSAANPASSING
Jaarlijkse indexering, voor het eerst 1 (één) jaar na huuringangsdatum, zulks op basis van de consumentenprijsindex (CPI), reeks “alle huishoudens”, zoals vastgesteld door het CBS, met als basisjaar 2015=100.
HUUROVEREENKOMST
Gebaseerd op het meest recente standaard model huurovereenkomst kantoorruimte en andere bedrijfsruimte in de zin van artikel 7:230a BW (ROZ). Van deze overeenkomst maken deel uit de bijbehorende “Algemene bepalingen huurovereenkomst kantoorruimte en andere bedrijfsruimte in de zin van artikel 7:230a BW”.
OMZETBELASTING
Uitgangspunt is BTW-belaste verhuur. Derhalve dient genoemde huurprijs te worden vermeerderd met het van toepassing zijnde BTW-percentage. Indien huurder niet aan het 90% criterium voldoet, zal er van rechtswege sprake zijn van omzetbelasting vrijgestelde verhuur. Alsdan wordt de overeengekomen kale huurprijs, exclusief omzetbelasting, zodanig verhoogd dat het voor verhuurder ontstane nadeel volledig wordt gecompenseerd.
BESTEMMING EN GEBRUIK
Huurder dient zich ervan te vergewissen dat het object de eigenschappen bezit, benodigd voor het door hem beoogde gebruik en dat het beoogde gebruik past binnen het vigerende bestemmingsplan. Een bestemming kan aan verandering onderhevig zijn. Raadpleeg derhalve voor de actuele gegevens de website omgevingswet.overheid.nl regels-op-de-kaart, de website van de betreffende gemeente of neem contact op met de betreffende gemeente.
PLATTEGRONDTEKENINGEN
De in deze brochure opgenomen plattegrondtekening(en) zijn van indicatieve aard. Hieraan kunnen geen rechten worden ontleend.
Wil je meer weten over dit project?
Neem dan gerust contact met ons op. Wij maken graag een vrijblijvende afspraak, zodat u kan beoordelen of uw bedrijf zich kan huisvesten op deze mooie, nieuwe en energieke plek!
De vermelde informatie behelst geen aanbod doch globale informatie van algemene aard. De informatie is niet meer dan een uitnodiging om in onderhandeling te treden. De Gier Makelaars staat niet in voor de juistheid en volledigheid van de informatie. Aan de inhoud van deze informatie kunnen geen rechten worden ontleend.
Features
Transfer of ownership
- Rental price
- € 1,250 per month
- Service charges
- No service charges known
- Listed since
-
- Status
- Available
- Acceptance
- Available in consultation
Construction
- Main use
- Office
- Building type
- Resale property
- Year of construction
- Currently under construction
Surface areas
- Area
- 120 m²
Layout
- Number of floors
- 1 floor
- Facilities
- Air conditioning, mechanical ventilation, windows can be opened, toilet, pantry and heating
Energy
- Energy label
- A+
Surroundings
- Location
- Business park
- Accessibility
- Bus stop in 500 m to 1000 m, Dutch Railways Intercity station in 5000 m or more and motorway exit in 5000 m or more
Parking
- Parking spaces
- 4 uncovered parking spaces
Real estate agent
Photos