Schellingweg 17-C 1507 DR Zaandam
€ 2,650 p/mo.
Description
Representatieve kantoor- en bedrijfsruimte op toplocatie in Zaandam.
Bent u op zoek naar een representatieve locatie voor uw onderneming, waar licht, ruimte en functionaliteit samenkomen? Dit instapklare bedrijfspand is zowel geschikt voor een mix van opslag, productie als kantooractiviteiten en biedt representatieve werkruimtes over drie verdiepingen.
Dankzij de hoekligging geniet het pand van optimale zichtbaarheid en natuurlijke daglichttoetreding door ramen aan drie zijden. Met een totale oppervlakte van ca. 216 m² verdeeld over drie verdiepingen, is dit object klaar om uw organisatie te laten groeien.
Op een strategische locatie op het bedrijventerrein Westerspoor in Zaandam, nabij het stationsgebied en verbindingen naar de A7, A8 en A10, is het object uitstekend bereikbaar.
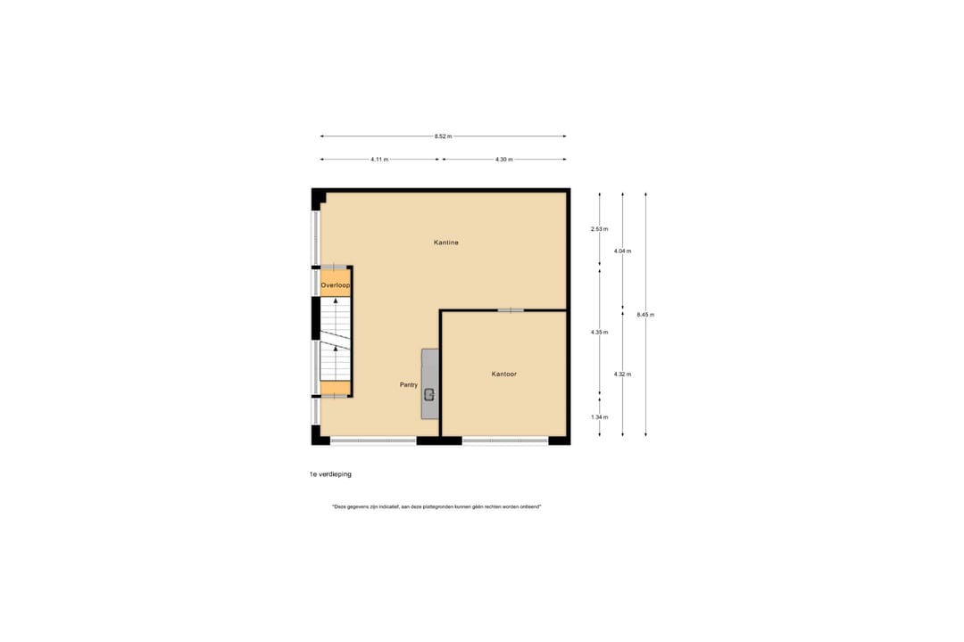
INDELING EN AFWERKING
Het pand is slim ingedeeld over drie bouwlagen, waardoor werken en opslag/productie uitstekend gescheiden kunnen worden:
Begane grond: Representatieve entree, drie toiletten, keuken en een functionele bedrijfsruimte/loods van ca. 48 m².
1e verdieping: Een riante lichte kantoorruimte met een nette keuken, en een tweede kantoorkamer met veel opbergruimte.
2e verdieping: Zeer grote ruimte met rondom ramen die geheel vrij is in te delen.
OPPERVLAKTE
- Begane grond ca. 79 m2 BVO waarbij er een bedrijfsruimte is van 48 m2
- 1e verdieping ca. 80 m2 B.V.O.
- 2e verdieping ca. 80 m2 B.V.O.
- Totaal ca. 239 m2 B.V.O.
VOORZIENINGEN EN COMFORT
- Airconditioning en CV-installatie
- Dubbele glasvezelaansluiting + back-up internetverbinding
- Alarminstallatie, camera systeem en rolluiken
PARKEREN
Uw auto parkeert u veilig en direct voor de deur op de twee naastgelegen parkeerplaatsen. Daarnaast is er voldoende gratis parkeergelegenheid in de directe omgeving.
BEREIKBAARHEID
Binnen enkele minuten bereikt u de snelwegen A7, A8 en de Ring A10, waardoor Amsterdam en omstreken, en tevens de nieuwe verbindingsweg naar de IJmond goed te bereiken zijn. Ook met het openbaar vervoer is het pand goed ontsloten.
BIJZONDERHEDEN
- Totaal ca. 216 m² (Kantoor: ca. 168 m² | Bedrijfsruimte: ca. 48 m²)
- Hoekligging met ramen aan 3 zijden voor maximaal lichtinval
- Zichtlocatie op bedrijventerrein Westerspoor
- Voorzien van airconditioning, twee keukens en moderne ICT-aansluitingen
- Direct te betrekken: geen afbouwkosten of wachttijden
Genoemde maten en informatie zijn indicatief. Hieraan kunnen geen rechten worden ontleend.
HUURCONDITIES
Huurprijs: € 2.650,- per maand, geen BTW.
Huurtermijn: In overleg.
Servicekosten: Geen.
Aanvaarding: Per direct.
Opzegtermijn: 12 maanden.
Zekerheidstelling: Waarborgsom: ter grootte van twee maanden huur
Huurindexering: Jaarlijks overeenkomstig het maand prijsindexcijfer volgens het consumentenprijsindexcijfer (CPI) reeks CPI alle huishoudens (2015=100) gepubliceerd door het Centraal Bureau voor de Statistiek (CBS) met een minimum van 4%. De huurprijs zal nimmer minder bedragen dan de huurprijs van het voorafgaande jaar. Indexatie voor het eerst 12 maanden na huur ingangsdatum en zo vervolgens jaarlijks.
BTW: Nee, is niet van toepassing.
GOEDKEURING
Het bovenstaande is onder finaal voorbehoud van de eigenaar.
Disclaimer: Ondanks dat deze publicatie met de grootst mogelijke zorgvuldigheid is samengesteld is de Online Bedrijfsmakelaar BV niet aansprakelijk te stellen voor onjuiste of onvolledige informatie die in deze publicatie vermeld staan. Aan deze gegevens kunnen geen rechten worden ontleend.
====================
Alle beschikbare informatie ontvangen?
Benieuwd naar alle beschikbare informatie over het pand? Vraag dan nu, onder de grote contactbutton, de gratis objectbrochure van de Schellingweg 17 C in Zaandam aan en ontvang de objectbrochure binnen 5 minuten in uw mailbox. Uiteraard kunt u ook direct een geheel vrijblijvende bezichtiging met de beheerder van het pand inplannen.
Bent u op zoek naar een representatieve locatie voor uw onderneming, waar licht, ruimte en functionaliteit samenkomen? Dit instapklare bedrijfspand is zowel geschikt voor een mix van opslag, productie als kantooractiviteiten en biedt representatieve werkruimtes over drie verdiepingen.
Dankzij de hoekligging geniet het pand van optimale zichtbaarheid en natuurlijke daglichttoetreding door ramen aan drie zijden. Met een totale oppervlakte van ca. 216 m² verdeeld over drie verdiepingen, is dit object klaar om uw organisatie te laten groeien.
Op een strategische locatie op het bedrijventerrein Westerspoor in Zaandam, nabij het stationsgebied en verbindingen naar de A7, A8 en A10, is het object uitstekend bereikbaar.
INDELING EN AFWERKING
Het pand is slim ingedeeld over drie bouwlagen, waardoor werken en opslag/productie uitstekend gescheiden kunnen worden:
Begane grond: Representatieve entree, drie toiletten, keuken en een functionele bedrijfsruimte/loods van ca. 48 m².
1e verdieping: Een riante lichte kantoorruimte met een nette keuken, en een tweede kantoorkamer met veel opbergruimte.
2e verdieping: Zeer grote ruimte met rondom ramen die geheel vrij is in te delen.
OPPERVLAKTE
- Begane grond ca. 79 m2 BVO waarbij er een bedrijfsruimte is van 48 m2
- 1e verdieping ca. 80 m2 B.V.O.
- 2e verdieping ca. 80 m2 B.V.O.
- Totaal ca. 239 m2 B.V.O.
VOORZIENINGEN EN COMFORT
- Airconditioning en CV-installatie
- Dubbele glasvezelaansluiting + back-up internetverbinding
- Alarminstallatie, camera systeem en rolluiken
PARKEREN
Uw auto parkeert u veilig en direct voor de deur op de twee naastgelegen parkeerplaatsen. Daarnaast is er voldoende gratis parkeergelegenheid in de directe omgeving.
BEREIKBAARHEID
Binnen enkele minuten bereikt u de snelwegen A7, A8 en de Ring A10, waardoor Amsterdam en omstreken, en tevens de nieuwe verbindingsweg naar de IJmond goed te bereiken zijn. Ook met het openbaar vervoer is het pand goed ontsloten.
BIJZONDERHEDEN
- Totaal ca. 216 m² (Kantoor: ca. 168 m² | Bedrijfsruimte: ca. 48 m²)
- Hoekligging met ramen aan 3 zijden voor maximaal lichtinval
- Zichtlocatie op bedrijventerrein Westerspoor
- Voorzien van airconditioning, twee keukens en moderne ICT-aansluitingen
- Direct te betrekken: geen afbouwkosten of wachttijden
Genoemde maten en informatie zijn indicatief. Hieraan kunnen geen rechten worden ontleend.
HUURCONDITIES
Huurprijs: € 2.650,- per maand, geen BTW.
Huurtermijn: In overleg.
Servicekosten: Geen.
Aanvaarding: Per direct.
Opzegtermijn: 12 maanden.
Zekerheidstelling: Waarborgsom: ter grootte van twee maanden huur
Huurindexering: Jaarlijks overeenkomstig het maand prijsindexcijfer volgens het consumentenprijsindexcijfer (CPI) reeks CPI alle huishoudens (2015=100) gepubliceerd door het Centraal Bureau voor de Statistiek (CBS) met een minimum van 4%. De huurprijs zal nimmer minder bedragen dan de huurprijs van het voorafgaande jaar. Indexatie voor het eerst 12 maanden na huur ingangsdatum en zo vervolgens jaarlijks.
BTW: Nee, is niet van toepassing.
GOEDKEURING
Het bovenstaande is onder finaal voorbehoud van de eigenaar.
Disclaimer: Ondanks dat deze publicatie met de grootst mogelijke zorgvuldigheid is samengesteld is de Online Bedrijfsmakelaar BV niet aansprakelijk te stellen voor onjuiste of onvolledige informatie die in deze publicatie vermeld staan. Aan deze gegevens kunnen geen rechten worden ontleend.
====================
Alle beschikbare informatie ontvangen?
Benieuwd naar alle beschikbare informatie over het pand? Vraag dan nu, onder de grote contactbutton, de gratis objectbrochure van de Schellingweg 17 C in Zaandam aan en ontvang de objectbrochure binnen 5 minuten in uw mailbox. Uiteraard kunt u ook direct een geheel vrijblijvende bezichtiging met de beheerder van het pand inplannen.
Features
Transfer of ownership
- Rental price
- € 2,650 per month
- First rental price
- € 2,995 per month
- Listed since
-
- Status
- Available
- Acceptance
- Available immediately
Construction
- Main use
- Industrial unit
- Alternative use(s)
- Office space
- Building type
- Resale property
- Year of construction
- 2002
Surface areas
- Area
- 168 m²
Layout
- Number of floors
- 3 floors
- Facilities
- Overhead doors, concrete floor, heater, toilet, pantry, air conditioning, built-in fittings and windows can be opened
Energy
- Energy label
- A+
Surroundings
- Location
- Business park
Parking
- Parking spaces
- 2 uncovered parking spaces
NVM real estate agent
Photos