Ter Steeghe Ring 95 3331 LX Zwijndrecht
€ 1,300 p/mo.
Description
Algemeen:
Een kleinschalige/zelfstandige/energiezuinige kantoorunit gelegen op een centrale locatie in Zwijndrecht.
Afmetingen:
Begane grond circa 58 m²
Verdieping circa 58 m² (incl. berging).
Parkeren:
Aan de voorzijde heeft u de mogelijkheid tot het parkeren van maximaal twee personenauto’s.
Huurprijs:
€ 1.300,-- per maand exclusief BTW.
Verwarming d.m.v. een warmtepomp. Gehele pand voorzien van LED verlichting, deels met bewegingssensoren.
Bouwjaar:
2001.
Elektrische installatie:
Standaard ten behoeve van normaal gebruik.
Aanvaarding:
In overleg, dit kan eventueel snel.
Locatie:
Gelegen op het kleinschalige bedrijventerrein ‘Ter Steeghe Ring’. Dit terrein is eind jaren 90 begin 2000 ontwikkeld en heeft een verzorgde uitstraling. Goed bereikbaar van en naar rijksweg A16 en de gemeente Zwijndrecht.
Bestemming:
Thans is van toepassing het vigerende bestemmingsplan ‘Zwijndrecht - Molenvliet- Ter Steeghe-’ vastgesteld op 15 mei 2012; Bedrijf tot en met categorie 3.2.
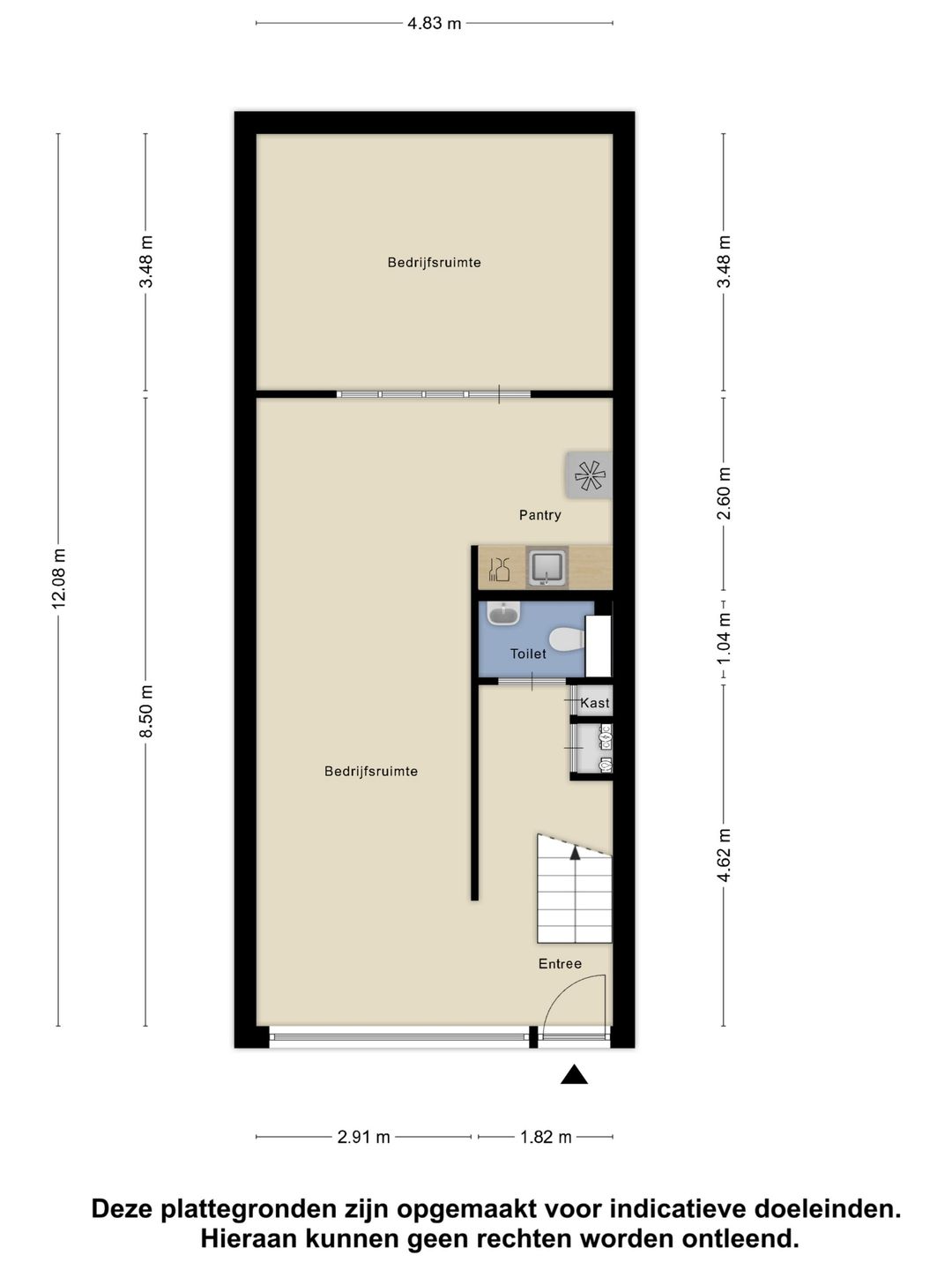
Indeling
Entree;
Trap naar de verdieping en toegang tot de toiletruimte en meterkast.
Bedrijfsruimte/ kantoor (8.50 x 2.91 m):
Representatieve ruimte met toegang tot pantry en achter gelegen kantoor/berging.
Kantoor/berging (3.48 x 4.83 m):
Door middel van glazen pui afgesloten ruimte.
Eerste verdieping
Bedrijfruimte voorzien van pantry.
Kantoor (ca. 6,64 x 2,71 m )
Separaat kantoor.
Berging (3.99 x 2.02 m):
Ruime berging met opstelplaats voor warmtepomp.
Bijzonderheden
Reclamevoering:
Reclamevoering uitsluitend in overleg met - en na goedkeuring van eigenaar/verhuurder.
Gebruik
Huurder is te allen tijde zelf volledig verantwoordelijk voor het aanvragen van de eventueel benodigde goedkeuringen en/of vergunningen van het bevoegd gezag om zich op locatie te mogen vestigen.
Indien na ondertekening van de huurovereenkomst blijkt dat het gebruik van Huurder strijdig is met de ter plaatse geldende publiekrechtelijke of privaatrechtelijke bestemming, kan Huurder de Verhuurder daar nimmer voor aansprakelijk stellen. Het toetsen of het beoogde gebruik publiek- of privaatrechtelijk is toegestaan, betreft volledig de verantwoordelijkheid van Huurder.
Onder- danwel overmaat van het metrage zal nimmer (kunnen) leiden tot enige verrekening van de huurprijs en/of eventuele kosten bijkomende leveringen en diensten, tijdens de periode van deze huurovereenkomst met inbegrip van eventuele verlenging(en) hiervan.
Huurprijsaanpassing
Jaarlijks, voor het eerst één jaar na datum huuringang, op basis van de wijziging van het prijsindexcijfer volgens de consumentenprijsindex (CPI) reeks CPI-Alle Huishoudens (2015=100), gepubliceerd door het Centraal Bureau voor de Statistiek (CBS).
Omzetbelasting
Over de huurprijs zal BTW in rekening worden gebracht. Indien BTW niet in rekening kan worden gebracht, geldt een nader te bepalen opslag op bovengenoemde huurprijs.
Zekerheidsstelling
Een bankgarantie of waarborgsom ter grootte van een betalingsverplichting van drie maanden, inclusief servicekosten en BTW.
Betalingswijze
De huurpenningen, servicekosten en BTW dienen te worden voldaan bij vooruitbetaling per maand.
Huurovereenkomst
De huurovereenkomst zal op basis van het standaard model van de Raad van Onroerende Zaken (ROZ) met bijbehorende Algemene Bepalingen, gedeponeerd en ingeschreven bij de griffie van de rechtbank te ‘s-Gravenhage, worden opgemaakt.
Een kleinschalige/zelfstandige/energiezuinige kantoorunit gelegen op een centrale locatie in Zwijndrecht.
Afmetingen:
Begane grond circa 58 m²
Verdieping circa 58 m² (incl. berging).
Parkeren:
Aan de voorzijde heeft u de mogelijkheid tot het parkeren van maximaal twee personenauto’s.
Huurprijs:
€ 1.300,-- per maand exclusief BTW.
Verwarming d.m.v. een warmtepomp. Gehele pand voorzien van LED verlichting, deels met bewegingssensoren.
Bouwjaar:
2001.
Elektrische installatie:
Standaard ten behoeve van normaal gebruik.
Aanvaarding:
In overleg, dit kan eventueel snel.
Locatie:
Gelegen op het kleinschalige bedrijventerrein ‘Ter Steeghe Ring’. Dit terrein is eind jaren 90 begin 2000 ontwikkeld en heeft een verzorgde uitstraling. Goed bereikbaar van en naar rijksweg A16 en de gemeente Zwijndrecht.
Bestemming:
Thans is van toepassing het vigerende bestemmingsplan ‘Zwijndrecht - Molenvliet- Ter Steeghe-’ vastgesteld op 15 mei 2012; Bedrijf tot en met categorie 3.2.
Indeling
Entree;
Trap naar de verdieping en toegang tot de toiletruimte en meterkast.
Bedrijfsruimte/ kantoor (8.50 x 2.91 m):
Representatieve ruimte met toegang tot pantry en achter gelegen kantoor/berging.
Kantoor/berging (3.48 x 4.83 m):
Door middel van glazen pui afgesloten ruimte.
Eerste verdieping
Bedrijfruimte voorzien van pantry.
Kantoor (ca. 6,64 x 2,71 m )
Separaat kantoor.
Berging (3.99 x 2.02 m):
Ruime berging met opstelplaats voor warmtepomp.
Bijzonderheden
Reclamevoering:
Reclamevoering uitsluitend in overleg met - en na goedkeuring van eigenaar/verhuurder.
Gebruik
Huurder is te allen tijde zelf volledig verantwoordelijk voor het aanvragen van de eventueel benodigde goedkeuringen en/of vergunningen van het bevoegd gezag om zich op locatie te mogen vestigen.
Indien na ondertekening van de huurovereenkomst blijkt dat het gebruik van Huurder strijdig is met de ter plaatse geldende publiekrechtelijke of privaatrechtelijke bestemming, kan Huurder de Verhuurder daar nimmer voor aansprakelijk stellen. Het toetsen of het beoogde gebruik publiek- of privaatrechtelijk is toegestaan, betreft volledig de verantwoordelijkheid van Huurder.
Onder- danwel overmaat van het metrage zal nimmer (kunnen) leiden tot enige verrekening van de huurprijs en/of eventuele kosten bijkomende leveringen en diensten, tijdens de periode van deze huurovereenkomst met inbegrip van eventuele verlenging(en) hiervan.
Huurprijsaanpassing
Jaarlijks, voor het eerst één jaar na datum huuringang, op basis van de wijziging van het prijsindexcijfer volgens de consumentenprijsindex (CPI) reeks CPI-Alle Huishoudens (2015=100), gepubliceerd door het Centraal Bureau voor de Statistiek (CBS).
Omzetbelasting
Over de huurprijs zal BTW in rekening worden gebracht. Indien BTW niet in rekening kan worden gebracht, geldt een nader te bepalen opslag op bovengenoemde huurprijs.
Zekerheidsstelling
Een bankgarantie of waarborgsom ter grootte van een betalingsverplichting van drie maanden, inclusief servicekosten en BTW.
Betalingswijze
De huurpenningen, servicekosten en BTW dienen te worden voldaan bij vooruitbetaling per maand.
Huurovereenkomst
De huurovereenkomst zal op basis van het standaard model van de Raad van Onroerende Zaken (ROZ) met bijbehorende Algemene Bepalingen, gedeponeerd en ingeschreven bij de griffie van de rechtbank te ‘s-Gravenhage, worden opgemaakt.
Features
Transfer of ownership
- Rental price
- € 1,300 per month
- Service charges
- No service charges known
- Listed since
-
- Status
- Available
- Acceptance
- Available in consultation
Construction
- Main use
- Office
- Building type
- Resale property
- Year of construction
- 2001
Surface areas
- Area
- 116 m²
- Plot size
- 91 m²
Layout
- Number of floors
- 2 floors
- Facilities
- Air conditioning, built-in fittings, windows can be opened, modular ceiling, toilet, pantry, heating and room layout
Energy
- Energy label
- A++
Surroundings
- Location
- Business park
- Accessibility
- Bus stop in 500 m to 1000 m, Dutch Railways Intercity station in 2000 m to 3000 m and motorway exit in 1000 m to 1500 m
- Local facilities
- Retail outlet in 1000 m to 1500 m
Parking
- Parking spaces
- 1 uncovered parking place
Real estate agent
Photos