Goertjesweg 1 8013 PA Zwolle
€ 130 /m²/year

Description
ALGEMEEN
Dit markante gebouw aan de Goertjesweg 1 is beschikbaar.
De kantoren zijn te huur vanaf ca 21 m².
Naast dat het gebouw een opvallende verschijning is door zijn vormgeving, kleurstellingen is het tevens gelegen in het Doepark de Nooterhof. Het gebouw was tot voor kort in gebruik als school en in het verleden was er tevens een kinderdagverblijf gevestigd. Via de hoofdingang in het middengedeelte heb je toegang tot de geel gekleurde 1e verdieping en de begane grond van het rechtergedeelte en de blauw gekleurde 1e verdieping. Het linker gedeelte beschikt tevens over een eigen ingang met 2 verdiepingen in het rode gekleurde gedeelte. Door de meerdere ingangen is deelverhuur goed mogelijk. Daarnaast is er een ruime buitenterrein aanwezig.
Doordat de achterzijde op de begane grond bijna geheel uit glas bestaat en ook de vele raampartijen op de verdiepingen is er veel daglicht aanwezig.
Via de ruime entree in het middengedeelte is het voormalige bedrijfsrestaurant met keuken via een trap bereikbaar; de gele 1e verdieping. Er zijn tevens meerdere toiletgroepen aanwezig.
LOCATIE
Doepark de Noorterhof is een natuur doe-tuin met meerdere faciliteiten en een horecagelegenheid.
De locatie is gelegen aan de buitenzijde van de Marslanden A. En daardoor goed bereikbaar vanaf de nabij gelegen Marsweg via de ringweg vanwaar de verschillende ontsluitingswegen zoals de A28 en N35 eenvoudig aan te rijden zijn.
KADASTRALE GEGEVENS
Gemeente : Zwolle
Sectie : C
Nummer : 1366
Grootte : 1940 m²
Kantoren
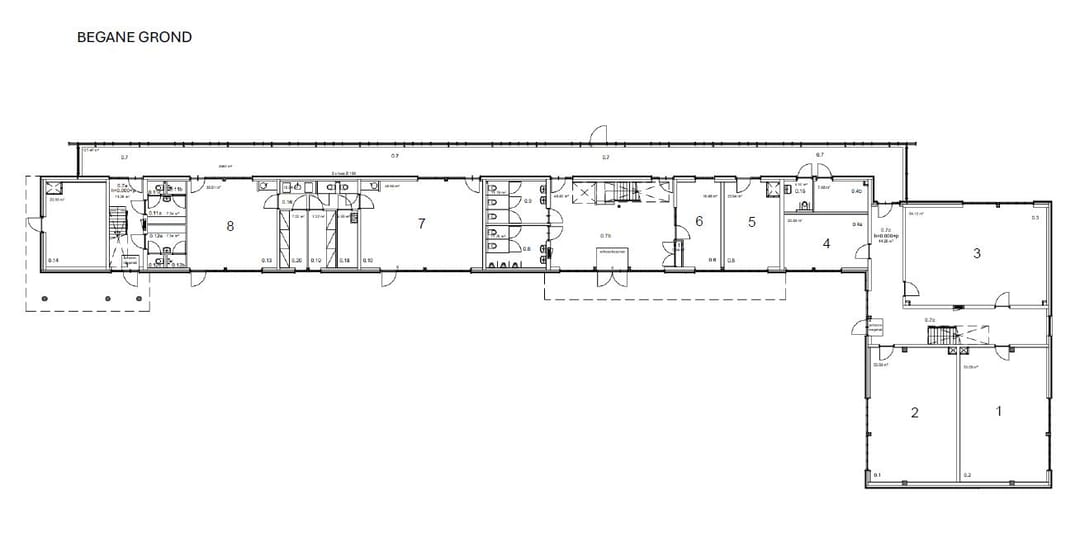
Begane grond
1 - ca. 70 m² - huurprijs € 975,00
2 - ca. 70 m² - huurprijs € 975,00
3 - ca. 83 m² - huurprijs € 1.175,00
4 - ca. 27 m² - huurprijs € 395,00 - Verhuurd
5 - ca. 27 m² - huurprijs € 395,00 - Verhuurd
6 - ca. 21 m² - huurprijs € 325,00 - Verhuurd
7 - ca. 64 m² - huurprijs € 875,00 - Verhuurd
8 - ca. 47 m² - huurprijs € 650,00 - Verhuurd
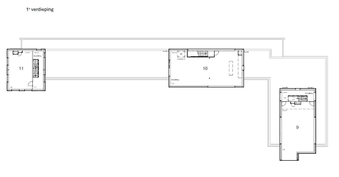
1e verdieping
9 - ca. 108 m² - huurprijs € 1.450,00
10 - ca. 142 m² - huurprijs € 1.900,00
11 - ca. 54 m² - huurprijs € 725,00
2e verdieping
11 - ca. 34 m² - huurprijs € 450,00
Genoemde prijzen zijn per maand, inclusief voorschot servicekosten exclusief btw.
Genoemde metrage is inclusief een aandeel in de algemene ruimte (gangzones, toiletten etc).
PARKEREN
Het pand beschikt over ca. 20 parkeerplaatsen.
Per te huren ruimte is het verplicht om minimaal 1 parkeerplaats af te nemen, deze is tevens te gebruiken voor bezoek.
Huurprijs: € 500,00 per plaats per jaar excl. btw.
OPLEVERINGSNIVEAU
- Toiletgroepen
- Professionele keuken
- Systeemplafond met inbouwarmaturen
- Verwarming via vloerverwarming en radiatoren
- Mechanische ventilatie
BESTEMMING
Op het object is het bestemmingsplan “Assendorp” van toepassing.
De voor 'Gemengd - 2' aangewezen gronden zijn bestemd voor gebouwen ten behoeve van:
- maatschappelijke voorzieningen;
- kantoren; gebouwen ten behoeve van een horecabedrijf als genoemd in de categorieën 1 tot en met 4 van de Lijst met horecacategorieën. Het bestemmingsplan is ter inzage via omgevingsloket.nl/regels op de kaart waarop u kunt zien of uw bedrijfsactiviteiten onder de mogelijkheden vallen.
ENERGIELABEL
C
AANVAARDING
Per direct mogelijk.
HUURPRIJS
Kantoor: zie overzicht
Parkeren: € 500,00 per plaats per jaar excl. btw.
SERVICEKOSTEN
De genoemde huurprijs is inclusief een voorschot op het gas, water en elektra gebruik en algemeen onderhoud.
Het voorschot betreft € 35,00 per m² excl. btw per jaar.
HUURBETALING
Per maand, vooraf te voldoen.
Dit object heeft een eigen website. Zie goertjesweg1-zwolle.nl
PLAN EEN BEZICHTIGING
Bent u geïnteresseerd in een kantoorruimte in dit markante gebouw? Neem contact met ons op om een bezichtiging in te plannen. We laten u graag de mogelijkheden zien.
Dit markante gebouw aan de Goertjesweg 1 is beschikbaar.
De kantoren zijn te huur vanaf ca 21 m².
Naast dat het gebouw een opvallende verschijning is door zijn vormgeving, kleurstellingen is het tevens gelegen in het Doepark de Nooterhof. Het gebouw was tot voor kort in gebruik als school en in het verleden was er tevens een kinderdagverblijf gevestigd. Via de hoofdingang in het middengedeelte heb je toegang tot de geel gekleurde 1e verdieping en de begane grond van het rechtergedeelte en de blauw gekleurde 1e verdieping. Het linker gedeelte beschikt tevens over een eigen ingang met 2 verdiepingen in het rode gekleurde gedeelte. Door de meerdere ingangen is deelverhuur goed mogelijk. Daarnaast is er een ruime buitenterrein aanwezig.
Doordat de achterzijde op de begane grond bijna geheel uit glas bestaat en ook de vele raampartijen op de verdiepingen is er veel daglicht aanwezig.
Via de ruime entree in het middengedeelte is het voormalige bedrijfsrestaurant met keuken via een trap bereikbaar; de gele 1e verdieping. Er zijn tevens meerdere toiletgroepen aanwezig.
LOCATIE
Doepark de Noorterhof is een natuur doe-tuin met meerdere faciliteiten en een horecagelegenheid.
De locatie is gelegen aan de buitenzijde van de Marslanden A. En daardoor goed bereikbaar vanaf de nabij gelegen Marsweg via de ringweg vanwaar de verschillende ontsluitingswegen zoals de A28 en N35 eenvoudig aan te rijden zijn.
KADASTRALE GEGEVENS
Gemeente : Zwolle
Sectie : C
Nummer : 1366
Grootte : 1940 m²
Kantoren
Begane grond
1 - ca. 70 m² - huurprijs € 975,00
2 - ca. 70 m² - huurprijs € 975,00
3 - ca. 83 m² - huurprijs € 1.175,00
4 - ca. 27 m² - huurprijs € 395,00 - Verhuurd
5 - ca. 27 m² - huurprijs € 395,00 - Verhuurd
6 - ca. 21 m² - huurprijs € 325,00 - Verhuurd
7 - ca. 64 m² - huurprijs € 875,00 - Verhuurd
8 - ca. 47 m² - huurprijs € 650,00 - Verhuurd
1e verdieping
9 - ca. 108 m² - huurprijs € 1.450,00
10 - ca. 142 m² - huurprijs € 1.900,00
11 - ca. 54 m² - huurprijs € 725,00
2e verdieping
11 - ca. 34 m² - huurprijs € 450,00
Genoemde prijzen zijn per maand, inclusief voorschot servicekosten exclusief btw.
Genoemde metrage is inclusief een aandeel in de algemene ruimte (gangzones, toiletten etc).
PARKEREN
Het pand beschikt over ca. 20 parkeerplaatsen.
Per te huren ruimte is het verplicht om minimaal 1 parkeerplaats af te nemen, deze is tevens te gebruiken voor bezoek.
Huurprijs: € 500,00 per plaats per jaar excl. btw.
OPLEVERINGSNIVEAU
- Toiletgroepen
- Professionele keuken
- Systeemplafond met inbouwarmaturen
- Verwarming via vloerverwarming en radiatoren
- Mechanische ventilatie
BESTEMMING
Op het object is het bestemmingsplan “Assendorp” van toepassing.
De voor 'Gemengd - 2' aangewezen gronden zijn bestemd voor gebouwen ten behoeve van:
- maatschappelijke voorzieningen;
- kantoren; gebouwen ten behoeve van een horecabedrijf als genoemd in de categorieën 1 tot en met 4 van de Lijst met horecacategorieën. Het bestemmingsplan is ter inzage via omgevingsloket.nl/regels op de kaart waarop u kunt zien of uw bedrijfsactiviteiten onder de mogelijkheden vallen.
ENERGIELABEL
C
AANVAARDING
Per direct mogelijk.
HUURPRIJS
Kantoor: zie overzicht
Parkeren: € 500,00 per plaats per jaar excl. btw.
SERVICEKOSTEN
De genoemde huurprijs is inclusief een voorschot op het gas, water en elektra gebruik en algemeen onderhoud.
Het voorschot betreft € 35,00 per m² excl. btw per jaar.
HUURBETALING
Per maand, vooraf te voldoen.
Dit object heeft een eigen website. Zie goertjesweg1-zwolle.nl
PLAN EEN BEZICHTIGING
Bent u geïnteresseerd in een kantoorruimte in dit markante gebouw? Neem contact met ons op om een bezichtiging in te plannen. We laten u graag de mogelijkheden zien.
Features
Transfer of ownership
- Rental price
- € 130 per square meter per year
- Service charges
- No service charges known
- Listed since
-
- Status
- Available
- Acceptance
- Available in consultation
Construction
- Main use
- Office
- Building type
- Resale property
- Year of construction
- 2010
Surface areas
- Area
- 965 m² (units from 21 m²)
Layout
- Number of floors
- 3 floors
- Facilities
- Mechanical ventilation, built-in fittings, windows can be opened, modular ceiling, toilet, pantry, heating and room layout
Energy
- Energy label
- C
Surroundings
- Location
- Business park
Parking
- Parking spaces
- 20 uncovered parking spaces
- Parking costs
- From € 500,- per lot per year (21% VAT applies)
NVM real estate agent
Photos







































