Description
ALGEMEEN
Aan de Slijkpoortsteeg 6 – een rustig zijstraatje midden in het centrum van Amersfoort – ligt deze compacte winkelruimte. De winkel maakt deel uit van een rij moderne units die enkele jaren geleden zijn gebouwd op de plek die bij velen bekend is als het steegje ‘achter de HEMA’.
De Slijkpoortsteeg is een laagdrempelig stukje binnenstad met een eigen sfeer. Meerdere ondernemers vonden hier al een plek, onder wie startende winkeliers, specialisten en dienstverleners. Dankzij de kleinschaligheid, de centrale ligging tussen de Arnhemsestraat en Utrechtsestraat én het aantrekkelijke huurniveau is dit een toegankelijke locatie voor wie betaalbaar en centraal wil ondernemen.
LOCATIE
De locatie bevindt zich in het centrum van Amersfoort direct tussen de winkelstraten Utrechtsestraat en de Arnhemsestraat. De nieuwbouw is over de Slijkpoortsteeg heen gebouwd. In de omgeving bevinden zich woningen, scholen, winkels en maatschappelijke instellingen. De Hoofdwinkelstraat, Langestraat en de Varkensmarkt liggen op een steenworp afstand. In de directe omgeving zijn winkels gevestigd als HEMA, Miss Etam, Vodafone, KFC, Mc Donald's en Intertoys.
BEREIKBAARHEID
De winkels zijn vanuit de Arnhemsestraat te voet via de Slijkpoortsteeg bereikbaar.
50 – 100 m tot de bus;
0 - 1 km tot de A28;
0 – 1 km tot centrum Amersfoort;
1 – 2 km tot Station Amersfoort;
2 – 3 km tot de A1.
VLOEROPPERVLAK
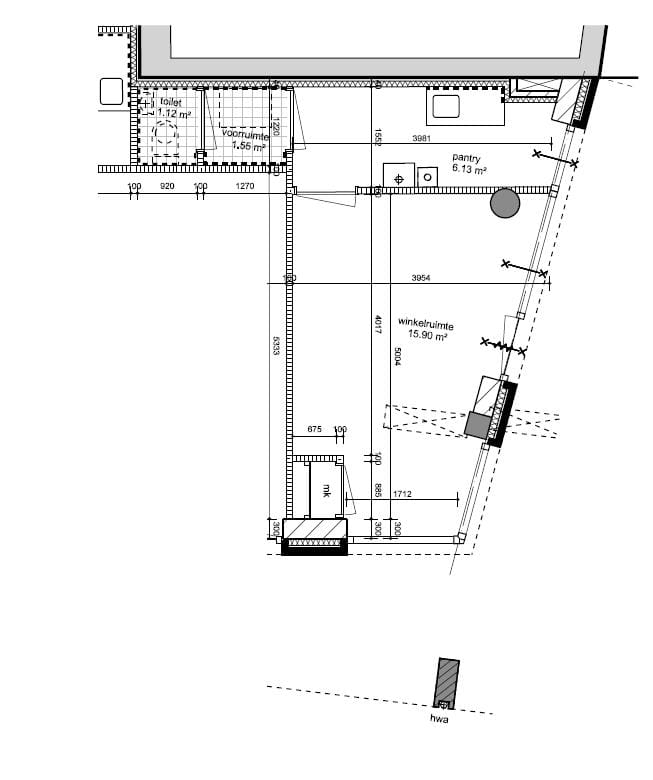
Slijkpoortsteeg 6 heeft een oppervlakte van 25 m².
OPLEVERINGSNIVEAU
Uitgangspunt is casco oplevering.
De ruimte wordt opgeleverd met pantry en toilet.
HUURPRIJS
€ 520,-- per maand, exclusief BTW en servicekosten.
SERVICEKOSTEN
De servicekosten bedragen € 21,68 per maand exclusief btw. Deze bijdrage betreft het ontstoppen van de riolering en het verbruik van elektra in de gemeenschappelijke voorzieningen.
Huurder is zelf verantwoordelijk voor eigen aansluitingen van gas en elektra.
PARKEREN
Er is ruim voldoende parkeergelegenheid in de parkeergarage en in de omgeving op de openbare weg. De Alliantie biedt de mogelijkheid tot het huren van een parkeerplaats in de parkeergarage 'de Grote Haag'.
BTW
Uitgangspunt is een met BTW belaste huurprijs. Derhalve dient de huurprijs te worden vermeerderd met het van toepassing zijnde BTW-percentage. Indien huurder niet aan het 90% criterium voldoet, zal er van rechtswege sprake zijn van omzetbelasting vrijgestelde huur. Alsdan wordt de overeengekomen kale huurprijs, exclusief omzetbelasting, zodanig verhoogd dat het voor verhuurder ontstane nadeel wordt gecompenseerd.
INDEXERING
De huurprijs zal jaarlijks, voor het eerst één jaar na huuringangsdatum, worden verhoogd op basis van de consumentenprijsindex (CPI), reeks voor alle huishoudens (2015 = 100), zoals wordt gepubliceerd door het Centraal Bureau voor de Statistiek (CBS).
BETALINGEN
De totale betalingsverplichting dient per kwartaal vooruit te worden voldaan.
HUURTERMIJN
De verhuurder geeft de voorkeur aan een huurtermijn van vijf jaar en vijf optiejaren
OPZEGTERMIJN
Opzegging van de huurovereenkomst geschiedt schriftelijk. De opzeggingstermijn bedraagt 12 maanden voor expiratiedatum.
ZEKERHEIDSSTELLING
Een bankgarantie ter grootte van drie maanden huur en servicekosten te vermeerderen met BTW.
HUUROVEREENKOMST
De huurovereenkomst zal zijn gebaseerd op het model Kantoorruimte en andere bedrijfsruimte, zoals is vastgesteld door de Raad voor Onroerende Zaken (ROZ) op 30 juli 2003, met de bijbehorende algemene bepalingen.
Aan de Slijkpoortsteeg 6 – een rustig zijstraatje midden in het centrum van Amersfoort – ligt deze compacte winkelruimte. De winkel maakt deel uit van een rij moderne units die enkele jaren geleden zijn gebouwd op de plek die bij velen bekend is als het steegje ‘achter de HEMA’.
De Slijkpoortsteeg is een laagdrempelig stukje binnenstad met een eigen sfeer. Meerdere ondernemers vonden hier al een plek, onder wie startende winkeliers, specialisten en dienstverleners. Dankzij de kleinschaligheid, de centrale ligging tussen de Arnhemsestraat en Utrechtsestraat én het aantrekkelijke huurniveau is dit een toegankelijke locatie voor wie betaalbaar en centraal wil ondernemen.
LOCATIE
De locatie bevindt zich in het centrum van Amersfoort direct tussen de winkelstraten Utrechtsestraat en de Arnhemsestraat. De nieuwbouw is over de Slijkpoortsteeg heen gebouwd. In de omgeving bevinden zich woningen, scholen, winkels en maatschappelijke instellingen. De Hoofdwinkelstraat, Langestraat en de Varkensmarkt liggen op een steenworp afstand. In de directe omgeving zijn winkels gevestigd als HEMA, Miss Etam, Vodafone, KFC, Mc Donald's en Intertoys.
BEREIKBAARHEID
De winkels zijn vanuit de Arnhemsestraat te voet via de Slijkpoortsteeg bereikbaar.
50 – 100 m tot de bus;
0 - 1 km tot de A28;
0 – 1 km tot centrum Amersfoort;
1 – 2 km tot Station Amersfoort;
2 – 3 km tot de A1.
VLOEROPPERVLAK
Slijkpoortsteeg 6 heeft een oppervlakte van 25 m².
OPLEVERINGSNIVEAU
Uitgangspunt is casco oplevering.
De ruimte wordt opgeleverd met pantry en toilet.
HUURPRIJS
€ 520,-- per maand, exclusief BTW en servicekosten.
SERVICEKOSTEN
De servicekosten bedragen € 21,68 per maand exclusief btw. Deze bijdrage betreft het ontstoppen van de riolering en het verbruik van elektra in de gemeenschappelijke voorzieningen.
Huurder is zelf verantwoordelijk voor eigen aansluitingen van gas en elektra.
PARKEREN
Er is ruim voldoende parkeergelegenheid in de parkeergarage en in de omgeving op de openbare weg. De Alliantie biedt de mogelijkheid tot het huren van een parkeerplaats in de parkeergarage 'de Grote Haag'.
BTW
Uitgangspunt is een met BTW belaste huurprijs. Derhalve dient de huurprijs te worden vermeerderd met het van toepassing zijnde BTW-percentage. Indien huurder niet aan het 90% criterium voldoet, zal er van rechtswege sprake zijn van omzetbelasting vrijgestelde huur. Alsdan wordt de overeengekomen kale huurprijs, exclusief omzetbelasting, zodanig verhoogd dat het voor verhuurder ontstane nadeel wordt gecompenseerd.
INDEXERING
De huurprijs zal jaarlijks, voor het eerst één jaar na huuringangsdatum, worden verhoogd op basis van de consumentenprijsindex (CPI), reeks voor alle huishoudens (2015 = 100), zoals wordt gepubliceerd door het Centraal Bureau voor de Statistiek (CBS).
BETALINGEN
De totale betalingsverplichting dient per kwartaal vooruit te worden voldaan.
HUURTERMIJN
De verhuurder geeft de voorkeur aan een huurtermijn van vijf jaar en vijf optiejaren
OPZEGTERMIJN
Opzegging van de huurovereenkomst geschiedt schriftelijk. De opzeggingstermijn bedraagt 12 maanden voor expiratiedatum.
ZEKERHEIDSSTELLING
Een bankgarantie ter grootte van drie maanden huur en servicekosten te vermeerderen met BTW.
HUUROVEREENKOMST
De huurovereenkomst zal zijn gebaseerd op het model Kantoorruimte en andere bedrijfsruimte, zoals is vastgesteld door de Raad voor Onroerende Zaken (ROZ) op 30 juli 2003, met de bijbehorende algemene bepalingen.
Map
Map is loading...
Cadastral boundaries
Buildings
Travel time
Gain insight into the reachability of this object, for instance from a public transport station or a home address.