Laanstraat 92 3743 BH Baarn
€ 2,085 p/mo.
Description
Te huur: Winkelruimte op A1-locatie in hartje Baarn
In de hoofdwinkelstraat van Baarn, op een absolute A1-stand, recht tegenover supermarkt Jumbo en in de directe nabijheid van o.a. Intertoys, Be One, Thuis in Baarn, Ici Paris en het Laanplein met ruime openbare parkeergelegenheid (waar o.a. supermarkt Aldi en Mitra drankenspeciaalzaak gevestigd zijn), komt een aantrekkelijke winkelruimte van ca. 111 m² VVO beschikbaar.
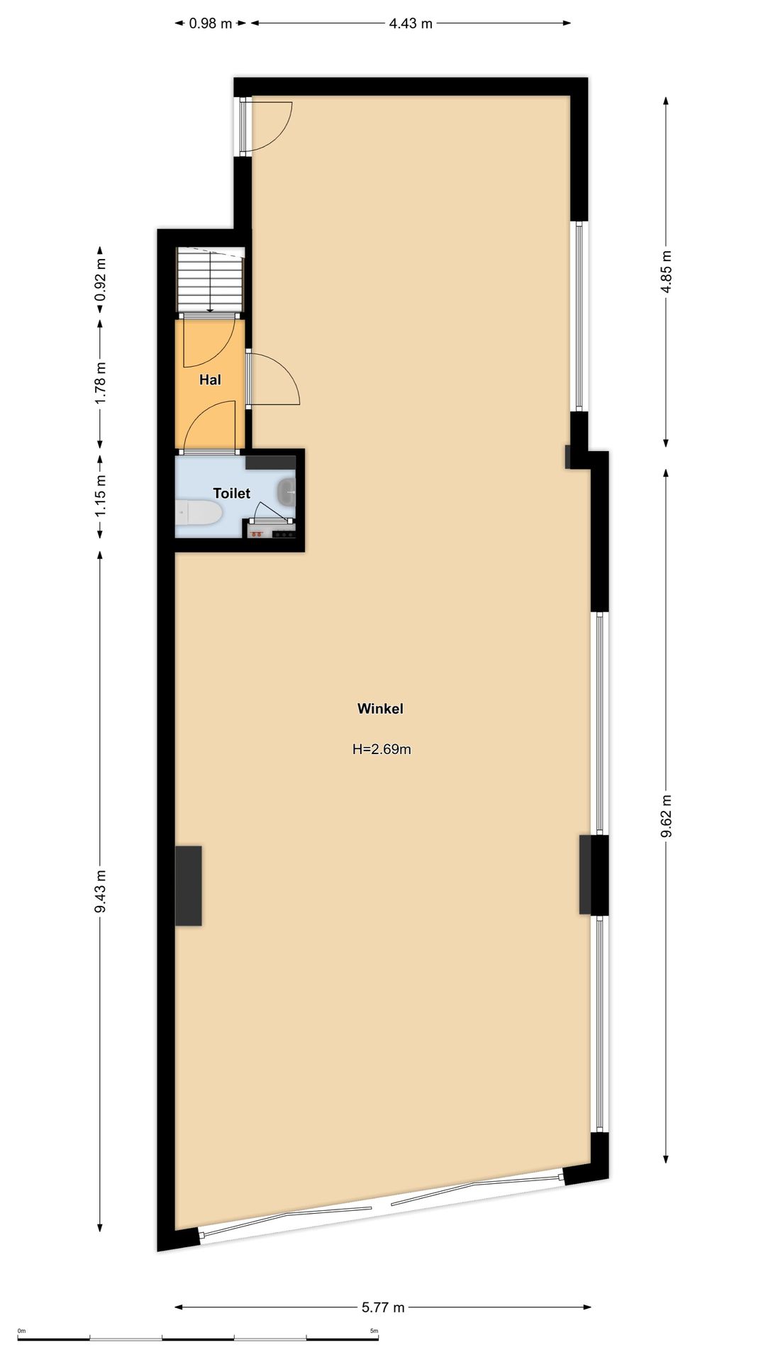
Huidige indeling:
Entree, winkelruimte: ca. 85 m², toilet, hal, kelderruimte: ca. 26 m² en vluchtweg.
Bijzonderheden
Het pand beschikt over:
- frontbreedte voorzijde: ca. 5,77 m¹ en met drie raampartijen in de zijgevel, derhalve veel attentiewaarde
- energielabel: A
- opleveringsniveau: in overleg met huidige huurder
Kadastraal bekend
Gemeente Baarn, Sectie L, nr. 1049
Bestemming
De geldende bestemming is (C) Centrum – 1: detailhandel en dienstverlening, zie bestemmingsplan.
Een unieke kans om uw winkel te vestigen op één van de best zichtbare en drukst bezochte locaties van Baarn!
In de hoofdwinkelstraat van Baarn, op een absolute A1-stand, recht tegenover supermarkt Jumbo en in de directe nabijheid van o.a. Intertoys, Be One, Thuis in Baarn, Ici Paris en het Laanplein met ruime openbare parkeergelegenheid (waar o.a. supermarkt Aldi en Mitra drankenspeciaalzaak gevestigd zijn), komt een aantrekkelijke winkelruimte van ca. 111 m² VVO beschikbaar.
Huidige indeling:
Entree, winkelruimte: ca. 85 m², toilet, hal, kelderruimte: ca. 26 m² en vluchtweg.
Bijzonderheden
Het pand beschikt over:
- frontbreedte voorzijde: ca. 5,77 m¹ en met drie raampartijen in de zijgevel, derhalve veel attentiewaarde
- energielabel: A
- opleveringsniveau: in overleg met huidige huurder
Kadastraal bekend
Gemeente Baarn, Sectie L, nr. 1049
Bestemming
De geldende bestemming is (C) Centrum – 1: detailhandel en dienstverlening, zie bestemmingsplan.
Een unieke kans om uw winkel te vestigen op één van de best zichtbare en drukst bezochte locaties van Baarn!
Features
Transfer of ownership
- Rental price
- € 2,085 per month
- Listed since
-
- Status
- Available
- Acceptance
- Available in consultation
Construction
- Main use
- Retail outlet with showroom
- Building type
- Resale property
- Year of construction
- 1959
Surface areas
- Area
- 111 m²
- Sales floor area
- 111 m²
- Front width
- 5.8 m
- Plot size
- 150 m²
Layout
- Number of floors
- 2 floors
Energy
- Energy label
- A
Surroundings
- Shopkeepers' association contribution
- No
- Socio-economic classification
- A1
NVM real estate agent
Photos