Amsterdamstraat 37 2032 PN Haarlem
- New
€ 57,500 /yr
€ 695,000 k.k.

Description
TE KOOP - TE HUUR
Amsterdamstraat 29-37 Haarlem, energielabel A
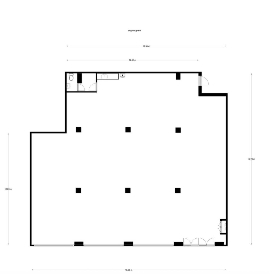
Representatieve in goede staat verkerende winkelruimte van 292 m² VVO met een plafondhoogte van 4 meter en een frontbreedte van 19 meter. De Amsterdamstraat is een wijk- winkelstraat in de Amsterdamse buurt welke een sterke functie heeft, gelegen aan de rand van het centrum (bij de Amsterdamse Poort) met veel winkels gericht op de dagelijkse boodschappen.
Gezien het mooie formaat van de winkel en het brede front kunt u de winkel optimaal benutten. In de straat bevinden zich zowel lokale partijen als landelijke aanbieders waaronder Dekamarkt, uw top slijter, de Haarlemse Bakker, Zeeman. De meeste huurders zijn reeds geruime tijd in de straat gevestigd.
HUURPRIJS
Huurprijs € 57.500,- excl. btw per jaar.
BTW:
Van toepassing bij verhuur, niet van toepassing bij verkoop.
SERVICEKOSTEN:
Niet van toepassing.
HUURVOORWAARDEN:
• Huurtermijn in overleg.
• Huurovereenkomst Conform het standaardmodel van de Raad van Onroerende Zaken (ROZ).
• Zekerheidsstelling: waarborgsom of bankgarantie ten bedrage van 3 maanden huur te vermeerderen met omzetbelasting.
• Voorbehoud toestemming eigenaar.
OVERIG
-De vrije constructieve hoogte is ca. 4 m.
-Het geheel is vrij indeelbaar.
-De winkel is zo te betrekken
-Energielabel A
-Meetrapport op aanvraag verkrijgbaar.
OPLEVERING:
In overleg. Op korte termijn beschikbaar.
BEREIKBAARHEID:
Op 5 minuten afstand van de Grote Markt met de fiets.
Op 10 minuten afstand van Heemstede met de auto.
Op 25 minuten afstand van Amsterdam met de auto.
Goed bereikbaar met openbaar vervoer.
PARKEREN:
Voor de deur en in de directe omgeving is ruime parkgelegenheid (betaald).
BESTEMMING:
Bestemmingsplan “Zomerzone Noord”. Centrum-1: detailhandel, kantoor, dienstverlening.
BEZICHTIGING:
Uitsluitend op afspraak.
Disclaimer:
Hoewel aan de samenstelling en inhoud van deze omschrijving de grootst mogelijke zorg is besteed, kunnen wij niet aansprakelijk worden gesteld voor onverhoopte fouten en gebreken, noch kunnen aan de inhoud rechten worden ontleend.
Amsterdamstraat 29-37 Haarlem, energielabel A
Representatieve in goede staat verkerende winkelruimte van 292 m² VVO met een plafondhoogte van 4 meter en een frontbreedte van 19 meter. De Amsterdamstraat is een wijk- winkelstraat in de Amsterdamse buurt welke een sterke functie heeft, gelegen aan de rand van het centrum (bij de Amsterdamse Poort) met veel winkels gericht op de dagelijkse boodschappen.
Gezien het mooie formaat van de winkel en het brede front kunt u de winkel optimaal benutten. In de straat bevinden zich zowel lokale partijen als landelijke aanbieders waaronder Dekamarkt, uw top slijter, de Haarlemse Bakker, Zeeman. De meeste huurders zijn reeds geruime tijd in de straat gevestigd.
HUURPRIJS
Huurprijs € 57.500,- excl. btw per jaar.
BTW:
Van toepassing bij verhuur, niet van toepassing bij verkoop.
SERVICEKOSTEN:
Niet van toepassing.
HUURVOORWAARDEN:
• Huurtermijn in overleg.
• Huurovereenkomst Conform het standaardmodel van de Raad van Onroerende Zaken (ROZ).
• Zekerheidsstelling: waarborgsom of bankgarantie ten bedrage van 3 maanden huur te vermeerderen met omzetbelasting.
• Voorbehoud toestemming eigenaar.
OVERIG
-De vrije constructieve hoogte is ca. 4 m.
-Het geheel is vrij indeelbaar.
-De winkel is zo te betrekken
-Energielabel A
-Meetrapport op aanvraag verkrijgbaar.
OPLEVERING:
In overleg. Op korte termijn beschikbaar.
BEREIKBAARHEID:
Op 5 minuten afstand van de Grote Markt met de fiets.
Op 10 minuten afstand van Heemstede met de auto.
Op 25 minuten afstand van Amsterdam met de auto.
Goed bereikbaar met openbaar vervoer.
PARKEREN:
Voor de deur en in de directe omgeving is ruime parkgelegenheid (betaald).
BESTEMMING:
Bestemmingsplan “Zomerzone Noord”. Centrum-1: detailhandel, kantoor, dienstverlening.
BEZICHTIGING:
Uitsluitend op afspraak.
Disclaimer:
Hoewel aan de samenstelling en inhoud van deze omschrijving de grootst mogelijke zorg is besteed, kunnen wij niet aansprakelijk worden gesteld voor onverhoopte fouten en gebreken, noch kunnen aan de inhoud rechten worden ontleend.
Features
Transfer of ownership
- Asking price
- € 695,000 kosten koper
- Rental price
- € 57,500 per year
- Listed since
-
- Status
- Available
- Acceptance
- Available immediately
Construction
- Main use
- Retail outlet with showroom
- Building type
- Resale property
- Year of construction
- 2002
Surface areas
- Area
- 292 m²
- Sales floor area
- 292 m²
- Front width
- 19 m
Layout
- Number of floors
- 1 floor
Energy
- Energy label
- A
Surroundings
- Location
- Shopping center and in residential district
- Shopkeepers' association contribution
- No
NVM real estate agent
Photos



















