Fortuinstraat 8 7772 BM Hardenberg
€ 2,500 p/mo.
Description
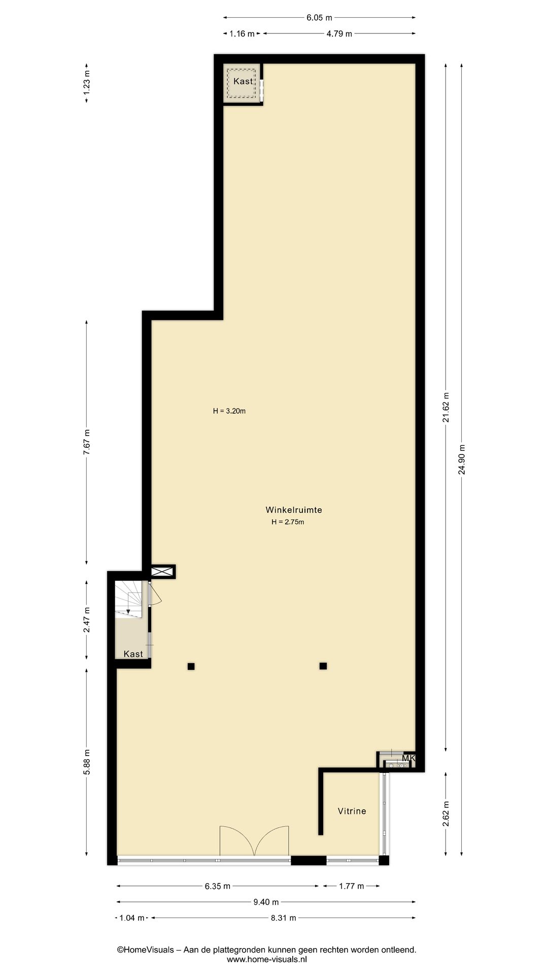
Op een A1 locatie in een goede doorlooproute in het gezellige stadscentrum van Hardenberg en omringd door een divers winkelaanbod, staat dit nette en goed onderhouden winkelpand. Het pand heeft een oppervlakte van circa 207 m², waarvan circa 193 m² verhuuroppervlakte. Een uitstekende kans voor ondernemers die op zoek zijn naar zichtbaarheid, bereikbaarheid én ruimte. Het winkelpand beschikt over een royale winkelruimte met systeemplafonds, airco en een verlaging voor een speels effect. De winkelruimte is royaal van opzet en zeer geschikt voor uiteenlopende winkel- of dienstverlenende concepten.
LOCATIE EN BEREIKBAARHEID
Het winkelpand heeft een centrale ligging aan de Fortuinstraat met een goede doorlooproute en ligt in de directe nabijheid van het Klepperplein en de Voorstraat. Er is een divers aanbod aan winkels en horecagelegenheden in de directe omgeving.
PARKEERGELEGENHEID
In de directe omgeving is voldoende parkeergelegenheid. Er zijn meerdere parkeervoorzieningen beschikbaar waar u betaald kunt parkeren.
OPPERVLAKTE
De totale bruto oppervlakte van het winkelpand betreft circa 207 m² :
- Begane grond: circa 207 m² bruto vloeroppervlakte.
- Verhuurbaar vloeroppervlakte: circa 193m²
- Bruto inhoud: 731 m3.
BESTEMMINGSPLAN
Er zit centrum bestemming op het winkelpand (vastgesteld op 02-07-2013).
BIJZONDERHEDEN
- Toplocatie: A1-positie in het centrum van Hardenberg;
- Voldoende parkeergelegenheid in de directe omgeving;
- Goede onderhoudsstaat;
- Royale frontbreedte: Ideaal voor branding en etalagepresentatie;
- Ruime winkelruimte;
- Direct in de looproute: Maximale exposure en passantenstroom;
- Een toiletruimte zal in overleg met de eigenaar worden gerealiseerd.
KADASTRALE INFORMATIE
Aanduiding: Stad-Hardenberg
Sectie: A
Nummer: 4625
Groot: 222 m²
Soort: Volle eigendom
OPTIE HUUR
Huurovereenkomst
Model huurovereenkomst winkelruimte en andere bedrijfsruimte in de zin van artikel 7:290 BW. Vastgesteld door de Nederlandse Coöperatieve Vereniging van Makelaars & Taxateurs in onroerende goederen NVM
HUURPERIODE
Bij voorkeur 5 + optie voor 5 jaar.
HUURAANPASSINGEN
Jaarlijks voor het eerst een jaar na huuringangsdatum, op basis van de wijziging van het maandprijsindexcijfer volgens de consumentenprijsindex (CPI) reeks alle huishoudens (2015=100), gepubliceerd door het Centraal Bureau voor de Statistiek (CBS)
ZEKERHEIDSSTELLING HUUR
Bankgarantie of waarborgsom ter grootte van drie maanden huurverplichting te vermeerderen met BTW
AANVAARDING
In overleg met de eigenaar
BETALINGEN
Per maand vooruit
VOORBEHOUD
Goedkeuring eigenaar
BESCHIKBAARHEID
Per 1 maart 2026 (eerder in overleg)
INLICHTINGEN
Voor nadere informatie en/of bezichtiging kunt u contact opnemen met:
Deen Bedrijfsmakelaars
Admiraal Helfrichstraat 7
7772 BV Hardenberg
Tel: 0523 263 520
Email:
Site:
LOCATIE EN BEREIKBAARHEID
Het winkelpand heeft een centrale ligging aan de Fortuinstraat met een goede doorlooproute en ligt in de directe nabijheid van het Klepperplein en de Voorstraat. Er is een divers aanbod aan winkels en horecagelegenheden in de directe omgeving.
PARKEERGELEGENHEID
In de directe omgeving is voldoende parkeergelegenheid. Er zijn meerdere parkeervoorzieningen beschikbaar waar u betaald kunt parkeren.
OPPERVLAKTE
De totale bruto oppervlakte van het winkelpand betreft circa 207 m² :
- Begane grond: circa 207 m² bruto vloeroppervlakte.
- Verhuurbaar vloeroppervlakte: circa 193m²
- Bruto inhoud: 731 m3.
BESTEMMINGSPLAN
Er zit centrum bestemming op het winkelpand (vastgesteld op 02-07-2013).
BIJZONDERHEDEN
- Toplocatie: A1-positie in het centrum van Hardenberg;
- Voldoende parkeergelegenheid in de directe omgeving;
- Goede onderhoudsstaat;
- Royale frontbreedte: Ideaal voor branding en etalagepresentatie;
- Ruime winkelruimte;
- Direct in de looproute: Maximale exposure en passantenstroom;
- Een toiletruimte zal in overleg met de eigenaar worden gerealiseerd.
KADASTRALE INFORMATIE
Aanduiding: Stad-Hardenberg
Sectie: A
Nummer: 4625
Groot: 222 m²
Soort: Volle eigendom
OPTIE HUUR
Huurovereenkomst
Model huurovereenkomst winkelruimte en andere bedrijfsruimte in de zin van artikel 7:290 BW. Vastgesteld door de Nederlandse Coöperatieve Vereniging van Makelaars & Taxateurs in onroerende goederen NVM
HUURPERIODE
Bij voorkeur 5 + optie voor 5 jaar.
HUURAANPASSINGEN
Jaarlijks voor het eerst een jaar na huuringangsdatum, op basis van de wijziging van het maandprijsindexcijfer volgens de consumentenprijsindex (CPI) reeks alle huishoudens (2015=100), gepubliceerd door het Centraal Bureau voor de Statistiek (CBS)
ZEKERHEIDSSTELLING HUUR
Bankgarantie of waarborgsom ter grootte van drie maanden huurverplichting te vermeerderen met BTW
AANVAARDING
In overleg met de eigenaar
BETALINGEN
Per maand vooruit
VOORBEHOUD
Goedkeuring eigenaar
BESCHIKBAARHEID
Per 1 maart 2026 (eerder in overleg)
INLICHTINGEN
Voor nadere informatie en/of bezichtiging kunt u contact opnemen met:
Deen Bedrijfsmakelaars
Admiraal Helfrichstraat 7
7772 BV Hardenberg
Tel: 0523 263 520
Email:
Site:
Features
Transfer of ownership
- Rental price
- € 2,500 per month
- Listed since
-
- Status
- Available
- Acceptance
- Available on 3/1/2026
Construction
- Main use
- Retail outlet with showroom
- Building type
- Resale property
- Year of construction
- 1935
Surface areas
- Area
- 207 m²
- Sales floor area
- 193 m²
- Front width
- 8.1 m
- Plot size
- 222 m²
Layout
- Number of floors
- 1 floor
Energy
- Energy label
- Not available
Surroundings
- Location
- Town center
- Accessibility
- Bus stop in less than 500 m, Dutch Railways Intercity station in 500 m to 1000 m and motorway exit in 500 m to 1000 m
- Shopkeepers' association contribution
- No
- Socio-economic classification
- A1
NVM real estate agent
Photos