Promenade 129 6411 JD Heerlen
€ 2,500 p/mo.
Description
TE HUUR : WINKEL- / COMMERCIËLE RUIMTE
PROMENADE 129 HEERLEN
BINNEN HET STADCENTRUM VAN HEERLEN WORDT EEN OP GOEDE WINKELSTAND GESITUEERDE COMMERCIËLE RUIMTE TE HUUR AANGEBODEN
ALGEMEEN
In het stadscentrum van Heerlen wordt op een aantrekkelijke winkellocatie (A-stand) 412 m² VVO aan commerciële ruimte te huur aangeboden, waarvan circa 176 m² op begane grond gelegen is. De directe omgeving van het pand wordt enerzijds gekenmerkt door de aanwezigheid van allerlei (lokale en landelijke) retailers, anderzijds grenst het object aan het Schinkelkwadrant - Zuid, waar recentelijk een grootschalige gebiedstransformatie heeft plaatsgevonden.
Onderhavig object is mede door de aantrekkelijke frontbreedte uitermate geschikt voor gebruik middels retail, waarbij een vorm van ‘blurring’ door verhuurder en de gemeente wordt ondersteund. Gelet op de gebiedsontwikkeling zou daghoreca met een bijbehorende terrasfunctie ook een uitstekend alternatief kunnen vormen. Hiertoe is dan wel medewerking van de gemeente vereist (meer info op aanvraag).
LIGGING - OMGEVING
Het pand is op een A-winkellocatie gelegen binnen het stadscentrum van Heerlen. Dit centrum vormt niet alleen het hart van de stad, maar ook van de regio Parkstad (ca. 250.000 inwoners), waartoe ook plaatsen zoals Kerkrade, Landgraaf en Brunssum behoren. Noemenswaardig is dat de binnenstad niet alleen bezocht wordt door inwoners uit de directe omgeving, maar ook door personen uit de Euregio Maas en Rijn, waartoe ook steden zoals Aken, Luik, Hasselt en Maastricht behoren. Hierbij is binnen een straal van circa 50 KM sprake van een verzorgingsgebied ter grootte van enkele miljoenen inwoners.
Het centrum van Heerlen kent velerlei faciliteiten en voorzieningen, variërend van retail (landelijke ketens zoals H&M, Vodafone & Ziggo, Douglas, Etos, Jeans Center, ICI Paris, Jamin, enz.) tot warenhuizen zoals Berden Mode en Wonen, diverse winkelcentra waaronder het Corio Center en Winkelcentrum ’T Loon, alsmede bioscopen, culturele voorzieningen, architectuur (zoals het Maankwartier), musea (o.a. Mijnmuseum) en horeca. Mede ten gevolge van allerhande evenementen die doorlopend worden georganiseerd is zodoende sprake van een levendige binnenstad die jaarlijks miljoenen bezoekers trekt.
De Promenade vormt qua looproute een belangrijke schakel voor het winkelend publiek en is tevens de belangrijkste verbindingsader tussen het Pancratiusplein (horeca) en de stadsschouwburg / Schinkel-Zuid, hetgeen de toeloop van publiek versterkt en daarmee de courantheid van onderhavig object ten goede komt.
Binnen de directe omgeving zijn meerdere, qua omvang zeer royale, parkeergarages gesitueerd, waarin tegen aantrekkelijke (lage) tarieven geparkeerd kan worden. Deze faciliteit zorgt mede voor een toename van het winkelend publiek.
INDELING & VOORZIENINGEN
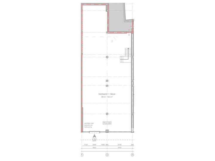
De commerciële ruimte omvat in totaal en afgerond 412 m² VVO. De begane grond voorziet in circa 176 m², de eerste verdieping omvat 178 m² en het souterrain in 58 m². De begane grond is min of meer rechthoekig ingedeeld, gekoppeld aan een frontbreedte van circa 8,5 m¹. De eerste verdieping omvat meerdere werkruimtes, een toiletfaciliteit en kitchenette, terwijl het souterrain vooral voor opslag kan worden gebruikt.
Het pand beschikt over zelfstandige aansluitingen voor gas, water en elektra en voorziet tevens in enkele scheidingswanden.
Verhuurder is voornemens de gevels van het object te voorzien van een upgrading. Hierbij kan rekening gehouden worden met specifieke wensen van de huurder (alsdan in samenspraak nader in te richten). Voor een verdere impressie wordt hierbij verwezen naar de in de bijlage toegevoegde afbeeldingen.
PRIJSSTELLING
Bij aanvang omvat de huurprijs € 2.500,= per maand exclusief BTW. Binnen een periode van twee jaar zal deze huur stapsgewijs oplopen naar € 3.500,= per maand exclusief BTW.
HUURUITGANGSPUNTEN
• huurbetaling
per maand vooraf te voldoen.
• indexering
jaarlijks voor het eerst 1 jaar na huuringang op reguliere wijze(CBS).
• BTW
is wel van toepassing aangaande de verhuur (21% opslag).
• services
het object voorziet in eigen gas-, water- en elektrameters. Huurder dient deze en eventuele andere voorzieningen rechtstreeks af te nemen bij enig leverancier.
• opleverniveau
huidige staat (doch zaken zijn bespreekbaar).
• huurtermijn
5 jaar met telkens 5 jaar verlenging vormt de basis, doch een korte huurtermijn is bespreekbaar vanaf 2 jaar.
• opzegtermijn
regulier bezien tenminste 12 maanden voor enig expiratiemoment.
• zekerheidsstelling
3 maanden betalingsverplichting (huur + BTW => waarborgsom of bankgarantie).
• contract
standaard ROZ-contract model winkelruimte of kantoor- /bedrijfsruimte inclusief algemene bepalingen (afhankelijk van het soort gebruiker).
OVERIGE ELEMENTEN
• gebruik
conform het gestelde in het Omgevingsplan (‘Bestemmingsplan ‘Cityplan Heerlen’) luidt de bestemming ‘Centrum’ waarbinnen vormen van detailhandel, horeca en dienstverlening zijn toegestaan. Voor meer info kijk op beschikbaarheid
per direct.
• EPA
eigenaar zal conform de wettelijke voorschriften aan koper of huurder een zogenaamd ‘Energie Prestatieadvies Label’ beschikbaar stellen.
• voorbehoud
er is te allen tijde sprake van een voorbehoud goedkeuring eigenaar.
PROMENADE 129 HEERLEN
BINNEN HET STADCENTRUM VAN HEERLEN WORDT EEN OP GOEDE WINKELSTAND GESITUEERDE COMMERCIËLE RUIMTE TE HUUR AANGEBODEN
ALGEMEEN
In het stadscentrum van Heerlen wordt op een aantrekkelijke winkellocatie (A-stand) 412 m² VVO aan commerciële ruimte te huur aangeboden, waarvan circa 176 m² op begane grond gelegen is. De directe omgeving van het pand wordt enerzijds gekenmerkt door de aanwezigheid van allerlei (lokale en landelijke) retailers, anderzijds grenst het object aan het Schinkelkwadrant - Zuid, waar recentelijk een grootschalige gebiedstransformatie heeft plaatsgevonden.
Onderhavig object is mede door de aantrekkelijke frontbreedte uitermate geschikt voor gebruik middels retail, waarbij een vorm van ‘blurring’ door verhuurder en de gemeente wordt ondersteund. Gelet op de gebiedsontwikkeling zou daghoreca met een bijbehorende terrasfunctie ook een uitstekend alternatief kunnen vormen. Hiertoe is dan wel medewerking van de gemeente vereist (meer info op aanvraag).
LIGGING - OMGEVING
Het pand is op een A-winkellocatie gelegen binnen het stadscentrum van Heerlen. Dit centrum vormt niet alleen het hart van de stad, maar ook van de regio Parkstad (ca. 250.000 inwoners), waartoe ook plaatsen zoals Kerkrade, Landgraaf en Brunssum behoren. Noemenswaardig is dat de binnenstad niet alleen bezocht wordt door inwoners uit de directe omgeving, maar ook door personen uit de Euregio Maas en Rijn, waartoe ook steden zoals Aken, Luik, Hasselt en Maastricht behoren. Hierbij is binnen een straal van circa 50 KM sprake van een verzorgingsgebied ter grootte van enkele miljoenen inwoners.
Het centrum van Heerlen kent velerlei faciliteiten en voorzieningen, variërend van retail (landelijke ketens zoals H&M, Vodafone & Ziggo, Douglas, Etos, Jeans Center, ICI Paris, Jamin, enz.) tot warenhuizen zoals Berden Mode en Wonen, diverse winkelcentra waaronder het Corio Center en Winkelcentrum ’T Loon, alsmede bioscopen, culturele voorzieningen, architectuur (zoals het Maankwartier), musea (o.a. Mijnmuseum) en horeca. Mede ten gevolge van allerhande evenementen die doorlopend worden georganiseerd is zodoende sprake van een levendige binnenstad die jaarlijks miljoenen bezoekers trekt.
De Promenade vormt qua looproute een belangrijke schakel voor het winkelend publiek en is tevens de belangrijkste verbindingsader tussen het Pancratiusplein (horeca) en de stadsschouwburg / Schinkel-Zuid, hetgeen de toeloop van publiek versterkt en daarmee de courantheid van onderhavig object ten goede komt.
Binnen de directe omgeving zijn meerdere, qua omvang zeer royale, parkeergarages gesitueerd, waarin tegen aantrekkelijke (lage) tarieven geparkeerd kan worden. Deze faciliteit zorgt mede voor een toename van het winkelend publiek.
INDELING & VOORZIENINGEN
De commerciële ruimte omvat in totaal en afgerond 412 m² VVO. De begane grond voorziet in circa 176 m², de eerste verdieping omvat 178 m² en het souterrain in 58 m². De begane grond is min of meer rechthoekig ingedeeld, gekoppeld aan een frontbreedte van circa 8,5 m¹. De eerste verdieping omvat meerdere werkruimtes, een toiletfaciliteit en kitchenette, terwijl het souterrain vooral voor opslag kan worden gebruikt.
Het pand beschikt over zelfstandige aansluitingen voor gas, water en elektra en voorziet tevens in enkele scheidingswanden.
Verhuurder is voornemens de gevels van het object te voorzien van een upgrading. Hierbij kan rekening gehouden worden met specifieke wensen van de huurder (alsdan in samenspraak nader in te richten). Voor een verdere impressie wordt hierbij verwezen naar de in de bijlage toegevoegde afbeeldingen.
PRIJSSTELLING
Bij aanvang omvat de huurprijs € 2.500,= per maand exclusief BTW. Binnen een periode van twee jaar zal deze huur stapsgewijs oplopen naar € 3.500,= per maand exclusief BTW.
HUURUITGANGSPUNTEN
• huurbetaling
per maand vooraf te voldoen.
• indexering
jaarlijks voor het eerst 1 jaar na huuringang op reguliere wijze(CBS).
• BTW
is wel van toepassing aangaande de verhuur (21% opslag).
• services
het object voorziet in eigen gas-, water- en elektrameters. Huurder dient deze en eventuele andere voorzieningen rechtstreeks af te nemen bij enig leverancier.
• opleverniveau
huidige staat (doch zaken zijn bespreekbaar).
• huurtermijn
5 jaar met telkens 5 jaar verlenging vormt de basis, doch een korte huurtermijn is bespreekbaar vanaf 2 jaar.
• opzegtermijn
regulier bezien tenminste 12 maanden voor enig expiratiemoment.
• zekerheidsstelling
3 maanden betalingsverplichting (huur + BTW => waarborgsom of bankgarantie).
• contract
standaard ROZ-contract model winkelruimte of kantoor- /bedrijfsruimte inclusief algemene bepalingen (afhankelijk van het soort gebruiker).
OVERIGE ELEMENTEN
• gebruik
conform het gestelde in het Omgevingsplan (‘Bestemmingsplan ‘Cityplan Heerlen’) luidt de bestemming ‘Centrum’ waarbinnen vormen van detailhandel, horeca en dienstverlening zijn toegestaan. Voor meer info kijk op beschikbaarheid
per direct.
• EPA
eigenaar zal conform de wettelijke voorschriften aan koper of huurder een zogenaamd ‘Energie Prestatieadvies Label’ beschikbaar stellen.
• voorbehoud
er is te allen tijde sprake van een voorbehoud goedkeuring eigenaar.
Features
Transfer of ownership
- Rental price
- € 2,500 per month
- First rental price
- € 3,625 per month
- Listed since
-
- Status
- Available
- Acceptance
- Available immediately
Construction
- Main use
- Retail outlet
- Building type
- Resale property
- Year of construction
- 1953
Surface areas
- Area
- 412 m²
- Sales floor area
- 412 m²
- Front width
- 8.5 m
Layout
- Number of floors
- 2 floors
Energy
- Energy label
- Not available
Surroundings
- Location
- Town center
- Accessibility
- Bus stop in less than 500 m, bus junction in less than 500 m, Dutch Railways Intercity station in less than 500 m and motorway exit in 500 m to 1000 m
- Shopkeepers' association contribution
- No
- Socio-economic classification
- A2
Photos
Floorplan
Overzichtstekening Promenade 129
Vooraanzicht gevels Promenade