Description
Omschrijving
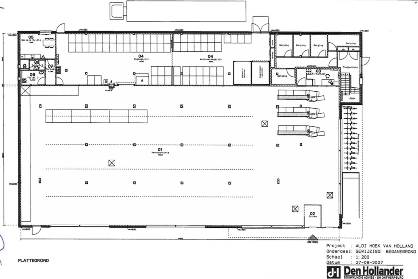
Een solitaire winkelruimte van ruim 1.000 m² gelegen in Hoek van Holland aan de Mercatorweg. De bezoekers van de winkel kunnen gebruikmaken van een ruim aangrenzend parkeerterrein (gemeentegrond).
Huurtermijn
10 jaar
Verlenging
5 jaar
Energielabel
C
Oppervlakte
De winkel inclusief secundaire ruimtes heeft een oppervlak van ca. 1.025 m². Dit oppervlak is niet NEN2580 gemeten.
Bestemming
De voor 'Gemengd - 2' aangewezen gronden zijn bestemd voor:
woningen;
detailhandel, op de begane grond, met uitzondering van de locatie Scheepvaartplein-De Cordesstraat waar geen detailhandel
is toegestaan;
dienstverlening, op de begane grond;
niet geluidsgevoelige (in de zin van de Wet geluidhinder) maatschappelijke voorzieningen, op de begane grond;
bedrijven t/m categorie 2 van de lijst van bedrijfsactiviteiten behorende bij deze regels, op de begane grond, met uitzondering van de locatie Scheepvaartplein-De Cordesstraat, waar geen bedrijven zijn toegestaan:
horeca, op de begane grond, uitsluitend ter plaatse van de op de verbeelding aangegeven functieaanduiding "horeca";
voorzieningen behorend bij bovengenoemde functies, zoals groen, water, ontsluitingswegen en -paden;
'Waarde - Archeologie' ,Waarde - Cultuurhistorie en Waterstaat - Waterkering voor zover de gronden mede als zodanig zijn bestemd.
(Bron: ruimtelijkeplannen.nl)
BTW
Verhuurder zal opteren voor een met BTW belaste verhuur, huurder verleent hiertoe zijn medewerking. Indien niet geopteerd kan worden voor BTW belaste verhuur zal de huurprijs met een nader te bepalen bedrag worden verhoogd.
Indexering
Jaarlijks, voor het eerst één jaar na ingangsdatum huurovereenkomst, op basis van de wijziging van het maandprijsindexcijfer volgens de consumentenprijsindex (CPI), reeks CPI alle huishoudens (2015=100), gepubliceerd door het Centraal Bureau voor de Statistiek (CBS). De volgens het bovenstaande geïndexeerde huurprijs zal nimmer lager zijn dan die van de voorafgaande huurjaren.
Servicekosten
Niet van toepassing. Huurder dient voor eigen rekening en risico overeenkomsten te sluiten met de desbetreffende (nuts)bedrijven.
Een solitaire winkelruimte van ruim 1.000 m² gelegen in Hoek van Holland aan de Mercatorweg. De bezoekers van de winkel kunnen gebruikmaken van een ruim aangrenzend parkeerterrein (gemeentegrond).
Huurtermijn
10 jaar
Verlenging
5 jaar
Energielabel
C
Oppervlakte
De winkel inclusief secundaire ruimtes heeft een oppervlak van ca. 1.025 m². Dit oppervlak is niet NEN2580 gemeten.
Bestemming
De voor 'Gemengd - 2' aangewezen gronden zijn bestemd voor:
woningen;
detailhandel, op de begane grond, met uitzondering van de locatie Scheepvaartplein-De Cordesstraat waar geen detailhandel
is toegestaan;
dienstverlening, op de begane grond;
niet geluidsgevoelige (in de zin van de Wet geluidhinder) maatschappelijke voorzieningen, op de begane grond;
bedrijven t/m categorie 2 van de lijst van bedrijfsactiviteiten behorende bij deze regels, op de begane grond, met uitzondering van de locatie Scheepvaartplein-De Cordesstraat, waar geen bedrijven zijn toegestaan:
horeca, op de begane grond, uitsluitend ter plaatse van de op de verbeelding aangegeven functieaanduiding "horeca";
voorzieningen behorend bij bovengenoemde functies, zoals groen, water, ontsluitingswegen en -paden;
'Waarde - Archeologie' ,Waarde - Cultuurhistorie en Waterstaat - Waterkering voor zover de gronden mede als zodanig zijn bestemd.
(Bron: ruimtelijkeplannen.nl)
BTW
Verhuurder zal opteren voor een met BTW belaste verhuur, huurder verleent hiertoe zijn medewerking. Indien niet geopteerd kan worden voor BTW belaste verhuur zal de huurprijs met een nader te bepalen bedrag worden verhoogd.
Indexering
Jaarlijks, voor het eerst één jaar na ingangsdatum huurovereenkomst, op basis van de wijziging van het maandprijsindexcijfer volgens de consumentenprijsindex (CPI), reeks CPI alle huishoudens (2015=100), gepubliceerd door het Centraal Bureau voor de Statistiek (CBS). De volgens het bovenstaande geïndexeerde huurprijs zal nimmer lager zijn dan die van de voorafgaande huurjaren.
Servicekosten
Niet van toepassing. Huurder dient voor eigen rekening en risico overeenkomsten te sluiten met de desbetreffende (nuts)bedrijven.
Map
Map is loading...
Cadastral boundaries
Buildings
Travel time
Gain insight into the reachability of this object, for instance from a public transport station or a home address.