Nieuwstraat 26-ZW 3141 AA Maassluis
- Under offer
€ 275,000 k.k.

Description
Uniek winkelpand in het hart van Maassluis! In het bruisende stadshart van Maassluis ligt dit charmante winkelpand, omringd door diverse eigentijdse ondernemers. Van gezellige horecagelegenheden tot supermarkten: in deze levendige winkelstraat is voor ieder wat wils!
Indeling
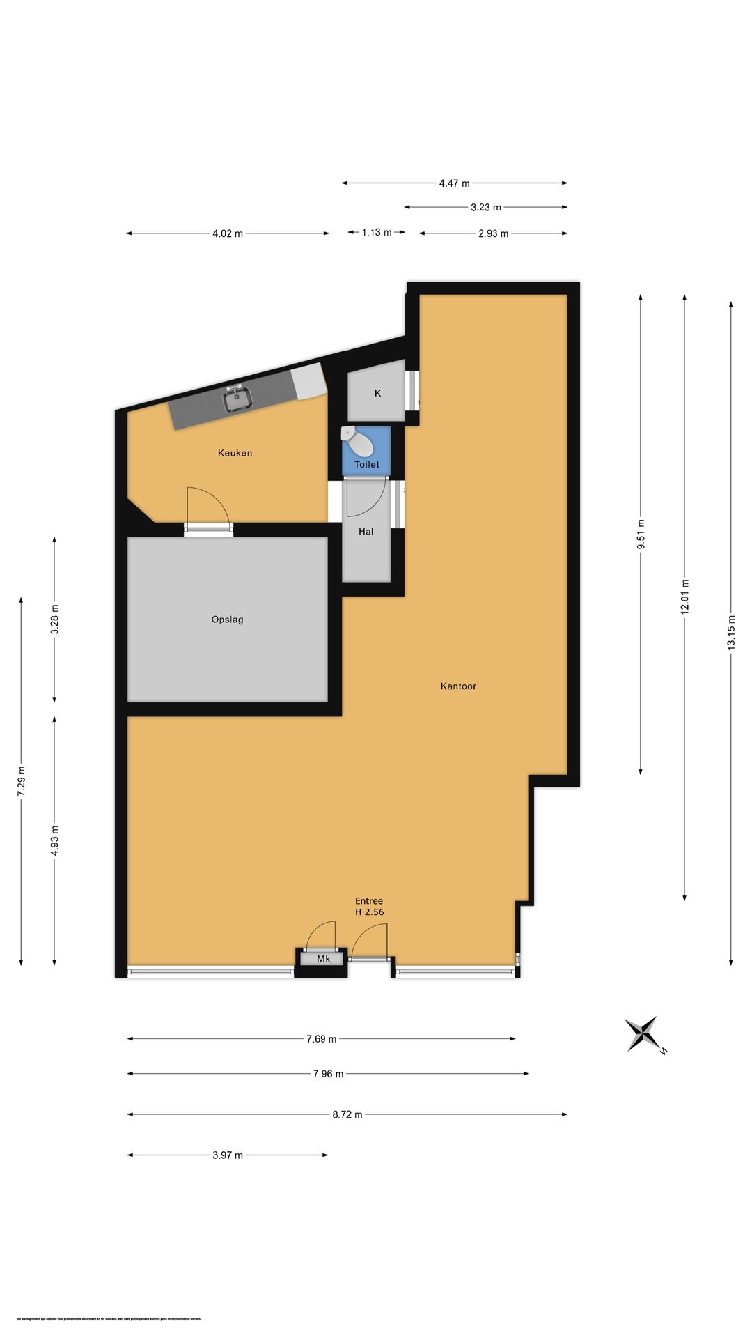
Bij binnenkomst stap je direct in een grote winkelruimte met een etalage van circa 8 meter breed. Het netto winkeloppervlak bedraagt circa 97 m² en is verdeeld over meerdere ruimtes. Daarnaast is er een ruime extra kamer aanwezig, geschikt voor opslag of administratief werk.
In 2021 is het gehele pand grondig gerenoveerd. Hierbij zijn onder andere een moderne keuken met vaatwasser en koelkast geplaatst. Perfect voor het bereiden van een heerlijke kop koffie voor je klanten. Daarnaast is het pand voorzien van twee airco-units voor zowel verwarming als koeling. Alle wanden zijn gestuct en geschilderd, en er is vernieuwd sanitair met kraan, nieuw deurbeslag én verzorgd behangwerk aangebracht. De PVC-vloeren geven het geheel een nette, moderne uitstraling. Kortom: instapklaar!
Beleggingsobject óf voor eigen gebruik
Dit pand biedt uitstekende mogelijkheden, zowel als investering als voor eigen gebruik. Momenteel is het verhuurd tot 1 oktober 2026, waardoor het direct rendement oplevert voor beleggers én er nog genoeg tijd is om een nieuwe huurder aan te trekken. Tegelijkertijd is dit een ideale kans om alvast plannen te maken voor je eigen onderneming op deze toplocatie, terwijl er al inkomsten worden gegenereerd.
Locatie
Nieuwstraat 26ZW bevindt zich pal in het sfeervolle stadscentrum van Maassluis, met karakteristieke gevels, gezellige winkels en horeca op loopafstand. Vlak achter de straat liggen de authentieke vlieten en de buitenhaven, die uitmonden in de Nieuwe Waterweg – een prachtige plek voor een lunchwandeling of een moment van ontspanning. De locatie is goed bereikbaar via de nabijgelegen rijkswegen (A20) en ligt op korte afstand van station Maassluis Centrum. Perfect voor zowel regionale als lokale bezoekers.
Puur! Maassluis nieuwbouwproject:
Het gebied is volop in ontwikkeling met een uitbreiding van het woon- en winkelgebied.
Op dit moment wordt er gewerkt aan een nieuwe supermarktlocatie met daarboven appartementen en woningen aan de achterzijde van de Nieuwstraat. Deze ontwikkeling zorgt voor meer reuring en winkelend publiek in de omgeving. Een win-winsituatie voor ondernemers én bewoners
Bijzonderheden:
- Bruto vloeroppervlakte: ca. 115m²
- Netto vloeroppervlakte: ca. 97 m²
- Bouwjaar: ca. 1800
- Bestemmingsplan 'detailhandel'
- Verhuurd tot en met 1 oktober 2026
- Geheel gerenoveerd in 2021
- Energielabel A+++
- Airconditioning (warmte- en koelelement) Mitsubishi (2021)
- VvE: 2/5e aandeel in gemeenschap
- Inzage (huur)documentatie op aanvraag wegens privacy
- Oplevering in overleg, kan snel
- Notariskeuze koper, regio Westland of Maassluis
Bestemmingsplan:
Het huidige bestemmingsplan is detailhandel. Koper wordt uitdrukkelijk gewezen op zijn eigen onderzoeksplicht ten aanzien van het voorgenomen gebruik van het object. Het is de verantwoordelijkheid van koper om bij de gemeente of via de relevante bestemmingsplannen na te gaan of het beoogde bedrijfsdoel op deze locatie is toegestaan. Verhuurder aanvaardt geen enkele aansprakelijkheid met betrekking tot het gebruik van het object dat niet in overeenstemming is met het geldende bestemmingsplan. Huurder wordt geadviseerd zich vooraf goed te laten informeren over de toepasselijke regelgeving en eventuele beperkingen.
Algemene bepalingen
In de koopovereenkomst worden standaard een ouderdomsclausule en een materialenclausule opgenomen, omdat het pand ouder is dan 100 jaar. Omdat het pand voor 1990 is gebouwd, wordt eveneens standaard een asbestclausule opgenomen. De gegeven informatie is met zorgvuldigheid opgesteld, aan de juistheid kunnen echter geen rechten worden ontleend. Alle verstrekte informatie moet beschouwd worden als een uitnodiging tot het doen van een aanbod of om in onderhandeling te treden. De verkoopcondities en basis verkoopovereenkomst van Helm & Heus Makelaars zijn bij deze verkoop van toepassing.
Indeling
Bij binnenkomst stap je direct in een grote winkelruimte met een etalage van circa 8 meter breed. Het netto winkeloppervlak bedraagt circa 97 m² en is verdeeld over meerdere ruimtes. Daarnaast is er een ruime extra kamer aanwezig, geschikt voor opslag of administratief werk.
In 2021 is het gehele pand grondig gerenoveerd. Hierbij zijn onder andere een moderne keuken met vaatwasser en koelkast geplaatst. Perfect voor het bereiden van een heerlijke kop koffie voor je klanten. Daarnaast is het pand voorzien van twee airco-units voor zowel verwarming als koeling. Alle wanden zijn gestuct en geschilderd, en er is vernieuwd sanitair met kraan, nieuw deurbeslag én verzorgd behangwerk aangebracht. De PVC-vloeren geven het geheel een nette, moderne uitstraling. Kortom: instapklaar!
Beleggingsobject óf voor eigen gebruik
Dit pand biedt uitstekende mogelijkheden, zowel als investering als voor eigen gebruik. Momenteel is het verhuurd tot 1 oktober 2026, waardoor het direct rendement oplevert voor beleggers én er nog genoeg tijd is om een nieuwe huurder aan te trekken. Tegelijkertijd is dit een ideale kans om alvast plannen te maken voor je eigen onderneming op deze toplocatie, terwijl er al inkomsten worden gegenereerd.
Locatie
Nieuwstraat 26ZW bevindt zich pal in het sfeervolle stadscentrum van Maassluis, met karakteristieke gevels, gezellige winkels en horeca op loopafstand. Vlak achter de straat liggen de authentieke vlieten en de buitenhaven, die uitmonden in de Nieuwe Waterweg – een prachtige plek voor een lunchwandeling of een moment van ontspanning. De locatie is goed bereikbaar via de nabijgelegen rijkswegen (A20) en ligt op korte afstand van station Maassluis Centrum. Perfect voor zowel regionale als lokale bezoekers.
Puur! Maassluis nieuwbouwproject:
Het gebied is volop in ontwikkeling met een uitbreiding van het woon- en winkelgebied.
Op dit moment wordt er gewerkt aan een nieuwe supermarktlocatie met daarboven appartementen en woningen aan de achterzijde van de Nieuwstraat. Deze ontwikkeling zorgt voor meer reuring en winkelend publiek in de omgeving. Een win-winsituatie voor ondernemers én bewoners
Bijzonderheden:
- Bruto vloeroppervlakte: ca. 115m²
- Netto vloeroppervlakte: ca. 97 m²
- Bouwjaar: ca. 1800
- Bestemmingsplan 'detailhandel'
- Verhuurd tot en met 1 oktober 2026
- Geheel gerenoveerd in 2021
- Energielabel A+++
- Airconditioning (warmte- en koelelement) Mitsubishi (2021)
- VvE: 2/5e aandeel in gemeenschap
- Inzage (huur)documentatie op aanvraag wegens privacy
- Oplevering in overleg, kan snel
- Notariskeuze koper, regio Westland of Maassluis
Bestemmingsplan:
Het huidige bestemmingsplan is detailhandel. Koper wordt uitdrukkelijk gewezen op zijn eigen onderzoeksplicht ten aanzien van het voorgenomen gebruik van het object. Het is de verantwoordelijkheid van koper om bij de gemeente of via de relevante bestemmingsplannen na te gaan of het beoogde bedrijfsdoel op deze locatie is toegestaan. Verhuurder aanvaardt geen enkele aansprakelijkheid met betrekking tot het gebruik van het object dat niet in overeenstemming is met het geldende bestemmingsplan. Huurder wordt geadviseerd zich vooraf goed te laten informeren over de toepasselijke regelgeving en eventuele beperkingen.
Algemene bepalingen
In de koopovereenkomst worden standaard een ouderdomsclausule en een materialenclausule opgenomen, omdat het pand ouder is dan 100 jaar. Omdat het pand voor 1990 is gebouwd, wordt eveneens standaard een asbestclausule opgenomen. De gegeven informatie is met zorgvuldigheid opgesteld, aan de juistheid kunnen echter geen rechten worden ontleend. Alle verstrekte informatie moet beschouwd worden als een uitnodiging tot het doen van een aanbod of om in onderhandeling te treden. De verkoopcondities en basis verkoopovereenkomst van Helm & Heus Makelaars zijn bij deze verkoop van toepassing.
Features
Transfer of ownership
- Asking price
- € 275,000 kosten koper
- Listed since
-
- Status
- Under offer
- Acceptance
- Available immediately
Construction
- Main use
- Retail outlet with showroom
- Building type
- Resale property
- Year of construction
- 1800
Surface areas
- Area
- 115 m²
- Sales floor area
- 97 m²
- Plot size
- 138 m²
Layout
- Number of floors
- 1 floor
Energy
- Energy label
- A+++
Surroundings
- Location
- Town center and in residential district
- Accessibility
- Bus stop in 500 m to 1000 m, motorway exit in 1000 m to 1500 m and Tram stop in 3000 m to 4000 m
- Shopkeepers' association contribution
- Yes
- Socio-economic classification
- A1
NVM real estate agent
Photos


















Floorplan
First floor
