Description
TE HUUR - NIEUW TE BOUWEN COMMERCIËLE PLINT
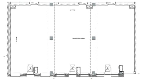
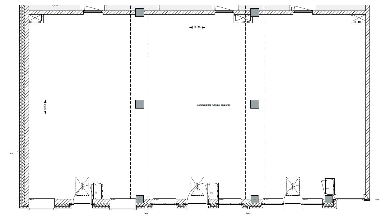
Bent u op zoek naar een unieke, veelzijdige ruimte in het hart van Meppel? Dan biedt de commerciële plint in het prestigieuze nieuwbouwproject 3Luik aan de Kruisstraat u een uitgelezen kans! Deze moderne plint is dé plek voor ondernemers die op zoek zijn naar een dynamische locatie met talloze mogelijkheden. De plint is voorzien van een drietal deuren en daardoor ook eventueel in delen te huur.
OPPERVLAKTE
Commerciële plint : 181m² BVO (op te delen in units vanaf 60m² groot)
Frontbreedte : 18,17m1
Diepte : 9,98 m1
BESTEMMINGSPLAN
De bestemming betreft enkelbestemming “Centrum” onder het bestemmingsplan Meppel-Binnenstad.
HUURPRIJS
Huurprijs : € 36.500,-
* Prijzen exclusief BTW
HUURPRIJSAANPASSING
Jaarlijks, voor het eerst één jaar na ingangsdatum van de huurovereenkomst, op basis van de wijziging van het maandindexcijfer volgens de consumentenprijsindex (CPI) reeks CPI-alle huishoudens (2015=100), gepubliceerd door het Centraal Bureau voor de Statistiek (CBS).
ZEKERHEDEN
Bij ondertekening van de huurovereenkomst zal huurder een bankgarantie stellen of een waarborgsom storten ter grootte van (minimaal) 3 maanden huur en eventuele servicekosten, alsmede de (eventueel) hierover verschuldigde omzetbelasting.
OPLEVERINGSDATUM
De plint wordt in begin 2027 opgeleverd.
OPLEVERINGSNIVEAU
De commerciële plint zal in casco staat worden opgeleverd.
HUUROVEREENKOMST
Huurovereenkomst conform het standaardmodel van de Raad voor Onroerende Zaken (ROZ), zoals gehanteerd door de Nederlandse Vereniging voor Makelaars (NVM).
DIVERSEN
Wijzigingen op tekeningen als gevolg van eisen van overheidswege, alsmede kleine wijzigingen in de uitvoering op verzoek van de architect, constructeur, ontwikkelaar e.d. zijn voorbehouden. De op tekening aangegeven maten zijn “circa” maten. Hier kunnen geen rechten aan ontleend worden.
Voor meer informatie zie ook de website van het object: kruisstraat0ong.nl
Bent u op zoek naar een unieke, veelzijdige ruimte in het hart van Meppel? Dan biedt de commerciële plint in het prestigieuze nieuwbouwproject 3Luik aan de Kruisstraat u een uitgelezen kans! Deze moderne plint is dé plek voor ondernemers die op zoek zijn naar een dynamische locatie met talloze mogelijkheden. De plint is voorzien van een drietal deuren en daardoor ook eventueel in delen te huur.
OPPERVLAKTE
Commerciële plint : 181m² BVO (op te delen in units vanaf 60m² groot)
Frontbreedte : 18,17m1
Diepte : 9,98 m1
BESTEMMINGSPLAN
De bestemming betreft enkelbestemming “Centrum” onder het bestemmingsplan Meppel-Binnenstad.
HUURPRIJS
Huurprijs : € 36.500,-
* Prijzen exclusief BTW
HUURPRIJSAANPASSING
Jaarlijks, voor het eerst één jaar na ingangsdatum van de huurovereenkomst, op basis van de wijziging van het maandindexcijfer volgens de consumentenprijsindex (CPI) reeks CPI-alle huishoudens (2015=100), gepubliceerd door het Centraal Bureau voor de Statistiek (CBS).
ZEKERHEDEN
Bij ondertekening van de huurovereenkomst zal huurder een bankgarantie stellen of een waarborgsom storten ter grootte van (minimaal) 3 maanden huur en eventuele servicekosten, alsmede de (eventueel) hierover verschuldigde omzetbelasting.
OPLEVERINGSDATUM
De plint wordt in begin 2027 opgeleverd.
OPLEVERINGSNIVEAU
De commerciële plint zal in casco staat worden opgeleverd.
HUUROVEREENKOMST
Huurovereenkomst conform het standaardmodel van de Raad voor Onroerende Zaken (ROZ), zoals gehanteerd door de Nederlandse Vereniging voor Makelaars (NVM).
DIVERSEN
Wijzigingen op tekeningen als gevolg van eisen van overheidswege, alsmede kleine wijzigingen in de uitvoering op verzoek van de architect, constructeur, ontwikkelaar e.d. zijn voorbehouden. De op tekening aangegeven maten zijn “circa” maten. Hier kunnen geen rechten aan ontleend worden.
Voor meer informatie zie ook de website van het object: kruisstraat0ong.nl
Map
Map is loading...
Cadastral boundaries
Buildings
Travel time
Gain insight into the reachability of this object, for instance from a public transport station or a home address.