Pr Constantijn Promenade 35 2284 DL Rijswijk (ZH)

Rental price on request

Description

Annual rent
Upon request

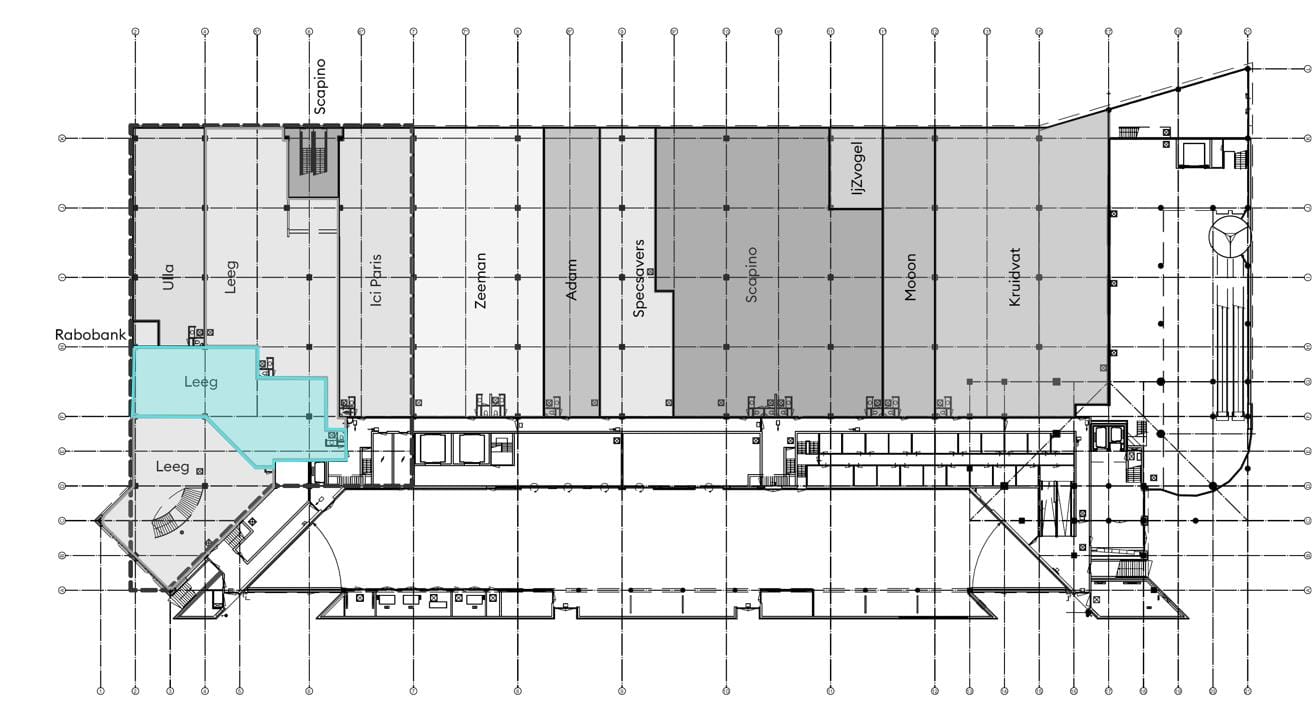
Floor area
430,15 G.F.A. sqm

Building year
2001

Payment
Monthly in advance

Lease period
5 years with an extension period of 5 years

Indexation
The rent will be adjusted annually, starting 1 year after the commencement date of the lease, based on the Consumers Price Index figure for all households (2015=100) as published by the Central Bureau for Statistics

Lease agreement
Standard R.O.Z., model 2012

Availability
Currently available

State of delivery
Current state

Conditions
Final approval by the landlord

Features

Transfer of ownership

Rental price
Rental price on request
Listed since
Status
Available
Acceptance
Available in consultation

Construction

Main use
Retail outlet with showroom
Building type
Resale property
Year of construction
2001

Surface areas

Area
225 m²
Sales floor area
225 m²

Layout

Number of floors
1 floor

Energy

Energy label
Not available

Surroundings

Shopkeepers' association contribution
No

Map

Map is loading...

Cadastral boundaries Buildings

Travel time

Gain insight into the reachability of this object, for instance from a public transport station or a home address.

Pr Constantijn Promenade 35

Rental price on request